
| 賃料 | 予想金額:178,000〜198,000円程度 | 管理費 | 予想金額:8,000〜12,000円程度 |
| 礼金/敷金 | 非公開(アーカイブ) | 平米数 | 41.61㎡ |
| 初期費用概算(参考) | 目安:714,500〜814,500 円 | みなし賃料(月額・参考) | 200,010〜220,010 円 |
| 備考 | 本ページは過去募集のアーカイブです。表示の金額は周辺相場・過去募集を踏まえた参考レンジであり、実際の契約金額・条件ではありません。 | ||
※上記みなし賃料(月額)は仲介手数料割引・無料&キャッシュバックを加味した高級賃貸バイブル限定の金額です。一般的なみなし賃料とは異なります。
【建物ページ】ココプラス本駒込の詳細・最新空室はこちら▶▶選ばれる理由
仲介手数料無料・キャンペーン情報(毎月15名様限定)
〇仲介手数料割引キャンペーン
ココプラス本駒込 1001の口コミ・レビュー
ココプラス本駒込 1001という名のこの住まいは、あなたの新しい生活の舞台にふさわしい、贅沢な空間を提供します。ここに住むことは、まるで自分自身が主役の映画の一シーンに包まれているかのようです。西向きの窓からは、夕暮れ時の美しい光が優しくあなたを包み込み、窓辺に座りながら、一日の終わりを優雅に語りかけることでしょう。
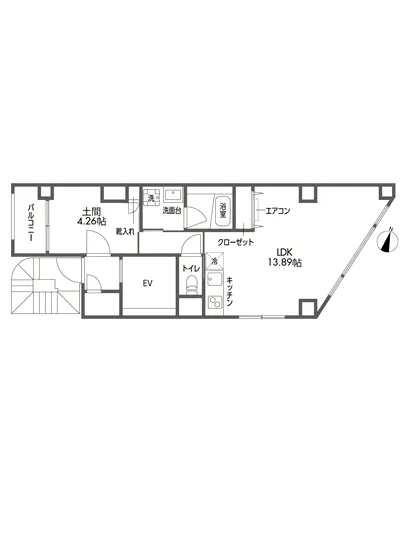
このお部屋は、41.61㎡の贅沢な広がりを持つ1Rタイプ。土間は4.26帖、洋…ココプラス本駒込 1001という名のこの住まいは、あなたの新しい生活の舞台にふさわしい、贅沢な空間を提供します。ここに住むことは、まるで自分自身が主役の映画の一シーンに包まれているかのようです。西向きの窓からは、夕暮れ時の美しい光が優しくあなたを包み込み、窓辺に座りながら、一日の終わりを優雅に語りかけることでしょう。
このお部屋は、41.61㎡の贅沢な広がりを持つ1Rタイプ。土間は4.26帖、洋室は13.89帖のゆったりとした空間が完備されています。ここでの生活は、まるでアーティストが自由にキャンバスに色を重ねていくように、あなた自身のスタイルに染めていくことができるのです。朝の光が差し込むと、フレッシュな空気がそよぎ、心地よい香りで目覚めることでしょう。青空を背にしたこの場所で、コーヒーの香りが朝の静寂を切り裂き、あなたを優雅な朝食へと誘います。
ココプラス本駒込 1001は、ただの居住空間ではありません。ここは、特別な瞬間を生きるための舞台です。TVモニターホンを通じて、大切な人の訪問を心待ちにし、エレベーターの静かな音色があなたを上層へと運びます。オートロックの安心感は、あなたを守る鎧のように、毎日の暮らしに安らぎを与えてくれます。デザイナーズの特長が随所に感じられ、それはまるで你のためにデザインされたアートピースのよう。宅配ボックスは、忙しいあなたのための頼もしい友のように、思いがけない贈り物を受け取る喜びをもたらします。
周囲の本駒込の街並みは、文化と歴史が息づく場所です。静かな住宅街の中に、隠れたように佇むカフェやアートギャラリーが、日常に彩りを与えます。地元の素材を活かした料理が楽しめる隠れ家的なレストランも、あなたの味覚を驚かせることでしょう。ジャンルを超えたアートや文化が交差するこのエリアで、あなた自身の感性を豊かに育んでいくことができるのです。
夜になると、ココプラス本駒込 1001の窓から望む静寂な街の灯が、星空のように輝きます。都会の喧騒から少し離れたこの空間で、リラックスした時間を楽しむことで、心を満たし、明日へのエネルギーを生み出すことができるでしょう。ここは、あなたの生活の調和を創り出す、特別な場所。ココプラス本駒込 1001で新たな物語が始まります。あなたの人生の新しい章が、この場所から紡がれていくのです。
このお部屋は、41.61㎡の贅沢な広がりを持つ1Rタイプ。土間は4.26帖、洋…ココプラス本駒込 1001という名のこの住まいは、あなたの新しい生活の舞台にふさわしい、贅沢な空間を提供します。ここに住むことは、まるで自分自身が主役の映画の一シーンに包まれているかのようです。西向きの窓からは、夕暮れ時の美しい光が優しくあなたを包み込み、窓辺に座りながら、一日の終わりを優雅に語りかけることでしょう。
このお部屋は、41.61㎡の贅沢な広がりを持つ1Rタイプ。土間は4.26帖、洋室は13.89帖のゆったりとした空間が完備されています。ここでの生活は、まるでアーティストが自由にキャンバスに色を重ねていくように、あなた自身のスタイルに染めていくことができるのです。朝の光が差し込むと、フレッシュな空気がそよぎ、心地よい香りで目覚めることでしょう。青空を背にしたこの場所で、コーヒーの香りが朝の静寂を切り裂き、あなたを優雅な朝食へと誘います。
ココプラス本駒込 1001は、ただの居住空間ではありません。ここは、特別な瞬間を生きるための舞台です。TVモニターホンを通じて、大切な人の訪問を心待ちにし、エレベーターの静かな音色があなたを上層へと運びます。オートロックの安心感は、あなたを守る鎧のように、毎日の暮らしに安らぎを与えてくれます。デザイナーズの特長が随所に感じられ、それはまるで你のためにデザインされたアートピースのよう。宅配ボックスは、忙しいあなたのための頼もしい友のように、思いがけない贈り物を受け取る喜びをもたらします。
周囲の本駒込の街並みは、文化と歴史が息づく場所です。静かな住宅街の中に、隠れたように佇むカフェやアートギャラリーが、日常に彩りを与えます。地元の素材を活かした料理が楽しめる隠れ家的なレストランも、あなたの味覚を驚かせることでしょう。ジャンルを超えたアートや文化が交差するこのエリアで、あなた自身の感性を豊かに育んでいくことができるのです。
夜になると、ココプラス本駒込 1001の窓から望む静寂な街の灯が、星空のように輝きます。都会の喧騒から少し離れたこの空間で、リラックスした時間を楽しむことで、心を満たし、明日へのエネルギーを生み出すことができるでしょう。ここは、あなたの生活の調和を創り出す、特別な場所。ココプラス本駒込 1001で新たな物語が始まります。あなたの人生の新しい章が、この場所から紡がれていくのです。
バイブルスコア
バイブルスコア: 17.1
高級な物件でない場合は割高な物件です。。
※バイブルスコア詳細はこちら
バイブルスコアとは独自のAI機械学習技術を利用した物件評価システムで、物件のおすすめ度を示します。最高得点は100点で、スコアが高いほど、よりおすすめの物件と評価されています。
写真
現在写真が登録されていません契約条件
| 賃料 | 予想金額:178,000〜198,000円程度 | 管理費 | 予想金額:8,000〜12,000円程度 |
| 礼金 | 非公開(アーカイブ) | 敷金 | 非公開(アーカイブ) |
| フリーレント | なし | 平米数 | 41.61㎡ |
| 間取り | 1R | 大型収納 | |
| 契約期間 |
| 方角 | 西 |
| 更新料 | 契約形態 | 普通賃貸借契約 | |
| 取引態様 | 媒介 | 内見状況 | 入居中 |
| 入居時期 | 入居中 | SOHO・事務所 | 事務所(SOHO)可 |
| ペット | 間取り内訳 | 土間:4.26 洋:13.89 | |
| キャンペーン情報・備考 | 本情報は賃料改定交渉の資料作成、収益物件の利回り試算、周辺エリアや最寄り駅の坪単価分析、次回募集開始時期の予測などにご活用いただけます。 | ||
※「どの不動産に頼めばいいのか分からない」「信頼できる営業マンの話を聞きたい」「一番親切な会社と契約したい」とお悩みの方におすすめなのが「高級賃貸バイブル」です。
高級賃貸バイブルは業界10年以上の熟練スタッフ群がお客様ファーストで対応します。
下記ボタンから、まずは無料でご相談下さい。
※内覧をご希望の際には、どうぞ物件のエントランス前にてお待ち合わせくださいませ。ご内覧後は、同じ場所でお別れとさせていただきます。お客様のご都合に合わせたスムーズなご案内を心がけておりますので、ご質問等がございましたら何なりとお申し付けください。 物件概要
地図
物件までの道のりは、「拡大地図を表示」をクリックしてナビ機能をご利用ください。
部屋設備














建物設備

TVモニターホン

エレベーター

オートロック

宅配ボックス

敷地内ゴミ置場

管理人
ココプラス本駒込の現在募集中のお部屋
- No rooms found for this property.
