
| 賃料 | 予想金額:278,000〜298,000円程度 | 管理費 | 予想金額:19,000〜23,000円程度 |
| 礼金/敷金 | 非公開(アーカイブ) | 平米数 | 72.65㎡ |
| 初期費用概算(参考) | 目安:1,945,000〜2,045,000 円 | みなし賃料(月額・参考) | 334,563〜354,563 円 |
| 備考 | 本ページは過去募集のアーカイブです。表示の金額は周辺相場・過去募集を踏まえた参考レンジであり、実際の契約金額・条件ではありません。 | ||
※上記みなし賃料(月額)は仲介手数料割引・無料&キャッシュバックを加味した高級賃貸バイブル限定の金額です。一般的なみなし賃料とは異なります。
【建物ページ】勝どきザ・タワーの詳細・最新空室はこちら▶▶選ばれる理由
仲介手数料無料・キャンペーン情報(毎月15名様限定)
〇仲介手数料割引キャンペーン
勝どきザ・タワー 4501の口コミ・レビュー
勝どきザ・タワー 4501。この住まいは、まるで心を持つ貴族のように、静かにあなたを迎え入れます。高層階から見下ろす都市の喧騒の中、あなたのプライベートな天地が広がる様子はまさに映画のワンシーン。あなたがそのドアを開けた瞬間、この特別な空間が豊かなストーリーを語りかけてきます。
勝どきザ・タワー 4501の大きな窓からは、北西の空が描く夕焼けのグラデーションが目に飛び込んできます。日が暮れるころ…勝どきザ・タワー 4501。この住まいは、まるで心を持つ貴族のように、静かにあなたを迎え入れます。高層階から見下ろす都市の喧騒の中、あなたのプライベートな天地が広がる様子はまさに映画のワンシーン。あなたがそのドアを開けた瞬間、この特別な空間が豊かなストーリーを語りかけてきます。
勝どきザ・タワー 4501の大きな窓からは、北西の空が描く夕焼けのグラデーションが目に飛び込んできます。日が暮れるころ、橙色の光が部屋を包み込むと、まるで絵画の一部に自分が溶け込んでしまうかのよう。そんな瞬間、思わず深呼吸したくなる香ばしい空気の中に、都会の注がれた歴史や文化の息吹を感じることができます。
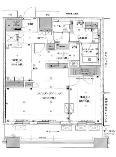
この物件の間取りは、LDK14.7帖、キッチン3.3帖、そして二つの個室はそれぞれ洋室4.5帖と洋室7帖。ゆったりとしたリビングは、家族や友人との大切な時間を彩ります。モダンなデザイナーズインテリアは、訪れる人に洗練された印象を与えることでしょう。あなたの手から生まれる料理の香りは、暖かな家庭の象徴となり、一緒に過ごす人々の笑顔を引き出します。
フィットネスジムやラウンジ、ゲストルームを備えたこのタワーは、まるであなたの日常生活を豊かにするための魔法の道具が揃ったお城のよう。別の世界にいるかのような感覚を味わえるフィットネスエリアでは、心拍数が上がり、エンドルフィンが心を満たすでしょう。そして、仲間や家族と共に寛げるラウンジは、夜に星空を眺めながら語らう場となり、特別な思い出を刻む場所となります。
また、勝どき周辺は、歴史深い街並みと現代の洗練が融合した土地。隣接する豊かな自然とするりと流れる隅田川は、忙しい生活の合間に心を癒すオアシス。物件からほんの数分の距離にある勝どき駅は、都営地下鉄大江戸線を利用して、さらなる冒険へと導いてくれます。
勝どきザ・タワー 4501に暮らすことは、ただの生活ではなく、アートのように色づく人生そのもの。毎日が新たな発見に満ち、周囲の文化と調和しながら、あなたの物語が描かれていくのです。この場所で、心が豊かに満たされ、あなた自身が美しく成長していく姿を想像してみてください。未来への扉が、ここに待っているのです。
勝どきザ・タワー 4501の大きな窓からは、北西の空が描く夕焼けのグラデーションが目に飛び込んできます。日が暮れるころ…勝どきザ・タワー 4501。この住まいは、まるで心を持つ貴族のように、静かにあなたを迎え入れます。高層階から見下ろす都市の喧騒の中、あなたのプライベートな天地が広がる様子はまさに映画のワンシーン。あなたがそのドアを開けた瞬間、この特別な空間が豊かなストーリーを語りかけてきます。
勝どきザ・タワー 4501の大きな窓からは、北西の空が描く夕焼けのグラデーションが目に飛び込んできます。日が暮れるころ、橙色の光が部屋を包み込むと、まるで絵画の一部に自分が溶け込んでしまうかのよう。そんな瞬間、思わず深呼吸したくなる香ばしい空気の中に、都会の注がれた歴史や文化の息吹を感じることができます。
この物件の間取りは、LDK14.7帖、キッチン3.3帖、そして二つの個室はそれぞれ洋室4.5帖と洋室7帖。ゆったりとしたリビングは、家族や友人との大切な時間を彩ります。モダンなデザイナーズインテリアは、訪れる人に洗練された印象を与えることでしょう。あなたの手から生まれる料理の香りは、暖かな家庭の象徴となり、一緒に過ごす人々の笑顔を引き出します。
フィットネスジムやラウンジ、ゲストルームを備えたこのタワーは、まるであなたの日常生活を豊かにするための魔法の道具が揃ったお城のよう。別の世界にいるかのような感覚を味わえるフィットネスエリアでは、心拍数が上がり、エンドルフィンが心を満たすでしょう。そして、仲間や家族と共に寛げるラウンジは、夜に星空を眺めながら語らう場となり、特別な思い出を刻む場所となります。
また、勝どき周辺は、歴史深い街並みと現代の洗練が融合した土地。隣接する豊かな自然とするりと流れる隅田川は、忙しい生活の合間に心を癒すオアシス。物件からほんの数分の距離にある勝どき駅は、都営地下鉄大江戸線を利用して、さらなる冒険へと導いてくれます。
勝どきザ・タワー 4501に暮らすことは、ただの生活ではなく、アートのように色づく人生そのもの。毎日が新たな発見に満ち、周囲の文化と調和しながら、あなたの物語が描かれていくのです。この場所で、心が豊かに満たされ、あなた自身が美しく成長していく姿を想像してみてください。未来への扉が、ここに待っているのです。
バイブルスコア
バイブルスコア: 31
平均的なスコアです。
※バイブルスコア詳細はこちら
バイブルスコアとは独自のAI機械学習技術を利用した物件評価システムで、物件のおすすめ度を示します。最高得点は100点で、スコアが高いほど、よりおすすめの物件と評価されています。
写真
契約条件
| 賃料 | 予想金額:278,000〜298,000円程度 | 管理費 | 予想金額:19,000〜23,000円程度 |
| 礼金 | 非公開(アーカイブ) | 敷金 | 非公開(アーカイブ) |
| フリーレント | なし | 平米数 | 72.65㎡ |
| 間取り | 2LDK | 大型収納 | WIC+SIC |
| 契約期間 |
| 方角 | 北西 |
| 更新料 | 契約形態 | 普通賃貸借契約 | |
| 取引態様 | 媒介 | 内見状況 | 入居中 |
| 入居時期 | 入居中 | SOHO・事務所 | |
| ペット | 間取り内訳 | LD=14.7J / K=3.3J / BR=4.5J / BR=7J | |
| キャンペーン情報・備考 | 本情報は賃料改定交渉の資料作成、収益物件の利回り試算、周辺エリアや最寄り駅の坪単価分析、次回募集開始時期の予測などにご活用いただけます。 | ||
※「どの不動産に頼めばいいのか分からない」「信頼できる営業マンの話を聞きたい」「一番親切な会社と契約したい」とお悩みの方におすすめなのが「高級賃貸バイブル」です。
高級賃貸バイブルは業界10年以上の熟練スタッフ群がお客様ファーストで対応します。
下記ボタンから、まずは無料でご相談下さい。
※内覧をご希望の際には、どうぞ物件のエントランス前にてお待ち合わせくださいませ。ご内覧後は、同じ場所でお別れとさせていただきます。お客様のご都合に合わせたスムーズなご案内を心がけておりますので、ご質問等がございましたら何なりとお申し付けください。 物件概要
地図
物件までの道のりは、「拡大地図を表示」をクリックしてナビ機能をご利用ください。
部屋設備




















建物設備

24時間管理

TVモニターホン

エレベーター

オートロック

ゲストルーム

バイク置場

フィットネス

フロントサービス

ラウンジ

宅配ボックス

敷地内ゴミ置場

管理人

駐車場平置き

駐車場機械式

駐輪場
勝どきザ・タワーの現在募集中のお部屋
- 勝どきザ・タワー 40階 71.18㎡ - 間取り: 3LDK+WIC+SIC - 賃料: 36.5万円
- 勝どきザ・タワー 44階 73.32㎡ - 間取り: 2LDK+SIC - 賃料: 36万円
- 勝どきザ・タワー 50階 79.84㎡ - 間取り: 2LDK - 賃料: 47.5万円
- 勝どきザ・タワー 6階 58.28㎡ - 間取り: 2LDK - 賃料: 27.5万円
- 勝どきザ・タワー 22階 67.86㎡ - 間取り: 2LDK+WIC - 賃料: 40万円
- 勝どきザ・タワー 5階 58.25㎡ - 間取り: 1LDK - 賃料: 25万円
- 勝どきザ・タワー 38階 76.14㎡ - 間取り: 3LDK+WIC - 賃料: 37万円
- 勝どきザ・タワー 24階 43.24㎡ - 間取り: 1LDK - 賃料: 23万円



















