
| 賃料 | 予想金額:290,000〜310,000円程度 | 管理費 | 予想金額:28,000〜32,000円程度 |
| 礼金/敷金 | 非公開(アーカイブ) | 平米数 | 67.86㎡ |
| 初期費用概算(参考) | 目安:1,736,500〜1,836,500 円 | みなし賃料(月額・参考) | 350,969〜370,969 円 |
| 備考 | 本ページは過去募集のアーカイブです。表示の金額は周辺相場・過去募集を踏まえた参考レンジであり、実際の契約金額・条件ではありません。 | ||
※上記みなし賃料(月額)は仲介手数料割引・無料&キャッシュバックを加味した高級賃貸バイブル限定の金額です。一般的なみなし賃料とは異なります。
【建物ページ】勝どきザ・タワーの詳細・最新空室はこちら▶▶選ばれる理由
仲介手数料無料・キャンペーン情報(毎月15名様限定)
〇仲介手数料割引キャンペーン
勝どきザ・タワー 5121の口コミ・レビュー
勝どきザ・タワー 5121という名の美しい邸宅が、あなたを待っています。都心の喧騒を忘れさせるような、優雅な空間での生活がここから始まるのです。この物件は、まるで夢のような映画の一シーンのように、私たちの日常を特別なものに変えてくれるでしょう。専有面積67.86㎡の広々としたこの住まいには、心地よい風が吹き抜け、南西の陽射しが柔らかく差し込み、まるであなたを優しく包み込むかのようです。
勝どきザ…勝どきザ・タワー 5121という名の美しい邸宅が、あなたを待っています。都心の喧騒を忘れさせるような、優雅な空間での生活がここから始まるのです。この物件は、まるで夢のような映画の一シーンのように、私たちの日常を特別なものに変えてくれるでしょう。専有面積67.86㎡の広々としたこの住まいには、心地よい風が吹き抜け、南西の陽射しが柔らかく差し込み、まるであなたを優しく包み込むかのようです。
勝どきザ・タワー 5121に足を踏み入れると、すぐにその魅力に引き込まれることでしょう。11.8帖のリビングダイニングは、家族や友人との穏やかなひとときを紡ぐ場となります。キッチンも3.8帖の広さを誇り、料理の腕を振るう喜びを味わうことができます。朝の光の中でパンの焼きあがる香ばしい匂いが漂い、コーヒーの香りが混ざるその瞬間、まるで自分が映画の主人公になったかのように感じることでしょう。そして、7.3帖と5帖の寝室は、心を安らげる静かな空間を提供します。そこで目を閉じ、ここでの夢が叶うことを願う幸福感を味わってください。
このタワーは、ただの住宅ではありません。それは、現代のオアシスであり、洗練されたデザイナーズ空間で、心と体をリフレッシュさせるフィットネスルームや、友人を招待するのにぴったりなゲストルーム、そして、日常のストレスを忘れさせてくれるラウンジも完備されています。勝どきザ・タワー 5121は、贅沢な時間を味わえる場所として、あなたを迎え入れるのです。
このエリアの周りには、歴史と文化が息づいています。隣接する勝どきの街は、江戸の名残を感じさせる趣ある場所で、散歩を楽しむには最適です。古き良き日本を想い起こさせる神社や、美術館も近くにあり、アートを愛する方にもぴったりです。季節ごとに変わる風景は、心の中に深い感銘を与え、日々の生活に色彩を添えます。
勝どきザ・タワー 5121は、あなたの人生を豊かにするためにその存在を誇示しています。24時間管理された安心感に包まれ、オートロックシステムにより、一歩踏み入れたその瞬間から特別な世界が広がってゆくのです。お帰りなさい、と優雅に語りかけるこの空間で、まるで映画の主人公になったかのような感覚に浸り、心からの安息を得ることができるでしょう。
新たな人生の舞台は、まさにここ、勝どきザ・タワー 5121にあります。あなたの物語が、この美しい空間で、どのように展開されていくのか、待ち遠しくて堪りません。さあ、この特別な場所で、あなたの新しい生活を始めてみませんか?
勝どきザ…勝どきザ・タワー 5121という名の美しい邸宅が、あなたを待っています。都心の喧騒を忘れさせるような、優雅な空間での生活がここから始まるのです。この物件は、まるで夢のような映画の一シーンのように、私たちの日常を特別なものに変えてくれるでしょう。専有面積67.86㎡の広々としたこの住まいには、心地よい風が吹き抜け、南西の陽射しが柔らかく差し込み、まるであなたを優しく包み込むかのようです。
勝どきザ・タワー 5121に足を踏み入れると、すぐにその魅力に引き込まれることでしょう。11.8帖のリビングダイニングは、家族や友人との穏やかなひとときを紡ぐ場となります。キッチンも3.8帖の広さを誇り、料理の腕を振るう喜びを味わうことができます。朝の光の中でパンの焼きあがる香ばしい匂いが漂い、コーヒーの香りが混ざるその瞬間、まるで自分が映画の主人公になったかのように感じることでしょう。そして、7.3帖と5帖の寝室は、心を安らげる静かな空間を提供します。そこで目を閉じ、ここでの夢が叶うことを願う幸福感を味わってください。
このタワーは、ただの住宅ではありません。それは、現代のオアシスであり、洗練されたデザイナーズ空間で、心と体をリフレッシュさせるフィットネスルームや、友人を招待するのにぴったりなゲストルーム、そして、日常のストレスを忘れさせてくれるラウンジも完備されています。勝どきザ・タワー 5121は、贅沢な時間を味わえる場所として、あなたを迎え入れるのです。
このエリアの周りには、歴史と文化が息づいています。隣接する勝どきの街は、江戸の名残を感じさせる趣ある場所で、散歩を楽しむには最適です。古き良き日本を想い起こさせる神社や、美術館も近くにあり、アートを愛する方にもぴったりです。季節ごとに変わる風景は、心の中に深い感銘を与え、日々の生活に色彩を添えます。
勝どきザ・タワー 5121は、あなたの人生を豊かにするためにその存在を誇示しています。24時間管理された安心感に包まれ、オートロックシステムにより、一歩踏み入れたその瞬間から特別な世界が広がってゆくのです。お帰りなさい、と優雅に語りかけるこの空間で、まるで映画の主人公になったかのような感覚に浸り、心からの安息を得ることができるでしょう。
新たな人生の舞台は、まさにここ、勝どきザ・タワー 5121にあります。あなたの物語が、この美しい空間で、どのように展開されていくのか、待ち遠しくて堪りません。さあ、この特別な場所で、あなたの新しい生活を始めてみませんか?
バイブルスコア
バイブルスコア: 17.7
高級な物件でない場合は割高な物件です。。
※バイブルスコア詳細はこちら
バイブルスコアとは独自のAI機械学習技術を利用した物件評価システムで、物件のおすすめ度を示します。最高得点は100点で、スコアが高いほど、よりおすすめの物件と評価されています。
写真
契約条件
| 賃料 | 予想金額:290,000〜310,000円程度 | 管理費 | 予想金額:28,000〜32,000円程度 |
| 礼金 | 非公開(アーカイブ) | 敷金 | 非公開(アーカイブ) |
| フリーレント | なし | 平米数 | 67.86㎡ |
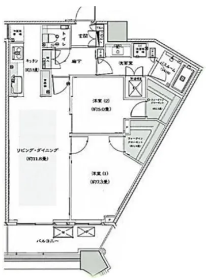
| 間取り | 2LDK | 大型収納 | 2WIC |
| 契約期間 |
| 方角 | 南西 |
| 更新料 | 契約形態 | 普通賃貸借契約 | |
| 取引態様 | 媒介 | 内見状況 | 入居中 |
| 入居時期 | 入居中 | SOHO・事務所 | |
| ペット | 間取り内訳 | LD=11.8J / K=3.8J / BR=7.3J / BR=5J | |
| キャンペーン情報・備考 | 本情報は賃料改定交渉の資料作成、収益物件の利回り試算、周辺エリアや最寄り駅の坪単価分析、次回募集開始時期の予測などにご活用いただけます。 | ||
※「どの不動産に頼めばいいのか分からない」「信頼できる営業マンの話を聞きたい」「一番親切な会社と契約したい」とお悩みの方におすすめなのが「高級賃貸バイブル」です。
高級賃貸バイブルは業界10年以上の熟練スタッフ群がお客様ファーストで対応します。
下記ボタンから、まずは無料でご相談下さい。
※内覧をご希望の際には、どうぞ物件のエントランス前にてお待ち合わせくださいませ。ご内覧後は、同じ場所でお別れとさせていただきます。お客様のご都合に合わせたスムーズなご案内を心がけておりますので、ご質問等がございましたら何なりとお申し付けください。 物件概要
地図
物件までの道のりは、「拡大地図を表示」をクリックしてナビ機能をご利用ください。
部屋設備




















建物設備

24時間管理

TVモニターホン

エレベーター

オートロック

ゲストルーム

バイク置場

フィットネス

フロントサービス

ラウンジ

宅配ボックス

敷地内ゴミ置場

管理人

駐車場平置き

駐車場機械式

駐輪場
勝どきザ・タワーの現在募集中のお部屋
- 勝どきザ・タワー 40階 71.18㎡ - 間取り: 3LDK+WIC+SIC - 賃料: 36.5万円
- 勝どきザ・タワー 44階 73.32㎡ - 間取り: 2LDK+SIC - 賃料: 36万円
- 勝どきザ・タワー 50階 79.84㎡ - 間取り: 2LDK - 賃料: 47.5万円
- 勝どきザ・タワー 6階 58.28㎡ - 間取り: 2LDK - 賃料: 27.5万円
- 勝どきザ・タワー 22階 67.86㎡ - 間取り: 2LDK+WIC - 賃料: 40万円
- 勝どきザ・タワー 5階 58.25㎡ - 間取り: 1LDK - 賃料: 25万円
- 勝どきザ・タワー 38階 76.14㎡ - 間取り: 3LDK+WIC - 賃料: 37万円
- 勝どきザ・タワー 24階 43.24㎡ - 間取り: 1LDK - 賃料: 23万円



















