
| 賃料 | 予想金額:142,000〜162,000円程度 | 管理費 | 予想金額:8,000〜12,000円程度 |
| 礼金/敷金 | 非公開(アーカイブ) | 平米数 | 35.27㎡ |
| 初期費用概算(参考) | 目安:588,500〜688,500 円 | みなし賃料(月額・参考) | 162,135〜182,135 円 |
| 備考 | 本ページは過去募集のアーカイブです。表示の金額は周辺相場・過去募集を踏まえた参考レンジであり、実際の契約金額・条件ではありません。 | ||
※上記みなし賃料(月額)は仲介手数料割引・無料&キャッシュバックを加味した高級賃貸バイブル限定の金額です。一般的なみなし賃料とは異なります。
【建物ページ】ズーム中野坂上の詳細・最新空室はこちら▶▶選ばれる理由
仲介手数料無料・キャンペーン情報(毎月15名様限定)
〇仲介手数料割引キャンペーン
ズーム中野坂上 309の口コミ・レビュー
ズーム中野坂上 309は、あなたの新しい生活の幕開けを静かに待ち構えています。まるで映画の主役に指名されたかのような、特別な空間がここには広がっています。この物件は、東京都中野区中央1-21-2に位置し、背後からそっと昇る朝日があなたを包み込みます。東向きの窓からは、柔らかな光が差し込むことで、室内がまるで美術館の一角のように優雅に彩られます。
ズーム中野坂上 309の専有面積は35.27㎡、1…ズーム中野坂上 309は、あなたの新しい生活の幕開けを静かに待ち構えています。まるで映画の主役に指名されたかのような、特別な空間がここには広がっています。この物件は、東京都中野区中央1-21-2に位置し、背後からそっと昇る朝日があなたを包み込みます。東向きの窓からは、柔らかな光が差し込むことで、室内がまるで美術館の一角のように優雅に彩られます。
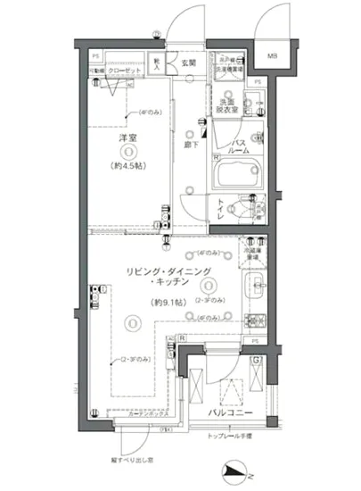
ズーム中野坂上 309の専有面積は35.27㎡、1LDKという贅沢な間取りです。ここでは、自分だけの世界を演出することができ、LDKは9.1帖、洋室は4.5帖のゆとりある空間が、あなたの感性を刺激してくれることでしょう。朝のコーヒーを静かに楽しむひととき、または、友人を招いた夕食会のひと時が、まるで映画のワンシーンのように、心に刻まれることでしょう。
エレベーターに身を任せる度に、ドアが開く瞬間に感じる心躍る期待感。オートロックが施されたこの物件は、安全とプライバシーを重んじながらも、あなたを特別な場所に導いてくれます。宅配ボックス、駐輪場、そして管理人の温かいサポートが、日々の生活を優雅に演出します。
ズーム中野坂上 309から駅まではたったの徒歩4分。東京メトロ丸ノ内線が、あなたを新たな冒険へと誘います。街の喧騒から一歩離れ、アートと文化が息づくこの地で、あなたは新たな発見をし、感性を豊かにする日々を過ごすことができるでしょう。
この高級賃貸物件での生活は、まるで詩的な物語のように展開します。素敵な友人とともにシャンパンの泡立ちを感じる夕暮れ、心地よい音楽が流れる中でのディナー、または、愛する人との静かな朝のひととき。すべての瞬間が、特別な思い出となり、あなたの人生を彩ることでしょう。
ズーム中野坂上 309は、あなたに夢を見させる場所、そして、現実にその夢を実現させる場所です。あなたの大切な毎日が、まるで詩のように美しく、そして感動的に展開することを、心より願っております。心に響く生活のハーモニーが、ここで実現されることでしょう。
ズーム中野坂上 309の専有面積は35.27㎡、1…ズーム中野坂上 309は、あなたの新しい生活の幕開けを静かに待ち構えています。まるで映画の主役に指名されたかのような、特別な空間がここには広がっています。この物件は、東京都中野区中央1-21-2に位置し、背後からそっと昇る朝日があなたを包み込みます。東向きの窓からは、柔らかな光が差し込むことで、室内がまるで美術館の一角のように優雅に彩られます。
ズーム中野坂上 309の専有面積は35.27㎡、1LDKという贅沢な間取りです。ここでは、自分だけの世界を演出することができ、LDKは9.1帖、洋室は4.5帖のゆとりある空間が、あなたの感性を刺激してくれることでしょう。朝のコーヒーを静かに楽しむひととき、または、友人を招いた夕食会のひと時が、まるで映画のワンシーンのように、心に刻まれることでしょう。
エレベーターに身を任せる度に、ドアが開く瞬間に感じる心躍る期待感。オートロックが施されたこの物件は、安全とプライバシーを重んじながらも、あなたを特別な場所に導いてくれます。宅配ボックス、駐輪場、そして管理人の温かいサポートが、日々の生活を優雅に演出します。
ズーム中野坂上 309から駅まではたったの徒歩4分。東京メトロ丸ノ内線が、あなたを新たな冒険へと誘います。街の喧騒から一歩離れ、アートと文化が息づくこの地で、あなたは新たな発見をし、感性を豊かにする日々を過ごすことができるでしょう。
この高級賃貸物件での生活は、まるで詩的な物語のように展開します。素敵な友人とともにシャンパンの泡立ちを感じる夕暮れ、心地よい音楽が流れる中でのディナー、または、愛する人との静かな朝のひととき。すべての瞬間が、特別な思い出となり、あなたの人生を彩ることでしょう。
ズーム中野坂上 309は、あなたに夢を見させる場所、そして、現実にその夢を実現させる場所です。あなたの大切な毎日が、まるで詩のように美しく、そして感動的に展開することを、心より願っております。心に響く生活のハーモニーが、ここで実現されることでしょう。
バイブルスコア
バイブルスコア: 26.5
平均的なスコアです。
※バイブルスコア詳細はこちら
バイブルスコアとは独自のAI機械学習技術を利用した物件評価システムで、物件のおすすめ度を示します。最高得点は100点で、スコアが高いほど、よりおすすめの物件と評価されています。
写真
現在写真が登録されていません契約条件
| 賃料 | 予想金額:142,000〜162,000円程度 | 管理費 | 予想金額:8,000〜12,000円程度 |
| 礼金 | 非公開(アーカイブ) | 敷金 | 非公開(アーカイブ) |
| フリーレント | なし | 平米数 | 35.27㎡ |
| 間取り | 1LDK | 大型収納 | |
| 契約期間 |
| 方角 | 東 |
| 更新料 | 契約形態 | 普通賃貸借契約 | |
| 取引態様 | 媒介 | 内見状況 | 入居中 |
| 入居時期 | 入居中 | SOHO・事務所 | |
| ペット | ペット可 | 間取り内訳 | 洋:4.5 LDK:9.1 |
| キャンペーン情報・備考 | 本情報は賃料改定交渉の資料作成、収益物件の利回り試算、周辺エリアや最寄り駅の坪単価分析、次回募集開始時期の予測などにご活用いただけます。 | ||
※「どの不動産に頼めばいいのか分からない」「信頼できる営業マンの話を聞きたい」「一番親切な会社と契約したい」とお悩みの方におすすめなのが「高級賃貸バイブル」です。
高級賃貸バイブルは業界10年以上の熟練スタッフ群がお客様ファーストで対応します。
下記ボタンから、まずは無料でご相談下さい。
※内覧をご希望の際には、どうぞ物件のエントランス前にてお待ち合わせくださいませ。ご内覧後は、同じ場所でお別れとさせていただきます。お客様のご都合に合わせたスムーズなご案内を心がけておりますので、ご質問等がございましたら何なりとお申し付けください。 物件概要
| 物件名 |
| 築年月 |
|
|---|---|---|---|
| 所在地 | |||
| 交通 | |||
| 総戸数 |
| 総階数 |
|
| 構造 |
| ||
地図
物件までの道のりは、「拡大地図を表示」をクリックしてナビ機能をご利用ください。
部屋設備












建物設備

TVモニターホン

エレベーター

オートロック

宅配ボックス

敷地内ゴミ置場

管理人

駐輪場
ズーム中野坂上の現在募集中のお部屋
- No rooms found for this property.
