
| 賃料 | 予想金額:100,000〜120,000円程度 | 管理費 | 予想金額:8,000〜12,000円程度 |
| 礼金/敷金 | 非公開(アーカイブ) | 平米数 | 25.95㎡ |
| 初期費用概算(参考) | 目安:331,500〜431,500 円 | みなし賃料(月額・参考) | 115,656〜135,656 円 |
| 備考 | 本ページは過去募集のアーカイブです。表示の金額は周辺相場・過去募集を踏まえた参考レンジであり、実際の契約金額・条件ではありません。 | ||
※上記みなし賃料(月額)は仲介手数料割引・無料&キャッシュバックを加味した高級賃貸バイブル限定の金額です。一般的なみなし賃料とは異なります。
【建物ページ】アーバネックス清澄白河2の詳細・最新空室はこちら▶▶選ばれる理由
仲介手数料無料・キャンペーン情報(毎月15名様限定)
〇仲介手数料割引キャンペーン
アーバネックス清澄白河2 W-703の口コミ・レビュー
アーバネックス清澄白河2 W-703。この響きは、まるで青空に舞い上がる風の whispers のように、あなたの心に新たな暮らしの物語を運んでくれます。7階に位置するこのお部屋は、下界の喧騒を見下ろしながら、静かな安らぎをもたらす特権を持っています。専有面積25.95㎡の中には、生活の豊かさと美しさが凝縮されており、まるで小さなアートギャラリーのように、あなたの個性とともに輝きを放ちます。
こ…アーバネックス清澄白河2 W-703。この響きは、まるで青空に舞い上がる風の whispers のように、あなたの心に新たな暮らしの物語を運んでくれます。7階に位置するこのお部屋は、下界の喧騒を見下ろしながら、静かな安らぎをもたらす特権を持っています。専有面積25.95㎡の中には、生活の豊かさと美しさが凝縮されており、まるで小さなアートギャラリーのように、あなたの個性とともに輝きを放ちます。
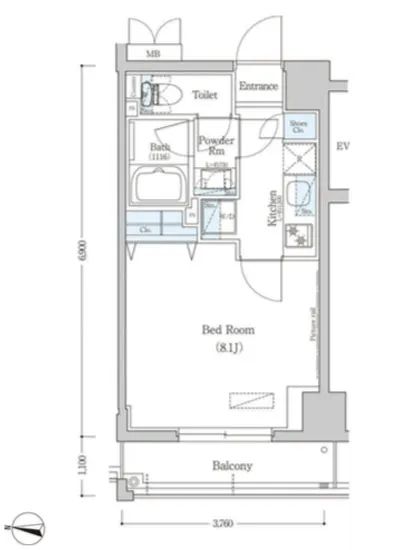
この素敵な空間の中心には、8.1帖の洋室が広がります。ここは、朝日が柔らかに差し込み、日々の目覚めを優しく迎えてくれるでしょう。心地よいカーテンが揺れ、自然の風が通り抜ける様子は、まるで風の精霊に包まれているような感覚を覚えます。夜には、窓から見える星たちが、まるであなたの夢を見守ってくれているかのよう。そんな空間で、コーヒーの香り漂う朝食を楽しむ瞬間は、思わず幸せな気持ちがこみ上げてくるでしょう。
アーバネックス清澄白河2 W-703には、現代的なデザインと機能性が見事に融合しています。オートロックやTVモニターホンが施され、安全で安心な生活を提供します。エレベーターに乗って7階に辿り着くたび、まるで自分だけの秘密の隠れ家に帰るような気持ちになります。宅配ボックスや駐車場も完備しており、利便性も申し分ありません。あなただけの快適な生活をささえることを、アーバネックス清澄白河2 W-703は約束してくれているのです。
周辺には、歴史と文化が息づくエリアが広がっています。東京メトロ半蔵門線清澄白河駅から徒歩2分という立地は、都会の喧騒から逃れ、穏やかな川の流れを見つめることができる贅沢な環境です。この地には、美術館やギャラリーが散りばめられ、アート好きにはたまらない散策コースが広がっています。しっとりとした秋の午後に、こだわりのカフェで一杯のコーヒーを楽しんだり、静かな公園で本を開く瞬間は、まるで映画のワンシーンのよう。アーバネックス清澄白河2 W-703の住人として、そんな日常の美しさを享受できることは、何よりの幸せです。
あなたがこの空間に身を委ねることで、アーバネックス清澄白河2 W-703は、ただの物件以上の存在に昇華します。それは、あなたの生活そのものが、まるで一つの芸術作品のように独自の彩りを持つことを意味しています。人生の物語を紡ぐ舞台として、ここで新しい章を始めてみませんか。あなたの特別な場所、アーバネックス清澄白河2 W-703が、待っています。
こ…アーバネックス清澄白河2 W-703。この響きは、まるで青空に舞い上がる風の whispers のように、あなたの心に新たな暮らしの物語を運んでくれます。7階に位置するこのお部屋は、下界の喧騒を見下ろしながら、静かな安らぎをもたらす特権を持っています。専有面積25.95㎡の中には、生活の豊かさと美しさが凝縮されており、まるで小さなアートギャラリーのように、あなたの個性とともに輝きを放ちます。
この素敵な空間の中心には、8.1帖の洋室が広がります。ここは、朝日が柔らかに差し込み、日々の目覚めを優しく迎えてくれるでしょう。心地よいカーテンが揺れ、自然の風が通り抜ける様子は、まるで風の精霊に包まれているような感覚を覚えます。夜には、窓から見える星たちが、まるであなたの夢を見守ってくれているかのよう。そんな空間で、コーヒーの香り漂う朝食を楽しむ瞬間は、思わず幸せな気持ちがこみ上げてくるでしょう。
アーバネックス清澄白河2 W-703には、現代的なデザインと機能性が見事に融合しています。オートロックやTVモニターホンが施され、安全で安心な生活を提供します。エレベーターに乗って7階に辿り着くたび、まるで自分だけの秘密の隠れ家に帰るような気持ちになります。宅配ボックスや駐車場も完備しており、利便性も申し分ありません。あなただけの快適な生活をささえることを、アーバネックス清澄白河2 W-703は約束してくれているのです。
周辺には、歴史と文化が息づくエリアが広がっています。東京メトロ半蔵門線清澄白河駅から徒歩2分という立地は、都会の喧騒から逃れ、穏やかな川の流れを見つめることができる贅沢な環境です。この地には、美術館やギャラリーが散りばめられ、アート好きにはたまらない散策コースが広がっています。しっとりとした秋の午後に、こだわりのカフェで一杯のコーヒーを楽しんだり、静かな公園で本を開く瞬間は、まるで映画のワンシーンのよう。アーバネックス清澄白河2 W-703の住人として、そんな日常の美しさを享受できることは、何よりの幸せです。
あなたがこの空間に身を委ねることで、アーバネックス清澄白河2 W-703は、ただの物件以上の存在に昇華します。それは、あなたの生活そのものが、まるで一つの芸術作品のように独自の彩りを持つことを意味しています。人生の物語を紡ぐ舞台として、ここで新しい章を始めてみませんか。あなたの特別な場所、アーバネックス清澄白河2 W-703が、待っています。
バイブルスコア
バイブルスコア: 32.7
平均的なスコアです。
※バイブルスコア詳細はこちら
バイブルスコアとは独自のAI機械学習技術を利用した物件評価システムで、物件のおすすめ度を示します。最高得点は100点で、スコアが高いほど、よりおすすめの物件と評価されています。
写真
契約条件
| 賃料 | 予想金額:100,000〜120,000円程度 | 管理費 | 予想金額:8,000〜12,000円程度 |
| 礼金 | 非公開(アーカイブ) | 敷金 | 非公開(アーカイブ) |
| フリーレント | なし | 平米数 | 25.95㎡ |
| 間取り | 1K | 大型収納 | |
| 契約期間 |
| 方角 | 西 |
| 更新料 | 契約形態 | 普通賃貸借契約 | |
| 取引態様 | 媒介 | 内見状況 | 入居中 |
| 入居時期 | 入居中 | SOHO・事務所 | |
| ペット | 間取り内訳 | 洋:8.1 | |
| キャンペーン情報・備考 | 本情報は賃料改定交渉の資料作成、収益物件の利回り試算、周辺エリアや最寄り駅の坪単価分析、次回募集開始時期の予測などにご活用いただけます。 | ||
※「どの不動産に頼めばいいのか分からない」「信頼できる営業マンの話を聞きたい」「一番親切な会社と契約したい」とお悩みの方におすすめなのが「高級賃貸バイブル」です。
高級賃貸バイブルは業界10年以上の熟練スタッフ群がお客様ファーストで対応します。
下記ボタンから、まずは無料でご相談下さい。
※内覧をご希望の際には、どうぞ物件のエントランス前にてお待ち合わせくださいませ。ご内覧後は、同じ場所でお別れとさせていただきます。お客様のご都合に合わせたスムーズなご案内を心がけておりますので、ご質問等がございましたら何なりとお申し付けください。 物件概要
| 物件名 |
| 築年月 |
|
|---|---|---|---|
| 所在地 | |||
| 交通 | |||
| 総戸数 |
| 総階数 |
|
| 構造 |
| ||
地図
物件までの道のりは、「拡大地図を表示」をクリックしてナビ機能をご利用ください。
部屋設備













建物設備

TVモニターホン

エレベーター

オートロック

バイク置場

宅配ボックス

敷地内ゴミ置場

管理人

駐車場平置き

駐車場機械式

駐輪場
アーバネックス清澄白河2の現在募集中のお部屋
- No rooms found for this property.




























