
| 賃料 | 予想金額:112,000〜132,000円程度 | 管理費 | 予想金額:13,000〜17,000円程度 |
| 礼金/敷金 | 非公開(アーカイブ) | 平米数 | 25.79㎡ |
| 初期費用概算(参考) | 目安:167,600〜267,600 円 | みなし賃料(月額・参考) | 128,992〜148,992 円 |
| 備考 | 本ページは過去募集のアーカイブです。表示の金額は周辺相場・過去募集を踏まえた参考レンジであり、実際の契約金額・条件ではありません。 | ||
※上記みなし賃料(月額)は仲介手数料割引・無料&キャッシュバックを加味した高級賃貸バイブル限定の金額です。一般的なみなし賃料とは異なります。
【建物ページ】ルネサンスコート祐天寺の詳細・最新空室はこちら▶▶選ばれる理由
仲介手数料無料・キャンペーン情報(毎月15名様限定)
〇引っ越しお祝い金24400円プレゼント(キャッシュバック)
〇仲介手数料無料キャンペーン
ルネサンスコート祐天寺 404の口コミ・レビュー
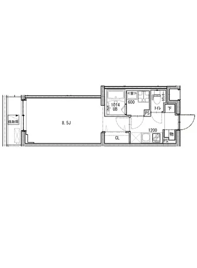
ルネサンスコート祐天寺 404は、まるで一篇の詩のように人々の生活に彩りを添える、洗練された空間でございます。最上階に佇むこの404号室は、広々とした洋室8.5帖を備えた1Kの間取りを誇り、都心の喧騒を少し離れた場所に位置する恵まれた環境で、あなたを包み込みます。その専有面積25.79㎡は、まさに緻密に設計されたアート作品のように、生活を豊かにするための工夫が施されており、空間が持つ力を十分に感じ…ルネサンスコート祐天寺 404は、まるで一篇の詩のように人々の生活に彩りを添える、洗練された空間でございます。最上階に佇むこの404号室は、広々とした洋室8.5帖を備えた1Kの間取りを誇り、都心の喧騒を少し離れた場所に位置する恵まれた環境で、あなたを包み込みます。その専有面積25.79㎡は、まさに緻密に設計されたアート作品のように、生活を豊かにするための工夫が施されており、空間が持つ力を十分に感じられることでしょう。
南西向きの窓から差し込む陽射しは、朝の清々しい光から午後の穏やかな光へと移り変わり、時間とともに変化する室内の様相を楽しむことができます。心地よい日差しの中で、コーヒーの芳香が漂う空間で朝の贅沢なひとときを過ごし、窓を開ければ、外から聞こえる緑の葉の囁きが耳に心地よく響き渡ります。まるで、風があなたのために特別なメロディを奏でているかのようです。
ルネサンスコート祐天寺 404には、生活に必要な設備が整っており、TVモニターホンやオートロックといったセキュリティも万全です。便利で快適な生活を支えるエレベーターや宅配ボックスが備えられているため、日常の小さなストレスから解放され、もっと大切なことに時間を使うことができます。また、バイク置場や駐輪場も完備されており、自由な移動をサポートします。
周囲を見渡せば、歴史ある街並みと現代的な文化が交錯する世田谷区下馬の魅力が広がっています。この地は、アートや文学の息吹が感じられ、街を歩けば昔ながらの喫茶店やギャラリーがあなたを待っています。祐天寺駅から徒歩9分の距離に位置するルネサンスコート祐天寺 404は、忙しい毎日の中に静かなオアシスを提供し、心を豊かにする生活を演出します。
夕刻、街が夕焼けに染まる頃、ルネサンスコート祐天寺 404の洋室8.5帖に差し込むオレンジ色の光は、あなたの一日の疲れを癒すかのように優しく包み込みます。この空間で、読書のページをめくる音や、音楽が奏でるメロディに耳を傾けながら、心が満たされる瞬間を感じることができるでしょう。
この特別な場所、ルネサンスコート祐天寺 404は、ただ住むための空間ではなく、心豊かな生活の舞台を提供します。人生の物語を紡いでいく中で、この物件があなたにとっての特別な存在となることを願ってやみません。あなたの新たな生活が、まるで美しい映画のワンシーンのように始まることを心よりお祈り申し上げます。
南西向きの窓から差し込む陽射しは、朝の清々しい光から午後の穏やかな光へと移り変わり、時間とともに変化する室内の様相を楽しむことができます。心地よい日差しの中で、コーヒーの芳香が漂う空間で朝の贅沢なひとときを過ごし、窓を開ければ、外から聞こえる緑の葉の囁きが耳に心地よく響き渡ります。まるで、風があなたのために特別なメロディを奏でているかのようです。
ルネサンスコート祐天寺 404には、生活に必要な設備が整っており、TVモニターホンやオートロックといったセキュリティも万全です。便利で快適な生活を支えるエレベーターや宅配ボックスが備えられているため、日常の小さなストレスから解放され、もっと大切なことに時間を使うことができます。また、バイク置場や駐輪場も完備されており、自由な移動をサポートします。
周囲を見渡せば、歴史ある街並みと現代的な文化が交錯する世田谷区下馬の魅力が広がっています。この地は、アートや文学の息吹が感じられ、街を歩けば昔ながらの喫茶店やギャラリーがあなたを待っています。祐天寺駅から徒歩9分の距離に位置するルネサンスコート祐天寺 404は、忙しい毎日の中に静かなオアシスを提供し、心を豊かにする生活を演出します。
夕刻、街が夕焼けに染まる頃、ルネサンスコート祐天寺 404の洋室8.5帖に差し込むオレンジ色の光は、あなたの一日の疲れを癒すかのように優しく包み込みます。この空間で、読書のページをめくる音や、音楽が奏でるメロディに耳を傾けながら、心が満たされる瞬間を感じることができるでしょう。
この特別な場所、ルネサンスコート祐天寺 404は、ただ住むための空間ではなく、心豊かな生活の舞台を提供します。人生の物語を紡いでいく中で、この物件があなたにとっての特別な存在となることを願ってやみません。あなたの新たな生活が、まるで美しい映画のワンシーンのように始まることを心よりお祈り申し上げます。
バイブルスコア
バイブルスコア: 44.9
条件のいい物件です、引っ越しが2か月以内の場合は仮申し込みを検討すべき物件です。
※バイブルスコア詳細はこちら
バイブルスコアとは独自のAI機械学習技術を利用した物件評価システムで、物件のおすすめ度を示します。最高得点は100点で、スコアが高いほど、よりおすすめの物件と評価されています。
写真
現在写真が登録されていません契約条件
| 賃料 | 予想金額:112,000〜132,000円程度 | 管理費 | 予想金額:13,000〜17,000円程度 |
| 礼金 | 非公開(アーカイブ) | 敷金 | 非公開(アーカイブ) |
| フリーレント | なし | 平米数 | 25.79㎡ |
| 間取り | 1K | 大型収納 | なし |
| 契約期間 | 2年 | 方角 | 南西 |
| 更新料 | 1ヶ月 | 契約形態 | 普通賃貸借契約 |
| 取引態様 | 媒介 | 内見状況 | 入居中 |
| 入居時期 | 入居中 | SOHO・事務所 | 不可 |
| ペット | 可 小型犬、猫可(敷金積み増し) | 間取り内訳 | 洋室8.5帖 |
| キャンペーン情報・備考 | 本情報は賃料改定交渉の資料作成、収益物件の利回り試算、周辺エリアや最寄り駅の坪単価分析、次回募集開始時期の予測などにご活用いただけます。 | ||
※「どの不動産に頼めばいいのか分からない」「信頼できる営業マンの話を聞きたい」「一番親切な会社と契約したい」とお悩みの方におすすめなのが「高級賃貸バイブル」です。
高級賃貸バイブルは業界10年以上の熟練スタッフ群がお客様ファーストで対応します。
下記ボタンから、まずは無料でご相談下さい。
※内覧をご希望の際には、どうぞ物件のエントランス前にてお待ち合わせくださいませ。ご内覧後は、同じ場所でお別れとさせていただきます。お客様のご都合に合わせたスムーズなご案内を心がけておりますので、ご質問等がございましたら何なりとお申し付けください。 物件概要
地図
物件までの道のりは、「拡大地図を表示」をクリックしてナビ機能をご利用ください。
部屋設備









建物設備

TVモニターホン

エレベーター

オートロック

バイク置場

宅配ボックス

敷地内ゴミ置場

管理人

駐車場平置き

駐輪場
ルネサンスコート祐天寺の現在募集中のお部屋
- No rooms found for this property.
