
| 賃料 | 予想金額:110,000〜130,000円程度 | 管理費 | 予想金額:13,000〜17,000円程度 |
| 礼金/敷金 | 非公開(アーカイブ) | 平米数 | 25.83㎡ |
| 初期費用概算(参考) | 目安:0〜97,000 円 | みなし賃料(月額・参考) | 125,979〜145,979 円 |
| 備考 | 本ページは過去募集のアーカイブです。表示の金額は周辺相場・過去募集を踏まえた参考レンジであり、実際の契約金額・条件ではありません。 | ||
※上記みなし賃料(月額)は仲介手数料割引・無料&キャッシュバックを加味した高級賃貸バイブル限定の金額です。一般的なみなし賃料とは異なります。
【建物ページ】ルネサンスコート祐天寺の詳細・最新空室はこちら▶▶選ばれる理由
仲介手数料無料・キャンペーン情報(毎月15名様限定)
〇引っ越しお祝い金72000円プレゼント(キャッシュバック)
〇フリーレント1か月キャンペーン
〇仲介手数料無料キャンペーン
ルネサンスコート祐天寺 103の口コミ・レビュー
ルネサンスコート祐天寺 103は、まるで静かな西風に包まれた小道の奥に佇む詩的な建…「ルネサンスコート祐天寺 103」。ここは、まるで都会の喧騒から逃れた隠れ家のような存在です。東京都世田谷区下馬1-7-4に位置するこの住まいは、あなたの日常に色を添え、心に安らぎをもたらす一室です。専有面積25.83㎡のこの空間は、一見コンパクトに思えるかもしれませんが、そこには驚くべき広がりが待っております。
ルネサンスコート祐天寺 103は、まるで静かな西風に包まれた小道の奥に佇む詩的な建物です。ふと、ドアを開けると、心を満たす光が差し込み、木の温もりと共に迎えてくれます。4.3帖の洋室は、心地よい色合いで包まれ、どんなインテリアにもフィットすることでしょう。窓を開ければ、優雅に流れる風と共に、近くのカフェから漂うコーヒーの香ばしい香りが、あなたの五感を刺激します。
続いて、4.7帖のダイニングキッチンに足を踏み入れれば、料理の手間を楽しむような魔法の時間が始まります。フライパンでジュウジュウと焼かれる食材の音が響き、湯気が立ち上る中で、まるで美味しい映画のワンシーンが展開されるかのような瞬間を感じることができるでしょう。ここでは、友人や家族と共に過ごすひとときが、何よりのご馳走となります。
ルネサンスコート祐天寺 103には、安心をもたらすオートロックや宅配ボックスといった設備が整っており、生活の利便性を高めています。管理人の優しい笑顔が、まるで家族のようにこの場所の温かさを演出してくれます。低層であるため、まるで隠れ家のような親密感を保ちながら、心の安らぎを与えてくれることでしょう。
また、周囲には歴史と文化が息づく街並みが広がっています。東京急行電鉄東急東横線の祐天寺駅からのアクセスも良好で、徒歩9分の距離。ここからは、世田谷の魅力を探索する冒険が始まります。街の喧騒を離れ、ふと立ち寄った小さなアートギャラリーや独特のショップが、あなたの心を躍らせることでしょう。まるで一つ一つの出会いが、映画のストーリーを編むように、豊かな人生が描かれていきます。
ルネサンスコート祐天寺 103は、生活の舞台として、あなたが描く夢の一部となります。この特別な空間で、日々の暮らしを映画のような美しさで彩ってみませんか。新しい物語の始まりが、あなたを待っています。人生の素晴らしい瞬間を、ここルネサンスコート祐天寺 103で共に感じてみましょう。
バイブルスコア
バイブルスコア: 64.1
かなり条件の良い物件です、即仮押さえをおすすめする物件です!
このお部屋は、現在ご入居中のため空室情報はございません。ただし、将来的に募集が開始される際、バイブルスコアにおいて非常に高い評価が期待されます。特にご興味をお持ちの方は、今のうちにブックマークやお気に入りに登録していただくと、募集開始のお知らせをすぐに受け取ることができます。是非ともご検討くださいませ。
※バイブルスコア詳細はこちら
バイブルスコアとは独自のAI機械学習技術を利用した物件評価システムで、物件のおすすめ度を示します。最高得点は100点で、スコアが高いほど、よりおすすめの物件と評価されています。
写真
現在写真が登録されていません契約条件
| 賃料 | 予想金額:110,000〜130,000円程度 | 管理費 | 予想金額:13,000〜17,000円程度 |
| 礼金 | 非公開(アーカイブ) | 敷金 | 非公開(アーカイブ) |
| フリーレント | 1.0ヶ月 | 平米数 | 25.83㎡ |
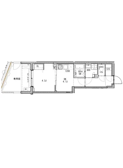
| 間取り | 1DK | 大型収納 | SIC |
| 契約期間 |
| 方角 | 西 |
| 更新料 | 契約形態 | 普通賃貸借契約 | |
| 取引態様 | 媒介 | 内見状況 | 入居中 |
| 入居時期 | 入居中 | SOHO・事務所 | |
| ペット | ペット可 | 間取り内訳 | 洋:4.3 DK:4.7 |
| キャンペーン情報・備考 | 本情報は賃料改定交渉の資料作成、収益物件の利回り試算、周辺エリアや最寄り駅の坪単価分析、次回募集開始時期の予測などにご活用いただけます。 | ||
※「どの不動産に頼めばいいのか分からない」「信頼できる営業マンの話を聞きたい」「一番親切な会社と契約したい」とお悩みの方におすすめなのが「高級賃貸バイブル」です。
高級賃貸バイブルは業界10年以上の熟練スタッフ群がお客様ファーストで対応します。
下記ボタンから、まずは無料でご相談下さい。
※内覧をご希望の際には、どうぞ物件のエントランス前にてお待ち合わせくださいませ。ご内覧後は、同じ場所でお別れとさせていただきます。お客様のご都合に合わせたスムーズなご案内を心がけておりますので、ご質問等がございましたら何なりとお申し付けください。 物件概要
地図
物件までの道のりは、「拡大地図を表示」をクリックしてナビ機能をご利用ください。
部屋設備













建物設備

TVモニターホン

エレベーター

オートロック

バイク置場

宅配ボックス

敷地内ゴミ置場

管理人

駐車場平置き

駐輪場
ルネサンスコート祐天寺の現在募集中のお部屋
- No rooms found for this property.
