
| 賃料 | 予想金額:112,000〜132,000円程度 | 管理費 | 予想金額:13,000〜17,000円程度 |
| 礼金/敷金 | 非公開(アーカイブ) | 平米数 | 25.83㎡ |
| 初期費用概算(参考) | 目安:125,000〜225,000 円 | みなし賃料(月額・参考) | 130,646〜150,646 円 |
| 備考 | 本ページは過去募集のアーカイブです。表示の金額は周辺相場・過去募集を踏まえた参考レンジであり、実際の契約金額・条件ではありません。 | ||
※上記みなし賃料(月額)は仲介手数料割引・無料&キャッシュバックを加味した高級賃貸バイブル限定の金額です。一般的なみなし賃料とは異なります。
【建物ページ】ルネサンスコート祐天寺の詳細・最新空室はこちら▶▶選ばれる理由
仲介手数料無料・キャンペーン情報(毎月15名様限定)
〇フリーレント2か月キャンペーン
ルネサンスコート祐天寺 206の口コミ・レビュー
ルネサンスコート祐天寺 206。ここはただの住まいではなく、日々の生活に華やかな音楽を奏でる舞台でございます。一歩足を踏み入れるたびに、空間が物語を紡ぎ始めるのが感じられます。この物件は、東京都世田谷区下馬1-7-4に広がり、緑と歴史が織りなす静寂の中での暮らしを提供します。
まず目を引くのが、その魅力的な立地です。西向きの窓からは、夕暮れ時に柔らかなオレンジ色の光が差し込む様子が眩いのです。ま…ルネサンスコート祐天寺 206。ここはただの住まいではなく、日々の生活に華やかな音楽を奏でる舞台でございます。一歩足を踏み入れるたびに、空間が物語を紡ぎ始めるのが感じられます。この物件は、東京都世田谷区下馬1-7-4に広がり、緑と歴史が織りなす静寂の中での暮らしを提供します。
まず目を引くのが、その魅力的な立地です。西向きの窓からは、夕暮れ時に柔らかなオレンジ色の光が差し込む様子が眩いのです。まるで一日の終わりを祝う頬染めのように、住まう人の心を癒してくれるでしょう。ルネサンスコート祐天寺 206での毎日は、まるで映画のワンシーンのようで、あなたは主人公としてこの画面に立ち尽くします。
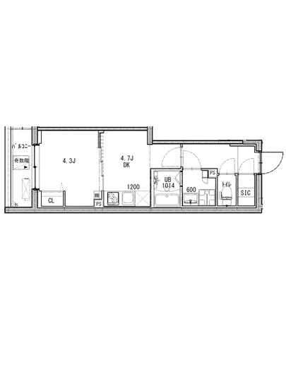
さて、間取りは1DKという心地よいサイズ感。洋室は4.3帖、DKは4.7帖。広すぎず、狭すぎず、ちょうど良いバランスを保ちながら、あなたのライフスタイルを豊かに彩ります。親しい友人を招いて、暖かな料理の香りが漂う中、心地よい会話を交わす光景が目に浮かびます。自分だけの小さなパーティを開いたり、アートや生活雑貨で自分だけの空間を演出したり、思いのままに過ごすことができるのです。
ルネサンスコート祐天寺 206の中には、洗練された設備も備わっています。TVモニターホンの温もりある音色が、訪問者をやさしく迎え入れ、オートロックの安心感があなたを守る盾となります。しかも、エレベーターでの移動はまるで舞踏会の途中、優雅に次のフロアへと移るかのようです。駐輪場やバイク置場も完備され、自由な移動を可能にします。
周囲の歴史や文化も、この物件の魅力を一層引き立てます。祐天寺の名は、はるか昔から堅固な安らぎの象徴として人々に愛されてきました。そのため、住まうあなたもその営みの中に身を置くことで、より深い充実感を味わうことができるでしょう。少し歩けば、歴史的な面影を残す街並みや、地元のアートギャラリーが現れ、あなたの感性を刺激します。
最後に、ルネサンスコート祐天寺 206での生活は、舌鼓を打つ美味しい食事や深呼吸するような静寂が広がる瞬間の連続です。この空間に身を委ねることで、あなたの日常が特別なものへと変わります。心地よい風の音や、シンプルで純粋な日々の中で自分らしさを見つけていく旅。ルネサンスコート祐天寺 206が、あなたの新しい物語の幕開けを待っています。
まず目を引くのが、その魅力的な立地です。西向きの窓からは、夕暮れ時に柔らかなオレンジ色の光が差し込む様子が眩いのです。ま…ルネサンスコート祐天寺 206。ここはただの住まいではなく、日々の生活に華やかな音楽を奏でる舞台でございます。一歩足を踏み入れるたびに、空間が物語を紡ぎ始めるのが感じられます。この物件は、東京都世田谷区下馬1-7-4に広がり、緑と歴史が織りなす静寂の中での暮らしを提供します。
まず目を引くのが、その魅力的な立地です。西向きの窓からは、夕暮れ時に柔らかなオレンジ色の光が差し込む様子が眩いのです。まるで一日の終わりを祝う頬染めのように、住まう人の心を癒してくれるでしょう。ルネサンスコート祐天寺 206での毎日は、まるで映画のワンシーンのようで、あなたは主人公としてこの画面に立ち尽くします。
さて、間取りは1DKという心地よいサイズ感。洋室は4.3帖、DKは4.7帖。広すぎず、狭すぎず、ちょうど良いバランスを保ちながら、あなたのライフスタイルを豊かに彩ります。親しい友人を招いて、暖かな料理の香りが漂う中、心地よい会話を交わす光景が目に浮かびます。自分だけの小さなパーティを開いたり、アートや生活雑貨で自分だけの空間を演出したり、思いのままに過ごすことができるのです。
ルネサンスコート祐天寺 206の中には、洗練された設備も備わっています。TVモニターホンの温もりある音色が、訪問者をやさしく迎え入れ、オートロックの安心感があなたを守る盾となります。しかも、エレベーターでの移動はまるで舞踏会の途中、優雅に次のフロアへと移るかのようです。駐輪場やバイク置場も完備され、自由な移動を可能にします。
周囲の歴史や文化も、この物件の魅力を一層引き立てます。祐天寺の名は、はるか昔から堅固な安らぎの象徴として人々に愛されてきました。そのため、住まうあなたもその営みの中に身を置くことで、より深い充実感を味わうことができるでしょう。少し歩けば、歴史的な面影を残す街並みや、地元のアートギャラリーが現れ、あなたの感性を刺激します。
最後に、ルネサンスコート祐天寺 206での生活は、舌鼓を打つ美味しい食事や深呼吸するような静寂が広がる瞬間の連続です。この空間に身を委ねることで、あなたの日常が特別なものへと変わります。心地よい風の音や、シンプルで純粋な日々の中で自分らしさを見つけていく旅。ルネサンスコート祐天寺 206が、あなたの新しい物語の幕開けを待っています。
バイブルスコア
バイブルスコア: 28.1
平均的なスコアです。
※バイブルスコア詳細はこちら
バイブルスコアとは独自のAI機械学習技術を利用した物件評価システムで、物件のおすすめ度を示します。最高得点は100点で、スコアが高いほど、よりおすすめの物件と評価されています。
写真
現在写真が登録されていません契約条件
| 賃料 | 予想金額:112,000〜132,000円程度 | 管理費 | 予想金額:13,000〜17,000円程度 |
| 礼金 | 非公開(アーカイブ) | 敷金 | 非公開(アーカイブ) |
| フリーレント | 2.0ヶ月 | 平米数 | 25.83㎡ |
| 間取り | 1DK | 大型収納 | SIC |
| 契約期間 |
| 方角 | 西 |
| 更新料 | 契約形態 | 普通賃貸借契約 | |
| 取引態様 | 媒介 | 内見状況 | 入居中 |
| 入居時期 | 入居中 | SOHO・事務所 | |
| ペット | ペット可 | 間取り内訳 | 洋:4.3 DK:4.7 |
| キャンペーン情報・備考 | 本情報は賃料改定交渉の資料作成、収益物件の利回り試算、周辺エリアや最寄り駅の坪単価分析、次回募集開始時期の予測などにご活用いただけます。 | ||
※「どの不動産に頼めばいいのか分からない」「信頼できる営業マンの話を聞きたい」「一番親切な会社と契約したい」とお悩みの方におすすめなのが「高級賃貸バイブル」です。
高級賃貸バイブルは業界10年以上の熟練スタッフ群がお客様ファーストで対応します。
下記ボタンから、まずは無料でご相談下さい。
※内覧をご希望の際には、どうぞ物件のエントランス前にてお待ち合わせくださいませ。ご内覧後は、同じ場所でお別れとさせていただきます。お客様のご都合に合わせたスムーズなご案内を心がけておりますので、ご質問等がございましたら何なりとお申し付けください。 物件概要
地図
物件までの道のりは、「拡大地図を表示」をクリックしてナビ機能をご利用ください。
部屋設備












建物設備

TVモニターホン

エレベーター

オートロック

バイク置場

宅配ボックス

敷地内ゴミ置場

管理人

駐車場平置き

駐輪場
ルネサンスコート祐天寺の現在募集中のお部屋
- No rooms found for this property.
