
| 賃料 | 予想金額:129,000〜149,000円程度 | 管理費 | 予想金額:13,000〜17,000円程度 |
| 礼金/敷金 | 非公開(アーカイブ) | 平米数 | 26.9㎡ |
| 初期費用概算(参考) | 目安:550,500〜650,500 円 | みなし賃料(月額・参考) | 153,615〜173,615 円 |
| 備考 | 本ページは過去募集のアーカイブです。表示の金額は周辺相場・過去募集を踏まえた参考レンジであり、実際の契約金額・条件ではありません。 | ||
※上記みなし賃料(月額)は仲介手数料割引・無料&キャッシュバックを加味した高級賃貸バイブル限定の金額です。一般的なみなし賃料とは異なります。
【建物ページ】HIROO VILLAGEの詳細・最新空室はこちら▶▶選ばれる理由
仲介手数料無料・キャンペーン情報(毎月15名様限定)
〇仲介手数料割引キャンペーン
HIROO VILLAGE 403の口コミ・レビュー
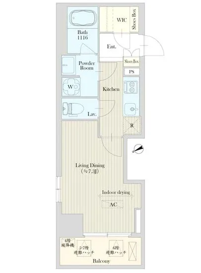
HIROO VILLAGE 403。それはただの住所ではなく、あなたが新たな人生の幕を開ける舞台、心に響く物語の始まりです。この特別な空間は、地上4階に位置し、26.9㎡の贅沢な広がりを持つ1Kの住まいであり、あなたの感性を刺激する数々の魅力に満ちています。
HIROO VILLAGE 403のドアを開けた瞬間、空気中に漂う心地よい香りがあなたを包み込みます。新しい生活の扉を開くと、洗練されたデ…HIROO VILLAGE 403。それはただの住所ではなく、あなたが新たな人生の幕を開ける舞台、心に響く物語の始まりです。この特別な空間は、地上4階に位置し、26.9㎡の贅沢な広がりを持つ1Kの住まいであり、あなたの感性を刺激する数々の魅力に満ちています。
HIROO VILLAGE 403のドアを開けた瞬間、空気中に漂う心地よい香りがあなたを包み込みます。新しい生活の扉を開くと、洗練されたデザインと温もりを感じるインテリアが迎え入れてくれます。洋室7.3帖の空間は、まるで優しい光が注ぐ舞台のように、あなたの心の瞬間を鮮やかに映し出します。窓から差し込む北西の光は、時間と共に変わる色彩を楽しませてくれ、日々の生活がまるで映画のワンシーンのように、幻想的なひとときをもたらしてくれるのです。
このマンションは、ただの住まいではなく、あなたの新しい人生の構想を描くキャンバスです。エレベーターで軽やかに上がると、重厚感漂うエントランスが出迎えてくれ、オートロックの安心感が、プライベートな生活を完璧に守ります。宅配ボックスもまた、忙しい日々に寄り添い、大切な品物がいつでも手元に届く便利さを提供します。
HIROO VILLAGE 403の周囲には、歴史的な風景と文化の香りが漂います。東京メトロ日比谷線の広尾駅まで徒歩5分の距離にあるため、都市の喧騒から離れながらも、便利な交通アクセスを享受できます。このエリアは、豊かな文化やアートが息づく場所で、日々の生活の中で美しい刺激を受けることができるのです。近隣には洗練されたカフェやショップが立ち並び、毎朝の目覚めがまるで特別な日々のプロローグのように感じられることでしょう。
住む人に優しく語りかけるHIROO VILLAGE 403は、毎日の疲れを癒し、新たなインスピレーションを生み出します。日常のどんな瞬間も、ここでは特別な意味を持つのです。夕暮れ時、窓から眺める街の風景、静寂の中に響く心地よい風の音、すべてがあなたの心に刻まれる特別な体験となります。
HIROO VILLAGE 403は、あなたの人生の新たなページを開く場所です。ここでの生活は、ただの毎日ではなく、心に残るストーリーとなることでしょう。どうぞこの素晴らしいマンションで、あなたの人生をより豊かにする冒険の第一歩を踏み出してみてはいかがでしょうか。あなたをここでお待ちしております。
HIROO VILLAGE 403のドアを開けた瞬間、空気中に漂う心地よい香りがあなたを包み込みます。新しい生活の扉を開くと、洗練されたデ…HIROO VILLAGE 403。それはただの住所ではなく、あなたが新たな人生の幕を開ける舞台、心に響く物語の始まりです。この特別な空間は、地上4階に位置し、26.9㎡の贅沢な広がりを持つ1Kの住まいであり、あなたの感性を刺激する数々の魅力に満ちています。
HIROO VILLAGE 403のドアを開けた瞬間、空気中に漂う心地よい香りがあなたを包み込みます。新しい生活の扉を開くと、洗練されたデザインと温もりを感じるインテリアが迎え入れてくれます。洋室7.3帖の空間は、まるで優しい光が注ぐ舞台のように、あなたの心の瞬間を鮮やかに映し出します。窓から差し込む北西の光は、時間と共に変わる色彩を楽しませてくれ、日々の生活がまるで映画のワンシーンのように、幻想的なひとときをもたらしてくれるのです。
このマンションは、ただの住まいではなく、あなたの新しい人生の構想を描くキャンバスです。エレベーターで軽やかに上がると、重厚感漂うエントランスが出迎えてくれ、オートロックの安心感が、プライベートな生活を完璧に守ります。宅配ボックスもまた、忙しい日々に寄り添い、大切な品物がいつでも手元に届く便利さを提供します。
HIROO VILLAGE 403の周囲には、歴史的な風景と文化の香りが漂います。東京メトロ日比谷線の広尾駅まで徒歩5分の距離にあるため、都市の喧騒から離れながらも、便利な交通アクセスを享受できます。このエリアは、豊かな文化やアートが息づく場所で、日々の生活の中で美しい刺激を受けることができるのです。近隣には洗練されたカフェやショップが立ち並び、毎朝の目覚めがまるで特別な日々のプロローグのように感じられることでしょう。
住む人に優しく語りかけるHIROO VILLAGE 403は、毎日の疲れを癒し、新たなインスピレーションを生み出します。日常のどんな瞬間も、ここでは特別な意味を持つのです。夕暮れ時、窓から眺める街の風景、静寂の中に響く心地よい風の音、すべてがあなたの心に刻まれる特別な体験となります。
HIROO VILLAGE 403は、あなたの人生の新たなページを開く場所です。ここでの生活は、ただの毎日ではなく、心に残るストーリーとなることでしょう。どうぞこの素晴らしいマンションで、あなたの人生をより豊かにする冒険の第一歩を踏み出してみてはいかがでしょうか。あなたをここでお待ちしております。
バイブルスコア
バイブルスコア: 28.1
平均的なスコアです。
※バイブルスコア詳細はこちら
バイブルスコアとは独自のAI機械学習技術を利用した物件評価システムで、物件のおすすめ度を示します。最高得点は100点で、スコアが高いほど、よりおすすめの物件と評価されています。
写真
契約条件
| 賃料 | 予想金額:129,000〜149,000円程度 | 管理費 | 予想金額:13,000〜17,000円程度 |
| 礼金 | 非公開(アーカイブ) | 敷金 | 非公開(アーカイブ) |
| フリーレント | なし | 平米数 | 26.9㎡ |
| 間取り | 1K | 大型収納 | WIC |
| 契約期間 |
| 方角 | 北西 |
| 更新料 | 契約形態 | 普通賃貸借契約 | |
| 取引態様 | 媒介 | 内見状況 | 入居中 |
| 入居時期 | 入居中 | SOHO・事務所 | |
| ペット | 間取り内訳 | 洋:7.3 | |
| キャンペーン情報・備考 | 本情報は賃料改定交渉の資料作成、収益物件の利回り試算、周辺エリアや最寄り駅の坪単価分析、次回募集開始時期の予測などにご活用いただけます。 | ||
※「どの不動産に頼めばいいのか分からない」「信頼できる営業マンの話を聞きたい」「一番親切な会社と契約したい」とお悩みの方におすすめなのが「高級賃貸バイブル」です。
高級賃貸バイブルは業界10年以上の熟練スタッフ群がお客様ファーストで対応します。
下記ボタンから、まずは無料でご相談下さい。
※内覧をご希望の際には、どうぞ物件のエントランス前にてお待ち合わせくださいませ。ご内覧後は、同じ場所でお別れとさせていただきます。お客様のご都合に合わせたスムーズなご案内を心がけておりますので、ご質問等がございましたら何なりとお申し付けください。 物件概要
地図
物件までの道のりは、「拡大地図を表示」をクリックしてナビ機能をご利用ください。
部屋設備













建物設備

TVモニターホン

エレベーター

オートロック

宅配ボックス

敷地内ゴミ置場

管理人

駐輪場
HIROO VILLAGEの現在募集中のお部屋
- HIROO VILLAGE 502 - 間取り: 1LDK - 賃料: 20.9万円




