
| 賃料 | 予想金額:188,000〜208,000円程度 | 管理費 | 予想金額:8,000〜12,000円程度 |
| 礼金/敷金 | 非公開(アーカイブ) | 平米数 | 31.16㎡ |
| 初期費用概算(参考) | 目安:779,442〜879,442 円 | みなし賃料(月額・参考) | 211,155〜231,155 円 |
| 備考 | 本ページは過去募集のアーカイブです。表示の金額は周辺相場・過去募集を踏まえた参考レンジであり、実際の契約金額・条件ではありません。 | ||
※上記みなし賃料(月額)は仲介手数料割引・無料&キャッシュバックを加味した高級賃貸バイブル限定の金額です。一般的なみなし賃料とは異なります。
【建物ページ】カーサスプレンディッド麻布十番駅前の詳細・最新空室はこちら▶▶選ばれる理由
仲介手数料無料・キャンペーン情報(毎月15名様限定)
〇仲介手数料割引キャンペーン
カーサスプレンディッド麻布十番駅前 102の口コミ・レビュー
カーサスプレンディッド麻布十番駅前 102。この名が示すとおり、あなたの新たな住まいは麻布十番の真ん中に位置し、まるで都会のオアシスのように、ひときわ魅力的でエレガントな存在感を放っています。南向きの窓からは、青空と共に温かな光が降り注ぎ、心地よい日差しがあなたの日常を照らします。ここは、ただの住まいではなく、あなたの人生の舞台となる場所です。
この物件の魅力は、何と言ってもその利便性。東京メト…カーサスプレンディッド麻布十番駅前 102。この名が示すとおり、あなたの新たな住まいは麻布十番の真ん中に位置し、まるで都会のオアシスのように、ひときわ魅力的でエレガントな存在感を放っています。南向きの窓からは、青空と共に温かな光が降り注ぎ、心地よい日差しがあなたの日常を照らします。ここは、ただの住まいではなく、あなたの人生の舞台となる場所です。
この物件の魅力は、何と言ってもその利便性。東京メトロ南北線麻布十番駅から徒歩1分という立地は、まるであなたの足元に広がる広大な都会のステージへの直通の切符のようです。毎日の通勤やお出かけが、まるで特別な旅に出るかのように、ワクワクする瞬間に変わります。近くには、歴史ある麻布の街並みと、現代的なショッピングエリアが交錯しており、日常の中にさりげなくアートと文化が溢れています。
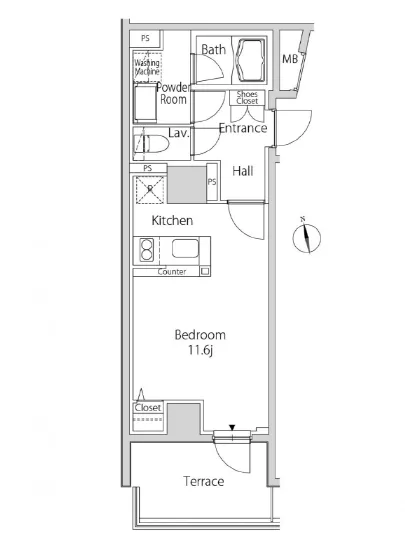
カーサスプレンディッド麻布十番駅前 102の内部に足を踏み入れると、広々とした洋室11.6帖があなたを迎えてくれます。ここは、あなた自身の感性を表現し、癒しの空間を創造するキャンバス。優雅な曲線を描くインテリアの中で、柔らかなタッチのファブリックが心をリラックスさせ、五感を刺激します。光が差し込む瞬間、その空間は新たなアイデアの泉に変わることでしょう。
耳を澄ませば、静かな街のささやきが聞こえてきます。街の喧騒とは対照的に、ここでの生活は穏やかで、ひとときの安らぎを与えてくれます。朝のコーヒーを淹れると、香ばしい豆の香りが空間に広がり、あなたの心を優しく包み込むことでしょう。まるでバリスタが淹れた特別な一杯のように、生活の中に小さな贅沢を添えることができます。
カーサスプレンディッド麻布十番駅前 102の魅力は、単に住まう場所である以上のものです。ここに住むことで、あなたは生活の美しさを再発見し、心の中に静かな幸せを築くことができるでしょう。時折窓を開け、通り抜ける風を感じながら、日常の中に新たな発見を求めてみてはどうでしょうか。思い出の一ページを紡ぎ出す、充実した日々が待っています。
また、オートロックや宅配ボックス、エレベーターなどの設備は、独りで暮らすあなたに安心感を与え、自由なライフスタイルをサポートします。ここでは、すべてがあなたのペースで進んでいきます。その自由さは、まるで自分自身を取り戻すための旅のよう。カーサスプレンディッド麻布十番駅前 102は、あなた自身を再発見するための舞台です。
さあ、カーサスプレンディッド麻布十番駅前 102で、あなたの新しい物語を始めてみませんか。ここには、静かな贅沢と心地よい生活が、あなたを待っています。
この物件の魅力は、何と言ってもその利便性。東京メト…カーサスプレンディッド麻布十番駅前 102。この名が示すとおり、あなたの新たな住まいは麻布十番の真ん中に位置し、まるで都会のオアシスのように、ひときわ魅力的でエレガントな存在感を放っています。南向きの窓からは、青空と共に温かな光が降り注ぎ、心地よい日差しがあなたの日常を照らします。ここは、ただの住まいではなく、あなたの人生の舞台となる場所です。
この物件の魅力は、何と言ってもその利便性。東京メトロ南北線麻布十番駅から徒歩1分という立地は、まるであなたの足元に広がる広大な都会のステージへの直通の切符のようです。毎日の通勤やお出かけが、まるで特別な旅に出るかのように、ワクワクする瞬間に変わります。近くには、歴史ある麻布の街並みと、現代的なショッピングエリアが交錯しており、日常の中にさりげなくアートと文化が溢れています。
カーサスプレンディッド麻布十番駅前 102の内部に足を踏み入れると、広々とした洋室11.6帖があなたを迎えてくれます。ここは、あなた自身の感性を表現し、癒しの空間を創造するキャンバス。優雅な曲線を描くインテリアの中で、柔らかなタッチのファブリックが心をリラックスさせ、五感を刺激します。光が差し込む瞬間、その空間は新たなアイデアの泉に変わることでしょう。
耳を澄ませば、静かな街のささやきが聞こえてきます。街の喧騒とは対照的に、ここでの生活は穏やかで、ひとときの安らぎを与えてくれます。朝のコーヒーを淹れると、香ばしい豆の香りが空間に広がり、あなたの心を優しく包み込むことでしょう。まるでバリスタが淹れた特別な一杯のように、生活の中に小さな贅沢を添えることができます。
カーサスプレンディッド麻布十番駅前 102の魅力は、単に住まう場所である以上のものです。ここに住むことで、あなたは生活の美しさを再発見し、心の中に静かな幸せを築くことができるでしょう。時折窓を開け、通り抜ける風を感じながら、日常の中に新たな発見を求めてみてはどうでしょうか。思い出の一ページを紡ぎ出す、充実した日々が待っています。
また、オートロックや宅配ボックス、エレベーターなどの設備は、独りで暮らすあなたに安心感を与え、自由なライフスタイルをサポートします。ここでは、すべてがあなたのペースで進んでいきます。その自由さは、まるで自分自身を取り戻すための旅のよう。カーサスプレンディッド麻布十番駅前 102は、あなた自身を再発見するための舞台です。
さあ、カーサスプレンディッド麻布十番駅前 102で、あなたの新しい物語を始めてみませんか。ここには、静かな贅沢と心地よい生活が、あなたを待っています。
バイブルスコア
バイブルスコア: 75.2
かなり条件の良い物件です、即仮押さえをおすすめする物件です!
このお部屋は、現在ご入居中のため空室情報はございません。ただし、将来的に募集が開始される際、バイブルスコアにおいて非常に高い評価が期待されます。特にご興味をお持ちの方は、今のうちにブックマークやお気に入りに登録していただくと、募集開始のお知らせをすぐに受け取ることができます。是非ともご検討くださいませ。
※バイブルスコア詳細はこちら
バイブルスコアとは独自のAI機械学習技術を利用した物件評価システムで、物件のおすすめ度を示します。最高得点は100点で、スコアが高いほど、よりおすすめの物件と評価されています。
写真
契約条件
| 賃料 | 予想金額:188,000〜208,000円程度 | 管理費 | 予想金額:8,000〜12,000円程度 |
| 礼金 | 非公開(アーカイブ) | 敷金 | 非公開(アーカイブ) |
| フリーレント | なし | 平米数 | 31.16㎡ |
| 間取り | 1R | 大型収納 | なし |
| 契約期間 | 2年 | 方角 | 南 |
| 更新料 | 1ヶ月 | 契約形態 | 普通賃貸借契約 |
| 取引態様 | 媒介 | 内見状況 | 入居中 |
| 入居時期 | 入居中 | SOHO・事務所 | 不可 |
| ペット | 相談 | 間取り内訳 | 洋室11.6帖 |
| キャンペーン情報・備考 | 本情報は賃料改定交渉の資料作成、収益物件の利回り試算、周辺エリアや最寄り駅の坪単価分析、次回募集開始時期の予測などにご活用いただけます。 | ||
※「どの不動産に頼めばいいのか分からない」「信頼できる営業マンの話を聞きたい」「一番親切な会社と契約したい」とお悩みの方におすすめなのが「高級賃貸バイブル」です。
高級賃貸バイブルは業界10年以上の熟練スタッフ群がお客様ファーストで対応します。
下記ボタンから、まずは無料でご相談下さい。
※内覧をご希望の際には、どうぞ物件のエントランス前にてお待ち合わせくださいませ。ご内覧後は、同じ場所でお別れとさせていただきます。お客様のご都合に合わせたスムーズなご案内を心がけておりますので、ご質問等がございましたら何なりとお申し付けください。 物件概要
| 物件名 |
| 築年月 |
|
|---|---|---|---|
| 所在地 | |||
| 交通 | |||
| 総戸数 |
| 総階数 |
|
| 構造 |
| ||
地図
物件までの道のりは、「拡大地図を表示」をクリックしてナビ機能をご利用ください。
部屋設備











建物設備

TVモニターホン

エレベーター

オートロック

宅配ボックス

敷地内ゴミ置場

駐輪場
カーサスプレンディッド麻布十番駅前の現在募集中のお部屋
- No rooms found for this property.












