
| 賃料 | 予想金額:188,000〜208,000円程度 | 管理費 | 予想金額:0〜2,000円程度 |
| 礼金/敷金 | 非公開(アーカイブ) | 平米数 | 47.35㎡ |
| 初期費用概算(参考) | 目安:747,942〜847,942 円 | みなし賃料(月額・参考) | 200,499〜220,499 円 |
| 備考 | 本ページは過去募集のアーカイブです。表示の金額は周辺相場・過去募集を踏まえた参考レンジであり、実際の契約金額・条件ではありません。 | ||
※上記みなし賃料(月額)は仲介手数料割引・無料&キャッシュバックを加味した高級賃貸バイブル限定の金額です。一般的なみなし賃料とは異なります。
【建物ページ】西新宿パークサイドタワーの詳細・最新空室はこちら▶▶選ばれる理由
仲介手数料無料・キャンペーン情報(毎月15名様限定)
〇仲介手数料割引キャンペーン
西新宿パークサイドタワー 2階 47.35㎡の口コミ・レビュー
西新宿パークサイドタワー 2階 47.35㎡は、都市の喧騒から一歩離れた静謐な空間で、まるで心のオアシスへと導いてくれる魔法の扉のようです。新宿区西新宿の地に佇むその姿は、優雅な佇まいを誇り、その姿が呼びかけるように、あなたを待ち受けています。
この物件は、南向きの窓辺から差し込む温もりのある日差しが、まるで朝のキスのように優しく肩を撫でてくれることでしょう。47.35㎡の広さは、自由な発想を持…西新宿パークサイドタワー 2階 47.35㎡は、都市の喧騒から一歩離れた静謐な空間で、まるで心のオアシスへと導いてくれる魔法の扉のようです。新宿区西新宿の地に佇むその姿は、優雅な佇まいを誇り、その姿が呼びかけるように、あなたを待ち受けています。
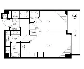
この物件は、南向きの窓辺から差し込む温もりのある日差しが、まるで朝のキスのように優しく肩を撫でてくれることでしょう。47.35㎡の広さは、自由な発想を持つあなたにとって、アートを描くキャンバスのような存在。1LDK+WICの間取りは、心のままに生活空間を彩るための豊かな余地を与えてくれます。そのLDKは11.6帖の広々とした空間で、訪れる友人たちとの語らいや、ゆったりとした一人の時間を過ごすための舞台となります。
そして、キッチンから漂う自家製の料理の香りは、家庭の温もりを醸し出し、あなたの感覚を刺激します。ふわりと焼き上がったパンの香ばしさや、新鮮な野菜の瑞々しさ、そしてカフェのような雰囲気の中でコーヒーの香りが漂えば、まるで映画の一場面に投影されたかのような、心地よい日常が展開されます。
西新宿パークサイドタワーは、まさに都会の中の隠れ家的な存在です。エレベーターで地上に出れば、目の前には広がる都心の景色。サラウンドサウンドのように周囲から届く都会の音の調和が、あなたの生活をより豊かにしてくれます。オートロックやフロントサービス、宅配ボックスなどの充実した設備は、日々の暮らしをより快適にし、まるであなたを守る守護者のような存在です。
周囲には歴史の息吹を感じる文化的なスポットも多く、東京メトロ丸ノ内線の西新宿駅からはわずか徒歩4分というアクセスの良さも手伝い、都心での生活を存分に楽しめるでしょう。広がる緑に囲まれ、洗練されたカフェやアートギャラリーが点在するこのエリアは、あなたの感性を刺激し、インスピレーションの源となることでしょう。
西新宿パークサイドタワーは、住む人に寄り添い、日々の生活を豊かな物語に変えてくれる、まるで一冊の小説のページを開くような感覚を与えてくれます。ここでの毎日は、ただの瞬間ではなく、人生の美しいシーンの一部として刻まれるのです。この空間が、あなたの新しい物語の舞台となることを、心から願っています。あなたの新たな生活の一歩を、ここ西新宿パークサイドタワーで踏み出してみませんか?
この物件は、南向きの窓辺から差し込む温もりのある日差しが、まるで朝のキスのように優しく肩を撫でてくれることでしょう。47.35㎡の広さは、自由な発想を持…西新宿パークサイドタワー 2階 47.35㎡は、都市の喧騒から一歩離れた静謐な空間で、まるで心のオアシスへと導いてくれる魔法の扉のようです。新宿区西新宿の地に佇むその姿は、優雅な佇まいを誇り、その姿が呼びかけるように、あなたを待ち受けています。
この物件は、南向きの窓辺から差し込む温もりのある日差しが、まるで朝のキスのように優しく肩を撫でてくれることでしょう。47.35㎡の広さは、自由な発想を持つあなたにとって、アートを描くキャンバスのような存在。1LDK+WICの間取りは、心のままに生活空間を彩るための豊かな余地を与えてくれます。そのLDKは11.6帖の広々とした空間で、訪れる友人たちとの語らいや、ゆったりとした一人の時間を過ごすための舞台となります。
そして、キッチンから漂う自家製の料理の香りは、家庭の温もりを醸し出し、あなたの感覚を刺激します。ふわりと焼き上がったパンの香ばしさや、新鮮な野菜の瑞々しさ、そしてカフェのような雰囲気の中でコーヒーの香りが漂えば、まるで映画の一場面に投影されたかのような、心地よい日常が展開されます。
西新宿パークサイドタワーは、まさに都会の中の隠れ家的な存在です。エレベーターで地上に出れば、目の前には広がる都心の景色。サラウンドサウンドのように周囲から届く都会の音の調和が、あなたの生活をより豊かにしてくれます。オートロックやフロントサービス、宅配ボックスなどの充実した設備は、日々の暮らしをより快適にし、まるであなたを守る守護者のような存在です。
周囲には歴史の息吹を感じる文化的なスポットも多く、東京メトロ丸ノ内線の西新宿駅からはわずか徒歩4分というアクセスの良さも手伝い、都心での生活を存分に楽しめるでしょう。広がる緑に囲まれ、洗練されたカフェやアートギャラリーが点在するこのエリアは、あなたの感性を刺激し、インスピレーションの源となることでしょう。
西新宿パークサイドタワーは、住む人に寄り添い、日々の生活を豊かな物語に変えてくれる、まるで一冊の小説のページを開くような感覚を与えてくれます。ここでの毎日は、ただの瞬間ではなく、人生の美しいシーンの一部として刻まれるのです。この空間が、あなたの新しい物語の舞台となることを、心から願っています。あなたの新たな生活の一歩を、ここ西新宿パークサイドタワーで踏み出してみませんか?
バイブルスコア
バイブルスコア: 67.8
かなり条件の良い物件です、即仮押さえをおすすめする物件です!
このお部屋は、現在ご入居中のため空室情報はございません。ただし、将来的に募集が開始される際、バイブルスコアにおいて非常に高い評価が期待されます。特にご興味をお持ちの方は、今のうちにブックマークやお気に入りに登録していただくと、募集開始のお知らせをすぐに受け取ることができます。是非ともご検討くださいませ。
※バイブルスコア詳細はこちら
バイブルスコアとは独自のAI機械学習技術を利用した物件評価システムで、物件のおすすめ度を示します。最高得点は100点で、スコアが高いほど、よりおすすめの物件と評価されています。
写真
契約条件
| 賃料 | 予想金額:188,000〜208,000円程度 | 管理費 | 予想金額:0〜2,000円程度 |
| 礼金 | 非公開(アーカイブ) | 敷金 | 非公開(アーカイブ) |
| フリーレント | なし | 平米数 | 47.35㎡ |
| 間取り | 1LDK+WIC | 大型収納 | WIC |
| 契約期間 | 2年 | 方角 | 南 |
| 更新料 | 1ヶ月 | 契約形態 | 普通賃貸借契約 |
| 取引態様 | 媒介 | 内見状況 | 入居中 |
| 入居時期 | 入居中 | SOHO・事務所 | 不可 |
| ペット | 不可 | 間取り内訳 | |
| キャンペーン情報・備考 | 本情報は賃料改定交渉の資料作成、収益物件の利回り試算、周辺エリアや最寄り駅の坪単価分析、次回募集開始時期の予測などにご活用いただけます。 | ||
※「どの不動産に頼めばいいのか分からない」「信頼できる営業マンの話を聞きたい」「一番親切な会社と契約したい」とお悩みの方におすすめなのが「高級賃貸バイブル」です。
高級賃貸バイブルは業界10年以上の熟練スタッフ群がお客様ファーストで対応します。
下記ボタンから、まずは無料でご相談下さい。
※内覧をご希望の際には、どうぞ物件のエントランス前にてお待ち合わせくださいませ。ご内覧後は、同じ場所でお別れとさせていただきます。お客様のご都合に合わせたスムーズなご案内を心がけておりますので、ご質問等がございましたら何なりとお申し付けください。 物件概要
| 物件名 |
| 築年月 |
|
|---|---|---|---|
| 所在地 | |||
| 交通 | |||
| 総戸数 |
| 総階数 |
|
| 構造 |
| ||
地図
物件までの道のりは、「拡大地図を表示」をクリックしてナビ機能をご利用ください。
部屋設備











建物設備

TVモニターホン

エレベーター

オートロック

バイク置場

フロントサービス

宅配ボックス

敷地内ゴミ置場

管理人

駐車場平置き

駐車場機械式

駐輪場
西新宿パークサイドタワーの現在募集中のお部屋
- 西新宿パークサイドタワー 8階 71.97㎡ - 間取り: 2LDK - 賃料: 29.3万円




















