
| 賃料 | 予想金額:98,000〜118,000円程度 | 管理費 | 予想金額:6,000〜10,000円程度 |
| 礼金/敷金 | 非公開(アーカイブ) | 平米数 | 32.78㎡ |
| 初期費用概算(参考) | 目安:323,500〜423,500 円 | みなし賃料(月額・参考) | 111,531〜131,531 円 |
| 備考 | 本ページは過去募集のアーカイブです。表示の金額は周辺相場・過去募集を踏まえた参考レンジであり、実際の契約金額・条件ではありません。 | ||
※上記みなし賃料(月額)は仲介手数料割引・無料&キャッシュバックを加味した高級賃貸バイブル限定の金額です。一般的なみなし賃料とは異なります。
【建物ページ】シティテラス田町の詳細・最新空室はこちら▶▶選ばれる理由
仲介手数料無料・キャンペーン情報(毎月15名様限定)
〇仲介手数料割引キャンペーン
シティテラス田町 404の口コミ・レビュー
シティテラス田町 404。この場所は、ただの住まいではなく、あなたの心に深く響く物語を紡ぐ、まるで一編の詩のような空間です。どこかに消え行く風を感じさせるエレベーターの音が、あなたをこの特別な場所へと導いてくれます。そして、朝日が昇る頃、東に向いた窓からは、優しい光が差し込み、真新しい一日の始まりを祝福してくれます。
シティテラス田町 404は、32.78㎡という広さの中に、あなたの生活を豊かに…シティテラス田町 404。この場所は、ただの住まいではなく、あなたの心に深く響く物語を紡ぐ、まるで一編の詩のような空間です。どこかに消え行く風を感じさせるエレベーターの音が、あなたをこの特別な場所へと導いてくれます。そして、朝日が昇る頃、東に向いた窓からは、優しい光が差し込み、真新しい一日の始まりを祝福してくれます。
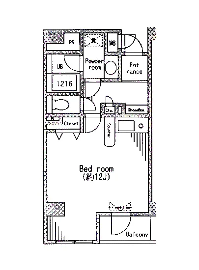
シティテラス田町 404は、32.78㎡という広さの中に、あなたの生活を豊かに彩る無限の可能性を秘めています。1Rの間取りは、まるであなたの夢や希望をやさしく包み込む神秘的な懐のよう。R=12Jの空間には、あなた自身のスタイルで家具を配置し、あなただけの物語の舞台を作り上げることができます。心が躍る瞬間を演出し、日々の生活がまるで映画のワンシーンのように感じられることを約束します。
ここでの生活は、視覚だけでなく、聴覚、嗅覚、触覚、味覚をも刺激します。朝起きて、コーヒーの香りが部屋を包み込み、ゆっくりとカーテンを開ける瞬間、外の賑やかな街のざわめきや、遠くで聞こえる電車の音が、あなたの日常の一部になります。少し大きめのソファに身を沈めれば、その柔らかさに包まれ、心ゆくまでリラックスすることができます。キッチンで大好きな食材を使って料理をすることが、まるでアート作品を創り出すような楽しみに変わります。
シティテラス田町 404という特別な空間は、ただの高級賃貸物件以上の存在です。周囲には歴史的な文化スポットやアートギャラリーが点在しており、散歩がてらに訪れることで、あなたの心にも新たなエネルギーが宿ります。近くには田町駅もあり、便利なアクセスがあなたを都心の様々な魅力へと誘います。まるで心のオアシスのように、忙しい日常を忘れさせてくれる場所があなたを待っています。
ここでの生活は、シティテラス田町 404という名の物語に、あなた自身の物語を重ねることができる特権です。情熱的でありながら、心地よい静寂を感じられる空間で、あなたの生活はどのように彩られていくのでしょうか。新しい出発点であるこの場所で、自分自身を見つけ、さらなる成長を遂げる喜びを感じられることでしょう。さあ、シティテラス田町 404で、あなたの新たな日常をはじめてみませんか。
シティテラス田町 404は、32.78㎡という広さの中に、あなたの生活を豊かに…シティテラス田町 404。この場所は、ただの住まいではなく、あなたの心に深く響く物語を紡ぐ、まるで一編の詩のような空間です。どこかに消え行く風を感じさせるエレベーターの音が、あなたをこの特別な場所へと導いてくれます。そして、朝日が昇る頃、東に向いた窓からは、優しい光が差し込み、真新しい一日の始まりを祝福してくれます。
シティテラス田町 404は、32.78㎡という広さの中に、あなたの生活を豊かに彩る無限の可能性を秘めています。1Rの間取りは、まるであなたの夢や希望をやさしく包み込む神秘的な懐のよう。R=12Jの空間には、あなた自身のスタイルで家具を配置し、あなただけの物語の舞台を作り上げることができます。心が躍る瞬間を演出し、日々の生活がまるで映画のワンシーンのように感じられることを約束します。
ここでの生活は、視覚だけでなく、聴覚、嗅覚、触覚、味覚をも刺激します。朝起きて、コーヒーの香りが部屋を包み込み、ゆっくりとカーテンを開ける瞬間、外の賑やかな街のざわめきや、遠くで聞こえる電車の音が、あなたの日常の一部になります。少し大きめのソファに身を沈めれば、その柔らかさに包まれ、心ゆくまでリラックスすることができます。キッチンで大好きな食材を使って料理をすることが、まるでアート作品を創り出すような楽しみに変わります。
シティテラス田町 404という特別な空間は、ただの高級賃貸物件以上の存在です。周囲には歴史的な文化スポットやアートギャラリーが点在しており、散歩がてらに訪れることで、あなたの心にも新たなエネルギーが宿ります。近くには田町駅もあり、便利なアクセスがあなたを都心の様々な魅力へと誘います。まるで心のオアシスのように、忙しい日常を忘れさせてくれる場所があなたを待っています。
ここでの生活は、シティテラス田町 404という名の物語に、あなた自身の物語を重ねることができる特権です。情熱的でありながら、心地よい静寂を感じられる空間で、あなたの生活はどのように彩られていくのでしょうか。新しい出発点であるこの場所で、自分自身を見つけ、さらなる成長を遂げる喜びを感じられることでしょう。さあ、シティテラス田町 404で、あなたの新たな日常をはじめてみませんか。
バイブルスコア
バイブルスコア: 59.4
条件のいい物件です、引っ越しが2か月以内の場合は仮申し込みを検討すべき物件です。
このお部屋は、現在ご入居中のため空室情報はございません。ただし、将来的に募集が開始される際、バイブルスコアにおいて非常に高い評価が期待されます。特にご興味をお持ちの方は、今のうちにブックマークやお気に入りに登録していただくと、募集開始のお知らせをすぐに受け取ることができます。是非ともご検討くださいませ。
※バイブルスコア詳細はこちら
バイブルスコアとは独自のAI機械学習技術を利用した物件評価システムで、物件のおすすめ度を示します。最高得点は100点で、スコアが高いほど、よりおすすめの物件と評価されています。
写真
契約条件
| 賃料 | 予想金額:98,000〜118,000円程度 | 管理費 | 予想金額:6,000〜10,000円程度 |
| 礼金 | 非公開(アーカイブ) | 敷金 | 非公開(アーカイブ) |
| フリーレント | なし | 平米数 | 32.78㎡ |
| 間取り | 1R | 大型収納 | |
| 契約期間 |
| 方角 | 東 |
| 更新料 | 契約形態 | 普通賃貸借契約 | |
| 取引態様 | 媒介 | 内見状況 | 入居中 |
| 入居時期 | 入居中 | SOHO・事務所 | 事務所(SOHO)可 |
| ペット | 間取り内訳 | R=12J | |
| キャンペーン情報・備考 | 本情報は賃料改定交渉の資料作成、収益物件の利回り試算、周辺エリアや最寄り駅の坪単価分析、次回募集開始時期の予測などにご活用いただけます。 | ||
※「どの不動産に頼めばいいのか分からない」「信頼できる営業マンの話を聞きたい」「一番親切な会社と契約したい」とお悩みの方におすすめなのが「高級賃貸バイブル」です。
高級賃貸バイブルは業界10年以上の熟練スタッフ群がお客様ファーストで対応します。
下記ボタンから、まずは無料でご相談下さい。
※内覧をご希望の際には、どうぞ物件のエントランス前にてお待ち合わせくださいませ。ご内覧後は、同じ場所でお別れとさせていただきます。お客様のご都合に合わせたスムーズなご案内を心がけておりますので、ご質問等がございましたら何なりとお申し付けください。 物件概要
| 物件名 |
| 築年月 |
|
|---|---|---|---|
| 所在地 | |||
| 交通 | |||
| 総戸数 |
| 総階数 |
|
| 構造 |
| ||
地図
物件までの道のりは、「拡大地図を表示」をクリックしてナビ機能をご利用ください。
部屋設備
















建物設備

エレベーター

オートロック

宅配ボックス

敷地内ゴミ置場

駐輪場
シティテラス田町の現在募集中のお部屋
- No rooms found for this property.





























