
| 賃料 | 予想金額:137,000〜157,000円程度 | 管理費 | 予想金額:4,000〜8,000円程度 |
| 礼金/敷金 | 非公開(アーカイブ) | 平米数 | 32.78㎡ |
| 初期費用概算(参考) | 目安:565,000〜665,000 円 | みなし賃料(月額・参考) | 152,750〜172,750 円 |
| 備考 | 本ページは過去募集のアーカイブです。表示の金額は周辺相場・過去募集を踏まえた参考レンジであり、実際の契約金額・条件ではありません。 | ||
※上記みなし賃料(月額)は仲介手数料割引・無料&キャッシュバックを加味した高級賃貸バイブル限定の金額です。一般的なみなし賃料とは異なります。
【建物ページ】シティテラス田町の詳細・最新空室はこちら▶▶選ばれる理由
仲介手数料無料・キャンペーン情報(毎月15名様限定)
〇仲介手数料割引キャンペーン
シティテラス田町 504の口コミ・レビュー
シティテラス田町 504。ここに住むことは、まるで新たな物語の主人公になることを意味します。この洗練された空間は、東京都港区芝浦3-15-1に位置し、毎日の生活を美しい詩のように彩ります。東に向いた窓からは、朝日が差し込み、静かに目覚める瞬間を特別なものにしてくれます。504号室のドアを開けると、32.78㎡の広がりが目の前に広がり、心地よい自由なひと時があなたを包み込みます。
この1Rという名…シティテラス田町 504。ここに住むことは、まるで新たな物語の主人公になることを意味します。この洗練された空間は、東京都港区芝浦3-15-1に位置し、毎日の生活を美しい詩のように彩ります。東に向いた窓からは、朝日が差し込み、静かに目覚める瞬間を特別なものにしてくれます。504号室のドアを開けると、32.78㎡の広がりが目の前に広がり、心地よい自由なひと時があなたを包み込みます。
この1Rという名の心の拠り所は、あなたの個性を引き立てるキャンバスです。12帖の空間は、まるであなたを迎え入れる優雅な舞台のようで、夢見たインテリアやお気に入りのアートを配置することで、あなたの思い描く世界を形成していくことができます。ここでは、あなたの生活がキャンバスに色を塗るように、日々の出来事が新しいストーリーを生み出します。
エレベーターで幾度となく昇り降りすることに、まるで人生のアップダウンを象徴するかのような感覚を覚えながら、オートロックで守られた玄関を通過する度に、小さな安心を感じつつ、あなたの特別な空間へと進んでいきます。宅配ボックスの存在は、まるで手紙やプレゼントを運んでくれる小さな精霊のように、あなたのもとに届く期待感をもたらします。
シティテラス田町 504の魅力は、ただの居住空間にとどまりません。周囲には歴史的で文化的な要素が色濃く残り、あなたの毎日を豊かに彩ります。田町駅から徒歩5分という好立地は、まさにこの街の心臓部であり、賑やかさと落ち着きが共存する場所。都会の喧騒を背に、静謐な時間を楽しむことができるのです。
ここでの生活は、まるで映画のワンシーンのような感覚を与えてくれます。朝、コーヒーの香りが漂うキッチンで、軽やかな音楽を流しながら、心地よい時間を過ごす。窓辺に座って、柔らかな光に包まれながら、外の景色を眺めるその瞬間は、まるで風が運ぶ音楽のように心を打つことでしょう。時折聞こえる街のざわめきや、人々の笑い声は、あなたに生きる喜びを思い出させます。
シティテラス田町 504へようこそ。あなたがここに住むことで、新たなストーリーが生まれ、日々の生活が一層輝くことでしょう。美しい日常が待つこの場所で、心を開き、心地よい暮らしを始めてみてはいかがでしょうか。あなたの新たな旅立ちが、ここから始まります。
この1Rという名…シティテラス田町 504。ここに住むことは、まるで新たな物語の主人公になることを意味します。この洗練された空間は、東京都港区芝浦3-15-1に位置し、毎日の生活を美しい詩のように彩ります。東に向いた窓からは、朝日が差し込み、静かに目覚める瞬間を特別なものにしてくれます。504号室のドアを開けると、32.78㎡の広がりが目の前に広がり、心地よい自由なひと時があなたを包み込みます。
この1Rという名の心の拠り所は、あなたの個性を引き立てるキャンバスです。12帖の空間は、まるであなたを迎え入れる優雅な舞台のようで、夢見たインテリアやお気に入りのアートを配置することで、あなたの思い描く世界を形成していくことができます。ここでは、あなたの生活がキャンバスに色を塗るように、日々の出来事が新しいストーリーを生み出します。
エレベーターで幾度となく昇り降りすることに、まるで人生のアップダウンを象徴するかのような感覚を覚えながら、オートロックで守られた玄関を通過する度に、小さな安心を感じつつ、あなたの特別な空間へと進んでいきます。宅配ボックスの存在は、まるで手紙やプレゼントを運んでくれる小さな精霊のように、あなたのもとに届く期待感をもたらします。
シティテラス田町 504の魅力は、ただの居住空間にとどまりません。周囲には歴史的で文化的な要素が色濃く残り、あなたの毎日を豊かに彩ります。田町駅から徒歩5分という好立地は、まさにこの街の心臓部であり、賑やかさと落ち着きが共存する場所。都会の喧騒を背に、静謐な時間を楽しむことができるのです。
ここでの生活は、まるで映画のワンシーンのような感覚を与えてくれます。朝、コーヒーの香りが漂うキッチンで、軽やかな音楽を流しながら、心地よい時間を過ごす。窓辺に座って、柔らかな光に包まれながら、外の景色を眺めるその瞬間は、まるで風が運ぶ音楽のように心を打つことでしょう。時折聞こえる街のざわめきや、人々の笑い声は、あなたに生きる喜びを思い出させます。
シティテラス田町 504へようこそ。あなたがここに住むことで、新たなストーリーが生まれ、日々の生活が一層輝くことでしょう。美しい日常が待つこの場所で、心を開き、心地よい暮らしを始めてみてはいかがでしょうか。あなたの新たな旅立ちが、ここから始まります。
バイブルスコア
バイブルスコア: 13.0
高級な物件でない場合は割高な物件です。。
※バイブルスコア詳細はこちら
バイブルスコアとは独自のAI機械学習技術を利用した物件評価システムで、物件のおすすめ度を示します。最高得点は100点で、スコアが高いほど、よりおすすめの物件と評価されています。
写真
契約条件
| 賃料 | 予想金額:137,000〜157,000円程度 | 管理費 | 予想金額:4,000〜8,000円程度 |
| 礼金 | 非公開(アーカイブ) | 敷金 | 非公開(アーカイブ) |
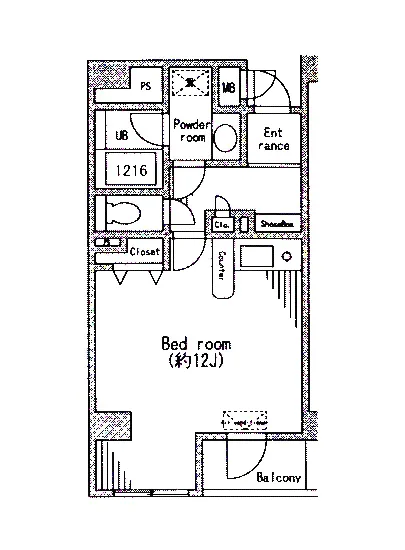
| フリーレント | なし | 平米数 | 32.78㎡ |
| 間取り | 1R | 大型収納 | |
| 契約期間 |
| 方角 | 東 |
| 更新料 | 契約形態 | 普通賃貸借契約 | |
| 取引態様 | 媒介 | 内見状況 | 入居中 |
| 入居時期 | 入居中 | SOHO・事務所 | |
| ペット | 間取り内訳 | R=12J | |
| キャンペーン情報・備考 | 本情報は賃料改定交渉の資料作成、収益物件の利回り試算、周辺エリアや最寄り駅の坪単価分析、次回募集開始時期の予測などにご活用いただけます。 | ||
※「どの不動産に頼めばいいのか分からない」「信頼できる営業マンの話を聞きたい」「一番親切な会社と契約したい」とお悩みの方におすすめなのが「高級賃貸バイブル」です。
高級賃貸バイブルは業界10年以上の熟練スタッフ群がお客様ファーストで対応します。
下記ボタンから、まずは無料でご相談下さい。
※内覧をご希望の際には、どうぞ物件のエントランス前にてお待ち合わせくださいませ。ご内覧後は、同じ場所でお別れとさせていただきます。お客様のご都合に合わせたスムーズなご案内を心がけておりますので、ご質問等がございましたら何なりとお申し付けください。 物件概要
| 物件名 |
| 築年月 |
|
|---|---|---|---|
| 所在地 | |||
| 交通 | |||
| 総戸数 |
| 総階数 |
|
| 構造 |
| ||
地図
物件までの道のりは、「拡大地図を表示」をクリックしてナビ機能をご利用ください。
部屋設備

















建物設備

エレベーター

オートロック

宅配ボックス

敷地内ゴミ置場

駐輪場
シティテラス田町の現在募集中のお部屋
- No rooms found for this property.





























