
| 賃料 | 予想金額:134,000〜154,000円程度 | 管理費 | 予想金額:4,000〜8,000円程度 |
| 礼金/敷金 | 非公開(アーカイブ) | 平米数 | 32.78㎡ |
| 初期費用概算(参考) | 目安:554,500〜654,500 円 | みなし賃料(月額・参考) | 149,594〜169,594 円 |
| 備考 | 本ページは過去募集のアーカイブです。表示の金額は周辺相場・過去募集を踏まえた参考レンジであり、実際の契約金額・条件ではありません。 | ||
※上記みなし賃料(月額)は仲介手数料割引・無料&キャッシュバックを加味した高級賃貸バイブル限定の金額です。一般的なみなし賃料とは異なります。
【建物ページ】シティテラス田町の詳細・最新空室はこちら▶▶選ばれる理由
仲介手数料無料・キャンペーン情報(毎月15名様限定)
〇仲介手数料割引キャンペーン
シティテラス田町 204の口コミ・レビュー
シティテラス田町 204。この名は、都心の華やかさと静穏が共存する特別な空間を象徴しています。204という数字は、まるでシティテラス田町の心臓部が鼓動するかのように、あなたを呼んでいるのです。東向きの窓からは、朝日の柔らかな光が優しく差し込んできて、心地よい一日の始まりを演出します。
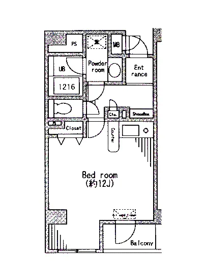
この1R、間取り詳細R=12Jの住まいは、まるで心のブティックのように、あなたのライフスタイルを品よく包み込む空…シティテラス田町 204。この名は、都心の華やかさと静穏が共存する特別な空間を象徴しています。204という数字は、まるでシティテラス田町の心臓部が鼓動するかのように、あなたを呼んでいるのです。東向きの窓からは、朝日の柔らかな光が優しく差し込んできて、心地よい一日の始まりを演出します。
この1R、間取り詳細R=12Jの住まいは、まるで心のブティックのように、あなたのライフスタイルを品よく包み込む空間です。専有面積32.78㎡は、決して広大ではありませんが、その隅々に大きな可能性を秘めています。デザイン性に優れた内装は、まるで芸術作品を鑑賞するかのように、訪れるたびに新たな感動を与えてくれます。エレベーターで乗り込むその瞬間、オートロックを開けると、まるで秘密の扉を開いたかのように、特別な世界へと足を踏み入れることができます。
家の中に一歩足を踏み入れれば、自然光が優しく包み込み、壁の色合いや素材感は、あたかも優美なシンフォニーのように調和を奏でています。あたたかい香りの焚きたてのコーヒーが漂い、窓からはそよ風が運んでくる街のざわめきが、日常の喧騒を忘れさせてくれるのです。ここでの生活は、優雅でありながらも、どこか親しい友人の家にいるかのような居心地の良さがあります。
周囲には、歴史的な街並みと現代的な文化が交錯する芝浦の魅力が広がっています。JR山手線田町駅から歩いてわずか5分という立地で、都会の喧騒へのアクセスもスムーズです。周辺にはビジネスエリアだけでなく、洗練されたカフェやショップが点在し、毎日の生活がまるで映画のワンシーンのように彩られます。日々の忙しさの合間に、自分だけの特別な時間を手に入れることができるでしょう。
シティテラス田町 204は、まるであなたの人生の新たなチャプターを開くための贅沢な舞台のようです。この部屋があなたの個性を引き立て、日々の暮らしを一層豊かに彩ることでしょう。大切な人を招待したり、一人で静かに読書に耽ったり、様々なシーンが次々と展開されていくのです。
この物件は、ただの住まいではなく、あなたの新しい物語の始まりを告げる高級な舞台です。シティテラス田町 204から、新たな生活の扉を開く準備を整えてください。あなたの心がここにある限り、生活はまるでさまざまな色彩を持つ絵画のように、あなた自身の手で描かれていくことでしょう。
この1R、間取り詳細R=12Jの住まいは、まるで心のブティックのように、あなたのライフスタイルを品よく包み込む空…シティテラス田町 204。この名は、都心の華やかさと静穏が共存する特別な空間を象徴しています。204という数字は、まるでシティテラス田町の心臓部が鼓動するかのように、あなたを呼んでいるのです。東向きの窓からは、朝日の柔らかな光が優しく差し込んできて、心地よい一日の始まりを演出します。
この1R、間取り詳細R=12Jの住まいは、まるで心のブティックのように、あなたのライフスタイルを品よく包み込む空間です。専有面積32.78㎡は、決して広大ではありませんが、その隅々に大きな可能性を秘めています。デザイン性に優れた内装は、まるで芸術作品を鑑賞するかのように、訪れるたびに新たな感動を与えてくれます。エレベーターで乗り込むその瞬間、オートロックを開けると、まるで秘密の扉を開いたかのように、特別な世界へと足を踏み入れることができます。
家の中に一歩足を踏み入れれば、自然光が優しく包み込み、壁の色合いや素材感は、あたかも優美なシンフォニーのように調和を奏でています。あたたかい香りの焚きたてのコーヒーが漂い、窓からはそよ風が運んでくる街のざわめきが、日常の喧騒を忘れさせてくれるのです。ここでの生活は、優雅でありながらも、どこか親しい友人の家にいるかのような居心地の良さがあります。
周囲には、歴史的な街並みと現代的な文化が交錯する芝浦の魅力が広がっています。JR山手線田町駅から歩いてわずか5分という立地で、都会の喧騒へのアクセスもスムーズです。周辺にはビジネスエリアだけでなく、洗練されたカフェやショップが点在し、毎日の生活がまるで映画のワンシーンのように彩られます。日々の忙しさの合間に、自分だけの特別な時間を手に入れることができるでしょう。
シティテラス田町 204は、まるであなたの人生の新たなチャプターを開くための贅沢な舞台のようです。この部屋があなたの個性を引き立て、日々の暮らしを一層豊かに彩ることでしょう。大切な人を招待したり、一人で静かに読書に耽ったり、様々なシーンが次々と展開されていくのです。
この物件は、ただの住まいではなく、あなたの新しい物語の始まりを告げる高級な舞台です。シティテラス田町 204から、新たな生活の扉を開く準備を整えてください。あなたの心がここにある限り、生活はまるでさまざまな色彩を持つ絵画のように、あなた自身の手で描かれていくことでしょう。
バイブルスコア
バイブルスコア: 14.7
高級な物件でない場合は割高な物件です。。
※バイブルスコア詳細はこちら
バイブルスコアとは独自のAI機械学習技術を利用した物件評価システムで、物件のおすすめ度を示します。最高得点は100点で、スコアが高いほど、よりおすすめの物件と評価されています。
写真
契約条件
| 賃料 | 予想金額:134,000〜154,000円程度 | 管理費 | 予想金額:4,000〜8,000円程度 |
| 礼金 | 非公開(アーカイブ) | 敷金 | 非公開(アーカイブ) |
| フリーレント | なし | 平米数 | 32.78㎡ |
| 間取り | 1R | 大型収納 | |
| 契約期間 |
| 方角 | 東 |
| 更新料 | 契約形態 | 普通賃貸借契約 | |
| 取引態様 | 媒介 | 内見状況 | 入居中 |
| 入居時期 | 入居中 | SOHO・事務所 | |
| ペット | 間取り内訳 | R=12J | |
| キャンペーン情報・備考 | 本情報は賃料改定交渉の資料作成、収益物件の利回り試算、周辺エリアや最寄り駅の坪単価分析、次回募集開始時期の予測などにご活用いただけます。 | ||
※「どの不動産に頼めばいいのか分からない」「信頼できる営業マンの話を聞きたい」「一番親切な会社と契約したい」とお悩みの方におすすめなのが「高級賃貸バイブル」です。
高級賃貸バイブルは業界10年以上の熟練スタッフ群がお客様ファーストで対応します。
下記ボタンから、まずは無料でご相談下さい。
※内覧をご希望の際には、どうぞ物件のエントランス前にてお待ち合わせくださいませ。ご内覧後は、同じ場所でお別れとさせていただきます。お客様のご都合に合わせたスムーズなご案内を心がけておりますので、ご質問等がございましたら何なりとお申し付けください。 物件概要
| 物件名 |
| 築年月 |
|
|---|---|---|---|
| 所在地 | |||
| 交通 | |||
| 総戸数 |
| 総階数 |
|
| 構造 |
| ||
地図
物件までの道のりは、「拡大地図を表示」をクリックしてナビ機能をご利用ください。
部屋設備















建物設備

エレベーター

オートロック

宅配ボックス

敷地内ゴミ置場

駐輪場
シティテラス田町の現在募集中のお部屋
- No rooms found for this property.





























