
| 賃料 | 予想金額:340,000〜360,000円程度 | 管理費 | 予想金額:13,000〜17,000円程度 |
| 礼金/敷金 | 非公開(アーカイブ) | 平米数 | 58.37㎡ |
| 初期費用概算(参考) | 目安:1,622,500〜1,722,500 円 | みなし賃料(月額・参考) | 382,552〜402,552 円 |
| 備考 | 本ページは過去募集のアーカイブです。表示の金額は周辺相場・過去募集を踏まえた参考レンジであり、実際の契約金額・条件ではありません。 | ||
※上記みなし賃料(月額)は仲介手数料割引・無料&キャッシュバックを加味した高級賃貸バイブル限定の金額です。一般的なみなし賃料とは異なります。
【建物ページ】オープンレジデンシア麻布六本木の詳細・最新空室はこちら▶▶選ばれる理由
仲介手数料無料・キャンペーン情報(毎月15名様限定)
〇仲介手数料割引キャンペーン
オープンレジデンシア麻布六本木 701の口コミ・レビュー
オープンレジデンシア麻布六本木 701。この魅力的な住所は、まるで一つの物語が始まる舞台のように、あなたを優雅に迎え入れます。東京都港区六本木3-16-19という恵まれたロケーションは、南向きの窓から輝く陽射しが、あなたの日常を柔らかな光で包み込み、心地よい空間を演出します。ここでは、時間が止まったかのように穏やかなひとときを過ごすことができるのです。
オープンレジデンシア麻布六本木 701の中…オープンレジデンシア麻布六本木 701。この魅力的な住所は、まるで一つの物語が始まる舞台のように、あなたを優雅に迎え入れます。東京都港区六本木3-16-19という恵まれたロケーションは、南向きの窓から輝く陽射しが、あなたの日常を柔らかな光で包み込み、心地よい空間を演出します。ここでは、時間が止まったかのように穏やかなひとときを過ごすことができるのです。
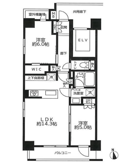
オープンレジデンシア麻布六本木 701の中に足を踏み入れる瞬間、まるで豊かな森の中に踏み込んだかのように、心が弾むのを感じるでしょう。広々としたLDKは14.3帖の余裕を持ち、あなたに贅沢な時間を提供します。美しくデザインされた空間は、まるでアートギャラリーのように、あなたの感性を刺激することでしょう。友人を招いてのディナーや、愛する人との静かな時間がここでは特別なものになります。
別室には、6帖の大きさを誇る寝室と、5帖の可愛らしい部屋が用意されています。この二つの空間は、まるであなたの心の奥底を知っているかのように、リラックスしたいときには安らぎを与え、創造的なインスピレーションが必要なときには心を開放してくれる場所です。夜、静かな時間に包まれながら、窓から見える都会の夜景がまるで一枚の絵画のように、あなたの心を豊かにしてくれることでしょう。
また、オープンレジデンシア麻布六本木 701は、24時間管理、オートロック、TVモニターホンといった充実したセキュリティ完備ですから、安心して暮らせる環境が整っています。宅配ボックスや敷地内のゴミ置場も生活の利便性を高め、忙しい日常の中でも心のゆとりを持たせてくれます。駐輪場も完備されており、あなたの自由な移動をサポートします。
そして、この物件の魅力は、その立地にあります。最寄りの東京メトロ南北線六本木一丁目駅まで徒歩5分というアクセスの良さは、まるで新しい冒険を始めるための出発点のようです。六本木という地名には、歴史的な背景と現代の文化が見事に交錯しています。芸術や音楽、食文化が息づくこのエリアでは、毎日の生活がまるで映画のワンシーンのように彩られることでしょう。
オープンレジデンシア麻布六本木 701での新しい生活は、あなたにとって何よりも大切な日々のひとときを、一層特別なものにしてくれるはずです。五感を刺激する毎日を、この素晴らしい空間で体験してください。あなたの心の中に秘めた、最高のライフスタイルを実現するための舞台が、ここにあります。
オープンレジデンシア麻布六本木 701の中…オープンレジデンシア麻布六本木 701。この魅力的な住所は、まるで一つの物語が始まる舞台のように、あなたを優雅に迎え入れます。東京都港区六本木3-16-19という恵まれたロケーションは、南向きの窓から輝く陽射しが、あなたの日常を柔らかな光で包み込み、心地よい空間を演出します。ここでは、時間が止まったかのように穏やかなひとときを過ごすことができるのです。
オープンレジデンシア麻布六本木 701の中に足を踏み入れる瞬間、まるで豊かな森の中に踏み込んだかのように、心が弾むのを感じるでしょう。広々としたLDKは14.3帖の余裕を持ち、あなたに贅沢な時間を提供します。美しくデザインされた空間は、まるでアートギャラリーのように、あなたの感性を刺激することでしょう。友人を招いてのディナーや、愛する人との静かな時間がここでは特別なものになります。
別室には、6帖の大きさを誇る寝室と、5帖の可愛らしい部屋が用意されています。この二つの空間は、まるであなたの心の奥底を知っているかのように、リラックスしたいときには安らぎを与え、創造的なインスピレーションが必要なときには心を開放してくれる場所です。夜、静かな時間に包まれながら、窓から見える都会の夜景がまるで一枚の絵画のように、あなたの心を豊かにしてくれることでしょう。
また、オープンレジデンシア麻布六本木 701は、24時間管理、オートロック、TVモニターホンといった充実したセキュリティ完備ですから、安心して暮らせる環境が整っています。宅配ボックスや敷地内のゴミ置場も生活の利便性を高め、忙しい日常の中でも心のゆとりを持たせてくれます。駐輪場も完備されており、あなたの自由な移動をサポートします。
そして、この物件の魅力は、その立地にあります。最寄りの東京メトロ南北線六本木一丁目駅まで徒歩5分というアクセスの良さは、まるで新しい冒険を始めるための出発点のようです。六本木という地名には、歴史的な背景と現代の文化が見事に交錯しています。芸術や音楽、食文化が息づくこのエリアでは、毎日の生活がまるで映画のワンシーンのように彩られることでしょう。
オープンレジデンシア麻布六本木 701での新しい生活は、あなたにとって何よりも大切な日々のひとときを、一層特別なものにしてくれるはずです。五感を刺激する毎日を、この素晴らしい空間で体験してください。あなたの心の中に秘めた、最高のライフスタイルを実現するための舞台が、ここにあります。
バイブルスコア
バイブルスコア: 31.9
平均的なスコアです。
※バイブルスコア詳細はこちら
バイブルスコアとは独自のAI機械学習技術を利用した物件評価システムで、物件のおすすめ度を示します。最高得点は100点で、スコアが高いほど、よりおすすめの物件と評価されています。
写真
契約条件
| 賃料 | 予想金額:340,000〜360,000円程度 | 管理費 | 予想金額:13,000〜17,000円程度 |
| 礼金 | 非公開(アーカイブ) | 敷金 | 非公開(アーカイブ) |
| フリーレント | なし | 平米数 | 58.37㎡ |
| 間取り | 2LDK | 大型収納 | WIC |
| 契約期間 |
| 方角 | 南 |
| 更新料 | 契約形態 | 普通賃貸借契約 | |
| 取引態様 | 媒介 | 内見状況 | 入居中 |
| 入居時期 | 入居中 | SOHO・事務所 | |
| ペット | 間取り内訳 | LDK=14.3J / BR=6J / BR=5J | |
| キャンペーン情報・備考 | 本情報は賃料改定交渉の資料作成、収益物件の利回り試算、周辺エリアや最寄り駅の坪単価分析、次回募集開始時期の予測などにご活用いただけます。 | ||
※「どの不動産に頼めばいいのか分からない」「信頼できる営業マンの話を聞きたい」「一番親切な会社と契約したい」とお悩みの方におすすめなのが「高級賃貸バイブル」です。
高級賃貸バイブルは業界10年以上の熟練スタッフ群がお客様ファーストで対応します。
下記ボタンから、まずは無料でご相談下さい。
※内覧をご希望の際には、どうぞ物件のエントランス前にてお待ち合わせくださいませ。ご内覧後は、同じ場所でお別れとさせていただきます。お客様のご都合に合わせたスムーズなご案内を心がけておりますので、ご質問等がございましたら何なりとお申し付けください。 物件概要
| 物件名 |
| 築年月 |
|
|---|---|---|---|
| 所在地 | |||
| 交通 | |||
| 総戸数 |
| 総階数 |
|
| 構造 |
| ||
地図
物件までの道のりは、「拡大地図を表示」をクリックしてナビ機能をご利用ください。
部屋設備


















建物設備

24時間管理

TVモニターホン

エレベーター

オートロック

宅配ボックス

敷地内ゴミ置場

駐輪場
オープンレジデンシア麻布六本木の現在募集中のお部屋
- No rooms found for this property.


























