
| 賃料 | 予想金額:95,000〜115,000円程度 | 管理費 | 予想金額:8,000〜12,000円程度 |
| 礼金/敷金 | 非公開(アーカイブ) | 平米数 | 34.8㎡ |
| 初期費用概算(参考) | 目安:424,000〜524,000 円 | みなし賃料(月額・参考) | 112,688〜132,688 円 |
| 備考 | 本ページは過去募集のアーカイブです。表示の金額は周辺相場・過去募集を踏まえた参考レンジであり、実際の契約金額・条件ではありません。 | ||
※上記みなし賃料(月額)は仲介手数料割引・無料&キャッシュバックを加味した高級賃貸バイブル限定の金額です。一般的なみなし賃料とは異なります。
【建物ページ】白金アネックスの詳細・最新空室はこちら▶▶選ばれる理由
仲介手数料無料・キャンペーン情報(毎月15名様限定)
〇仲介手数料割引キャンペーン
白金アネックス 503の口コミ・レビュー
白金アネックス 503。心躍るその名は、ただの物件名に留まらず、貴方の日々の生活を豊かに彩るパートナーのように響きます。ここは東京都港区白金、輝きを放つ街角の一画に佇み、南西の陽射しが優しく包み込む美しい住まいです。
扉を開けると、貴方はこの空間の優雅な一員となります。広々とした洋室12畳は、まるで貴族の書斎のような気品を漂わせ、床に足を下ろした瞬間、温かみのある木のぬくもりが貴方を優しく迎え入…白金アネックス 503。心躍るその名は、ただの物件名に留まらず、貴方の日々の生活を豊かに彩るパートナーのように響きます。ここは東京都港区白金、輝きを放つ街角の一画に佇み、南西の陽射しが優しく包み込む美しい住まいです。
扉を開けると、貴方はこの空間の優雅な一員となります。広々とした洋室12畳は、まるで貴族の書斎のような気品を漂わせ、床に足を下ろした瞬間、温かみのある木のぬくもりが貴方を優しく迎え入れます。34.8㎡の広さは、自由に想像を広げるキャンバス。ここで、小説を書いたり、画を描いたり、または心地よい音楽を奏でたりと、あらゆる創造性が息づく場所となることでしょう。
白金アネックス 503は、まるで洗練されたデザイナーが手掛けた芸術作品のように、スタイリッシュなデザインに満ちています。エレガントなオートロックシステムに守られ、まるで貴方の秘密の隠れ家を守る騎士のようです。朝日が差し込む時間、窓辺に立ち、そよ風を肌で感じながら出勤の準備をする。すぐそばには、東京メトロ南北線白金高輪駅があり、わずか徒歩2分の距離で一瞬のうちに都会の喧騒と繋がることができるのです。都心の動脈にアクセスしながら、この静謐な空間で心の安らぎを得られる贅沢を、貴方も味わってみませんか。
生活の中で感じる五感の豊かさを大切にしたい貴方に、白金アネックス 503は絶好の舞台を提供します。美味しいコーヒーの香りが漂う朝、窓から差し込む光を浴びながら、スリッパの柔らかさが足の裏を優しく包み込みます。そして、夕暮れ時には、黄昏の光が部屋を彩り、静寂の中で貴方自身と向き合う時間を持つことができるのです。
この白金のエリアは、歴史と文化が息づく土地でもあります。周囲にはアートギャラリーやカフェ、静かな公園が点在し、優雅に散歩することができます。心華やぐひとときを求めて、白金アネックス 503の扉を開いた貴方には、毎日が映画のワンシーンのように、特別な瞬間が待っていることでしょう。住まうことが、ただの生活を超えたストーリーの始まりとなるのです。
さあ、白金アネックス 503で、貴方の新たな章を或いは人生の舞台を演じてみてはいかがでしょうか。あなたの物語が、この空間の中でどのように紡がれていくのか、心から楽しみです。
扉を開けると、貴方はこの空間の優雅な一員となります。広々とした洋室12畳は、まるで貴族の書斎のような気品を漂わせ、床に足を下ろした瞬間、温かみのある木のぬくもりが貴方を優しく迎え入…白金アネックス 503。心躍るその名は、ただの物件名に留まらず、貴方の日々の生活を豊かに彩るパートナーのように響きます。ここは東京都港区白金、輝きを放つ街角の一画に佇み、南西の陽射しが優しく包み込む美しい住まいです。
扉を開けると、貴方はこの空間の優雅な一員となります。広々とした洋室12畳は、まるで貴族の書斎のような気品を漂わせ、床に足を下ろした瞬間、温かみのある木のぬくもりが貴方を優しく迎え入れます。34.8㎡の広さは、自由に想像を広げるキャンバス。ここで、小説を書いたり、画を描いたり、または心地よい音楽を奏でたりと、あらゆる創造性が息づく場所となることでしょう。
白金アネックス 503は、まるで洗練されたデザイナーが手掛けた芸術作品のように、スタイリッシュなデザインに満ちています。エレガントなオートロックシステムに守られ、まるで貴方の秘密の隠れ家を守る騎士のようです。朝日が差し込む時間、窓辺に立ち、そよ風を肌で感じながら出勤の準備をする。すぐそばには、東京メトロ南北線白金高輪駅があり、わずか徒歩2分の距離で一瞬のうちに都会の喧騒と繋がることができるのです。都心の動脈にアクセスしながら、この静謐な空間で心の安らぎを得られる贅沢を、貴方も味わってみませんか。
生活の中で感じる五感の豊かさを大切にしたい貴方に、白金アネックス 503は絶好の舞台を提供します。美味しいコーヒーの香りが漂う朝、窓から差し込む光を浴びながら、スリッパの柔らかさが足の裏を優しく包み込みます。そして、夕暮れ時には、黄昏の光が部屋を彩り、静寂の中で貴方自身と向き合う時間を持つことができるのです。
この白金のエリアは、歴史と文化が息づく土地でもあります。周囲にはアートギャラリーやカフェ、静かな公園が点在し、優雅に散歩することができます。心華やぐひとときを求めて、白金アネックス 503の扉を開いた貴方には、毎日が映画のワンシーンのように、特別な瞬間が待っていることでしょう。住まうことが、ただの生活を超えたストーリーの始まりとなるのです。
さあ、白金アネックス 503で、貴方の新たな章を或いは人生の舞台を演じてみてはいかがでしょうか。あなたの物語が、この空間の中でどのように紡がれていくのか、心から楽しみです。
バイブルスコア
バイブルスコア: 42.6
条件のいい物件です、引っ越しが2か月以内の場合は仮申し込みを検討すべき物件です。
※バイブルスコア詳細はこちら
バイブルスコアとは独自のAI機械学習技術を利用した物件評価システムで、物件のおすすめ度を示します。最高得点は100点で、スコアが高いほど、よりおすすめの物件と評価されています。
写真
契約条件
| 賃料 | 予想金額:95,000〜115,000円程度 | 管理費 | 予想金額:8,000〜12,000円程度 |
| 礼金 | 非公開(アーカイブ) | 敷金 | 非公開(アーカイブ) |
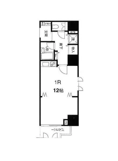
| フリーレント | なし | 平米数 | 34.8㎡ |
| 間取り | 1R | 大型収納 | |
| 契約期間 |
| 方角 | 南西 |
| 更新料 | 契約形態 | 普通賃貸借契約 | |
| 取引態様 | 媒介 | 内見状況 | 入居中 |
| 入居時期 | 入居中 | SOHO・事務所 | |
| ペット | 間取り内訳 | 洋室12畳 | |
| キャンペーン情報・備考 | 本情報は賃料改定交渉の資料作成、収益物件の利回り試算、周辺エリアや最寄り駅の坪単価分析、次回募集開始時期の予測などにご活用いただけます。 | ||
※「どの不動産に頼めばいいのか分からない」「信頼できる営業マンの話を聞きたい」「一番親切な会社と契約したい」とお悩みの方におすすめなのが「高級賃貸バイブル」です。
高級賃貸バイブルは業界10年以上の熟練スタッフ群がお客様ファーストで対応します。
下記ボタンから、まずは無料でご相談下さい。
※内覧をご希望の際には、どうぞ物件のエントランス前にてお待ち合わせくださいませ。ご内覧後は、同じ場所でお別れとさせていただきます。お客様のご都合に合わせたスムーズなご案内を心がけておりますので、ご質問等がございましたら何なりとお申し付けください。 物件概要
| 物件名 |
| 築年月 |
|
|---|---|---|---|
| 所在地 | |||
| 交通 | |||
| 総戸数 | 総階数 |
| |
| 構造 |
| ||
地図
物件までの道のりは、「拡大地図を表示」をクリックしてナビ機能をご利用ください。
部屋設備









建物設備

エレベーター

オートロック

敷地内ゴミ置場

駐輪場
白金アネックスの現在募集中のお部屋
- 白金アネックス 901 - 間取り: 1LDK - 賃料: 18.9万円








