
| 賃料 | 予想金額:87,000〜107,000円程度 | 管理費 | 予想金額:15,000〜19,000円程度 |
| 礼金/敷金 | 非公開(アーカイブ) | 平米数 | 26.06㎡ |
| 初期費用概算(参考) | 目安:326,000〜426,000 円 | みなし賃料(月額・参考) | 109,813〜129,813 円 |
| 備考 | 本ページは過去募集のアーカイブです。表示の金額は周辺相場・過去募集を踏まえた参考レンジであり、実際の契約金額・条件ではありません。 | ||
※上記みなし賃料(月額)は仲介手数料割引・無料&キャッシュバックを加味した高級賃貸バイブル限定の金額です。一般的なみなし賃料とは異なります。
【建物ページ】ガリシア九段下ライズの詳細・最新空室はこちら▶▶選ばれる理由
仲介手数料無料・キャンペーン情報(毎月15名様限定)
〇仲介手数料割引キャンペーン
ガリシア九段下ライズ 4階 26.06㎡の口コミ・レビュー
ガリシア九段下ライズ 4階 26.06㎡。この美しいマンションは、あなたが求めていた生活の舞台を提供する、まさに理想の空間です。静穏なる北の風が優しく寄り添い、あなたの夢を叶えるための扉を開きます。ここはただの住まいではありません。まるで新たな冒険が待っている映画のワンシーンのように、日々の生活を特別なものへと変えてくれる場所なのです。
入居した瞬間、目の前に広がるのは、優雅に設えられた洋室8帖…ガリシア九段下ライズ 4階 26.06㎡。この美しいマンションは、あなたが求めていた生活の舞台を提供する、まさに理想の空間です。静穏なる北の風が優しく寄り添い、あなたの夢を叶えるための扉を開きます。ここはただの住まいではありません。まるで新たな冒険が待っている映画のワンシーンのように、日々の生活を特別なものへと変えてくれる場所なのです。
入居した瞬間、目の前に広がるのは、優雅に設えられた洋室8帖の空間。広々とした空間は、日常の喧騒を忘れさせてくれるサンクチュアリのようです。柔らかな光が窓から差し込み、カーテンがゆったりと揺れる様子は、まるで風の旋律が踊りを誘うかのよう。あなたの心に安らぎをもたらし、ここに足を運ぶたび新たなインスピレーションが生まれることでしょう。
このガリシア九段下ライズは、24時間の管理サービスを誇り、安心感を日々の生活に添えます。エレベーターで静かに上がる度に、胸の高鳴りが増し、まるで特別な場所に向かうかのように感じることでしょう。オートロックのセキュリティが、あなたのプライベート空間をしっかりと守り、何も思い悩むことなく、心から安らげる環境を提供します。宅配ボックスも完備されており、忙しい日々の中でも、気軽にお荷物を受け取ることができるのです。
周辺の九段北は、歴史と文化が息づく街。東京メトロ半蔵門線九段下駅まで徒歩2分の利便性も相まって、心の故郷のように感じる場所がたくさんあります。歴史ある神社や公園、洗練されたカフェやアートギャラリーが点在し、散策すること自体がまるで贅沢な時間になります。朝の静けさに包まれた神社の前で、深呼吸をしてみてください。清々しい空気が体の隅々まで行き渡り、あなたの心をリフレッシュさせてくれるでしょう。
また、ガリシア九段下ライズの周囲には、数々のアートや文化的行事が行われる場所があります。四季折々のイベントに触れ、その時の香りや音を楽しむことができるのも、ここに住む特権です。夜には、バルコニーから星空を眺め、静寂の中に響く虫の声に耳を澄ませながら、一杯のワインを嗜む。そんな優雅な時間が、日常の中に自然と溶け込んでしまうのです。
このガリシア九段下ライズ 4階 26.06㎡は、ただの住まいを超え、あなたの人生をより豊かにする舞台となることでしょう。この新たな冒険の一歩を、心を躍らせながら踏み出してください。あなたの物語は、ここから始まるのです。
入居した瞬間、目の前に広がるのは、優雅に設えられた洋室8帖…ガリシア九段下ライズ 4階 26.06㎡。この美しいマンションは、あなたが求めていた生活の舞台を提供する、まさに理想の空間です。静穏なる北の風が優しく寄り添い、あなたの夢を叶えるための扉を開きます。ここはただの住まいではありません。まるで新たな冒険が待っている映画のワンシーンのように、日々の生活を特別なものへと変えてくれる場所なのです。
入居した瞬間、目の前に広がるのは、優雅に設えられた洋室8帖の空間。広々とした空間は、日常の喧騒を忘れさせてくれるサンクチュアリのようです。柔らかな光が窓から差し込み、カーテンがゆったりと揺れる様子は、まるで風の旋律が踊りを誘うかのよう。あなたの心に安らぎをもたらし、ここに足を運ぶたび新たなインスピレーションが生まれることでしょう。
このガリシア九段下ライズは、24時間の管理サービスを誇り、安心感を日々の生活に添えます。エレベーターで静かに上がる度に、胸の高鳴りが増し、まるで特別な場所に向かうかのように感じることでしょう。オートロックのセキュリティが、あなたのプライベート空間をしっかりと守り、何も思い悩むことなく、心から安らげる環境を提供します。宅配ボックスも完備されており、忙しい日々の中でも、気軽にお荷物を受け取ることができるのです。
周辺の九段北は、歴史と文化が息づく街。東京メトロ半蔵門線九段下駅まで徒歩2分の利便性も相まって、心の故郷のように感じる場所がたくさんあります。歴史ある神社や公園、洗練されたカフェやアートギャラリーが点在し、散策すること自体がまるで贅沢な時間になります。朝の静けさに包まれた神社の前で、深呼吸をしてみてください。清々しい空気が体の隅々まで行き渡り、あなたの心をリフレッシュさせてくれるでしょう。
また、ガリシア九段下ライズの周囲には、数々のアートや文化的行事が行われる場所があります。四季折々のイベントに触れ、その時の香りや音を楽しむことができるのも、ここに住む特権です。夜には、バルコニーから星空を眺め、静寂の中に響く虫の声に耳を澄ませながら、一杯のワインを嗜む。そんな優雅な時間が、日常の中に自然と溶け込んでしまうのです。
このガリシア九段下ライズ 4階 26.06㎡は、ただの住まいを超え、あなたの人生をより豊かにする舞台となることでしょう。この新たな冒険の一歩を、心を躍らせながら踏み出してください。あなたの物語は、ここから始まるのです。
バイブルスコア
バイブルスコア: 49.9
条件のいい物件です、引っ越しが2か月以内の場合は仮申し込みを検討すべき物件です。
※バイブルスコア詳細はこちら
バイブルスコアとは独自のAI機械学習技術を利用した物件評価システムで、物件のおすすめ度を示します。最高得点は100点で、スコアが高いほど、よりおすすめの物件と評価されています。
写真
契約条件
| 賃料 | 予想金額:87,000〜107,000円程度 | 管理費 | 予想金額:15,000〜19,000円程度 |
| 礼金 | 非公開(アーカイブ) | 敷金 | 非公開(アーカイブ) |
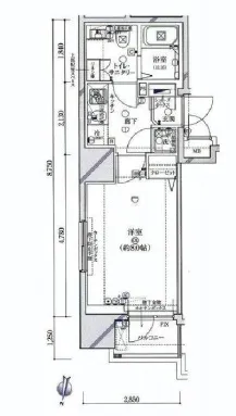
| フリーレント | なし | 平米数 | 26.06㎡ |
| 間取り | 1K | 大型収納 | なし |
| 契約期間 | 2年 | 方角 | 北 |
| 更新料 | 1ヶ月 | 契約形態 | 普通賃貸借契約 |
| 取引態様 | 媒介 | 内見状況 | 入居中 |
| 入居時期 | 入居中 | SOHO・事務所 | 不可 |
| ペット | 可 | 間取り内訳 | 洋室8帖 |
| キャンペーン情報・備考 | 本情報は賃料改定交渉の資料作成、収益物件の利回り試算、周辺エリアや最寄り駅の坪単価分析、次回募集開始時期の予測などにご活用いただけます。 | ||
※「どの不動産に頼めばいいのか分からない」「信頼できる営業マンの話を聞きたい」「一番親切な会社と契約したい」とお悩みの方におすすめなのが「高級賃貸バイブル」です。
高級賃貸バイブルは業界10年以上の熟練スタッフ群がお客様ファーストで対応します。
下記ボタンから、まずは無料でご相談下さい。
※内覧をご希望の際には、どうぞ物件のエントランス前にてお待ち合わせくださいませ。ご内覧後は、同じ場所でお別れとさせていただきます。お客様のご都合に合わせたスムーズなご案内を心がけておりますので、ご質問等がございましたら何なりとお申し付けください。 物件概要
| 物件名 |
| 築年月 |
|
|---|---|---|---|
| 所在地 | |||
| 交通 | |||
| 総戸数 |
| 総階数 |
|
| 構造 |
| ||
地図
物件までの道のりは、「拡大地図を表示」をクリックしてナビ機能をご利用ください。
部屋設備









建物設備

24時間管理

TVモニターホン

エレベーター

オートロック

宅配ボックス

敷地内ゴミ置場

管理人

駐輪場
ガリシア九段下ライズの現在募集中のお部屋
- No rooms found for this property.




















