
| 賃料 | 予想金額:159,000〜179,000円程度 | 管理費 | 予想金額:8,000〜12,000円程度 |
| 礼金/敷金 | 非公開(アーカイブ) | 平米数 | 37.55㎡ |
| 初期費用概算(参考) | 目安:546,600〜646,600 円 | みなし賃料(月額・参考) | 177,908〜197,908 円 |
| 備考 | 本ページは過去募集のアーカイブです。表示の金額は周辺相場・過去募集を踏まえた参考レンジであり、実際の契約金額・条件ではありません。 | ||
※上記みなし賃料(月額)は仲介手数料割引・無料&キャッシュバックを加味した高級賃貸バイブル限定の金額です。一般的なみなし賃料とは異なります。
【建物ページ】ロイジェント新橋の詳細・最新空室はこちら▶▶選ばれる理由
仲介手数料無料・キャンペーン情報(毎月15名様限定)
〇引っ越しお祝い金101400円プレゼント(キャッシュバック)
ロイジェント新橋 501の口コミ・レビュー
ロイジェント新橋 501。この美しい言葉の響きが、あなたの新しい生活の扉を静かに開く合図となります。東京都港区新橋5-7-7に位置するこの素敵な高級賃貸物件は、まるで都会のオアシスのように、日々の喧騒から解放される空間を提供します。501号室は、あなたを心地よい安らぎへと誘う、魅力的な1LDK。37.55㎡の広大さは、自由な発想を育むキャンバスとなり、あなたのライフスタイルを見事に表現します。
…ロイジェント新橋 501。この美しい言葉の響きが、あなたの新しい生活の扉を静かに開く合図となります。東京都港区新橋5-7-7に位置するこの素敵な高級賃貸物件は、まるで都会のオアシスのように、日々の喧騒から解放される空間を提供します。501号室は、あなたを心地よい安らぎへと誘う、魅力的な1LDK。37.55㎡の広大さは、自由な発想を育むキャンバスとなり、あなたのライフスタイルを見事に表現します。
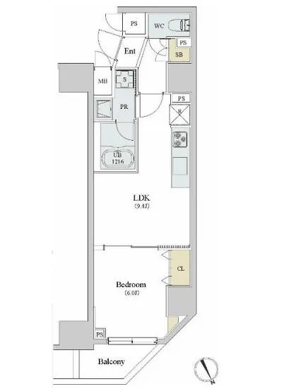
このロイジェント新橋 501に足を踏み入れれば、まずはダイニングとリビングが一体となる9.4帖の空間が目に入ります。大きな窓から差し込む北の光は、まるで優しい手の平のように、温かくも清々しい空気を運んできてくれます。その光の中で、家族や友人とともに過ごすひとときの幸せを想像してください。心地よい香ばしいコーヒーの香りが漂い、あなたの頭の中に素敵な思い出を紡ぎ出すことでしょう。
次に目に映るのは、6.0帖の洋室です。この空間は、まるで静かな森の中に佇む避難所のように、あなた自身を表現する場となります。柔らかなベッドの上に横たわり、穏やかな夢を見つつ、自分だけの世界に浸る瞬間を思い描いてみてください。静かな時間が流れる中、窓の外から聞こえる微かな街のざわめきが、まるで遠くから話しかける友の声のように感じるでしょう。
ロイジェント新橋 501のインテリアは、洗練された美しさを兼ね備えており、シンプルながらも洗練されたデザインが、あなたの日常に雅やかなエッセンスを加えます。TVモニターホンやオートロックなどの最新設備は、まさに現代の安心を与えてくれる存在です。エレベーターでの移動もスムーズで、日常のあらゆるシーンで快適さを約束します。
周辺には新橋の歴史が息づいており、文化や芸術が満ちています。賑やかな街並みから少し離れたこの物件では、落ち着いた環境の中で、心に余裕をもたらすことができるでしょう。散歩に出かければ、街の歴史と風情を感じながら、ひとつひとつの瞬間がまるで映画のワンシーンのように心に焼き付いていきます。
ロイジェント新橋 501は、まるであなた自身を待っているかのように、その扉を開いて呼びかけてきます。その空間に身を委ね、五感を研ぎ澄ませて、さまざまな体験を通じて日常を特別なものに変えていく。あなたの新しい生活が、この場所から始まるのです。心ゆくまで、あなたの物語を描いてください。その舞台は、ロイジェント新橋 501です。
…ロイジェント新橋 501。この美しい言葉の響きが、あなたの新しい生活の扉を静かに開く合図となります。東京都港区新橋5-7-7に位置するこの素敵な高級賃貸物件は、まるで都会のオアシスのように、日々の喧騒から解放される空間を提供します。501号室は、あなたを心地よい安らぎへと誘う、魅力的な1LDK。37.55㎡の広大さは、自由な発想を育むキャンバスとなり、あなたのライフスタイルを見事に表現します。
このロイジェント新橋 501に足を踏み入れれば、まずはダイニングとリビングが一体となる9.4帖の空間が目に入ります。大きな窓から差し込む北の光は、まるで優しい手の平のように、温かくも清々しい空気を運んできてくれます。その光の中で、家族や友人とともに過ごすひとときの幸せを想像してください。心地よい香ばしいコーヒーの香りが漂い、あなたの頭の中に素敵な思い出を紡ぎ出すことでしょう。
次に目に映るのは、6.0帖の洋室です。この空間は、まるで静かな森の中に佇む避難所のように、あなた自身を表現する場となります。柔らかなベッドの上に横たわり、穏やかな夢を見つつ、自分だけの世界に浸る瞬間を思い描いてみてください。静かな時間が流れる中、窓の外から聞こえる微かな街のざわめきが、まるで遠くから話しかける友の声のように感じるでしょう。
ロイジェント新橋 501のインテリアは、洗練された美しさを兼ね備えており、シンプルながらも洗練されたデザインが、あなたの日常に雅やかなエッセンスを加えます。TVモニターホンやオートロックなどの最新設備は、まさに現代の安心を与えてくれる存在です。エレベーターでの移動もスムーズで、日常のあらゆるシーンで快適さを約束します。
周辺には新橋の歴史が息づいており、文化や芸術が満ちています。賑やかな街並みから少し離れたこの物件では、落ち着いた環境の中で、心に余裕をもたらすことができるでしょう。散歩に出かければ、街の歴史と風情を感じながら、ひとつひとつの瞬間がまるで映画のワンシーンのように心に焼き付いていきます。
ロイジェント新橋 501は、まるであなた自身を待っているかのように、その扉を開いて呼びかけてきます。その空間に身を委ね、五感を研ぎ澄ませて、さまざまな体験を通じて日常を特別なものに変えていく。あなたの新しい生活が、この場所から始まるのです。心ゆくまで、あなたの物語を描いてください。その舞台は、ロイジェント新橋 501です。
バイブルスコア
バイブルスコア: 14.7
高級な物件でない場合は割高な物件です。。
※バイブルスコア詳細はこちら
バイブルスコアとは独自のAI機械学習技術を利用した物件評価システムで、物件のおすすめ度を示します。最高得点は100点で、スコアが高いほど、よりおすすめの物件と評価されています。
写真
契約条件
| 賃料 | 予想金額:159,000〜179,000円程度 | 管理費 | 予想金額:8,000〜12,000円程度 |
| 礼金 | 非公開(アーカイブ) | 敷金 | 非公開(アーカイブ) |
| フリーレント | なし | 平米数 | 37.55㎡ |
| 間取り | 1LDK | 大型収納 | |
| 契約期間 |
| 方角 | 北 |
| 更新料 | 契約形態 | 普通賃貸借契約 | |
| 取引態様 | 媒介 | 内見状況 | 入居中 |
| 入居時期 | 入居中 | SOHO・事務所 | |
| ペット | ペット可 | 間取り内訳 | 洋:6.0 LDK:9.4 |
| キャンペーン情報・備考 | 本情報は賃料改定交渉の資料作成、収益物件の利回り試算、周辺エリアや最寄り駅の坪単価分析、次回募集開始時期の予測などにご活用いただけます。 | ||
※「どの不動産に頼めばいいのか分からない」「信頼できる営業マンの話を聞きたい」「一番親切な会社と契約したい」とお悩みの方におすすめなのが「高級賃貸バイブル」です。
高級賃貸バイブルは業界10年以上の熟練スタッフ群がお客様ファーストで対応します。
下記ボタンから、まずは無料でご相談下さい。
※内覧をご希望の際には、どうぞ物件のエントランス前にてお待ち合わせくださいませ。ご内覧後は、同じ場所でお別れとさせていただきます。お客様のご都合に合わせたスムーズなご案内を心がけておりますので、ご質問等がございましたら何なりとお申し付けください。 物件概要
| 物件名 |
| 築年月 |
|
|---|---|---|---|
| 所在地 | |||
| 交通 | |||
| 総戸数 |
| 総階数 |
|
| 構造 |
| ||
地図
物件までの道のりは、「拡大地図を表示」をクリックしてナビ機能をご利用ください。
部屋設備















建物設備

TVモニターホン

エレベーター

オートロック

敷地内ゴミ置場

駐車場機械式

駐輪場
ロイジェント新橋の現在募集中のお部屋
- ロイジェント新橋 902 - 間取り: 1K+WIC - 賃料: 17.5万円





























