
| 賃料 | 予想金額:320,000〜340,000円程度 | 管理費 | 予想金額:13,000〜17,000円程度 |
| 礼金/敷金 | 非公開(アーカイブ) | 平米数 | 48.7㎡ |
| 初期費用概算(参考) | 目安:174,000〜274,000 円 | みなし賃料(月額・参考) | 332,792〜352,792 円 |
| 備考 | 本ページは過去募集のアーカイブです。表示の金額は周辺相場・過去募集を踏まえた参考レンジであり、実際の契約金額・条件ではありません。 | ||
※上記みなし賃料(月額)は仲介手数料割引・無料&キャッシュバックを加味した高級賃貸バイブル限定の金額です。一般的なみなし賃料とは異なります。
【建物ページ】プライムメゾン代官山の詳細・最新空室はこちら▶▶選ばれる理由
仲介手数料無料・キャンペーン情報(毎月15名様限定)
〇引っ越しお祝い金660000円プレゼント(キャッシュバック)
〇仲介手数料無料キャンペーン
プライムメゾン代官山 205の口コミ・レビュー
「プライムメゾン代官山 205」の扉を開けると、あなたはまるで詩的な映画のワンシーンに引き込まれるような、独特な魅力に包まれます。この洗練された空間は、ただの住まいではなく、人生の新たなアートとしてあなたを迎え入れるでしょう。
プライムメゾン代官山 205は、洗練されたデザインと機能が見事に調和し、まるで心のどこかに憧れを秘めたあなたに語りかけるようです。48.7㎡の専有面積には、優雅さと心地よ…「プライムメゾン代官山 205」の扉を開けると、あなたはまるで詩的な映画のワンシーンに引き込まれるような、独特な魅力に包まれます。この洗練された空間は、ただの住まいではなく、人生の新たなアートとしてあなたを迎え入れるでしょう。
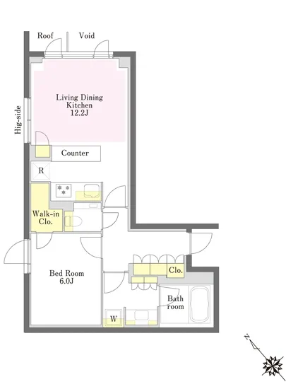
プライムメゾン代官山 205は、洗練されたデザインと機能が見事に調和し、まるで心のどこかに憧れを秘めたあなたに語りかけるようです。48.7㎡の専有面積には、優雅さと心地よさが満ち溢れており、6帖の洋室は、あなたの個性を引き立てるキャンバスとなるでしょう。12.2帖のLDKは、まるで特別な瞬間を演出する舞台のようで、友人と笑い声を交わしたり、静かな午後に読書に耽る様子が目に浮かびます。
この場所は、情緒豊かな青葉台の中でもひときわ輝く存在感を放つ高級賃貸物件です。「プライムメゾン代官山 205」は、北西と北東の二方向から光が差し込み、朝日が新たな一日の始まりを告げると同時に、夕暮れ時には柔らかな陽射しが空間を包み込みます。その瞬間、色とりどりの光と影が織りなす幻想的な景色は、心に深く刻まれることでしょう。
エレベーターで颯爽と上がるたびに、あなたはこの家がただの物理的な空間ではなく、心安らぐ場所であることを感じるはずです。オートロックによる安全性も、あなたの生活の一部として溶け込み、まるで何気ない日常の中に特別さをもたらす存在です。
また、宅配ボックスや駐輪場、さらには整然とした敷地内のゴミ置場も、細やかな配慮がなされています。これらの設備は、生活をスムーズに進行させるだけでなく、あなたの時間をゆったりと楽しむためのサポートをするものです。静寂の中で、時折聞こえる街のざわめきもまた、生活の一コマとして心に残ります。
周辺には代官山の文化や歴史が息づいており、町を散策するとアート作品やカフェが点在し、五感を刺激される体験が待っています。美しい街並みの中で新しい発見をするたび、あなたの心は豊かに広がることでしょう。
「プライムメゾン代官山 205」での日々は、ただ時間が流れるのではなく、人生の豊かさを紡ぎ出す瞬間の連続です。この場所での生活は、あなたにとっての特別なストーリーの幕開け。心地よい生活に浸りながら、この高級賃貸物件があなたの人生の真ん中に据えられ、思い出の宝箱となることを心から願っております。ぜひ、一度足を運んでみてはいかがでしょうか。この魅力あふれる場所が、あなたを待っています。
プライムメゾン代官山 205は、洗練されたデザインと機能が見事に調和し、まるで心のどこかに憧れを秘めたあなたに語りかけるようです。48.7㎡の専有面積には、優雅さと心地よ…「プライムメゾン代官山 205」の扉を開けると、あなたはまるで詩的な映画のワンシーンに引き込まれるような、独特な魅力に包まれます。この洗練された空間は、ただの住まいではなく、人生の新たなアートとしてあなたを迎え入れるでしょう。
プライムメゾン代官山 205は、洗練されたデザインと機能が見事に調和し、まるで心のどこかに憧れを秘めたあなたに語りかけるようです。48.7㎡の専有面積には、優雅さと心地よさが満ち溢れており、6帖の洋室は、あなたの個性を引き立てるキャンバスとなるでしょう。12.2帖のLDKは、まるで特別な瞬間を演出する舞台のようで、友人と笑い声を交わしたり、静かな午後に読書に耽る様子が目に浮かびます。
この場所は、情緒豊かな青葉台の中でもひときわ輝く存在感を放つ高級賃貸物件です。「プライムメゾン代官山 205」は、北西と北東の二方向から光が差し込み、朝日が新たな一日の始まりを告げると同時に、夕暮れ時には柔らかな陽射しが空間を包み込みます。その瞬間、色とりどりの光と影が織りなす幻想的な景色は、心に深く刻まれることでしょう。
エレベーターで颯爽と上がるたびに、あなたはこの家がただの物理的な空間ではなく、心安らぐ場所であることを感じるはずです。オートロックによる安全性も、あなたの生活の一部として溶け込み、まるで何気ない日常の中に特別さをもたらす存在です。
また、宅配ボックスや駐輪場、さらには整然とした敷地内のゴミ置場も、細やかな配慮がなされています。これらの設備は、生活をスムーズに進行させるだけでなく、あなたの時間をゆったりと楽しむためのサポートをするものです。静寂の中で、時折聞こえる街のざわめきもまた、生活の一コマとして心に残ります。
周辺には代官山の文化や歴史が息づいており、町を散策するとアート作品やカフェが点在し、五感を刺激される体験が待っています。美しい街並みの中で新しい発見をするたび、あなたの心は豊かに広がることでしょう。
「プライムメゾン代官山 205」での日々は、ただ時間が流れるのではなく、人生の豊かさを紡ぎ出す瞬間の連続です。この場所での生活は、あなたにとっての特別なストーリーの幕開け。心地よい生活に浸りながら、この高級賃貸物件があなたの人生の真ん中に据えられ、思い出の宝箱となることを心から願っております。ぜひ、一度足を運んでみてはいかがでしょうか。この魅力あふれる場所が、あなたを待っています。
バイブルスコア
バイブルスコア: 42.1
条件のいい物件です、引っ越しが2か月以内の場合は仮申し込みを検討すべき物件です。
※バイブルスコア詳細はこちら
バイブルスコアとは独自のAI機械学習技術を利用した物件評価システムで、物件のおすすめ度を示します。最高得点は100点で、スコアが高いほど、よりおすすめの物件と評価されています。
写真
現在写真が登録されていません契約条件
| 賃料 | 予想金額:320,000〜340,000円程度 | 管理費 | 予想金額:13,000〜17,000円程度 |
| 礼金 | 非公開(アーカイブ) | 敷金 | 非公開(アーカイブ) |
| フリーレント | なし | 平米数 | 48.7㎡ |
| 間取り | 1LDK | 大型収納 | WIC |
| 契約期間 | 2年 | 方角 | 北西 / 北東 |
| 更新料 | 1ヶ月 | 契約形態 | 普通賃貸借契約 |
| 取引態様 | 媒介 | 内見状況 | 入居中 |
| 入居時期 | 入居中 | SOHO・事務所 | 不可 |
| ペット | ペット可 | 間取り内訳 | 洋:6 LDK:12.2 |
| キャンペーン情報・備考 | 本情報は賃料改定交渉の資料作成、収益物件の利回り試算、周辺エリアや最寄り駅の坪単価分析、次回募集開始時期の予測などにご活用いただけます。 | ||
※「どの不動産に頼めばいいのか分からない」「信頼できる営業マンの話を聞きたい」「一番親切な会社と契約したい」とお悩みの方におすすめなのが「高級賃貸バイブル」です。
高級賃貸バイブルは業界10年以上の熟練スタッフ群がお客様ファーストで対応します。
下記ボタンから、まずは無料でご相談下さい。
※内覧をご希望の際には、どうぞ物件のエントランス前にてお待ち合わせくださいませ。ご内覧後は、同じ場所でお別れとさせていただきます。お客様のご都合に合わせたスムーズなご案内を心がけておりますので、ご質問等がございましたら何なりとお申し付けください。 物件概要
| 物件名 |
| 築年月 |
|
|---|---|---|---|
| 所在地 | |||
| 交通 | |||
| 総戸数 |
| 総階数 |
|
| 構造 |
| ||
地図
物件までの道のりは、「拡大地図を表示」をクリックしてナビ機能をご利用ください。
部屋設備

















建物設備

TVモニターホン

エレベーター

オートロック

宅配ボックス

敷地内ゴミ置場

管理人

駐車場平置き

駐車場機械式

駐輪場
プライムメゾン代官山の現在募集中のお部屋
- プライムメゾン代官山 201 - 間取り: 1LDK+SIC - 賃料: 31万円
- プライムメゾン代官山 407 - 間取り: 1LDK - 賃料: 42万円
