
| 賃料 | 予想金額:214,000〜234,000円程度 | 管理費 | 予想金額:8,000〜12,000円程度 |
| 礼金/敷金 | 非公開(アーカイブ) | 平米数 | 47.28㎡ |
| 初期費用概算(参考) | 目安:516,700〜616,700 円 | みなし賃料(月額・参考) | 231,140〜251,140 円 |
| 備考 | 本ページは過去募集のアーカイブです。表示の金額は周辺相場・過去募集を踏まえた参考レンジであり、実際の契約金額・条件ではありません。 | ||
※上記みなし賃料(月額)は仲介手数料割引・無料&キャッシュバックを加味した高級賃貸バイブル限定の金額です。一般的なみなし賃料とは異なります。
【建物ページ】リーガランド中目黒アネックスの詳細・最新空室はこちら▶▶選ばれる理由
仲介手数料無料・キャンペーン情報(毎月15名様限定)
〇引っ越しお祝い金44800円プレゼント(キャッシュバック)
〇仲介手数料無料キャンペーン
リーガランド中目黒アネックス 301の口コミ・レビュー
リーガランド中目黒アネックス 301。あなたを迎え入れるその瞬間、扉が開くと、まるで特別な映画のワンシーンを垣間見るかのような、洗練された空間が広がります。47.28㎡の広々とした面積の中には、現代的なデザインと心地よさが絶妙に調和し、都会の喧騒を忘れさせてくれる隠れ家がここにあります。
この1LDKのリビングダイニングキッチン(LDK)は、9.5帖の広さを誇り、陽光がたっぷり差し込み、南東の窓…リーガランド中目黒アネックス 301。あなたを迎え入れるその瞬間、扉が開くと、まるで特別な映画のワンシーンを垣間見るかのような、洗練された空間が広がります。47.28㎡の広々とした面積の中には、現代的なデザインと心地よさが絶妙に調和し、都会の喧騒を忘れさせてくれる隠れ家がここにあります。
この1LDKのリビングダイニングキッチン(LDK)は、9.5帖の広さを誇り、陽光がたっぷり差し込み、南東の窓からは新しい一日が始まる喜びを感じさせてくれます。朝の光を浴びながら、香ばしいコーヒーの香りが漂う中、温かな食事がテーブルに並ぶ、そんな心温まる朝の情景が目に浮かびます。LDKのフローリングは素足で感じる心地よさを約束し、その触感はまるで自然の森に帰るような安らぎを与えてくれます。
続いて、11帖の洋室はまさに私の隠れ家。大きな窓からは静寂が訪れ、外の喧騒を忘れさせる特権を持っています。夜空を見上げながら、星たちとささやき合うだけでも心が満たされ、あなたの創造力が刺激されることでしょう。また、ふかふかのベッドに横たわると、夢の中で多彩な冒険が待っているかのような、心地よさを感じるのです。
リーガランド中目黒アネックス 301の魅力は、その設備にも宿っています。TVモニターホンやオートロックを完備し、安心が約束されています。来訪者を見守る目線は、まるで親しい友人が迎え入れてくれるような温かさを持っています。宅配ボックスも設置されており、忙しい日常でも手間をかけずに生活を楽しむことができるのです。
この物件は単なる住まいではなく、目黒区中目黒の歴史と文化を感じさせる場所に位置しています。お洒落なカフェやアートギャラリーが点在し、多くのクリエイターたちがその足を踏み入れた町。その潮流に身を委ね、アートに触れながら心の栄養を与える日々が待っています。気ままに訪れるたびに新しい発見があり、生活そのものがアートのように彩られていくのです。
リーガランド中目黒アネックス 301は、あなたの生活を映画の一コマのように美しく彩り、五感を刺激してくれる場所です。ここでの生活は、まるで宝石のような瞬間が毎日磨かれ、ますます輝きを増していくのです。豊かな時間を過ごし、心に刻まれる特別な体験があなたを待っています。さあ、この独創的な生活缶を手に入れて、日々を豊かに舞踏しましょう。
この1LDKのリビングダイニングキッチン(LDK)は、9.5帖の広さを誇り、陽光がたっぷり差し込み、南東の窓…リーガランド中目黒アネックス 301。あなたを迎え入れるその瞬間、扉が開くと、まるで特別な映画のワンシーンを垣間見るかのような、洗練された空間が広がります。47.28㎡の広々とした面積の中には、現代的なデザインと心地よさが絶妙に調和し、都会の喧騒を忘れさせてくれる隠れ家がここにあります。
この1LDKのリビングダイニングキッチン(LDK)は、9.5帖の広さを誇り、陽光がたっぷり差し込み、南東の窓からは新しい一日が始まる喜びを感じさせてくれます。朝の光を浴びながら、香ばしいコーヒーの香りが漂う中、温かな食事がテーブルに並ぶ、そんな心温まる朝の情景が目に浮かびます。LDKのフローリングは素足で感じる心地よさを約束し、その触感はまるで自然の森に帰るような安らぎを与えてくれます。
続いて、11帖の洋室はまさに私の隠れ家。大きな窓からは静寂が訪れ、外の喧騒を忘れさせる特権を持っています。夜空を見上げながら、星たちとささやき合うだけでも心が満たされ、あなたの創造力が刺激されることでしょう。また、ふかふかのベッドに横たわると、夢の中で多彩な冒険が待っているかのような、心地よさを感じるのです。
リーガランド中目黒アネックス 301の魅力は、その設備にも宿っています。TVモニターホンやオートロックを完備し、安心が約束されています。来訪者を見守る目線は、まるで親しい友人が迎え入れてくれるような温かさを持っています。宅配ボックスも設置されており、忙しい日常でも手間をかけずに生活を楽しむことができるのです。
この物件は単なる住まいではなく、目黒区中目黒の歴史と文化を感じさせる場所に位置しています。お洒落なカフェやアートギャラリーが点在し、多くのクリエイターたちがその足を踏み入れた町。その潮流に身を委ね、アートに触れながら心の栄養を与える日々が待っています。気ままに訪れるたびに新しい発見があり、生活そのものがアートのように彩られていくのです。
リーガランド中目黒アネックス 301は、あなたの生活を映画の一コマのように美しく彩り、五感を刺激してくれる場所です。ここでの生活は、まるで宝石のような瞬間が毎日磨かれ、ますます輝きを増していくのです。豊かな時間を過ごし、心に刻まれる特別な体験があなたを待っています。さあ、この独創的な生活缶を手に入れて、日々を豊かに舞踏しましょう。
バイブルスコア
バイブルスコア: 41.9
条件のいい物件です、引っ越しが2か月以内の場合は仮申し込みを検討すべき物件です。
※バイブルスコア詳細はこちら
バイブルスコアとは独自のAI機械学習技術を利用した物件評価システムで、物件のおすすめ度を示します。最高得点は100点で、スコアが高いほど、よりおすすめの物件と評価されています。
写真
現在写真が登録されていません契約条件
| 賃料 | 予想金額:214,000〜234,000円程度 | 管理費 | 予想金額:8,000〜12,000円程度 |
| 礼金 | 非公開(アーカイブ) | 敷金 | 非公開(アーカイブ) |
| フリーレント | なし | 平米数 | 47.28㎡ |
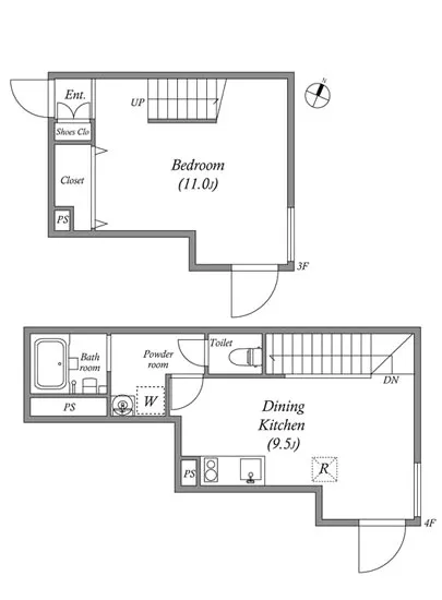
| 間取り | 1LDK | 大型収納 | なし |
| 契約期間 | 2年 | 方角 | 南東 |
| 更新料 | 1ヶ月 | 契約形態 | 普通賃貸借契約 |
| 取引態様 | 媒介 | 内見状況 | 入居中 |
| 入居時期 | 入居中 | SOHO・事務所 | 不可 |
| ペット | 不可 | 間取り内訳 | LDK9.5帖 洋室11帖 |
| キャンペーン情報・備考 | 本情報は賃料改定交渉の資料作成、収益物件の利回り試算、周辺エリアや最寄り駅の坪単価分析、次回募集開始時期の予測などにご活用いただけます。 | ||
※「どの不動産に頼めばいいのか分からない」「信頼できる営業マンの話を聞きたい」「一番親切な会社と契約したい」とお悩みの方におすすめなのが「高級賃貸バイブル」です。
高級賃貸バイブルは業界10年以上の熟練スタッフ群がお客様ファーストで対応します。
下記ボタンから、まずは無料でご相談下さい。
※内覧をご希望の際には、どうぞ物件のエントランス前にてお待ち合わせくださいませ。ご内覧後は、同じ場所でお別れとさせていただきます。お客様のご都合に合わせたスムーズなご案内を心がけておりますので、ご質問等がございましたら何なりとお申し付けください。 物件概要
| 物件名 |
| 築年月 |
|
|---|---|---|---|
| 所在地 | |||
| 交通 | |||
| 総戸数 | 総階数 |
| |
| 構造 |
| ||
地図
物件までの道のりは、「拡大地図を表示」をクリックしてナビ機能をご利用ください。
部屋設備










建物設備

TVモニターホン

オートロック

宅配ボックス

敷地内ゴミ置場
リーガランド中目黒アネックスの現在募集中のお部屋
- No rooms found for this property.
