
| 賃料 | 予想金額:1,550,000〜1,570,000円程度 | 管理費 | 予想金額:0〜2,000円程度 |
| 礼金/敷金 | 非公開(アーカイブ) | 平米数 | 188.04㎡ |
| 初期費用概算(参考) | 目安:8,621,500〜8,721,500 円 | みなし賃料(月額・参考) | 1,698,156〜1,718,156 円 |
| 備考 | 本ページは過去募集のアーカイブです。表示の金額は周辺相場・過去募集を踏まえた参考レンジであり、実際の契約金額・条件ではありません。 | ||
※上記みなし賃料(月額)は仲介手数料割引・無料&キャッシュバックを加味した高級賃貸バイブル限定の金額です。一般的なみなし賃料とは異なります。
【建物ページ】六本木さくら坂レジデンスの詳細・最新空室はこちら▶▶選ばれる理由
仲介手数料無料・キャンペーン情報(毎月15名様限定)
〇仲介手数料割引キャンペーン
六本木さくら坂レジデンス 401の口コミ・レビュー
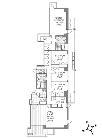
六本木さくら坂レジデンス 401は、まるであなたを特別な物語の主人公として迎え入れる、洗練された空間です。この魅惑のレジデンスは、心躍るような生活の舞台を提供し、一歩足を踏み入れた瞬間からその魅力に取り憑かれるでしょう。401の階に位置し、広大な専有面積188.04㎡を誇るこの空間は、まるで大自然の中に佇む優雅な邸宅が都市の中心に現れたような特別な印象を与えます。
リビングダイニングキッチン27…六本木さくら坂レジデンス 401は、まるであなたを特別な物語の主人公として迎え入れる、洗練された空間です。この魅惑のレジデンスは、心躍るような生活の舞台を提供し、一歩足を踏み入れた瞬間からその魅力に取り憑かれるでしょう。401の階に位置し、広大な専有面積188.04㎡を誇るこの空間は、まるで大自然の中に佇む優雅な邸宅が都市の中心に現れたような特別な印象を与えます。
リビングダイニングキッチン27.9帖の広がりは、まるで高い天井に広がる青空のように、あなたの心を解き放ちます。窓から差し込む南(やや西より)の陽光が、床に映える影と共に、心地よい温もりをもたらします。ここで過ごす朝は、晴れ渡る空の青さと共に始まり、コーヒーの香りが漂う中で優雅なブランチを楽しむことができます。パートナーと共に食卓を囲み、時には友人たちと笑い声が響き渡る、そんなシーンが目に浮かびます。
また、洋室の数々も魅力的です。20.5帖の空間は、まるで静寂な森の中で見つけた秘密の隠れ家のよう。自分だけの時間を過ごすためのプライベートな場所として、好きな本を片手に、心ゆくまでリラックスしたいものです。7.8帖、7.7帖、7.4帖の洋室は、訪れる人々に柔らかな包容感を与え、寛ぎの空間として心地よい安らぎを提供します。これらの部屋は、あなたが夢見る生活を実現する舞台となることでしょう。
この素晴らしいレジデンスの魅力は、設備の充実にもあります。24時間管理の安心感があり、TVモニターホンを通じて訪れる人々を確認することで、プライバシーをしっかりと守ってくれます。そして、フィットネス施設やプール、ラウンジは、心身をリフレッシュさせるための愛の場。心地よい水の音が耳を包み、身体を動かすことで心躍る毎日が待っています。
周辺には、文化と歴史が共存する六本木の魅力が広がっています。アートギャラリーや美術館が点在し、歴史を感じながら歩くひと時。時には、芸術作品に触れ、新しいインスピレーションを得ることもできるでしょう。六本木さくら坂レジデンス 401は、ただの住まいではなく、あなたの人生を豊かにする舞台装置なのです。
さあ、あなたの新しい物語を始める準備はできましたか?六本木さくら坂レジデンス 401が、あなたを待っています。まるで映画のワンシーンに迷い込んだかのような素敵な生活が、ここには待っているのです。新たな生活の幕が上がるその日まで、心を踊らせ、夢見続けてください。
リビングダイニングキッチン27…六本木さくら坂レジデンス 401は、まるであなたを特別な物語の主人公として迎え入れる、洗練された空間です。この魅惑のレジデンスは、心躍るような生活の舞台を提供し、一歩足を踏み入れた瞬間からその魅力に取り憑かれるでしょう。401の階に位置し、広大な専有面積188.04㎡を誇るこの空間は、まるで大自然の中に佇む優雅な邸宅が都市の中心に現れたような特別な印象を与えます。
リビングダイニングキッチン27.9帖の広がりは、まるで高い天井に広がる青空のように、あなたの心を解き放ちます。窓から差し込む南(やや西より)の陽光が、床に映える影と共に、心地よい温もりをもたらします。ここで過ごす朝は、晴れ渡る空の青さと共に始まり、コーヒーの香りが漂う中で優雅なブランチを楽しむことができます。パートナーと共に食卓を囲み、時には友人たちと笑い声が響き渡る、そんなシーンが目に浮かびます。
また、洋室の数々も魅力的です。20.5帖の空間は、まるで静寂な森の中で見つけた秘密の隠れ家のよう。自分だけの時間を過ごすためのプライベートな場所として、好きな本を片手に、心ゆくまでリラックスしたいものです。7.8帖、7.7帖、7.4帖の洋室は、訪れる人々に柔らかな包容感を与え、寛ぎの空間として心地よい安らぎを提供します。これらの部屋は、あなたが夢見る生活を実現する舞台となることでしょう。
この素晴らしいレジデンスの魅力は、設備の充実にもあります。24時間管理の安心感があり、TVモニターホンを通じて訪れる人々を確認することで、プライバシーをしっかりと守ってくれます。そして、フィットネス施設やプール、ラウンジは、心身をリフレッシュさせるための愛の場。心地よい水の音が耳を包み、身体を動かすことで心躍る毎日が待っています。
周辺には、文化と歴史が共存する六本木の魅力が広がっています。アートギャラリーや美術館が点在し、歴史を感じながら歩くひと時。時には、芸術作品に触れ、新しいインスピレーションを得ることもできるでしょう。六本木さくら坂レジデンス 401は、ただの住まいではなく、あなたの人生を豊かにする舞台装置なのです。
さあ、あなたの新しい物語を始める準備はできましたか?六本木さくら坂レジデンス 401が、あなたを待っています。まるで映画のワンシーンに迷い込んだかのような素敵な生活が、ここには待っているのです。新たな生活の幕が上がるその日まで、心を踊らせ、夢見続けてください。
バイブルスコア
バイブルスコア: 35
平均的なスコアです。
※バイブルスコア詳細はこちら
バイブルスコアとは独自のAI機械学習技術を利用した物件評価システムで、物件のおすすめ度を示します。最高得点は100点で、スコアが高いほど、よりおすすめの物件と評価されています。
写真
契約条件
| 賃料 | 予想金額:1,550,000〜1,570,000円程度 | 管理費 | 予想金額:0〜2,000円程度 |
| 礼金 | 非公開(アーカイブ) | 敷金 | 非公開(アーカイブ) |
| フリーレント | なし | 平米数 | 188.04㎡ |
| 間取り | 4LDK | 大型収納 | WIC |
| 契約期間 | 方角 | 南(やや西より) | |
| 更新料 | 契約形態 | 定期借家契約 | |
| 取引態様 | 媒介 | 内見状況 | 入居中 |
| 入居時期 | 入居中 | SOHO・事務所 | |
| ペット | ペット可 | 間取り内訳 | LDK27.9 / 洋20.5 / 洋7.8 / 洋7.7 / 洋7.4 |
| キャンペーン情報・備考 | 本情報は賃料改定交渉の資料作成、収益物件の利回り試算、周辺エリアや最寄り駅の坪単価分析、次回募集開始時期の予測などにご活用いただけます。 | ||
※「どの不動産に頼めばいいのか分からない」「信頼できる営業マンの話を聞きたい」「一番親切な会社と契約したい」とお悩みの方におすすめなのが「高級賃貸バイブル」です。
高級賃貸バイブルは業界10年以上の熟練スタッフ群がお客様ファーストで対応します。
下記ボタンから、まずは無料でご相談下さい。
※内覧をご希望の際には、どうぞ物件のエントランス前にてお待ち合わせくださいませ。ご内覧後は、同じ場所でお別れとさせていただきます。お客様のご都合に合わせたスムーズなご案内を心がけておりますので、ご質問等がございましたら何なりとお申し付けください。 物件概要
| 物件名 |
| 築年月 |
|
|---|---|---|---|
| 所在地 | |||
| 交通 | |||
| 総戸数 |
| 総階数 |
|
| 構造 |
| ||
地図
物件までの道のりは、「拡大地図を表示」をクリックしてナビ機能をご利用ください。
部屋設備


















建物設備

24時間管理

TVモニターホン

エレベーター

オートロック

バイク置場

フィットネス

フロントサービス

プール

ラウンジ

宅配ボックス

敷地内ゴミ置場

駐車場平置き

駐車場機械式
六本木さくら坂レジデンスの現在募集中のお部屋
- No rooms found for this property.
























