
| 賃料 | 予想金額:1,690,000〜1,710,000円程度 | 管理費 | 予想金額:0〜2,000円程度 |
| 礼金/敷金 | 非公開(アーカイブ) | 平米数 | 202.49㎡ |
| 初期費用概算(参考) | 目安:9,391,500〜9,491,500 円 | みなし賃料(月額・参考) | 1,851,281〜1,871,281 円 |
| 備考 | 本ページは過去募集のアーカイブです。表示の金額は周辺相場・過去募集を踏まえた参考レンジであり、実際の契約金額・条件ではありません。 | ||
※上記みなし賃料(月額)は仲介手数料割引・無料&キャッシュバックを加味した高級賃貸バイブル限定の金額です。一般的なみなし賃料とは異なります。
【建物ページ】六本木さくら坂レジデンスの詳細・最新空室はこちら▶▶選ばれる理由
仲介手数料無料・キャンペーン情報(毎月15名様限定)
〇仲介手数料割引キャンペーン
六本木さくら坂レジデンス 903の口コミ・レビュー
六本木さくら坂レジデンス 903。これはただの住まいではなく、あなたの人生に彩りを添える特別な舞台です。東京都港区六本木6-16-6に位置するこのレジデンスは、まるで都会のオアシスのように、喧騒から解き放たれた静けさを提供します。そして、903という数字は、あなたの日常に新たな物語が始まる瞬間を象徴します。
この壮麗な高級賃貸物件は、北東を向いた大きな窓から注ぎ込む柔らかな朝日の光に包まれ、四季…六本木さくら坂レジデンス 903。これはただの住まいではなく、あなたの人生に彩りを添える特別な舞台です。東京都港区六本木6-16-6に位置するこのレジデンスは、まるで都会のオアシスのように、喧騒から解き放たれた静けさを提供します。そして、903という数字は、あなたの日常に新たな物語が始まる瞬間を象徴します。
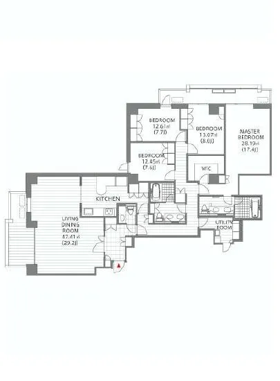
この壮麗な高級賃貸物件は、北東を向いた大きな窓から注ぎ込む柔らかな朝日の光に包まれ、四季折々の景色を楽しむことができる贅沢な空間です。広々とした専有面積202.49㎡は、一つのキャンバスとして、あなたの生活スタイルを反映させるのに最適です。リビングダイニングは29.2帖という開放的な空間で、そこに足を踏み入れると、心地よい音楽が流れているかのような心の安らぎを感じることでしょう。
このレジデンスは、ただの居住空間ではなく、あなたの感覚を刺激する体験を提供します。エレガントなフロントサービスと24時間管理の安心感は、まるでパリの高級ホテルにいるかのようなクラス感を醸し出します。フィットネスルームでの激しい運動の後、プールサイドのラウンジで贅沢な一息をつくことができ、まさに心身共にリフレッシュされる瞬間です。美しい庭に咲くさくらが、四季折々の彩りを添え、あなたの目を楽しませてくれます。
洋室はそれぞれ17.4帖、8.0帖、7.7帖、7.6帖と、個々の部屋も贅沢な広さを持ち、自由自在なアレンジが可能です。まるであなたの個性を映し出す鏡のようです。各部屋からは、やさしい風が吹き抜け、季節の香りを感じることでしょう。特に春の訪れには、桜の花びらが舞い込むこともあるかもしれません。
六本木さくら坂レジデンス 903は、ただの居住地ではなく、文化と芸術が息づく街、その中心に位置するアートの一部です。周辺には、数多くのギャラリーやオシャレなカフェ、歴史あるスポットが点在しており、まるで映画のワンシーンのように、日常が特別なものに変わります。東京メトロ日比谷線六本木駅からは徒歩5分という優れたアクセスも、あなたのライフスタイルを豊かに演出することでしょう。
あなたがこの特別な空間で毎日をどう過ごすかは、あなたの手の中にあります。友人たちとディナーを楽しむ夜、ひとり静かに読書を楽しむ昼、そして家族と共に笑い合う瞬間、そのすべてが六本木さくら坂レジデンス 903での特別な記憶となることでしょう。この場所で、あなた自身の新しい物語を紡いでみませんか。ここには、あなたを待つ無限の可能性が広がっています。
この壮麗な高級賃貸物件は、北東を向いた大きな窓から注ぎ込む柔らかな朝日の光に包まれ、四季…六本木さくら坂レジデンス 903。これはただの住まいではなく、あなたの人生に彩りを添える特別な舞台です。東京都港区六本木6-16-6に位置するこのレジデンスは、まるで都会のオアシスのように、喧騒から解き放たれた静けさを提供します。そして、903という数字は、あなたの日常に新たな物語が始まる瞬間を象徴します。
この壮麗な高級賃貸物件は、北東を向いた大きな窓から注ぎ込む柔らかな朝日の光に包まれ、四季折々の景色を楽しむことができる贅沢な空間です。広々とした専有面積202.49㎡は、一つのキャンバスとして、あなたの生活スタイルを反映させるのに最適です。リビングダイニングは29.2帖という開放的な空間で、そこに足を踏み入れると、心地よい音楽が流れているかのような心の安らぎを感じることでしょう。
このレジデンスは、ただの居住空間ではなく、あなたの感覚を刺激する体験を提供します。エレガントなフロントサービスと24時間管理の安心感は、まるでパリの高級ホテルにいるかのようなクラス感を醸し出します。フィットネスルームでの激しい運動の後、プールサイドのラウンジで贅沢な一息をつくことができ、まさに心身共にリフレッシュされる瞬間です。美しい庭に咲くさくらが、四季折々の彩りを添え、あなたの目を楽しませてくれます。
洋室はそれぞれ17.4帖、8.0帖、7.7帖、7.6帖と、個々の部屋も贅沢な広さを持ち、自由自在なアレンジが可能です。まるであなたの個性を映し出す鏡のようです。各部屋からは、やさしい風が吹き抜け、季節の香りを感じることでしょう。特に春の訪れには、桜の花びらが舞い込むこともあるかもしれません。
六本木さくら坂レジデンス 903は、ただの居住地ではなく、文化と芸術が息づく街、その中心に位置するアートの一部です。周辺には、数多くのギャラリーやオシャレなカフェ、歴史あるスポットが点在しており、まるで映画のワンシーンのように、日常が特別なものに変わります。東京メトロ日比谷線六本木駅からは徒歩5分という優れたアクセスも、あなたのライフスタイルを豊かに演出することでしょう。
あなたがこの特別な空間で毎日をどう過ごすかは、あなたの手の中にあります。友人たちとディナーを楽しむ夜、ひとり静かに読書を楽しむ昼、そして家族と共に笑い合う瞬間、そのすべてが六本木さくら坂レジデンス 903での特別な記憶となることでしょう。この場所で、あなた自身の新しい物語を紡いでみませんか。ここには、あなたを待つ無限の可能性が広がっています。
バイブルスコア
バイブルスコア: 22.4
平均的なスコアです。
※バイブルスコア詳細はこちら
バイブルスコアとは独自のAI機械学習技術を利用した物件評価システムで、物件のおすすめ度を示します。最高得点は100点で、スコアが高いほど、よりおすすめの物件と評価されています。
写真
契約条件
| 賃料 | 予想金額:1,690,000〜1,710,000円程度 | 管理費 | 予想金額:0〜2,000円程度 |
| 礼金 | 非公開(アーカイブ) | 敷金 | 非公開(アーカイブ) |
| フリーレント | なし | 平米数 | 202.49㎡ |
| 間取り | 4LDK | 大型収納 | WIC |
| 契約期間 | 方角 | 北東 | |
| 更新料 | 契約形態 | 定期借家契約 | |
| 取引態様 | 媒介 | 内見状況 | 入居中 |
| 入居時期 | 入居中 | SOHO・事務所 | |
| ペット | ペット可 | 間取り内訳 | LD29.2 洋17.4 洋8.0 洋7.7 洋7.6 |
| キャンペーン情報・備考 | 本情報は賃料改定交渉の資料作成、収益物件の利回り試算、周辺エリアや最寄り駅の坪単価分析、次回募集開始時期の予測などにご活用いただけます。 | ||
※「どの不動産に頼めばいいのか分からない」「信頼できる営業マンの話を聞きたい」「一番親切な会社と契約したい」とお悩みの方におすすめなのが「高級賃貸バイブル」です。
高級賃貸バイブルは業界10年以上の熟練スタッフ群がお客様ファーストで対応します。
下記ボタンから、まずは無料でご相談下さい。
※内覧をご希望の際には、どうぞ物件のエントランス前にてお待ち合わせくださいませ。ご内覧後は、同じ場所でお別れとさせていただきます。お客様のご都合に合わせたスムーズなご案内を心がけておりますので、ご質問等がございましたら何なりとお申し付けください。 物件概要
| 物件名 |
| 築年月 |
|
|---|---|---|---|
| 所在地 | |||
| 交通 | |||
| 総戸数 |
| 総階数 |
|
| 構造 |
| ||
地図
物件までの道のりは、「拡大地図を表示」をクリックしてナビ機能をご利用ください。
部屋設備


















建物設備

24時間管理

TVモニターホン

エレベーター

オートロック

バイク置場

フィットネス

フロントサービス

プール

ラウンジ

宅配ボックス

敷地内ゴミ置場

駐車場平置き

駐車場機械式
六本木さくら坂レジデンスの現在募集中のお部屋
- No rooms found for this property.
























