
| 賃料 | 予想金額:118,000〜138,000円程度 | 管理費 | 予想金額:8,000〜12,000円程度 |
| 礼金/敷金 | 非公開(アーカイブ) | 平米数 | 24.86㎡ |
| 初期費用概算(参考) | 目安:376,500〜476,500 円 | みなし賃料(月額・参考) | 134,219〜154,219 円 |
| 備考 | 本ページは過去募集のアーカイブです。表示の金額は周辺相場・過去募集を踏まえた参考レンジであり、実際の契約金額・条件ではありません。 | ||
※上記みなし賃料(月額)は仲介手数料割引・無料&キャッシュバックを加味した高級賃貸バイブル限定の金額です。一般的なみなし賃料とは異なります。
【建物ページ】ミルーム南青山の詳細・最新空室はこちら▶▶選ばれる理由
仲介手数料無料・キャンペーン情報(毎月15名様限定)
〇仲介手数料割引キャンペーン
ミルーム南青山 409の口コミ・レビュー
ミルーム南青山 409は、まるで都会の喧騒から逃れたオアシスのように、あなたを待ち受けています。この物件は、東京都港区南青山4-26-16に位置し、静寂を感じながらも、流行の発信地である表参道駅から徒歩7分の距離にあります。北東の空気を感じるこの邸宅は、日々の生活の中に心の安らぎを与えてくれる空間です。
あなたがこの部屋のドアを開ける瞬間、そこには生活の舞台が広がっています。24.86㎡の専有面…ミルーム南青山 409は、まるで都会の喧騒から逃れたオアシスのように、あなたを待ち受けています。この物件は、東京都港区南青山4-26-16に位置し、静寂を感じながらも、流行の発信地である表参道駅から徒歩7分の距離にあります。北東の空気を感じるこの邸宅は、日々の生活の中に心の安らぎを与えてくれる空間です。
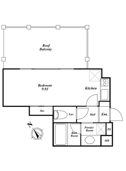
あなたがこの部屋のドアを開ける瞬間、そこには生活の舞台が広がっています。24.86㎡の専有面積には、わずか1Rのシンプルさの中にも無限の可能性が秘められているのです。9.9帖の寝室には、夢を語り合う夜や、東京のにぎわいを忘れさせる静寂の瞬間が無限に広がっています。朝、レースのカーテン越しに差し込む柔らかな光が部屋を包み込み、気持ちの良い風があなたの心をリフレッシュさせてくれるのです。
ミルーム南青山 409はただの住まいではありません。このマンションは、デザイナーズの洗練された美しさが息づく場所であり、エレベーターで上がると、どこか自分だけの特別な隠れ家に足を踏み入れたような気持ちにさせてくれます。オートロックの安心感は、都会の喧騒を忘れさせ、プライバシーを守る盾となります。宅配ボックスや駐輪場、機械式駐車場といった便利な設備が揃っていることで、日常生活をもっと豊かに、そしてスムーズにしてくれるのです。
この物件に住むことは、まるで映画の主人公になったかのような体験を約束します。朝早く、コーヒーの香りに包まれながら窓を開けると、都会の音がまるでオーケストラのように響き渡ります。時には、アートギャラリーやブティックを訪れ、刺激的な文化を感じることもできるのです。南青山の街並みは、まさに歴史とモダンが交錯する場所。四季折々の景色とともに、あなたの感性を豊かに育んでくれることでしょう。
夕暮れ時には、窓から見える街の灯りがまるで星空のように煌めき、シャンパンの泡がグラスの中で踊る瞬間を楽しむことができます。ミルーム南青山 409の居住空間は、ただの生活を超え、アートな生活を彩る舞台となります。この物件があなたに語りかけるのは、「あなたの人生を華やかにするための場所」なのです。是非、この特別な空間で、新たな物語を紡いでみてはいかがでしょうか。
あなたがこの部屋のドアを開ける瞬間、そこには生活の舞台が広がっています。24.86㎡の専有面…ミルーム南青山 409は、まるで都会の喧騒から逃れたオアシスのように、あなたを待ち受けています。この物件は、東京都港区南青山4-26-16に位置し、静寂を感じながらも、流行の発信地である表参道駅から徒歩7分の距離にあります。北東の空気を感じるこの邸宅は、日々の生活の中に心の安らぎを与えてくれる空間です。
あなたがこの部屋のドアを開ける瞬間、そこには生活の舞台が広がっています。24.86㎡の専有面積には、わずか1Rのシンプルさの中にも無限の可能性が秘められているのです。9.9帖の寝室には、夢を語り合う夜や、東京のにぎわいを忘れさせる静寂の瞬間が無限に広がっています。朝、レースのカーテン越しに差し込む柔らかな光が部屋を包み込み、気持ちの良い風があなたの心をリフレッシュさせてくれるのです。
ミルーム南青山 409はただの住まいではありません。このマンションは、デザイナーズの洗練された美しさが息づく場所であり、エレベーターで上がると、どこか自分だけの特別な隠れ家に足を踏み入れたような気持ちにさせてくれます。オートロックの安心感は、都会の喧騒を忘れさせ、プライバシーを守る盾となります。宅配ボックスや駐輪場、機械式駐車場といった便利な設備が揃っていることで、日常生活をもっと豊かに、そしてスムーズにしてくれるのです。
この物件に住むことは、まるで映画の主人公になったかのような体験を約束します。朝早く、コーヒーの香りに包まれながら窓を開けると、都会の音がまるでオーケストラのように響き渡ります。時には、アートギャラリーやブティックを訪れ、刺激的な文化を感じることもできるのです。南青山の街並みは、まさに歴史とモダンが交錯する場所。四季折々の景色とともに、あなたの感性を豊かに育んでくれることでしょう。
夕暮れ時には、窓から見える街の灯りがまるで星空のように煌めき、シャンパンの泡がグラスの中で踊る瞬間を楽しむことができます。ミルーム南青山 409の居住空間は、ただの生活を超え、アートな生活を彩る舞台となります。この物件があなたに語りかけるのは、「あなたの人生を華やかにするための場所」なのです。是非、この特別な空間で、新たな物語を紡いでみてはいかがでしょうか。
バイブルスコア
バイブルスコア: 19.5
高級な物件でない場合は割高な物件です。。
※バイブルスコア詳細はこちら
バイブルスコアとは独自のAI機械学習技術を利用した物件評価システムで、物件のおすすめ度を示します。最高得点は100点で、スコアが高いほど、よりおすすめの物件と評価されています。
写真
契約条件
| 賃料 | 予想金額:118,000〜138,000円程度 | 管理費 | 予想金額:8,000〜12,000円程度 |
| 礼金 | 非公開(アーカイブ) | 敷金 | 非公開(アーカイブ) |
| フリーレント | なし | 平米数 | 24.86㎡ |
| 間取り | 1R | 大型収納 | |
| 契約期間 |
| 方角 | 北東 |
| 更新料 | 契約形態 | 普通賃貸借契約 | |
| 取引態様 | 媒介 | 内見状況 | 入居中 |
| 入居時期 | 入居中 | SOHO・事務所 | |
| ペット | 間取り内訳 | BR=9.9J | |
| キャンペーン情報・備考 | 本情報は賃料改定交渉の資料作成、収益物件の利回り試算、周辺エリアや最寄り駅の坪単価分析、次回募集開始時期の予測などにご活用いただけます。 | ||
※「どの不動産に頼めばいいのか分からない」「信頼できる営業マンの話を聞きたい」「一番親切な会社と契約したい」とお悩みの方におすすめなのが「高級賃貸バイブル」です。
高級賃貸バイブルは業界10年以上の熟練スタッフ群がお客様ファーストで対応します。
下記ボタンから、まずは無料でご相談下さい。
※内覧をご希望の際には、どうぞ物件のエントランス前にてお待ち合わせくださいませ。ご内覧後は、同じ場所でお別れとさせていただきます。お客様のご都合に合わせたスムーズなご案内を心がけておりますので、ご質問等がございましたら何なりとお申し付けください。 物件概要
| 物件名 |
| 築年月 |
|
|---|---|---|---|
| 所在地 | |||
| 交通 | |||
| 総戸数 |
| 総階数 |
|
| 構造 |
| ||
地図
物件までの道のりは、「拡大地図を表示」をクリックしてナビ機能をご利用ください。
部屋設備















建物設備

TVモニターホン

エレベーター

オートロック

宅配ボックス

敷地内ゴミ置場

駐車場機械式

駐輪場
ミルーム南青山の現在募集中のお部屋
- No rooms found for this property.





















