
| 賃料 | 予想金額:630,000〜650,000円程度 | 管理費 | 予想金額:0〜2,000円程度 |
| 礼金/敷金 | 非公開(アーカイブ) | 平米数 | 128.93㎡ |
| 初期費用概算(参考) | 目安:2,281,500〜2,381,500 円 | みなし賃料(月額・参考) | 665,240〜685,240 円 |
| 備考 | 本ページは過去募集のアーカイブです。表示の金額は周辺相場・過去募集を踏まえた参考レンジであり、実際の契約金額・条件ではありません。 | ||
※上記みなし賃料(月額)は仲介手数料割引・無料&キャッシュバックを加味した高級賃貸バイブル限定の金額です。一般的なみなし賃料とは異なります。
【建物ページ】コスモリード南麻布の詳細・最新空室はこちら▶▶選ばれる理由
仲介手数料無料・キャンペーン情報(毎月15名様限定)
〇仲介手数料割引キャンペーン
コスモリード南麻布 501の口コミ・レビュー
コスモリード南麻布 501が、今まさにあなたを待ちわびています。高貴なるこの住まいは、501という数字に宿る独自の魅力で、あなたの人生に新たな章を刻むことでしょう。砂漠の中に咲く一輪の花のように、東京の喧騒から一歩離れたこの場所には、静謐な美しさが漂っています。
この家は、まるで優雅な舞踏会の主役のように、お客様を迎え入れます。128.93㎡という広大な専有面積は、あなたのクリエイティブな才能を…コスモリード南麻布 501が、今まさにあなたを待ちわびています。高貴なるこの住まいは、501という数字に宿る独自の魅力で、あなたの人生に新たな章を刻むことでしょう。砂漠の中に咲く一輪の花のように、東京の喧騒から一歩離れたこの場所には、静謐な美しさが漂っています。
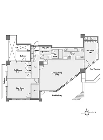
この家は、まるで優雅な舞踏会の主役のように、お客様を迎え入れます。128.93㎡という広大な専有面積は、あなたのクリエイティブな才能を存分に発揮させるキャンバスとなり、25.3帖のリビングダイニングは、友人や家族と特別な瞬間を共有するための舞台となるでしょう。気持ちの良い朝、窓を開けると、優しい東の光が室内を包み込み、鳥たちのさえずりが心地よく耳に響いてきます。そして、その光は、あなたの心を癒し、生活に潤いを与えてくれるのです。
コスモリード南麻布 501は、あなたの感覚を目覚めさせる、洗練されたデザインとともに、生活に必要なすべてを提供します。24時間管理された安心の環境、そしてご自宅にいながらにして高級ホテルのようなフロントサービスは、まるで自分が特別な存在であるかのように感じさせてくれます。エレベーターで上昇するたびに、あなたのハートビートが高鳴り、まさに上質な生活を予感させることでしょう。
この住まいには、オートロックの安心感があり、プライバシーも大切にされています。宅配ボックスや駐車場機械式も完備しており、生活の利便性が至上の価値を持ちます。近隣には白金高輪駅があり、わずか9分の距離で、都会の喧騒に瞬時にアクセス可能です。
友人を招き入れるとき、ふと振り返れば、キッチンの5.5帖で香ばしい料理が煮えたぎり、8.9帖の洋室にはやわらかな光がこぼれ、7.5帖の洋室は心安らぐ休息の場となるでしょう。全てが心地よい調和をなすこの空間で、家具を配置し、あなた自身のパーソナルスタイルを築いていくことができます。
コスモリード南麻布 501は、ただの物件ではなく、あなたの人生の一部となるのです。この場所で、感動的なシーンが次々と繰り広げられることでしょう。アートな生活が息づくこの地で、思い描く生活が実現していく。そんな素敵なストーリーがあなたを待っています。さあ、一緒に新たな人生の幕開けを迎えましょう。コスモリード南麻布 501が、あなたの未来の物語を彩る最高の舞台となります。
この家は、まるで優雅な舞踏会の主役のように、お客様を迎え入れます。128.93㎡という広大な専有面積は、あなたのクリエイティブな才能を…コスモリード南麻布 501が、今まさにあなたを待ちわびています。高貴なるこの住まいは、501という数字に宿る独自の魅力で、あなたの人生に新たな章を刻むことでしょう。砂漠の中に咲く一輪の花のように、東京の喧騒から一歩離れたこの場所には、静謐な美しさが漂っています。
この家は、まるで優雅な舞踏会の主役のように、お客様を迎え入れます。128.93㎡という広大な専有面積は、あなたのクリエイティブな才能を存分に発揮させるキャンバスとなり、25.3帖のリビングダイニングは、友人や家族と特別な瞬間を共有するための舞台となるでしょう。気持ちの良い朝、窓を開けると、優しい東の光が室内を包み込み、鳥たちのさえずりが心地よく耳に響いてきます。そして、その光は、あなたの心を癒し、生活に潤いを与えてくれるのです。
コスモリード南麻布 501は、あなたの感覚を目覚めさせる、洗練されたデザインとともに、生活に必要なすべてを提供します。24時間管理された安心の環境、そしてご自宅にいながらにして高級ホテルのようなフロントサービスは、まるで自分が特別な存在であるかのように感じさせてくれます。エレベーターで上昇するたびに、あなたのハートビートが高鳴り、まさに上質な生活を予感させることでしょう。
この住まいには、オートロックの安心感があり、プライバシーも大切にされています。宅配ボックスや駐車場機械式も完備しており、生活の利便性が至上の価値を持ちます。近隣には白金高輪駅があり、わずか9分の距離で、都会の喧騒に瞬時にアクセス可能です。
友人を招き入れるとき、ふと振り返れば、キッチンの5.5帖で香ばしい料理が煮えたぎり、8.9帖の洋室にはやわらかな光がこぼれ、7.5帖の洋室は心安らぐ休息の場となるでしょう。全てが心地よい調和をなすこの空間で、家具を配置し、あなた自身のパーソナルスタイルを築いていくことができます。
コスモリード南麻布 501は、ただの物件ではなく、あなたの人生の一部となるのです。この場所で、感動的なシーンが次々と繰り広げられることでしょう。アートな生活が息づくこの地で、思い描く生活が実現していく。そんな素敵なストーリーがあなたを待っています。さあ、一緒に新たな人生の幕開けを迎えましょう。コスモリード南麻布 501が、あなたの未来の物語を彩る最高の舞台となります。
バイブルスコア
バイブルスコア: 26.5
平均的なスコアです。
※バイブルスコア詳細はこちら
バイブルスコアとは独自のAI機械学習技術を利用した物件評価システムで、物件のおすすめ度を示します。最高得点は100点で、スコアが高いほど、よりおすすめの物件と評価されています。
写真
契約条件
| 賃料 | 予想金額:630,000〜650,000円程度 | 管理費 | 予想金額:0〜2,000円程度 |
| 礼金 | 非公開(アーカイブ) | 敷金 | 非公開(アーカイブ) |
| フリーレント | なし | 平米数 | 128.93㎡ |
| 間取り | 3LDK | 大型収納 | WIC |
| 契約期間 | 方角 | 東 | |
| 更新料 | 契約形態 | 定期借家契約 | |
| 取引態様 | 媒介 | 内見状況 | 入居中 |
| 入居時期 | 入居中 | SOHO・事務所 | |
| ペット | ペット可 | 間取り内訳 | 洋:12.5 洋:8.9 洋:7.5 LD:25.3 K:5.5 |
| キャンペーン情報・備考 | 本情報は賃料改定交渉の資料作成、収益物件の利回り試算、周辺エリアや最寄り駅の坪単価分析、次回募集開始時期の予測などにご活用いただけます。 | ||
※「どの不動産に頼めばいいのか分からない」「信頼できる営業マンの話を聞きたい」「一番親切な会社と契約したい」とお悩みの方におすすめなのが「高級賃貸バイブル」です。
高級賃貸バイブルは業界10年以上の熟練スタッフ群がお客様ファーストで対応します。
下記ボタンから、まずは無料でご相談下さい。
※内覧をご希望の際には、どうぞ物件のエントランス前にてお待ち合わせくださいませ。ご内覧後は、同じ場所でお別れとさせていただきます。お客様のご都合に合わせたスムーズなご案内を心がけておりますので、ご質問等がございましたら何なりとお申し付けください。 物件概要
| 物件名 |
| 築年月 |
|
|---|---|---|---|
| 所在地 | |||
| 交通 | |||
| 総戸数 |
| 総階数 |
|
| 構造 |
| ||
地図
物件までの道のりは、「拡大地図を表示」をクリックしてナビ機能をご利用ください。
部屋設備




















建物設備

24時間管理

TVモニターホン

エレベーター

オートロック

フロントサービス

ラウンジ

宅配ボックス

敷地内ゴミ置場

駐車場機械式

駐輪場
コスモリード南麻布の現在募集中のお部屋
- No rooms found for this property.



























