
| 賃料 | 予想金額:110,000〜130,000円程度 | 管理費 | 予想金額:6,000〜10,000円程度 |
| 礼金/敷金 | 非公開(アーカイブ) | 平米数 | 31.02㎡ |
| 初期費用概算(参考) | 目安:353,500〜453,500 円 | みなし賃料(月額・参考) | 123,906〜143,906 円 |
| 備考 | 本ページは過去募集のアーカイブです。表示の金額は周辺相場・過去募集を踏まえた参考レンジであり、実際の契約金額・条件ではありません。 | ||
※上記みなし賃料(月額)は仲介手数料割引・無料&キャッシュバックを加味した高級賃貸バイブル限定の金額です。一般的なみなし賃料とは異なります。
【建物ページ】KDXレジデンス戸越の詳細・最新空室はこちら▶▶選ばれる理由
仲介手数料無料・キャンペーン情報(毎月15名様限定)
〇仲介手数料割引キャンペーン
KDXレジデンス戸越 314の口コミ・レビュー
KDXレジデンス戸越 314。この名の響きは、あなたを新たな生活の舞台へと誘う。その部屋が所在するのは、東京都品川区戸越5-1-1、まるで心地よい温もりに包まれた小町のように、日々の喧騒を忘れさせてくれる場所です。314号室のその扉を開けると、まるで新たな冒険が始まる瞬間を感じることでしょう。
この物件の魅力は、単なる空間を超え、ライフスタイルそのものを作り上げる力を秘めています。専有面積31.…KDXレジデンス戸越 314。この名の響きは、あなたを新たな生活の舞台へと誘う。その部屋が所在するのは、東京都品川区戸越5-1-1、まるで心地よい温もりに包まれた小町のように、日々の喧騒を忘れさせてくれる場所です。314号室のその扉を開けると、まるで新たな冒険が始まる瞬間を感じることでしょう。
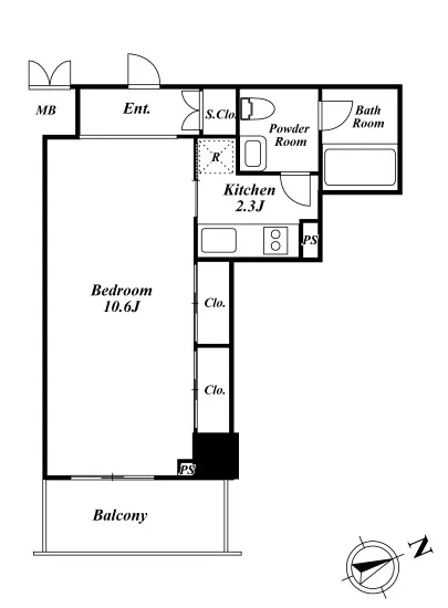
この物件の魅力は、単なる空間を超え、ライフスタイルそのものを作り上げる力を秘めています。専有面積31.02㎡の空間は、洗練されたデザインと機能性が見事に融合し、あなたの創造力をかき立てる舞台となります。洋室10.6帖の広さは、自分だけの安らぎの空間を作り出すための自由な canvassであり、K:2.3のキッチンは、次の大作を生み出すための料理のアトリエとして、あなたを待っています。
日々のルーチンに、まるで映画の一場面のような彩りを添えるのは、KDXレジデンス戸越 314の持つ魔法です。目を閉じてみてください。朝の光が東の窓から優しく差し込み、カーテンの隙間から小さな光の粒が踊り、あなたの顔を照らす。料理の香ばしい匂いが、キッチンから漂い、心地よい音楽が流れる中、あなたは一口、また一口と、新たなレシピに挑戦する。そんな日常が、ここにはあります。
KDXレジデンス戸越 314は、ただの住居ではなく、あなたの物語を紡ぐ舞台です。エレベーターで上がる途中、心の中で新たなストーリーを思い描く。その背後には、オートロックの厳重な守りがあります。安全であることは、この空間が持つ一つの贅沢です。ゲストが訪れた際には、ラウンジでのひとときが、あなたの世界を広げ、友人との語らいをより深いものにしてくれることでしょう。
周辺には、東京都の歴史が息づく街並みが広がり、まるでタイムスリップしたかのように、古き良き文化が香る場所が点在しています。地元の人々に愛される商店街では、季節の変わり目ごとに色とりどりの美味が楽しめ、あなたの心を満たしてくれることでしょう。
KDXレジデンス戸越 314。あなたの日常が、日々の小さな喜びで彩られる場所。この特別な空間で、あなたの新しい生活が始まることを、私は心から楽しみにしています。あなた自身にとっての、唯一の物語をここで綴ることができるのです。この空間が、あなたにとっての心の拠り所となり、豊かな日々の充実感をもたらすことを約束します。さあ、扉を開いて、新しい人生の一歩を踏み出しましょう。
この物件の魅力は、単なる空間を超え、ライフスタイルそのものを作り上げる力を秘めています。専有面積31.…KDXレジデンス戸越 314。この名の響きは、あなたを新たな生活の舞台へと誘う。その部屋が所在するのは、東京都品川区戸越5-1-1、まるで心地よい温もりに包まれた小町のように、日々の喧騒を忘れさせてくれる場所です。314号室のその扉を開けると、まるで新たな冒険が始まる瞬間を感じることでしょう。
この物件の魅力は、単なる空間を超え、ライフスタイルそのものを作り上げる力を秘めています。専有面積31.02㎡の空間は、洗練されたデザインと機能性が見事に融合し、あなたの創造力をかき立てる舞台となります。洋室10.6帖の広さは、自分だけの安らぎの空間を作り出すための自由な canvassであり、K:2.3のキッチンは、次の大作を生み出すための料理のアトリエとして、あなたを待っています。
日々のルーチンに、まるで映画の一場面のような彩りを添えるのは、KDXレジデンス戸越 314の持つ魔法です。目を閉じてみてください。朝の光が東の窓から優しく差し込み、カーテンの隙間から小さな光の粒が踊り、あなたの顔を照らす。料理の香ばしい匂いが、キッチンから漂い、心地よい音楽が流れる中、あなたは一口、また一口と、新たなレシピに挑戦する。そんな日常が、ここにはあります。
KDXレジデンス戸越 314は、ただの住居ではなく、あなたの物語を紡ぐ舞台です。エレベーターで上がる途中、心の中で新たなストーリーを思い描く。その背後には、オートロックの厳重な守りがあります。安全であることは、この空間が持つ一つの贅沢です。ゲストが訪れた際には、ラウンジでのひとときが、あなたの世界を広げ、友人との語らいをより深いものにしてくれることでしょう。
周辺には、東京都の歴史が息づく街並みが広がり、まるでタイムスリップしたかのように、古き良き文化が香る場所が点在しています。地元の人々に愛される商店街では、季節の変わり目ごとに色とりどりの美味が楽しめ、あなたの心を満たしてくれることでしょう。
KDXレジデンス戸越 314。あなたの日常が、日々の小さな喜びで彩られる場所。この特別な空間で、あなたの新しい生活が始まることを、私は心から楽しみにしています。あなた自身にとっての、唯一の物語をここで綴ることができるのです。この空間が、あなたにとっての心の拠り所となり、豊かな日々の充実感をもたらすことを約束します。さあ、扉を開いて、新しい人生の一歩を踏み出しましょう。
バイブルスコア
バイブルスコア: 42.1
条件のいい物件です、引っ越しが2か月以内の場合は仮申し込みを検討すべき物件です。
※バイブルスコア詳細はこちら
バイブルスコアとは独自のAI機械学習技術を利用した物件評価システムで、物件のおすすめ度を示します。最高得点は100点で、スコアが高いほど、よりおすすめの物件と評価されています。
写真
契約条件
| 賃料 | 予想金額:110,000〜130,000円程度 | 管理費 | 予想金額:6,000〜10,000円程度 |
| 礼金 | 非公開(アーカイブ) | 敷金 | 非公開(アーカイブ) |
| フリーレント | なし | 平米数 | 31.02㎡ |
| 間取り | 1R | 大型収納 | |
| 契約期間 |
| 方角 | 東 |
| 更新料 | 契約形態 | 普通賃貸借契約 | |
| 取引態様 | 媒介 | 内見状況 | 入居中 |
| 入居時期 | 入居中 | SOHO・事務所 | |
| ペット | 間取り内訳 | 洋:10.6 K:2.3 | |
| キャンペーン情報・備考 | 本情報は賃料改定交渉の資料作成、収益物件の利回り試算、周辺エリアや最寄り駅の坪単価分析、次回募集開始時期の予測などにご活用いただけます。 | ||
※「どの不動産に頼めばいいのか分からない」「信頼できる営業マンの話を聞きたい」「一番親切な会社と契約したい」とお悩みの方におすすめなのが「高級賃貸バイブル」です。
高級賃貸バイブルは業界10年以上の熟練スタッフ群がお客様ファーストで対応します。
下記ボタンから、まずは無料でご相談下さい。
※内覧をご希望の際には、どうぞ物件のエントランス前にてお待ち合わせくださいませ。ご内覧後は、同じ場所でお別れとさせていただきます。お客様のご都合に合わせたスムーズなご案内を心がけておりますので、ご質問等がございましたら何なりとお申し付けください。 物件概要
| 物件名 |
| 築年月 |
|
|---|---|---|---|
| 所在地 | |||
| 交通 | |||
| 総戸数 |
| 総階数 |
|
| 構造 |
| ||
地図
物件までの道のりは、「拡大地図を表示」をクリックしてナビ機能をご利用ください。
部屋設備













建物設備

TVモニターホン

エレベーター

オートロック

ゲストルーム

バイク置場

フィットネス

ラウンジ

宅配ボックス

敷地内ゴミ置場

管理人

駐車場平置き

駐車場機械式

駐輪場
KDXレジデンス戸越の現在募集中のお部屋
- No rooms found for this property.






















