
| 賃料 | 予想金額:133,000〜153,000円程度 | 管理費 | 予想金額:6,000〜10,000円程度 |
| 礼金/敷金 | 非公開(アーカイブ) | 平米数 | 30.33㎡ |
| 初期費用概算(参考) | 目安:411,000〜511,000 円 | みなし賃料(月額・参考) | 147,625〜167,625 円 |
| 備考 | 本ページは過去募集のアーカイブです。表示の金額は周辺相場・過去募集を踏まえた参考レンジであり、実際の契約金額・条件ではありません。 | ||
※上記みなし賃料(月額)は仲介手数料割引・無料&キャッシュバックを加味した高級賃貸バイブル限定の金額です。一般的なみなし賃料とは異なります。
【建物ページ】BluRock銀座イーストの詳細・最新空室はこちら▶▶選ばれる理由
仲介手数料無料・キャンペーン情報(毎月15名様限定)
〇仲介手数料割引キャンペーン
BluRock銀座イースト 901の口コミ・レビュー
スイートワンコート 901、それはまるで夢の中から抜け出したかのような高級賃貸物件です。東京都中央区入船2-2-15という洗練されたアドレスは、街の喧騒から少し離れ、落ち着きと安らぎをもたらす隠れ家。901号室の扉を開けた瞬間、あなたは新たなライフスタイルの幕開けを感じることでしょう。
この物件はただの住まいではありません。あたかも一人の優雅な貴婦人のように、あなたを温かく迎え入れ、心地よい空間…スイートワンコート 901、それはまるで夢の中から抜け出したかのような高級賃貸物件です。東京都中央区入船2-2-15という洗練されたアドレスは、街の喧騒から少し離れ、落ち着きと安らぎをもたらす隠れ家。901号室の扉を開けた瞬間、あなたは新たなライフスタイルの幕開けを感じることでしょう。
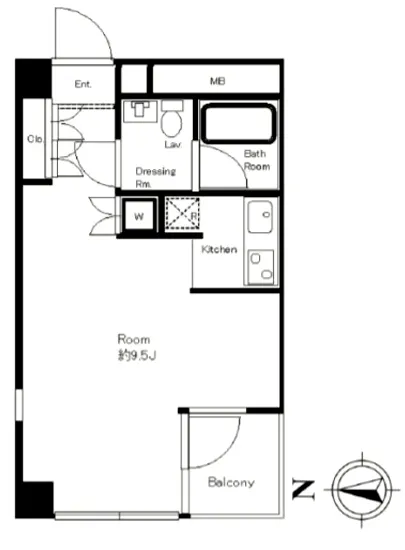
この物件はただの住まいではありません。あたかも一人の優雅な貴婦人のように、あなたを温かく迎え入れ、心地よい空間を提供します。専有面積30.33㎡というサイズは、どこか自分のためだけに作られた秘密の城のよう。ふんわりとしたインテリアには、豊かな色合いが施され、洋室9.5帖の空間で、陽光が優しく舞い込む様子に、自然と笑顔がこぼれることでしょう。
西と北の二方向に広がる窓からは、静かな夕暮れの景色や、穏やかな街の情景を望むことができます。窓を開けると、軽やかな風が優しく舞い込み、街の香りや香ばしいカフェの香りが鼻をくすぐります。その瞬間、あなたの心は自由に羽ばたく鳥のように解放され、日常のストレスを忘れさせてくれるでしょう。
生活の利便性も抜群です。徒歩わずか3分のところには、東京メトロ有楽町線の新富町駅が控え、どこへでも軽やかに出かけることができます。さらに、スイートワンコート 901には、エレベーターやオートロック、TVモニターホンなどの設備も充実しており、安心・快適な生活をお約束します。まるでこの物件があなたの守護者のように、日々の生活を支えてくれます。
また、周辺には歴史と文化が息づいており、古き良き東京の風情を感じることができるエリアです。隣接する公園では、四季折々の花々が咲き誇り、まるで自然のアートギャラリー。朝には軽やかな鳥のさえずりが耳に心地よく響き、夜には静寂の中に包まれたこの地で、心穏やかなひとときを過ごすことができるのです。
さあ、スイートワンコート 901での生活を想像してみてください。朝の日差しが差し込む中、優雅にコーヒーを淹れ、そしてその豊かな香りを楽しむ。まるで映画のワンシーンのように、優雅な時間が流れていくのです。大切な人を招いてのホームパーティーや、自分自身との静かな時間を楽しむ。どんな瞬間も、あなたの人生を彩る特別なストーリーとして心に刻まれることでしょう。
スイートワンコート 901は、あなたの新しい人生の舞台です。その一歩を踏み出す準備は整っていますか?さあ、この素晴らしい体験を迎え入れ、唯一無二の生活を手に入れましょう。あなたの物語は、ここから始まります。
この物件はただの住まいではありません。あたかも一人の優雅な貴婦人のように、あなたを温かく迎え入れ、心地よい空間…スイートワンコート 901、それはまるで夢の中から抜け出したかのような高級賃貸物件です。東京都中央区入船2-2-15という洗練されたアドレスは、街の喧騒から少し離れ、落ち着きと安らぎをもたらす隠れ家。901号室の扉を開けた瞬間、あなたは新たなライフスタイルの幕開けを感じることでしょう。
この物件はただの住まいではありません。あたかも一人の優雅な貴婦人のように、あなたを温かく迎え入れ、心地よい空間を提供します。専有面積30.33㎡というサイズは、どこか自分のためだけに作られた秘密の城のよう。ふんわりとしたインテリアには、豊かな色合いが施され、洋室9.5帖の空間で、陽光が優しく舞い込む様子に、自然と笑顔がこぼれることでしょう。
西と北の二方向に広がる窓からは、静かな夕暮れの景色や、穏やかな街の情景を望むことができます。窓を開けると、軽やかな風が優しく舞い込み、街の香りや香ばしいカフェの香りが鼻をくすぐります。その瞬間、あなたの心は自由に羽ばたく鳥のように解放され、日常のストレスを忘れさせてくれるでしょう。
生活の利便性も抜群です。徒歩わずか3分のところには、東京メトロ有楽町線の新富町駅が控え、どこへでも軽やかに出かけることができます。さらに、スイートワンコート 901には、エレベーターやオートロック、TVモニターホンなどの設備も充実しており、安心・快適な生活をお約束します。まるでこの物件があなたの守護者のように、日々の生活を支えてくれます。
また、周辺には歴史と文化が息づいており、古き良き東京の風情を感じることができるエリアです。隣接する公園では、四季折々の花々が咲き誇り、まるで自然のアートギャラリー。朝には軽やかな鳥のさえずりが耳に心地よく響き、夜には静寂の中に包まれたこの地で、心穏やかなひとときを過ごすことができるのです。
さあ、スイートワンコート 901での生活を想像してみてください。朝の日差しが差し込む中、優雅にコーヒーを淹れ、そしてその豊かな香りを楽しむ。まるで映画のワンシーンのように、優雅な時間が流れていくのです。大切な人を招いてのホームパーティーや、自分自身との静かな時間を楽しむ。どんな瞬間も、あなたの人生を彩る特別なストーリーとして心に刻まれることでしょう。
スイートワンコート 901は、あなたの新しい人生の舞台です。その一歩を踏み出す準備は整っていますか?さあ、この素晴らしい体験を迎え入れ、唯一無二の生活を手に入れましょう。あなたの物語は、ここから始まります。
バイブルスコア
バイブルスコア: 8.6
高級な物件でない場合は割高な物件です。。
※バイブルスコア詳細はこちら
バイブルスコアとは独自のAI機械学習技術を利用した物件評価システムで、物件のおすすめ度を示します。最高得点は100点で、スコアが高いほど、よりおすすめの物件と評価されています。
写真
契約条件
| 賃料 | 予想金額:133,000〜153,000円程度 | 管理費 | 予想金額:6,000〜10,000円程度 |
| 礼金 | 非公開(アーカイブ) | 敷金 | 非公開(アーカイブ) |
| フリーレント | なし | 平米数 | 30.33㎡ |
| 間取り | 1R | 大型収納 | |
| 契約期間 |
| 方角 | 西 / 北 |
| 更新料 | 契約形態 | 普通賃貸借契約 | |
| 取引態様 | 媒介 | 内見状況 | 入居中 |
| 入居時期 | 入居中 | SOHO・事務所 | |
| ペット | 間取り内訳 | 洋:9.5 | |
| キャンペーン情報・備考 | 本情報は賃料改定交渉の資料作成、収益物件の利回り試算、周辺エリアや最寄り駅の坪単価分析、次回募集開始時期の予測などにご活用いただけます。 | ||
※「どの不動産に頼めばいいのか分からない」「信頼できる営業マンの話を聞きたい」「一番親切な会社と契約したい」とお悩みの方におすすめなのが「高級賃貸バイブル」です。
高級賃貸バイブルは業界10年以上の熟練スタッフ群がお客様ファーストで対応します。
下記ボタンから、まずは無料でご相談下さい。
※内覧をご希望の際には、どうぞ物件のエントランス前にてお待ち合わせくださいませ。ご内覧後は、同じ場所でお別れとさせていただきます。お客様のご都合に合わせたスムーズなご案内を心がけておりますので、ご質問等がございましたら何なりとお申し付けください。 物件概要
| 物件名 |
| 築年月 |
|
|---|---|---|---|
| 所在地 | |||
| 交通 | |||
| 総戸数 |
| 総階数 |
|
| 構造 |
| ||
地図
物件までの道のりは、「拡大地図を表示」をクリックしてナビ機能をご利用ください。
部屋設備















建物設備

TVモニターホン

エレベーター

オートロック

敷地内ゴミ置場

管理人

駐輪場
BluRock銀座イーストの現在募集中のお部屋
- No rooms found for this property.




























