
| 賃料 | 予想金額:124,000〜144,000円程度 | 管理費 | 予想金額:16,000〜20,000円程度 |
| 礼金/敷金 | 非公開(アーカイブ) | 平米数 | 30.62㎡ |
| 初期費用概算(参考) | 目安:53,700〜153,700 円 | みなし賃料(月額・参考) | 144,160〜164,160 円 |
| 備考 | 本ページは過去募集のアーカイブです。表示の金額は周辺相場・過去募集を踏まえた参考レンジであり、実際の契約金額・条件ではありません。 | ||
※上記みなし賃料(月額)は仲介手数料割引・無料&キャッシュバックを加味した高級賃貸バイブル限定の金額です。一般的なみなし賃料とは異なります。
【建物ページ】RIDGE豊洲の詳細・最新空室はこちら▶▶選ばれる理由
仲介手数料無料・キャンペーン情報(毎月15名様限定)
〇引っ越しお祝い金26800円プレゼント(キャッシュバック)
〇フリーレント1か月キャンペーン
〇仲介手数料無料キャンペーン
RIDGE豊洲 205の口コミ・レビュー
この205号室の中に足を踏み入れると、まず感じるのは、心地よい光に包まれた空間の広がりです。洋室8.5帖の優雅な広がりは、まるで穏やかな海のようにあなたを迎え入れ、心をリラ…RIDGE豊洲 205。この名前を耳にするたび、心のどこかがざわめき、新たな物語の始まりを予感させられます。江東区東雲の美しい街並みの中、南東を向いて佇むこの高級賃貸物件は、あなたを特別な世界へと誘う扉のように感じられます。
この205号室の中に足を踏み入れると、まず感じるのは、心地よい光に包まれた空間の広がりです。洋室8.5帖の優雅な広がりは、まるで穏やかな海のようにあなたを迎え入れ、心をリラックスさせてくれます。窓から差し込む光が、柔らかいカーテンを舞わせ、部屋の中にダンスを優雅に踊らせます。その瞬間、あなたはまるで映画のワンシーンの主役になったかのような気分を味わうことでしょう。
RIDGE豊洲 205には、ただの住まいとは異なる特別な体験が待っています。ウォークインクローゼット(WIC)やシューズインクローゼット(SIC)は、あなたの大切な時間を整えるサポート役。自分だけの空間を持つことで、まるで大切な宝物を守る王国の城主のような気分になります。エレベーターで上がるたびに、フロントサービスの温かい笑顔に迎えられ、日常の疲れを忘れさせてくれるのです。
さらに、ラウンジに身を置くと、周囲の静けさに包まれながら、心の内にある想いを解き放つ時間が流れます。コーヒーの香りが漂い、目の前に広がる景色は、都会の喧騒から遠く離れた穏やかな瞬間をもたらしてくれることでしょう。周辺には、歴史と文化が息づく豊洲の街並みが広がり、アートギャラリーやカフェがあなたの五感を満たします。
RIDGE豊洲 205には、宅配ボックスも完備されており、忙しい日常の中でもストレスを感じることはありません。大切な荷物が届くその瞬間も、まるで優雅な舞台の幕が上がるように楽しむことができるのです。駐車場や駐輪場は、あなたのライフスタイルに寄り添い、快適な移動を実現します。
この場所に住むことで、あなたの日常が美しい物語に変わるのを感じることでしょう。毎日が新しい冒険であり、RIDGE豊洲 205はその物語の舞台。その扉を開けるたびに、あなたは新しい自分を発見し、ただの生活が特別な生活に変わっていくのです。さあ、この素晴らしい空間で、あなた自身の物語を紡いでみませんか。
バイブルスコア
バイブルスコア: 51.4
条件のいい物件です、引っ越しが2か月以内の場合は仮申し込みを検討すべき物件です。
このお部屋は、現在ご入居中のため空室情報はございません。ただし、将来的に募集が開始される際、バイブルスコアにおいて非常に高い評価が期待されます。特にご興味をお持ちの方は、今のうちにブックマークやお気に入りに登録していただくと、募集開始のお知らせをすぐに受け取ることができます。是非ともご検討くださいませ。
※バイブルスコア詳細はこちら
バイブルスコアとは独自のAI機械学習技術を利用した物件評価システムで、物件のおすすめ度を示します。最高得点は100点で、スコアが高いほど、よりおすすめの物件と評価されています。
写真
契約条件
| 賃料 | 予想金額:124,000〜144,000円程度 | 管理費 | 予想金額:16,000〜20,000円程度 |
| 礼金 | 非公開(アーカイブ) | 敷金 | 非公開(アーカイブ) |
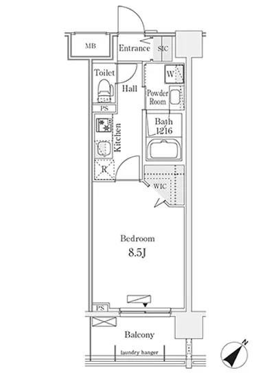
| フリーレント | 1ヶ月 | 平米数 | 30.62㎡ |
| 間取り | 1K+WIC+SIC | 大型収納 | SIC・WIC |
| 契約期間 | 2年 | 方角 | 南東 |
| 更新料 | 1ヶ月 | 契約形態 | 普通賃貸借契約 |
| 取引態様 | 媒介 | 内見状況 | 入居中 |
| 入居時期 | 入居中 | SOHO・事務所 | 不可 |
| ペット | 可 | 間取り内訳 | 洋室8.5帖 |
| キャンペーン情報・備考 | 本情報は賃料改定交渉の資料作成、収益物件の利回り試算、周辺エリアや最寄り駅の坪単価分析、次回募集開始時期の予測などにご活用いただけます。 | ||
※「どの不動産に頼めばいいのか分からない」「信頼できる営業マンの話を聞きたい」「一番親切な会社と契約したい」とお悩みの方におすすめなのが「高級賃貸バイブル」です。
高級賃貸バイブルは業界10年以上の熟練スタッフ群がお客様ファーストで対応します。
下記ボタンから、まずは無料でご相談下さい。
※内覧をご希望の際には、どうぞ物件のエントランス前にてお待ち合わせくださいませ。ご内覧後は、同じ場所でお別れとさせていただきます。お客様のご都合に合わせたスムーズなご案内を心がけておりますので、ご質問等がございましたら何なりとお申し付けください。 物件概要
| 物件名 |
| 築年月 |
|
|---|---|---|---|
| 所在地 | |||
| 交通 | |||
| 総戸数 |
| 総階数 |
|
| 構造 |
| ||
地図
物件までの道のりは、「拡大地図を表示」をクリックしてナビ機能をご利用ください。
部屋設備












建物設備

TVモニターホン

エレベーター

オートロック

バイク置場

フロントサービス

ラウンジ

宅配ボックス

敷地内ゴミ置場

管理人

駐車場平置き

駐車場機械式

駐輪場
RIDGE豊洲の現在募集中のお部屋
- RIDGE豊洲 1004 - 間取り: 2LDK+WIC - 賃料: 28.1万円
- RIDGE豊洲 908 - 間取り: 1K+WIC+SIC - 賃料: 15.2万円

























