
| 賃料 | 予想金額:118,000〜138,000円程度 | 管理費 | 予想金額:8,000〜12,000円程度 |
| 礼金/敷金 | 非公開(アーカイブ) | 平米数 | 26.26㎡ |
| 初期費用概算(参考) | 目安:376,500〜476,500 円 | みなし賃料(月額・参考) | 134,219〜154,219 円 |
| 備考 | 本ページは過去募集のアーカイブです。表示の金額は周辺相場・過去募集を踏まえた参考レンジであり、実際の契約金額・条件ではありません。 | ||
※上記みなし賃料(月額)は仲介手数料割引・無料&キャッシュバックを加味した高級賃貸バイブル限定の金額です。一般的なみなし賃料とは異なります。
【建物ページ】ラグーナ三田の詳細・最新空室はこちら▶▶選ばれる理由
仲介手数料無料・キャンペーン情報(毎月15名様限定)
〇仲介手数料割引キャンペーン
ラグーナ三田 601の口コミ・レビュー
「ラグーナ三田 601」へようこそ。ここは単なる居住空間ではなく、あなたの心が躍る舞台、映画のワンシーンさながらの生活が待っています。この美しい港区芝の地に位置する「ラグーナ三田 601」は、洗練されたデザインと機能性が融合した、まるで宝石のように輝く一室です。
「ラグーナ三田 601」の扉を開けると、ふんわりとした温かみのある空間が広がります。その広さは、26.26㎡の中に無限の可能性を秘めて…「ラグーナ三田 601」へようこそ。ここは単なる居住空間ではなく、あなたの心が躍る舞台、映画のワンシーンさながらの生活が待っています。この美しい港区芝の地に位置する「ラグーナ三田 601」は、洗練されたデザインと機能性が融合した、まるで宝石のように輝く一室です。
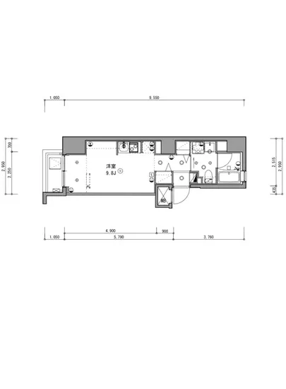
「ラグーナ三田 601」の扉を開けると、ふんわりとした温かみのある空間が広がります。その広さは、26.26㎡の中に無限の可能性を秘めています。広々とした洋室は9.8帖の贅沢な空間で、あなた自身のスタイルを反映させるキャンバスとなることでしょう。柔らかな木目調のフローリングと、優しい色合いの壁が、まるで穏やかな海の波を思わせる心地よさを提供します。
西向きの窓からは、夕暮れ時に染まる空の色がそのままお部屋を包み込みます。日が沈む瞬間、橙色から紫色へと変化する空のグラデーションは、まさに自然が描くアート。その瞬間を感じるたび、日常が特別なものになるのです。「ラグーナ三田 601」で過ごす時間は、まるで自分が主人公になった映画のように心に刻まれます。
その上、「ラグーナ三田 601」には先進的な設備が整っています。心強いTVモニターホンやオートロックシステムは、あなたのプライバシーをしっかり守ってくれるセキュリティの守護神。エレベーターでのアクセスが非常にスムーズで、重い買い物も軽やかに運んでくれます。宅配ボックスがあることで、あなたのライフスタイルは一層便利になり、忙しい日々の中でさえも穏やかな心を保つことができるでしょう。
港区芝という立地は、歴史と文化が息づく街。その周囲にはアートギャラリーや素敵なカフェが点在し、日常の中に小さな冒険が待っています。立ち寄ったカフェでのコーヒーの香りや、静謐な美術館の空気感は、毎日の生活に新たな色を添えることでしょう。自宅に帰るたびに、まるで自分自身が映画のシーンを巡る旅人になったかのような体験ができるのです。
「ラグーナ三田 601」は、ただの住まいではありません。それは、あなたが心からリラックスできる場所。夜の帳が下りる頃、広々とした洋室で好きな音楽を流し、美味しい料理を味わいながら、あなたの人生という物語が進んでいきます。まるで主人公の心情が描かれたページをめくるたびに、新たな展開が待っているかのような、そんな期待感がここにはあるのです。
「ラグーナ三田 601」は、あなたの生活を一層豊かなものにするための舞台であり、その扉を開けた瞬間から新たな物語が始まります。この宝物のような空間で、あなた自身のストーリーを紡ぎ出す準備は整っていますか?
「ラグーナ三田 601」の扉を開けると、ふんわりとした温かみのある空間が広がります。その広さは、26.26㎡の中に無限の可能性を秘めて…「ラグーナ三田 601」へようこそ。ここは単なる居住空間ではなく、あなたの心が躍る舞台、映画のワンシーンさながらの生活が待っています。この美しい港区芝の地に位置する「ラグーナ三田 601」は、洗練されたデザインと機能性が融合した、まるで宝石のように輝く一室です。
「ラグーナ三田 601」の扉を開けると、ふんわりとした温かみのある空間が広がります。その広さは、26.26㎡の中に無限の可能性を秘めています。広々とした洋室は9.8帖の贅沢な空間で、あなた自身のスタイルを反映させるキャンバスとなることでしょう。柔らかな木目調のフローリングと、優しい色合いの壁が、まるで穏やかな海の波を思わせる心地よさを提供します。
西向きの窓からは、夕暮れ時に染まる空の色がそのままお部屋を包み込みます。日が沈む瞬間、橙色から紫色へと変化する空のグラデーションは、まさに自然が描くアート。その瞬間を感じるたび、日常が特別なものになるのです。「ラグーナ三田 601」で過ごす時間は、まるで自分が主人公になった映画のように心に刻まれます。
その上、「ラグーナ三田 601」には先進的な設備が整っています。心強いTVモニターホンやオートロックシステムは、あなたのプライバシーをしっかり守ってくれるセキュリティの守護神。エレベーターでのアクセスが非常にスムーズで、重い買い物も軽やかに運んでくれます。宅配ボックスがあることで、あなたのライフスタイルは一層便利になり、忙しい日々の中でさえも穏やかな心を保つことができるでしょう。
港区芝という立地は、歴史と文化が息づく街。その周囲にはアートギャラリーや素敵なカフェが点在し、日常の中に小さな冒険が待っています。立ち寄ったカフェでのコーヒーの香りや、静謐な美術館の空気感は、毎日の生活に新たな色を添えることでしょう。自宅に帰るたびに、まるで自分自身が映画のシーンを巡る旅人になったかのような体験ができるのです。
「ラグーナ三田 601」は、ただの住まいではありません。それは、あなたが心からリラックスできる場所。夜の帳が下りる頃、広々とした洋室で好きな音楽を流し、美味しい料理を味わいながら、あなたの人生という物語が進んでいきます。まるで主人公の心情が描かれたページをめくるたびに、新たな展開が待っているかのような、そんな期待感がここにはあるのです。
「ラグーナ三田 601」は、あなたの生活を一層豊かなものにするための舞台であり、その扉を開けた瞬間から新たな物語が始まります。この宝物のような空間で、あなた自身のストーリーを紡ぎ出す準備は整っていますか?
バイブルスコア
バイブルスコア: 28.9
平均的なスコアです。
※バイブルスコア詳細はこちら
バイブルスコアとは独自のAI機械学習技術を利用した物件評価システムで、物件のおすすめ度を示します。最高得点は100点で、スコアが高いほど、よりおすすめの物件と評価されています。
写真
契約条件
| 賃料 | 予想金額:118,000〜138,000円程度 | 管理費 | 予想金額:8,000〜12,000円程度 |
| 礼金 | 非公開(アーカイブ) | 敷金 | 非公開(アーカイブ) |
| フリーレント | なし | 平米数 | 26.26㎡ |
| 間取り | 1R | 大型収納 | |
| 契約期間 |
| 方角 | 西 |
| 更新料 | 契約形態 | 普通賃貸借契約 | |
| 取引態様 | 媒介 | 内見状況 | 入居中 |
| 入居時期 | 入居中 | SOHO・事務所 | |
| ペット | 間取り内訳 | 洋:9.8 | |
| キャンペーン情報・備考 | 本情報は賃料改定交渉の資料作成、収益物件の利回り試算、周辺エリアや最寄り駅の坪単価分析、次回募集開始時期の予測などにご活用いただけます。 | ||
※「どの不動産に頼めばいいのか分からない」「信頼できる営業マンの話を聞きたい」「一番親切な会社と契約したい」とお悩みの方におすすめなのが「高級賃貸バイブル」です。
高級賃貸バイブルは業界10年以上の熟練スタッフ群がお客様ファーストで対応します。
下記ボタンから、まずは無料でご相談下さい。
※内覧をご希望の際には、どうぞ物件のエントランス前にてお待ち合わせくださいませ。ご内覧後は、同じ場所でお別れとさせていただきます。お客様のご都合に合わせたスムーズなご案内を心がけておりますので、ご質問等がございましたら何なりとお申し付けください。 物件概要
| 物件名 |
| 築年月 |
|
|---|---|---|---|
| 所在地 | |||
| 交通 | |||
| 総戸数 |
| 総階数 |
|
| 構造 |
| ||
地図
物件までの道のりは、「拡大地図を表示」をクリックしてナビ機能をご利用ください。
部屋設備











建物設備

TVモニターホン

エレベーター

オートロック

宅配ボックス

敷地内ゴミ置場

管理人

駐輪場
ラグーナ三田の現在募集中のお部屋
- No rooms found for this property.



























