
| 賃料 | 予想金額:123,000〜143,000円程度 | 管理費 | 予想金額:8,000〜12,000円程度 |
| 礼金/敷金 | 非公開(アーカイブ) | 平米数 | 26.26㎡ |
| 初期費用概算(参考) | 目安:538,500〜638,500 円 | みなし賃料(月額・参考) | 142,490〜162,490 円 |
| 備考 | 本ページは過去募集のアーカイブです。表示の金額は周辺相場・過去募集を踏まえた参考レンジであり、実際の契約金額・条件ではありません。 | ||
※上記みなし賃料(月額)は仲介手数料割引・無料&キャッシュバックを加味した高級賃貸バイブル限定の金額です。一般的なみなし賃料とは異なります。
【建物ページ】ラグーナ三田の詳細・最新空室はこちら▶▶選ばれる理由
仲介手数料無料・キャンペーン情報(毎月15名様限定)
〇仲介手数料割引キャンペーン
ラグーナ三田 901の口コミ・レビュー
ラグーナ三田 901。東京都港区の中心に佇むこの物件は、まるで都会の喧騒から一歩離れた静寂のオアシス。特別な空間であるこの場所では、外の世界とは異なる、まるで一つの小宇宙にいるかのような感覚を味わえます。エレガントな佇まいを持つラグーナ三田 901は、その名に恥じぬ上質な生活を住まう人に約束します。
この住処に足を踏み入れた瞬間、あなたを包み込むのは柔らかな光。西に面した窓から差し込む日差しは、…ラグーナ三田 901。東京都港区の中心に佇むこの物件は、まるで都会の喧騒から一歩離れた静寂のオアシス。特別な空間であるこの場所では、外の世界とは異なる、まるで一つの小宇宙にいるかのような感覚を味わえます。エレガントな佇まいを持つラグーナ三田 901は、その名に恥じぬ上質な生活を住まう人に約束します。
この住処に足を踏み入れた瞬間、あなたを包み込むのは柔らかな光。西に面した窓から差し込む日差しは、夕暮れ時に黄金色に染まり、まるで画家が描いたような美しいカンバスを創り出します。新しい一日の終わりを柔らかな光で祝う、そんな息を呑む瞬間が日常の一部となります。この場所での生活は、毎日が映画のワンシーンのように鮮やかに展開することでしょう。
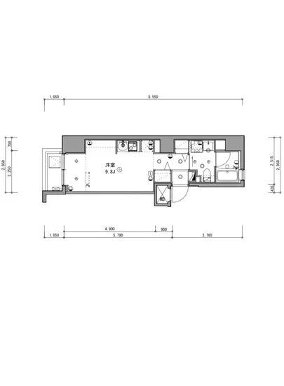
広さ26.26㎡の空間の中に、あなた自身の物語を紡いでいくことができます。9.8帖の洋室は、自由に使えるキャンバス。白い壁と自然な木のフローリングが調和し、あなたのセンスで彩られるのを待っています。お気に入りのアートや家具で、あなた自身の世界を創り上げることができるのです。夜には、その空間で自分自身と向き合い、思考を巡らせる贅沢なひとときをお楽しみください。
ラグーナ三田 901には、洗練された設備も整っています。オートロックや宅配ボックス、管理人の存在が、安心と快適さを提供し、忙しいあなたの生活を支えてくれます。特に、都営地下鉄三田線三田駅から徒歩2分の立地は、まるで人生のすべての可能性を詰め込んだ宝箱のよう。周囲には、歴史が薫る街並みや、文化的な香りを感じる場所が点在しており、散策を楽しむたびに新たな発見が待っています。
この地には、かつて多くの文人や芸術家が息づいていました。彼らが感じたインスピレーションを、ラグーナ三田 901は現在も受け継いでいます。ここでは、自分自身を表現し、再創造することに心を奪われることでしょう。すぐそばの公園で風に揺れる葉音、街の喧騒の中に潜む静けさ、そして、あなたの心を打つ美しい景色。これらすべてが、日常を特別なものに変えていきます。
ラグーナ三田 901での生活は、まさに五感を刺激する贅沢な体験です。ダイニングでは、自分が愛する料理の香りが漂い、友人との語らいの中で心地よい笑い声が響き、夜のひとときにはワインの味わいが深まっていくことでしょう。全身で感じるこの場所の魅力は、日々の暮らしを豊かにし、あなたの人生に新たな彩りを添えてくれます。
ラグーナ三田 901、あなたの新しい物語の舞台がここにあります。さあ、一歩を踏み出し、その扉を開けてください。新たな生活が、あなたを待っています。
この住処に足を踏み入れた瞬間、あなたを包み込むのは柔らかな光。西に面した窓から差し込む日差しは、…ラグーナ三田 901。東京都港区の中心に佇むこの物件は、まるで都会の喧騒から一歩離れた静寂のオアシス。特別な空間であるこの場所では、外の世界とは異なる、まるで一つの小宇宙にいるかのような感覚を味わえます。エレガントな佇まいを持つラグーナ三田 901は、その名に恥じぬ上質な生活を住まう人に約束します。
この住処に足を踏み入れた瞬間、あなたを包み込むのは柔らかな光。西に面した窓から差し込む日差しは、夕暮れ時に黄金色に染まり、まるで画家が描いたような美しいカンバスを創り出します。新しい一日の終わりを柔らかな光で祝う、そんな息を呑む瞬間が日常の一部となります。この場所での生活は、毎日が映画のワンシーンのように鮮やかに展開することでしょう。
広さ26.26㎡の空間の中に、あなた自身の物語を紡いでいくことができます。9.8帖の洋室は、自由に使えるキャンバス。白い壁と自然な木のフローリングが調和し、あなたのセンスで彩られるのを待っています。お気に入りのアートや家具で、あなた自身の世界を創り上げることができるのです。夜には、その空間で自分自身と向き合い、思考を巡らせる贅沢なひとときをお楽しみください。
ラグーナ三田 901には、洗練された設備も整っています。オートロックや宅配ボックス、管理人の存在が、安心と快適さを提供し、忙しいあなたの生活を支えてくれます。特に、都営地下鉄三田線三田駅から徒歩2分の立地は、まるで人生のすべての可能性を詰め込んだ宝箱のよう。周囲には、歴史が薫る街並みや、文化的な香りを感じる場所が点在しており、散策を楽しむたびに新たな発見が待っています。
この地には、かつて多くの文人や芸術家が息づいていました。彼らが感じたインスピレーションを、ラグーナ三田 901は現在も受け継いでいます。ここでは、自分自身を表現し、再創造することに心を奪われることでしょう。すぐそばの公園で風に揺れる葉音、街の喧騒の中に潜む静けさ、そして、あなたの心を打つ美しい景色。これらすべてが、日常を特別なものに変えていきます。
ラグーナ三田 901での生活は、まさに五感を刺激する贅沢な体験です。ダイニングでは、自分が愛する料理の香りが漂い、友人との語らいの中で心地よい笑い声が響き、夜のひとときにはワインの味わいが深まっていくことでしょう。全身で感じるこの場所の魅力は、日々の暮らしを豊かにし、あなたの人生に新たな彩りを添えてくれます。
ラグーナ三田 901、あなたの新しい物語の舞台がここにあります。さあ、一歩を踏み出し、その扉を開けてください。新たな生活が、あなたを待っています。
バイブルスコア
バイブルスコア: 34.8
平均的なスコアです。
※バイブルスコア詳細はこちら
バイブルスコアとは独自のAI機械学習技術を利用した物件評価システムで、物件のおすすめ度を示します。最高得点は100点で、スコアが高いほど、よりおすすめの物件と評価されています。
写真
契約条件
| 賃料 | 予想金額:123,000〜143,000円程度 | 管理費 | 予想金額:8,000〜12,000円程度 |
| 礼金 | 非公開(アーカイブ) | 敷金 | 非公開(アーカイブ) |
| フリーレント | なし | 平米数 | 26.26㎡ |
| 間取り | 1R | 大型収納 | なし |
| 契約期間 | 2年 | 方角 | 西 |
| 更新料 | 1ヶ月 | 契約形態 | 普通賃貸借契約 |
| 取引態様 | 媒介 | 内見状況 | 入居中 |
| 入居時期 | 入居中 | SOHO・事務所 | 不可 |
| ペット | 不可 | 間取り内訳 | 洋:9.8 |
| キャンペーン情報・備考 | 本情報は賃料改定交渉の資料作成、収益物件の利回り試算、周辺エリアや最寄り駅の坪単価分析、次回募集開始時期の予測などにご活用いただけます。 | ||
※「どの不動産に頼めばいいのか分からない」「信頼できる営業マンの話を聞きたい」「一番親切な会社と契約したい」とお悩みの方におすすめなのが「高級賃貸バイブル」です。
高級賃貸バイブルは業界10年以上の熟練スタッフ群がお客様ファーストで対応します。
下記ボタンから、まずは無料でご相談下さい。
※内覧をご希望の際には、どうぞ物件のエントランス前にてお待ち合わせくださいませ。ご内覧後は、同じ場所でお別れとさせていただきます。お客様のご都合に合わせたスムーズなご案内を心がけておりますので、ご質問等がございましたら何なりとお申し付けください。 物件概要
| 物件名 |
| 築年月 |
|
|---|---|---|---|
| 所在地 | |||
| 交通 | |||
| 総戸数 |
| 総階数 |
|
| 構造 |
| ||
地図
物件までの道のりは、「拡大地図を表示」をクリックしてナビ機能をご利用ください。
部屋設備











建物設備

TVモニターホン

エレベーター

オートロック

宅配ボックス

敷地内ゴミ置場

管理人

駐輪場
ラグーナ三田の現在募集中のお部屋
- No rooms found for this property.



























