
| 賃料 | 予想金額:130,000〜150,000円程度 | 管理費 | 予想金額:8,000〜12,000円程度 |
| 礼金/敷金 | 非公開(アーカイブ) | 平米数 | 26.26㎡ |
| 初期費用概算(参考) | 目安:444,200〜544,200 円 | みなし賃料(月額・参考) | 147,379〜167,379 円 |
| 備考 | 本ページは過去募集のアーカイブです。表示の金額は周辺相場・過去募集を踏まえた参考レンジであり、実際の契約金額・条件ではありません。 | ||
※上記みなし賃料(月額)は仲介手数料割引・無料&キャッシュバックを加味した高級賃貸バイブル限定の金額です。一般的なみなし賃料とは異なります。
【建物ページ】カーサスプレンディッド赤坂7丁目の詳細・最新空室はこちら▶▶選ばれる理由
仲介手数料無料・キャンペーン情報(毎月15名様限定)
〇引っ越しお祝い金30800円プレゼント(キャッシュバック)
〇仲介手数料無料キャンペーン
カーサ スプレンディッド赤坂7丁目 303の口コミ・レビュー
カーサ スプレンディッド赤坂7丁目 303。この名前はただの住所ではなく、ライフスタイルの新たな舞台への扉を開く、特別な存在です。東京都港区赤坂という華やかな街並みの中にひっそりと佇むこの物件は、あなたの日常を映画の一場面のように彩ります。
この303号室に足を踏み入れた瞬間、まるでパリの小さなアパートメントに迷い込んだかのような気分になります。目に入るのは、柔らかな光が差し込む洋室7.2帖の空…カーサ スプレンディッド赤坂7丁目 303。この名前はただの住所ではなく、ライフスタイルの新たな舞台への扉を開く、特別な存在です。東京都港区赤坂という華やかな街並みの中にひっそりと佇むこの物件は、あなたの日常を映画の一場面のように彩ります。
この303号室に足を踏み入れた瞬間、まるでパリの小さなアパートメントに迷い込んだかのような気分になります。目に入るのは、柔らかな光が差し込む洋室7.2帖の空間。朝の光がカーテンを通して優しく舞い込み、心をほぐすような温もりを感じられるでしょう。外からは、赤坂の街の喧騒がかすかに耳に届きますが、この居場所にいると、まるで時が止まったかのような静けさに包まれます。あなたがリラックスし、深呼吸をすると、空気はアロマのように香り立ち、心の奥まで癒されることでしょう。
カーサ スプレンディッド赤坂7丁目 303は、ただ住む場所ではなく、日々のインスピレーションを与えてくれるアートピースのようです。デザイナーズマンションとしての洗練された内装は、あなたのクリエイティビティを引き出し、毎日を特別なものにしてくれます。ちょっとしたカフェスペースを作るのもあなた次第。コーヒーの香りが漂う中、心地よい音楽を流しながら、まるで映画の中の主人公になったかのような感覚に浸ることができるのです。
北東向きの窓からは、朝の光が優しく部屋を満たし、夜には静かな星空を眺めることができます。赤坂という土地には、歴史の面影が色濃く残っており、周囲を散策すれば、文化や芸術の息吹を感じることができるでしょう。アートギャラリーや洗練されたレストランが点在し、あなたの感性を刺激し続けます。美味しい匂いが漂うレストランでの優雅なディナーや、地元のアートイベントへの参加は、あなたの生活をさらなる高みに押し上げてくれることでしょう。
カーサ スプレンディッド赤坂7丁目 303の魅力は、その立地だけではありません。エレベーターを使って登った先には、安心のオートロックや管理人も常駐しており、プライバシーと安全をしっかりと守ってくれます。宅配ボックスも完備されているため、あなたの大切な荷物も安心して受け取ることができます。まるであなたのためだけに設計されたかのような、このセキュリティと利便性は、快適な生活をサポートします。
このカーサ スプレンディッド赤坂7丁目 303には、あなたの物語が待っています。新しい日常が幕を上げるその瞬間を心から楽しみにしていてください。ここは、ただの住まいではなく、あなたの人生の新たな章が始まる場所。いざ、新しい冒険に飛び込む準備を整え、カーサ スプレンディッド赤坂7丁目 303での生活の始まりを楽しみにしていることでしょう。
この303号室に足を踏み入れた瞬間、まるでパリの小さなアパートメントに迷い込んだかのような気分になります。目に入るのは、柔らかな光が差し込む洋室7.2帖の空…カーサ スプレンディッド赤坂7丁目 303。この名前はただの住所ではなく、ライフスタイルの新たな舞台への扉を開く、特別な存在です。東京都港区赤坂という華やかな街並みの中にひっそりと佇むこの物件は、あなたの日常を映画の一場面のように彩ります。
この303号室に足を踏み入れた瞬間、まるでパリの小さなアパートメントに迷い込んだかのような気分になります。目に入るのは、柔らかな光が差し込む洋室7.2帖の空間。朝の光がカーテンを通して優しく舞い込み、心をほぐすような温もりを感じられるでしょう。外からは、赤坂の街の喧騒がかすかに耳に届きますが、この居場所にいると、まるで時が止まったかのような静けさに包まれます。あなたがリラックスし、深呼吸をすると、空気はアロマのように香り立ち、心の奥まで癒されることでしょう。
カーサ スプレンディッド赤坂7丁目 303は、ただ住む場所ではなく、日々のインスピレーションを与えてくれるアートピースのようです。デザイナーズマンションとしての洗練された内装は、あなたのクリエイティビティを引き出し、毎日を特別なものにしてくれます。ちょっとしたカフェスペースを作るのもあなた次第。コーヒーの香りが漂う中、心地よい音楽を流しながら、まるで映画の中の主人公になったかのような感覚に浸ることができるのです。
北東向きの窓からは、朝の光が優しく部屋を満たし、夜には静かな星空を眺めることができます。赤坂という土地には、歴史の面影が色濃く残っており、周囲を散策すれば、文化や芸術の息吹を感じることができるでしょう。アートギャラリーや洗練されたレストランが点在し、あなたの感性を刺激し続けます。美味しい匂いが漂うレストランでの優雅なディナーや、地元のアートイベントへの参加は、あなたの生活をさらなる高みに押し上げてくれることでしょう。
カーサ スプレンディッド赤坂7丁目 303の魅力は、その立地だけではありません。エレベーターを使って登った先には、安心のオートロックや管理人も常駐しており、プライバシーと安全をしっかりと守ってくれます。宅配ボックスも完備されているため、あなたの大切な荷物も安心して受け取ることができます。まるであなたのためだけに設計されたかのような、このセキュリティと利便性は、快適な生活をサポートします。
このカーサ スプレンディッド赤坂7丁目 303には、あなたの物語が待っています。新しい日常が幕を上げるその瞬間を心から楽しみにしていてください。ここは、ただの住まいではなく、あなたの人生の新たな章が始まる場所。いざ、新しい冒険に飛び込む準備を整え、カーサ スプレンディッド赤坂7丁目 303での生活の始まりを楽しみにしていることでしょう。
バイブルスコア
バイブルスコア: 35.2
平均的なスコアです。
※バイブルスコア詳細はこちら
バイブルスコアとは独自のAI機械学習技術を利用した物件評価システムで、物件のおすすめ度を示します。最高得点は100点で、スコアが高いほど、よりおすすめの物件と評価されています。
写真
現在写真が登録されていません契約条件
| 賃料 | 予想金額:130,000〜150,000円程度 | 管理費 | 予想金額:8,000〜12,000円程度 |
| 礼金 | 非公開(アーカイブ) | 敷金 | 非公開(アーカイブ) |
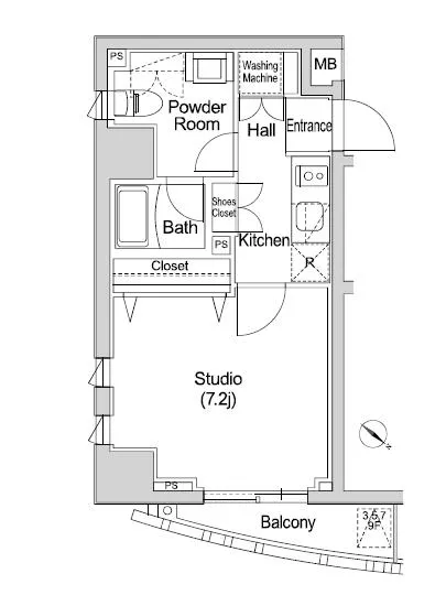
| フリーレント | なし | 平米数 | 26.26㎡ |
| 間取り | 1K | 大型収納 | なし |
| 契約期間 | 2年 | 方角 | 北東 |
| 更新料 | 1ヶ月 | 契約形態 | 普通賃貸借契約 |
| 取引態様 | 媒介 | 内見状況 | 入居中 |
| 入居時期 | 入居中 | SOHO・事務所 | 不可 |
| ペット | 不可 | 間取り内訳 | 洋:7.2 |
| キャンペーン情報・備考 | 本情報は賃料改定交渉の資料作成、収益物件の利回り試算、周辺エリアや最寄り駅の坪単価分析、次回募集開始時期の予測などにご活用いただけます。 | ||
※「どの不動産に頼めばいいのか分からない」「信頼できる営業マンの話を聞きたい」「一番親切な会社と契約したい」とお悩みの方におすすめなのが「高級賃貸バイブル」です。
高級賃貸バイブルは業界10年以上の熟練スタッフ群がお客様ファーストで対応します。
下記ボタンから、まずは無料でご相談下さい。
※内覧をご希望の際には、どうぞ物件のエントランス前にてお待ち合わせくださいませ。ご内覧後は、同じ場所でお別れとさせていただきます。お客様のご都合に合わせたスムーズなご案内を心がけておりますので、ご質問等がございましたら何なりとお申し付けください。 物件概要
| 物件名 |
| 築年月 |
|
|---|---|---|---|
| 所在地 | |||
| 交通 | |||
| 総戸数 |
| 総階数 |
|
| 構造 |
| ||
地図
物件までの道のりは、「拡大地図を表示」をクリックしてナビ機能をご利用ください。
部屋設備















建物設備

TVモニターホン

エレベーター

オートロック

宅配ボックス

敷地内ゴミ置場

駐輪場
カーサ スプレンディッド赤坂7丁目の現在募集中のお部屋
- カーサスプレンディッド赤坂7丁目 203 - 間取り: 1K - 賃料: 15.5万円
- カーサスプレンディッド赤坂7丁目 701 - 間取り: 1K - 賃料: 16万円
