
| 賃料 | 予想金額:119,000〜139,000円程度 | 管理費 | 予想金額:8,000〜12,000円程度 |
| 礼金/敷金 | 非公開(アーカイブ) | 平米数 | 26.26㎡ |
| 初期費用概算(参考) | 目安:508,000〜608,000 円 | みなし賃料(月額・参考) | 137,938〜157,938 円 |
| 備考 | 本ページは過去募集のアーカイブです。表示の金額は周辺相場・過去募集を踏まえた参考レンジであり、実際の契約金額・条件ではありません。 | ||
※上記みなし賃料(月額)は仲介手数料割引・無料&キャッシュバックを加味した高級賃貸バイブル限定の金額です。一般的なみなし賃料とは異なります。
【建物ページ】カーサスプレンディッド赤坂7丁目の詳細・最新空室はこちら▶▶選ばれる理由
仲介手数料無料・キャンペーン情報(毎月15名様限定)
〇仲介手数料割引キャンペーン
カーサ スプレンディッド赤坂7丁目 503の口コミ・レビュー
カーサ スプレンディッド赤坂7丁目 503。この名を一度耳にすれば、あなたの心に深く刻まれることでしょう。この高級賃貸物件は、赤坂という洗練されたエリアにあり、北東向きの明るさがあなたの日々を彩ります。専有面積26.26㎡のその空間は、まるで優雅なキャンバスのように、あなた自身の物語を描くための舞台といえるでしょう。
カーサ スプレンディッド赤坂7丁目 503の扉を開けた瞬間、心を穏やかにする光…カーサ スプレンディッド赤坂7丁目 503。この名を一度耳にすれば、あなたの心に深く刻まれることでしょう。この高級賃貸物件は、赤坂という洗練されたエリアにあり、北東向きの明るさがあなたの日々を彩ります。専有面積26.26㎡のその空間は、まるで優雅なキャンバスのように、あなた自身の物語を描くための舞台といえるでしょう。
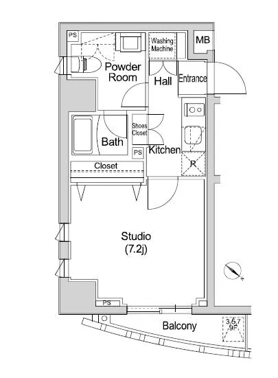
カーサ スプレンディッド赤坂7丁目 503の扉を開けた瞬間、心を穏やかにする光景が広がります。7.2帖の洋室は、木の温もりが感じられるフローリングに包まれ、柔らかな日差しが優しく降り注ぎます。この部屋の中にいると、まるで日常の喧騒から離れ、静寂の中に佇んでいるような、そんな心地よさに包まれるのです。あなたが大切になさるアートやインテリアが、この空間に新たな息吹を与えることでしょう。
エレベーターでの移動は、まるで優雅な舞踏の一幕のようです。オートロックで守られたこの場所は、あなたのプライバシーをしっかりと守りながらも、同時に外の世界と繋がる窓を持っています。宅配ボックスが完備されており、忙しい日常でも大切な荷物を見逃すことがないのも嬉しいポイント。管理人がそばにいる安心感は、日々の生活をさらに豊かにしてくれるでしょう。
赤坂駅から徒歩5分という立地は、まるで都市の心臓部にいるかのような利便性を提供しますが、周辺の静けさにも目を向けてみてください。歴史ある赤坂は、文化や芸術が交差する場所でもあります。近くの美術館やギャラリーを訪れたり、地元のカフェで過ごすひとときは、心の滋養となることでしょう。また、赤坂には多くのレストランが並び、上質な食文化を楽しむことができるのも魅力。自宅のキッチンで食材を準備し、家族や友人と共にテーブルを囲むとき、その食事はまるで美しい映画のワンシーンのように感じられます。
カーサ スプレンディッド赤坂7丁目 503は、単なる住まいではなく、あなたの人生の一部となり、毎日の生活をより色鮮やかにするためのパートナーです。贅沢なひとときを提供し、時には静かな思索を、また別の時には心躍るインスピレーションを与えてくれるでしょう。ここでの暮らしが新たな物語を紡ぎ出し、あなたの五感を揺さぶるような体験をもたらすことを、私は確信しています。カーサ スプレンディッド赤坂7丁目 503で、あなたの日常を特別なものにしてください。
カーサ スプレンディッド赤坂7丁目 503の扉を開けた瞬間、心を穏やかにする光…カーサ スプレンディッド赤坂7丁目 503。この名を一度耳にすれば、あなたの心に深く刻まれることでしょう。この高級賃貸物件は、赤坂という洗練されたエリアにあり、北東向きの明るさがあなたの日々を彩ります。専有面積26.26㎡のその空間は、まるで優雅なキャンバスのように、あなた自身の物語を描くための舞台といえるでしょう。
カーサ スプレンディッド赤坂7丁目 503の扉を開けた瞬間、心を穏やかにする光景が広がります。7.2帖の洋室は、木の温もりが感じられるフローリングに包まれ、柔らかな日差しが優しく降り注ぎます。この部屋の中にいると、まるで日常の喧騒から離れ、静寂の中に佇んでいるような、そんな心地よさに包まれるのです。あなたが大切になさるアートやインテリアが、この空間に新たな息吹を与えることでしょう。
エレベーターでの移動は、まるで優雅な舞踏の一幕のようです。オートロックで守られたこの場所は、あなたのプライバシーをしっかりと守りながらも、同時に外の世界と繋がる窓を持っています。宅配ボックスが完備されており、忙しい日常でも大切な荷物を見逃すことがないのも嬉しいポイント。管理人がそばにいる安心感は、日々の生活をさらに豊かにしてくれるでしょう。
赤坂駅から徒歩5分という立地は、まるで都市の心臓部にいるかのような利便性を提供しますが、周辺の静けさにも目を向けてみてください。歴史ある赤坂は、文化や芸術が交差する場所でもあります。近くの美術館やギャラリーを訪れたり、地元のカフェで過ごすひとときは、心の滋養となることでしょう。また、赤坂には多くのレストランが並び、上質な食文化を楽しむことができるのも魅力。自宅のキッチンで食材を準備し、家族や友人と共にテーブルを囲むとき、その食事はまるで美しい映画のワンシーンのように感じられます。
カーサ スプレンディッド赤坂7丁目 503は、単なる住まいではなく、あなたの人生の一部となり、毎日の生活をより色鮮やかにするためのパートナーです。贅沢なひとときを提供し、時には静かな思索を、また別の時には心躍るインスピレーションを与えてくれるでしょう。ここでの暮らしが新たな物語を紡ぎ出し、あなたの五感を揺さぶるような体験をもたらすことを、私は確信しています。カーサ スプレンディッド赤坂7丁目 503で、あなたの日常を特別なものにしてください。
バイブルスコア
バイブルスコア: 26.5
平均的なスコアです。
※バイブルスコア詳細はこちら
バイブルスコアとは独自のAI機械学習技術を利用した物件評価システムで、物件のおすすめ度を示します。最高得点は100点で、スコアが高いほど、よりおすすめの物件と評価されています。
写真
現在写真が登録されていません契約条件
| 賃料 | 予想金額:119,000〜139,000円程度 | 管理費 | 予想金額:8,000〜12,000円程度 |
| 礼金 | 非公開(アーカイブ) | 敷金 | 非公開(アーカイブ) |
| フリーレント | なし | 平米数 | 26.26㎡ |
| 間取り | 1K | 大型収納 | |
| 契約期間 |
| 方角 | 北東 |
| 更新料 | 契約形態 | 普通賃貸借契約 | |
| 取引態様 | 媒介 | 内見状況 | 入居中 |
| 入居時期 | 入居中 | SOHO・事務所 | |
| ペット | 間取り内訳 | 洋:7.2 | |
| キャンペーン情報・備考 | 本情報は賃料改定交渉の資料作成、収益物件の利回り試算、周辺エリアや最寄り駅の坪単価分析、次回募集開始時期の予測などにご活用いただけます。 | ||
※「どの不動産に頼めばいいのか分からない」「信頼できる営業マンの話を聞きたい」「一番親切な会社と契約したい」とお悩みの方におすすめなのが「高級賃貸バイブル」です。
高級賃貸バイブルは業界10年以上の熟練スタッフ群がお客様ファーストで対応します。
下記ボタンから、まずは無料でご相談下さい。
※内覧をご希望の際には、どうぞ物件のエントランス前にてお待ち合わせくださいませ。ご内覧後は、同じ場所でお別れとさせていただきます。お客様のご都合に合わせたスムーズなご案内を心がけておりますので、ご質問等がございましたら何なりとお申し付けください。 物件概要
| 物件名 |
| 築年月 |
|
|---|---|---|---|
| 所在地 | |||
| 交通 | |||
| 総戸数 |
| 総階数 |
|
| 構造 |
| ||
地図
物件までの道のりは、「拡大地図を表示」をクリックしてナビ機能をご利用ください。
部屋設備















建物設備

TVモニターホン

エレベーター

オートロック

宅配ボックス

敷地内ゴミ置場

駐輪場
カーサ スプレンディッド赤坂7丁目の現在募集中のお部屋
- カーサスプレンディッド赤坂7丁目 203 - 間取り: 1K - 賃料: 15.5万円
- カーサスプレンディッド赤坂7丁目 701 - 間取り: 1K - 賃料: 16万円
