
| 賃料 | 予想金額:112,000〜132,000円程度 | 管理費 | 予想金額:8,000〜12,000円程度 |
| 礼金/敷金 | 非公開(アーカイブ) | 平米数 | 26.57㎡ |
| 初期費用概算(参考) | 目安:483,500〜583,500 円 | みなし賃料(月額・参考) | 130,573〜150,573 円 |
| 備考 | 本ページは過去募集のアーカイブです。表示の金額は周辺相場・過去募集を踏まえた参考レンジであり、実際の契約金額・条件ではありません。 | ||
※上記みなし賃料(月額)は仲介手数料割引・無料&キャッシュバックを加味した高級賃貸バイブル限定の金額です。一般的なみなし賃料とは異なります。
【建物ページ】カーサスプレンディッド赤坂7丁目の詳細・最新空室はこちら▶▶選ばれる理由
仲介手数料無料・キャンペーン情報(毎月15名様限定)
〇仲介手数料割引キャンペーン
カーサ スプレンディッド赤坂7丁目 301の口コミ・レビュー
カーサ スプレンディッド赤坂7丁目 301。この名前を聞いた瞬間、ほんのりとした高級感が漂い、心の中に小さな期待が芽生えます。301号室は、贅沢な夢を現実に変える舞台、あなたの物語が紡がれる場所。その扉を開けた瞬間、26.57㎡の空間が、まるで魔法のようにあなたを包み込みます。
北東に面した窓からは、朝の光が優しく差し込み、まるで一日の始まりを祝福するかのように、やわらかな光が舞い込んでくるので…カーサ スプレンディッド赤坂7丁目 301。この名前を聞いた瞬間、ほんのりとした高級感が漂い、心の中に小さな期待が芽生えます。301号室は、贅沢な夢を現実に変える舞台、あなたの物語が紡がれる場所。その扉を開けた瞬間、26.57㎡の空間が、まるで魔法のようにあなたを包み込みます。
北東に面した窓からは、朝の光が優しく差し込み、まるで一日の始まりを祝福するかのように、やわらかな光が舞い込んでくるのです。たった一杯のコーヒーを淹れるだけで、香ばしい豆の香りが広がり、穏やかな時間が流れ始めます。あたかも、恵みの光があなたの一日を導くように、時間が黄金色に染まる瞬間に遭遇するのです。
カーサ スプレンディッド赤坂7丁目 301には、デザイナーズの空間があなたを待ち受けています。洗練されたデザインの中に、洗練された生活が息づく様子は、まるで洗練されたアート作品の中に住むかのよう。オートロックや宅配ボックス、管理人による安心感が日常に安らぎをもたらし、エレベーターでの上質な移動が、あなたの生活にさらなる快適さをプラスします。駐輪場も完備されており、自由な移動をサポートしてくれます。
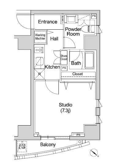
7.3帖の洋室は、あなたの個性を反映するキャンバスとなります。また、さまざまな家具やインテリアが無限の可能性を秘めており、どんなスタイルにも合わせられる柔軟性があります。この部屋で、あなたはどんな生活を描きたいのでしょうか。映画のワンシーンのような朝食を楽しむ瞬間、静かな午後に本を読んで過ごす贅沢な時間、あるいは友人と共に過ごす楽しいひととき。カーサ スプレンディッド赤坂7丁目 301は、その全てを可能にしてくれる場所です。
そして、周囲の文化や歴史が、あなたの生活に彩りを添えてくれます。赤坂という土地は、歴史的な魅力と現代的な活気が融合した、まさに文化の交差点。東京メトロ千代田線でのアクセスも良好で、あなたの心の赴くままに、新たな発見を楽しむことができるのです。歴史的な名所や芸術的なスポットが点在し、日常の中で感じる文化の豊かさは、まるでこの空間が特別な場所であることを教えてくれるようです。
カーサ スプレンディッド赤坂7丁目 301は、ただの住まいではなく、あなたの人生に広がる新しい地平を感じさせてくれる場所。ここでの日々は、まるで一冊の美しい物語のように、色とりどりの瞬間が織り成されています。あなたの新たな章を、この空間で書き綴ってみませんか。心に響く特別な居場所として、カーサ スプレンディッド赤坂7丁目 301が、あなたを待っています。
北東に面した窓からは、朝の光が優しく差し込み、まるで一日の始まりを祝福するかのように、やわらかな光が舞い込んでくるので…カーサ スプレンディッド赤坂7丁目 301。この名前を聞いた瞬間、ほんのりとした高級感が漂い、心の中に小さな期待が芽生えます。301号室は、贅沢な夢を現実に変える舞台、あなたの物語が紡がれる場所。その扉を開けた瞬間、26.57㎡の空間が、まるで魔法のようにあなたを包み込みます。
北東に面した窓からは、朝の光が優しく差し込み、まるで一日の始まりを祝福するかのように、やわらかな光が舞い込んでくるのです。たった一杯のコーヒーを淹れるだけで、香ばしい豆の香りが広がり、穏やかな時間が流れ始めます。あたかも、恵みの光があなたの一日を導くように、時間が黄金色に染まる瞬間に遭遇するのです。
カーサ スプレンディッド赤坂7丁目 301には、デザイナーズの空間があなたを待ち受けています。洗練されたデザインの中に、洗練された生活が息づく様子は、まるで洗練されたアート作品の中に住むかのよう。オートロックや宅配ボックス、管理人による安心感が日常に安らぎをもたらし、エレベーターでの上質な移動が、あなたの生活にさらなる快適さをプラスします。駐輪場も完備されており、自由な移動をサポートしてくれます。
7.3帖の洋室は、あなたの個性を反映するキャンバスとなります。また、さまざまな家具やインテリアが無限の可能性を秘めており、どんなスタイルにも合わせられる柔軟性があります。この部屋で、あなたはどんな生活を描きたいのでしょうか。映画のワンシーンのような朝食を楽しむ瞬間、静かな午後に本を読んで過ごす贅沢な時間、あるいは友人と共に過ごす楽しいひととき。カーサ スプレンディッド赤坂7丁目 301は、その全てを可能にしてくれる場所です。
そして、周囲の文化や歴史が、あなたの生活に彩りを添えてくれます。赤坂という土地は、歴史的な魅力と現代的な活気が融合した、まさに文化の交差点。東京メトロ千代田線でのアクセスも良好で、あなたの心の赴くままに、新たな発見を楽しむことができるのです。歴史的な名所や芸術的なスポットが点在し、日常の中で感じる文化の豊かさは、まるでこの空間が特別な場所であることを教えてくれるようです。
カーサ スプレンディッド赤坂7丁目 301は、ただの住まいではなく、あなたの人生に広がる新しい地平を感じさせてくれる場所。ここでの日々は、まるで一冊の美しい物語のように、色とりどりの瞬間が織り成されています。あなたの新たな章を、この空間で書き綴ってみませんか。心に響く特別な居場所として、カーサ スプレンディッド赤坂7丁目 301が、あなたを待っています。
バイブルスコア
バイブルスコア: 37.8
平均的なスコアです。
※バイブルスコア詳細はこちら
バイブルスコアとは独自のAI機械学習技術を利用した物件評価システムで、物件のおすすめ度を示します。最高得点は100点で、スコアが高いほど、よりおすすめの物件と評価されています。
写真
現在写真が登録されていません契約条件
| 賃料 | 予想金額:112,000〜132,000円程度 | 管理費 | 予想金額:8,000〜12,000円程度 |
| 礼金 | 非公開(アーカイブ) | 敷金 | 非公開(アーカイブ) |
| フリーレント | なし | 平米数 | 26.57㎡ |
| 間取り | 1K | 大型収納 | |
| 契約期間 |
| 方角 | 北東 |
| 更新料 | 契約形態 | 普通賃貸借契約 | |
| 取引態様 | 媒介 | 内見状況 | 入居中 |
| 入居時期 | 入居中 | SOHO・事務所 | |
| ペット | 間取り内訳 | 洋:7.3 | |
| キャンペーン情報・備考 | 本情報は賃料改定交渉の資料作成、収益物件の利回り試算、周辺エリアや最寄り駅の坪単価分析、次回募集開始時期の予測などにご活用いただけます。 | ||
※「どの不動産に頼めばいいのか分からない」「信頼できる営業マンの話を聞きたい」「一番親切な会社と契約したい」とお悩みの方におすすめなのが「高級賃貸バイブル」です。
高級賃貸バイブルは業界10年以上の熟練スタッフ群がお客様ファーストで対応します。
下記ボタンから、まずは無料でご相談下さい。
※内覧をご希望の際には、どうぞ物件のエントランス前にてお待ち合わせくださいませ。ご内覧後は、同じ場所でお別れとさせていただきます。お客様のご都合に合わせたスムーズなご案内を心がけておりますので、ご質問等がございましたら何なりとお申し付けください。 物件概要
| 物件名 |
| 築年月 |
|
|---|---|---|---|
| 所在地 | |||
| 交通 | |||
| 総戸数 |
| 総階数 |
|
| 構造 |
| ||
地図
物件までの道のりは、「拡大地図を表示」をクリックしてナビ機能をご利用ください。
部屋設備















建物設備

TVモニターホン

エレベーター

オートロック

宅配ボックス

敷地内ゴミ置場

駐輪場
カーサ スプレンディッド赤坂7丁目の現在募集中のお部屋
- カーサスプレンディッド赤坂7丁目 203 - 間取り: 1K - 賃料: 15.5万円
- カーサスプレンディッド赤坂7丁目 701 - 間取り: 1K - 賃料: 16万円
