
| 賃料 | 予想金額:230,000〜250,000円程度 | 管理費 | 予想金額:0〜2,000円程度 |
| 礼金/敷金 | 非公開(アーカイブ) | 平米数 | 62.37㎡ |
| 初期費用概算(参考) | 目安:881,500〜981,500 円 | みなし賃料(月額・参考) | 244,406〜264,406 円 |
| 備考 | 本ページは過去募集のアーカイブです。表示の金額は周辺相場・過去募集を踏まえた参考レンジであり、実際の契約金額・条件ではありません。 | ||
※上記みなし賃料(月額)は仲介手数料割引・無料&キャッシュバックを加味した高級賃貸バイブル限定の金額です。一般的なみなし賃料とは異なります。
【建物ページ】ムルーエ築地の詳細・最新空室はこちら▶▶選ばれる理由
仲介手数料無料・キャンペーン情報(毎月15名様限定)
〇仲介手数料割引キャンペーン
ムルーエ築地 804の口コミ・レビュー
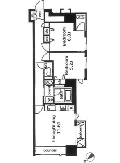
ムルーエ築地 804。この美しき物件は、まるで洗練されたアート作品のように、あなたの生活空間に華やかさを与えてくれることでしょう。東京都中央区築1-9-11に位置し、南西と北西の方角から降り注ぐ優しい陽光が、全ての瞬間を豊かに彩ります。804号室は、62.37㎡の広さを有し、ゆったりとした2LDKの間取りが魅力です。特に、LDKは11.6帖の広さを持ち、家族や友人が集う心温まる場所となります。そこ…ムルーエ築地 804。この美しき物件は、まるで洗練されたアート作品のように、あなたの生活空間に華やかさを与えてくれることでしょう。東京都中央区築1-9-11に位置し、南西と北西の方角から降り注ぐ優しい陽光が、全ての瞬間を豊かに彩ります。804号室は、62.37㎡の広さを有し、ゆったりとした2LDKの間取りが魅力です。特に、LDKは11.6帖の広さを持ち、家族や友人が集う心温まる場所となります。そこには、温かな笑い声や心地よい会話が響き渡ることでしょう。
想像してみてください。あなたは朝の光に包まれたリビングで、芳醇な香りのコーヒーを淹れながら、日に照らされたカーテン越しに見る外の世界。築地ならではの新鮮な魚の香りが、朝市の活気を思い起こさせ、都会の喧騒から一時の逃避を提供してくれます。窓の外には、築地の街並みが広がり、日々の生活に歴史的な深みを与えます。
ムルーエ築地 804は、全ての動線に配慮された設計で、洋室はそれぞれ6帖と5.2帖を確保しており、プライベートな空間を大切にします。静かな夜には、外の世界からの音がまるで映画のフィルムのように遠くから流れ込んできます。そして、日常の一瞬一瞬が、特別で素敵なシーンとして心に刻まれることでしょう。感触豊かな木のフローリングや、柔らかな光が差し込む窓際のカーテンに触れるたび、まるで優しい風があなたに寄り添っているかのようです。
もちろん、ムルーエ築地 804には生活を支える便利な設備が充実しています。TVモニターホンやオートロック、宅配ボックスなど、現代的な便利さを兼ね備え、安心感を提供します。エレガントなエレベーターで上がると、日常の疲れも忘れてしまうような、贅沢な住空間が待っていることでしょう。また、管理人の温かな笑顔が、あなたの帰りを温かく迎え入れてくれます。
周囲には、古き良き築地の街の文化や芸術が息づいています。歴史的な市場の喧騒、そこで育まれる食文化、さらにはその背景にある人々の物語が、あなたの生活空間にさらなる深みを与えてくれます。市場からの新鮮な海の幸を堪能し、日々の食卓に彩りを添えることができるのも、この地ならではの贅沢です。
ムルーエ築地 804は、ただの住まいではなく、まるで一篇の美しい詩が描かれる舞台のようです。ここでの生活は、日常の中に潜む特別な瞬間を見出し、心を躍らせてくれることでしょう。あなたもこの物件に身を委ね、素晴らしいストーリーを共に紡いでみませんか。生活の全てが、この美しき空間から始まります。
想像してみてください。あなたは朝の光に包まれたリビングで、芳醇な香りのコーヒーを淹れながら、日に照らされたカーテン越しに見る外の世界。築地ならではの新鮮な魚の香りが、朝市の活気を思い起こさせ、都会の喧騒から一時の逃避を提供してくれます。窓の外には、築地の街並みが広がり、日々の生活に歴史的な深みを与えます。
ムルーエ築地 804は、全ての動線に配慮された設計で、洋室はそれぞれ6帖と5.2帖を確保しており、プライベートな空間を大切にします。静かな夜には、外の世界からの音がまるで映画のフィルムのように遠くから流れ込んできます。そして、日常の一瞬一瞬が、特別で素敵なシーンとして心に刻まれることでしょう。感触豊かな木のフローリングや、柔らかな光が差し込む窓際のカーテンに触れるたび、まるで優しい風があなたに寄り添っているかのようです。
もちろん、ムルーエ築地 804には生活を支える便利な設備が充実しています。TVモニターホンやオートロック、宅配ボックスなど、現代的な便利さを兼ね備え、安心感を提供します。エレガントなエレベーターで上がると、日常の疲れも忘れてしまうような、贅沢な住空間が待っていることでしょう。また、管理人の温かな笑顔が、あなたの帰りを温かく迎え入れてくれます。
周囲には、古き良き築地の街の文化や芸術が息づいています。歴史的な市場の喧騒、そこで育まれる食文化、さらにはその背景にある人々の物語が、あなたの生活空間にさらなる深みを与えてくれます。市場からの新鮮な海の幸を堪能し、日々の食卓に彩りを添えることができるのも、この地ならではの贅沢です。
ムルーエ築地 804は、ただの住まいではなく、まるで一篇の美しい詩が描かれる舞台のようです。ここでの生活は、日常の中に潜む特別な瞬間を見出し、心を躍らせてくれることでしょう。あなたもこの物件に身を委ね、素晴らしいストーリーを共に紡いでみませんか。生活の全てが、この美しき空間から始まります。
バイブルスコア
バイブルスコア: 24.2
平均的なスコアです。
※バイブルスコア詳細はこちら
バイブルスコアとは独自のAI機械学習技術を利用した物件評価システムで、物件のおすすめ度を示します。最高得点は100点で、スコアが高いほど、よりおすすめの物件と評価されています。
写真
契約条件
| 賃料 | 予想金額:230,000〜250,000円程度 | 管理費 | 予想金額:0〜2,000円程度 |
| 礼金 | 非公開(アーカイブ) | 敷金 | 非公開(アーカイブ) |
| フリーレント | なし | 平米数 | 62.37㎡ |
| 間取り | 2LDK | 大型収納 | |
| 契約期間 |
| 方角 | 南西 / 北西 |
| 更新料 | 契約形態 | 普通賃貸借契約 | |
| 取引態様 | 媒介 | 内見状況 | 入居中 |
| 入居時期 | 入居中 | SOHO・事務所 | 事務所(SOHO)可 |
| ペット | ペット可 | 間取り内訳 | 洋:6 洋:5.2 LDK:11.6 |
| キャンペーン情報・備考 | 本情報は賃料改定交渉の資料作成、収益物件の利回り試算、周辺エリアや最寄り駅の坪単価分析、次回募集開始時期の予測などにご活用いただけます。 | ||
※「どの不動産に頼めばいいのか分からない」「信頼できる営業マンの話を聞きたい」「一番親切な会社と契約したい」とお悩みの方におすすめなのが「高級賃貸バイブル」です。
高級賃貸バイブルは業界10年以上の熟練スタッフ群がお客様ファーストで対応します。
下記ボタンから、まずは無料でご相談下さい。
※内覧をご希望の際には、どうぞ物件のエントランス前にてお待ち合わせくださいませ。ご内覧後は、同じ場所でお別れとさせていただきます。お客様のご都合に合わせたスムーズなご案内を心がけておりますので、ご質問等がございましたら何なりとお申し付けください。 物件概要
| 物件名 |
| 築年月 |
|
|---|---|---|---|
| 所在地 | |||
| 交通 | |||
| 総戸数 |
| 総階数 |
|
| 構造 |
| ||
地図
物件までの道のりは、「拡大地図を表示」をクリックしてナビ機能をご利用ください。
部屋設備


















建物設備

TVモニターホン

エレベーター

オートロック

宅配ボックス

敷地内ゴミ置場

管理人

駐車場平置き

駐車場機械式

駐輪場
ムルーエ築地の現在募集中のお部屋
- ムルーエ築地 304 - 間取り: 2LDK - 賃料: 29万円




















