
| 賃料 | 予想金額:142,000〜162,000円程度 | 管理費 | 予想金額:4,000〜8,000円程度 |
| 礼金/敷金 | 非公開(アーカイブ) | 平米数 | 30.53㎡ |
| 初期費用概算(参考) | 目安:71,500〜171,500 円 | みなし賃料(月額・参考) | 150,531〜170,531 円 |
| 備考 | 本ページは過去募集のアーカイブです。表示の金額は周辺相場・過去募集を踏まえた参考レンジであり、実際の契約金額・条件ではありません。 | ||
※上記みなし賃料(月額)は仲介手数料割引・無料&キャッシュバックを加味した高級賃貸バイブル限定の金額です。一般的なみなし賃料とは異なります。
【建物ページ】カスタリア麻布十番2の詳細・最新空室はこちら▶▶選ばれる理由
仲介手数料無料・キャンペーン情報(毎月15名様限定)
〇引っ越しお祝い金152000円プレゼント(キャッシュバック)
〇フリーレント1か月キャンペーン
〇仲介手数料無料キャンペーン
カスタリア麻布十番2 405の口コミ・レビュー
カスタリア麻布十番2 405。ここに足を踏み入れた瞬間、あなたはまるで映画の主人公になったかのように、特別な空間に包まれます。この高級賃貸物件は、東京都港区麻布十番という華やかな舞台に佇み、あなたを日常の喧騒から解放してくれます。
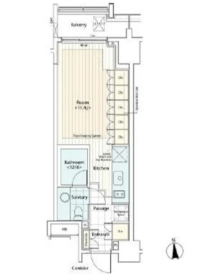
405号室は、まさに小さな宝石のような存在。専有面積30.53㎡に凝縮された洗練されたデザインは、まるで熟練したアーティストが心を込めて描いた絵画のようです。北に向か…カスタリア麻布十番2 405。ここに足を踏み入れた瞬間、あなたはまるで映画の主人公になったかのように、特別な空間に包まれます。この高級賃貸物件は、東京都港区麻布十番という華やかな舞台に佇み、あなたを日常の喧騒から解放してくれます。
405号室は、まさに小さな宝石のような存在。専有面積30.53㎡に凝縮された洗練されたデザインは、まるで熟練したアーティストが心を込めて描いた絵画のようです。北に向かう窓から射し込む柔らかな光が、洋室11.4帖の空間を優しく包み込みます。ここでは、朝のコーヒーの香りが漂い、あなたの目を覚ましてくれることでしょう。キッチンでお湯を沸かす音や、外から聞こえてくる街のざわめきが、心地良いBGMのように響き渡ります。
カスタリア麻布十番2は、ただの住まいではなく、あなたの日常を彩る舞台装置そのもの。デザイナーズとしての洗練された姿は、街の文化と美が交錯する麻布十番にふさわしい存在感を放っています。オートロックやTVモニターホンといった先進的な設備が、セキュリティの安心感を与え、あなたの大切なプライベート空間をしっかりと守ります。そして、宅配ボックスが整っているため、忙しい生活の中でも大切な荷物がいつでも受け取れるという利便性も魅力です。
徒歩1分の距離にある麻布十番駅は、都心へのアクセスをスムーズにしてくれ、まるで魔法のようにあなたをさまざまな場所へと導いてくれるでしょう。文化的なイベントや美術館が点在するこの地域は、あなたの心を豊かにしてくれるインスピレーションが溢れています。美術展を観覧したり、隠れた名店での食事を楽しんだりすることで、毎日の生活がまるで映画のワンシーンのように展開されていくのです。
カスタリア麻布十番2 405は、あなたにとっての「心の家」となることでしょう。冷たい風が通り抜ける冬の夜、あたたかな指先でコーヒーを温め、窓の外に広がる夜景を眺める瞬間も、洗練された空間の持つ魔法によって、特別なものに変わります。この場所での生活は、まるで静かな音楽が流れる美しい映画のように、心に深く刻まれていきます。
ぜひ、カスタリア麻布十番2 405で新たな物語の第一章を紡いでみてください。この空間が、あなたの人生の舞台となり、未来の素晴らしい瞬間を迎えるための基盤となることでしょう。あなたの大切な時間が、この場所で息づくことを心より願っております。
405号室は、まさに小さな宝石のような存在。専有面積30.53㎡に凝縮された洗練されたデザインは、まるで熟練したアーティストが心を込めて描いた絵画のようです。北に向か…カスタリア麻布十番2 405。ここに足を踏み入れた瞬間、あなたはまるで映画の主人公になったかのように、特別な空間に包まれます。この高級賃貸物件は、東京都港区麻布十番という華やかな舞台に佇み、あなたを日常の喧騒から解放してくれます。
405号室は、まさに小さな宝石のような存在。専有面積30.53㎡に凝縮された洗練されたデザインは、まるで熟練したアーティストが心を込めて描いた絵画のようです。北に向かう窓から射し込む柔らかな光が、洋室11.4帖の空間を優しく包み込みます。ここでは、朝のコーヒーの香りが漂い、あなたの目を覚ましてくれることでしょう。キッチンでお湯を沸かす音や、外から聞こえてくる街のざわめきが、心地良いBGMのように響き渡ります。
カスタリア麻布十番2は、ただの住まいではなく、あなたの日常を彩る舞台装置そのもの。デザイナーズとしての洗練された姿は、街の文化と美が交錯する麻布十番にふさわしい存在感を放っています。オートロックやTVモニターホンといった先進的な設備が、セキュリティの安心感を与え、あなたの大切なプライベート空間をしっかりと守ります。そして、宅配ボックスが整っているため、忙しい生活の中でも大切な荷物がいつでも受け取れるという利便性も魅力です。
徒歩1分の距離にある麻布十番駅は、都心へのアクセスをスムーズにしてくれ、まるで魔法のようにあなたをさまざまな場所へと導いてくれるでしょう。文化的なイベントや美術館が点在するこの地域は、あなたの心を豊かにしてくれるインスピレーションが溢れています。美術展を観覧したり、隠れた名店での食事を楽しんだりすることで、毎日の生活がまるで映画のワンシーンのように展開されていくのです。
カスタリア麻布十番2 405は、あなたにとっての「心の家」となることでしょう。冷たい風が通り抜ける冬の夜、あたたかな指先でコーヒーを温め、窓の外に広がる夜景を眺める瞬間も、洗練された空間の持つ魔法によって、特別なものに変わります。この場所での生活は、まるで静かな音楽が流れる美しい映画のように、心に深く刻まれていきます。
ぜひ、カスタリア麻布十番2 405で新たな物語の第一章を紡いでみてください。この空間が、あなたの人生の舞台となり、未来の素晴らしい瞬間を迎えるための基盤となることでしょう。あなたの大切な時間が、この場所で息づくことを心より願っております。
バイブルスコア
バイブルスコア: 30.2
平均的なスコアです。
※バイブルスコア詳細はこちら
バイブルスコアとは独自のAI機械学習技術を利用した物件評価システムで、物件のおすすめ度を示します。最高得点は100点で、スコアが高いほど、よりおすすめの物件と評価されています。
写真
契約条件
| 賃料 | 予想金額:142,000〜162,000円程度 | 管理費 | 予想金額:4,000〜8,000円程度 |
| 礼金 | 非公開(アーカイブ) | 敷金 | 非公開(アーカイブ) |
| フリーレント | 1ヶ月 | 平米数 | 30.53㎡ |
| 間取り | 1R | 大型収納 | |
| 契約期間 |
| 方角 | 北 |
| 更新料 | 契約形態 | 普通賃貸借契約 | |
| 取引態様 | 媒介 | 内見状況 | 入居中 |
| 入居時期 | 入居中 | SOHO・事務所 | |
| ペット | 間取り内訳 | 洋室11.4畳 | |
| キャンペーン情報・備考 | 本情報は賃料改定交渉の資料作成、収益物件の利回り試算、周辺エリアや最寄り駅の坪単価分析、次回募集開始時期の予測などにご活用いただけます。 | ||
※「どの不動産に頼めばいいのか分からない」「信頼できる営業マンの話を聞きたい」「一番親切な会社と契約したい」とお悩みの方におすすめなのが「高級賃貸バイブル」です。
高級賃貸バイブルは業界10年以上の熟練スタッフ群がお客様ファーストで対応します。
下記ボタンから、まずは無料でご相談下さい。
※内覧をご希望の際には、どうぞ物件のエントランス前にてお待ち合わせくださいませ。ご内覧後は、同じ場所でお別れとさせていただきます。お客様のご都合に合わせたスムーズなご案内を心がけておりますので、ご質問等がございましたら何なりとお申し付けください。 物件概要
| 物件名 |
| 築年月 |
|
|---|---|---|---|
| 所在地 | |||
| 交通 | |||
| 総戸数 |
| 総階数 |
|
| 構造 |
| ||
地図
物件までの道のりは、「拡大地図を表示」をクリックしてナビ機能をご利用ください。
部屋設備












建物設備

TVモニターホン

エレベーター

オートロック

宅配ボックス

敷地内ゴミ置場

駐輪場
カスタリア麻布十番2の現在募集中のお部屋
- カスタリア麻布十番Ⅱ 505 - 間取り: 1R - 賃料: 17.3万円





























