
| 賃料 | 予想金額:122,000〜142,000円程度 | 管理費 | 予想金額:4,000〜8,000円程度 |
| 礼金/敷金 | 非公開(アーカイブ) | 平米数 | 30.03㎡ |
| 初期費用概算(参考) | 目安:380,500〜480,500 円 | みなし賃料(月額・参考) | 134,219〜154,219 円 |
| 備考 | 本ページは過去募集のアーカイブです。表示の金額は周辺相場・過去募集を踏まえた参考レンジであり、実際の契約金額・条件ではありません。 | ||
※上記みなし賃料(月額)は仲介手数料割引・無料&キャッシュバックを加味した高級賃貸バイブル限定の金額です。一般的なみなし賃料とは異なります。
【建物ページ】カスタリア麻布十番2の詳細・最新空室はこちら▶▶選ばれる理由
仲介手数料無料・キャンペーン情報(毎月15名様限定)
〇仲介手数料割引キャンペーン
カスタリア麻布十番2 601の口コミ・レビュー
カスタリア麻布十番2 601。この名前を耳にした瞬間、あなたの心の中に高層の雲が浮かび上がります。その雲の上に佇む、まるで美しい宝石のような存在。東京都港区麻布十番2-21-2にひっそりと佇む、格調高いこの物件は、まさに都会のオアシス。南向きの窓から注ぎ込む日差しは、朝のティータイムを特別なものに変え、あなたの心に優しい温もりを届けてくれます。
カスタリア麻布十番2 601は、思わず頬が緩むそ…カスタリア麻布十番2 601。この名前を耳にした瞬間、あなたの心の中に高層の雲が浮かび上がります。その雲の上に佇む、まるで美しい宝石のような存在。東京都港区麻布十番2-21-2にひっそりと佇む、格調高いこの物件は、まさに都会のオアシス。南向きの窓から注ぎ込む日差しは、朝のティータイムを特別なものに変え、あなたの心に優しい温もりを届けてくれます。
カスタリア麻布十番2 601は、思わず頬が緩むその魅力的な外観と、洗練されたデザインが施された内装が、まるであなたを迎え入れるために生まれたかのよう。何気ない日常の中にこそ、美が宿っていることを教えてくれるこの場所で、一日に一度見上げてみてください。そこには、あなたの心を豊かにしてくれる風景が広がっています。
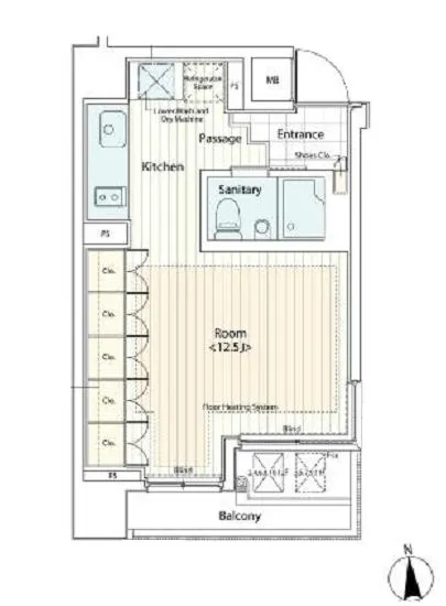
この物件の特長は、なんと言ってもその贅沢な広さ、洋室12.5帖のスペース。まるでアンスリウムが咲く温室のように、あなたの生活を彩る空間がここにはあります。その広さは、まるでおしゃれなカフェの一角にいるかのように感じられ、大きな窓からは静かな街並みを眺めながら、優雅な午後のひとときを楽しめます。カスタリア麻布十番2 601は、ただの住処ではなく、心のフィルターを通した美しい瞬間を創り出す舞台なのです。
そして、あなたがこの空間で過ごす日々は、まるで映画のワンシーン。朝起きると、コーヒーの香りがキッチンを包み込み、思わず深呼吸してしまう。暖かな日差しが部屋を満たし、外の世界を感じながらも、ここが自分の安心できる場所であることを再確認するのです。カスタリア麻布十番2 601の隣には、様々な文化が息づく麻布十番の街が広がり、仕立て屋のように美しい歴史的背景があなたを優しく包み込んでいます。
エレベーターでの移動は、まるで舞台の幕が上がる瞬間のように期待感をもたらし、オートロックやTVモニターホンが安心感を与えてくれます。宅配ボックスがあることで、便利さも手に入れ、生活に潤いを与えます。このような心配りが、カスタリア麻布十番2 601を選ぶ理由の一つなのです。
ここでの生活は、まるでアートの世界に浸っているかのよう。美しいデザイナーズ空間に、あなた自身がまるで作品の一部であるかのような感覚を覚え、日々の生活が特別なものに変わるのです。カスタリア麻布十番2 601は、あなたに詩的な日常を提供するために、ここに存在しています。さあ、新たな章をこの特別な空間で始めてみませんか。
カスタリア麻布十番2 601は、思わず頬が緩むそ…カスタリア麻布十番2 601。この名前を耳にした瞬間、あなたの心の中に高層の雲が浮かび上がります。その雲の上に佇む、まるで美しい宝石のような存在。東京都港区麻布十番2-21-2にひっそりと佇む、格調高いこの物件は、まさに都会のオアシス。南向きの窓から注ぎ込む日差しは、朝のティータイムを特別なものに変え、あなたの心に優しい温もりを届けてくれます。
カスタリア麻布十番2 601は、思わず頬が緩むその魅力的な外観と、洗練されたデザインが施された内装が、まるであなたを迎え入れるために生まれたかのよう。何気ない日常の中にこそ、美が宿っていることを教えてくれるこの場所で、一日に一度見上げてみてください。そこには、あなたの心を豊かにしてくれる風景が広がっています。
この物件の特長は、なんと言ってもその贅沢な広さ、洋室12.5帖のスペース。まるでアンスリウムが咲く温室のように、あなたの生活を彩る空間がここにはあります。その広さは、まるでおしゃれなカフェの一角にいるかのように感じられ、大きな窓からは静かな街並みを眺めながら、優雅な午後のひとときを楽しめます。カスタリア麻布十番2 601は、ただの住処ではなく、心のフィルターを通した美しい瞬間を創り出す舞台なのです。
そして、あなたがこの空間で過ごす日々は、まるで映画のワンシーン。朝起きると、コーヒーの香りがキッチンを包み込み、思わず深呼吸してしまう。暖かな日差しが部屋を満たし、外の世界を感じながらも、ここが自分の安心できる場所であることを再確認するのです。カスタリア麻布十番2 601の隣には、様々な文化が息づく麻布十番の街が広がり、仕立て屋のように美しい歴史的背景があなたを優しく包み込んでいます。
エレベーターでの移動は、まるで舞台の幕が上がる瞬間のように期待感をもたらし、オートロックやTVモニターホンが安心感を与えてくれます。宅配ボックスがあることで、便利さも手に入れ、生活に潤いを与えます。このような心配りが、カスタリア麻布十番2 601を選ぶ理由の一つなのです。
ここでの生活は、まるでアートの世界に浸っているかのよう。美しいデザイナーズ空間に、あなた自身がまるで作品の一部であるかのような感覚を覚え、日々の生活が特別なものに変わるのです。カスタリア麻布十番2 601は、あなたに詩的な日常を提供するために、ここに存在しています。さあ、新たな章をこの特別な空間で始めてみませんか。
バイブルスコア
バイブルスコア: 54.0
条件のいい物件です、引っ越しが2か月以内の場合は仮申し込みを検討すべき物件です。
このお部屋は、現在ご入居中のため空室情報はございません。ただし、将来的に募集が開始される際、バイブルスコアにおいて非常に高い評価が期待されます。特にご興味をお持ちの方は、今のうちにブックマークやお気に入りに登録していただくと、募集開始のお知らせをすぐに受け取ることができます。是非ともご検討くださいませ。
※バイブルスコア詳細はこちら
バイブルスコアとは独自のAI機械学習技術を利用した物件評価システムで、物件のおすすめ度を示します。最高得点は100点で、スコアが高いほど、よりおすすめの物件と評価されています。
写真
契約条件
| 賃料 | 予想金額:122,000〜142,000円程度 | 管理費 | 予想金額:4,000〜8,000円程度 |
| 礼金 | 非公開(アーカイブ) | 敷金 | 非公開(アーカイブ) |
| フリーレント | なし | 平米数 | 30.03㎡ |
| 間取り | 1R | 大型収納 | |
| 契約期間 |
| 方角 | 南 |
| 更新料 | 契約形態 | 普通賃貸借契約 | |
| 取引態様 | 媒介 | 内見状況 | 入居中 |
| 入居時期 | 入居中 | SOHO・事務所 | |
| ペット | 間取り内訳 | 洋室12.5畳 | |
| キャンペーン情報・備考 | 本情報は賃料改定交渉の資料作成、収益物件の利回り試算、周辺エリアや最寄り駅の坪単価分析、次回募集開始時期の予測などにご活用いただけます。 | ||
※「どの不動産に頼めばいいのか分からない」「信頼できる営業マンの話を聞きたい」「一番親切な会社と契約したい」とお悩みの方におすすめなのが「高級賃貸バイブル」です。
高級賃貸バイブルは業界10年以上の熟練スタッフ群がお客様ファーストで対応します。
下記ボタンから、まずは無料でご相談下さい。
※内覧をご希望の際には、どうぞ物件のエントランス前にてお待ち合わせくださいませ。ご内覧後は、同じ場所でお別れとさせていただきます。お客様のご都合に合わせたスムーズなご案内を心がけておりますので、ご質問等がございましたら何なりとお申し付けください。 物件概要
| 物件名 |
| 築年月 |
|
|---|---|---|---|
| 所在地 | |||
| 交通 | |||
| 総戸数 |
| 総階数 |
|
| 構造 |
| ||
地図
物件までの道のりは、「拡大地図を表示」をクリックしてナビ機能をご利用ください。
部屋設備









建物設備

TVモニターホン

エレベーター

オートロック

宅配ボックス

敷地内ゴミ置場

駐輪場
カスタリア麻布十番2の現在募集中のお部屋
- カスタリア麻布十番Ⅱ 505 - 間取り: 1R - 賃料: 17.3万円





























