
| 賃料 | 予想金額:112,000〜132,000円程度 | 管理費 | 予想金額:19,000〜23,000円程度 |
| 礼金/敷金 | 非公開(アーカイブ) | 平米数 | 25.8㎡ |
| 初期費用概算(参考) | 目安:256,000〜356,000 円 | みなし賃料(月額・参考) | 136,833〜156,833 円 |
| 備考 | 本ページは過去募集のアーカイブです。表示の金額は周辺相場・過去募集を踏まえた参考レンジであり、実際の契約金額・条件ではありません。 | ||
※上記みなし賃料(月額)は仲介手数料割引・無料&キャッシュバックを加味した高級賃貸バイブル限定の金額です。一般的なみなし賃料とは異なります。
【建物ページ】ジェノヴィア麻布十番グリーンヴェールの詳細・最新空室はこちら▶▶選ばれる理由
仲介手数料無料・キャンペーン情報(毎月15名様限定)
〇仲介手数料割引キャンペーン
ジェノヴィア麻布十番グリーンヴェール 902の口コミ・レビュー
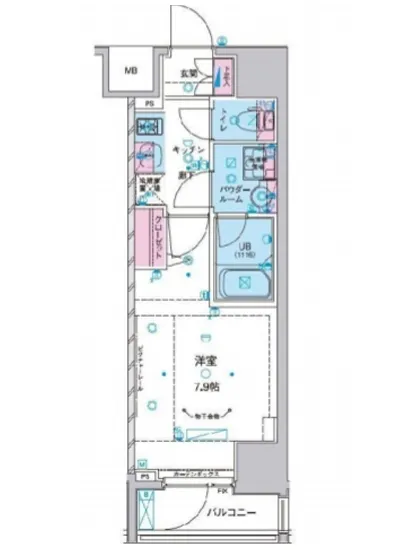
ジェノヴィア麻布十番グリーンヴェール 902は、まさに洗練された都会のオアシスです。この特別な空間は、心地よい南西の陽射しを受けながら、25.8㎡の専有面積に包まれた一つのストーリーを語っています。あなたに語りかけるかのように、静かな佇まいで訪れる人を優しく迎え入れ、その存在感を放っています。
玄関のドアを開けば、柔らかな光に包まれた洋室7.9帖が目に飛び込んできます。心地よい風が窓から吹き込み…ジェノヴィア麻布十番グリーンヴェール 902は、まさに洗練された都会のオアシスです。この特別な空間は、心地よい南西の陽射しを受けながら、25.8㎡の専有面積に包まれた一つのストーリーを語っています。あなたに語りかけるかのように、静かな佇まいで訪れる人を優しく迎え入れ、その存在感を放っています。
玄関のドアを開けば、柔らかな光に包まれた洋室7.9帖が目に飛び込んできます。心地よい風が窓から吹き込み、カーテンがまるで舞うように揺れ動く様子は、まるで映画のワンシーンのよう。あなたの毎日は、こうした美しい瞬間に満ちているのです。足元に触れるフローリングは、暖かく、家庭的な雰囲気を与え、ぜひ裸足で感じてほしい心地良さを持っています。
また、滞在中は、デザイナーズの洗練されたデザインや、オートロックやTVモニターホンといった最新の設備が、あなたをしっかりと守り、安心感をもたらします。エレベーターを使い、または自分の足で階段を上るたびに、心の中に新たな期待と希望が芽生えることでしょう。宅配ボックスも完備しており、忙しい毎日の中でのストレスを軽減してくれます。
周辺には、歴史ある麻布十番の街が広がっており、魅力的なカフェやレストラン、アートギャラリーが点在しています。それらの香りが街に漂い、あなたの五感を刺激し、まるで旅をしているかのような気分にさせてくれます。地元の人々との温かい交流が生まれ、毎日の生活が色鮮やかに彩られることでしょう。歴史に裏打ちされた文化とモダンな雰囲気が交錯するこの地は、新しいインスピレーションの源となります。
そして夜、ジェノヴィア麻布十番グリーンヴェール 902の窓を通して見える星空は、まるで贅沢なダイヤモンドのように煌めき、あなたの心を静かに満たしてくれることでしょう。自分自身を癒し、何気ない日常の中にあふれる美しさを再発見するための場所。この特別な空間で、あなた自身の物語を紡いでみませんか?
ここは単なる住まいではなく、人生の舞台です。ジェノヴィア麻布十番グリーンヴェール 902で、新しい生活を始める準備を整えてみてはいかがでしょうか。あなたの訪れを、心よりお待ち申し上げております。
玄関のドアを開けば、柔らかな光に包まれた洋室7.9帖が目に飛び込んできます。心地よい風が窓から吹き込み…ジェノヴィア麻布十番グリーンヴェール 902は、まさに洗練された都会のオアシスです。この特別な空間は、心地よい南西の陽射しを受けながら、25.8㎡の専有面積に包まれた一つのストーリーを語っています。あなたに語りかけるかのように、静かな佇まいで訪れる人を優しく迎え入れ、その存在感を放っています。
玄関のドアを開けば、柔らかな光に包まれた洋室7.9帖が目に飛び込んできます。心地よい風が窓から吹き込み、カーテンがまるで舞うように揺れ動く様子は、まるで映画のワンシーンのよう。あなたの毎日は、こうした美しい瞬間に満ちているのです。足元に触れるフローリングは、暖かく、家庭的な雰囲気を与え、ぜひ裸足で感じてほしい心地良さを持っています。
また、滞在中は、デザイナーズの洗練されたデザインや、オートロックやTVモニターホンといった最新の設備が、あなたをしっかりと守り、安心感をもたらします。エレベーターを使い、または自分の足で階段を上るたびに、心の中に新たな期待と希望が芽生えることでしょう。宅配ボックスも完備しており、忙しい毎日の中でのストレスを軽減してくれます。
周辺には、歴史ある麻布十番の街が広がっており、魅力的なカフェやレストラン、アートギャラリーが点在しています。それらの香りが街に漂い、あなたの五感を刺激し、まるで旅をしているかのような気分にさせてくれます。地元の人々との温かい交流が生まれ、毎日の生活が色鮮やかに彩られることでしょう。歴史に裏打ちされた文化とモダンな雰囲気が交錯するこの地は、新しいインスピレーションの源となります。
そして夜、ジェノヴィア麻布十番グリーンヴェール 902の窓を通して見える星空は、まるで贅沢なダイヤモンドのように煌めき、あなたの心を静かに満たしてくれることでしょう。自分自身を癒し、何気ない日常の中にあふれる美しさを再発見するための場所。この特別な空間で、あなた自身の物語を紡いでみませんか?
ここは単なる住まいではなく、人生の舞台です。ジェノヴィア麻布十番グリーンヴェール 902で、新しい生活を始める準備を整えてみてはいかがでしょうか。あなたの訪れを、心よりお待ち申し上げております。
バイブルスコア
バイブルスコア: 35.9
平均的なスコアです。
※バイブルスコア詳細はこちら
バイブルスコアとは独自のAI機械学習技術を利用した物件評価システムで、物件のおすすめ度を示します。最高得点は100点で、スコアが高いほど、よりおすすめの物件と評価されています。
写真
契約条件
| 賃料 | 予想金額:112,000〜132,000円程度 | 管理費 | 予想金額:19,000〜23,000円程度 |
| 礼金 | 非公開(アーカイブ) | 敷金 | 非公開(アーカイブ) |
| フリーレント | なし | 平米数 | 25.8㎡ |
| 間取り | 1K | 大型収納 | |
| 契約期間 |
| 方角 | 南西 |
| 更新料 | 契約形態 | 普通賃貸借契約 | |
| 取引態様 | 媒介 | 内見状況 | 入居中 |
| 入居時期 | 入居中 | SOHO・事務所 | |
| ペット | ペット可 | 間取り内訳 | 洋室7.9 |
| キャンペーン情報・備考 | 本情報は賃料改定交渉の資料作成、収益物件の利回り試算、周辺エリアや最寄り駅の坪単価分析、次回募集開始時期の予測などにご活用いただけます。 | ||
※「どの不動産に頼めばいいのか分からない」「信頼できる営業マンの話を聞きたい」「一番親切な会社と契約したい」とお悩みの方におすすめなのが「高級賃貸バイブル」です。
高級賃貸バイブルは業界10年以上の熟練スタッフ群がお客様ファーストで対応します。
下記ボタンから、まずは無料でご相談下さい。
※内覧をご希望の際には、どうぞ物件のエントランス前にてお待ち合わせくださいませ。ご内覧後は、同じ場所でお別れとさせていただきます。お客様のご都合に合わせたスムーズなご案内を心がけておりますので、ご質問等がございましたら何なりとお申し付けください。 物件概要
| 物件名 |
| 築年月 |
|
|---|---|---|---|
| 所在地 | |||
| 交通 | |||
| 総戸数 |
| 総階数 |
|
| 構造 |
| ||
地図
物件までの道のりは、「拡大地図を表示」をクリックしてナビ機能をご利用ください。
部屋設備















建物設備

TVモニターホン

エレベーター

オートロック

宅配ボックス

敷地内ゴミ置場

管理人

駐輪場
ジェノヴィア麻布十番グリーンヴェールの現在募集中のお部屋
- No rooms found for this property.





















