
| 賃料 | 予想金額:135,000〜155,000円程度 | 管理費 | 予想金額:13,000〜17,000円程度 |
| 礼金/敷金 | 非公開(アーカイブ) | 平米数 | 25.8㎡ |
| 初期費用概算(参考) | 目安:586,250〜686,250 円 | みなし賃料(月額・参考) | 160,234〜180,234 円 |
| 備考 | 本ページは過去募集のアーカイブです。表示の金額は周辺相場・過去募集を踏まえた参考レンジであり、実際の契約金額・条件ではありません。 | ||
※上記みなし賃料(月額)は仲介手数料割引・無料&キャッシュバックを加味した高級賃貸バイブル限定の金額です。一般的なみなし賃料とは異なります。
【建物ページ】ジェノヴィア麻布十番グリーンヴェールの詳細・最新空室はこちら▶▶選ばれる理由
仲介手数料無料・キャンペーン情報(毎月15名様限定)
〇引っ越しお祝い金5000円プレゼント(キャッシュバック)
ジェノヴィア麻布十番グリーンヴェール 602の口コミ・レビュー
ジェノヴィア麻布十番グリーンヴェール 602、あなたの日常が魅了される特別な場所がここにあります。南西の窓から差し込む穏やかな陽光。午前中の光に照らされた部屋は、まるで静謐な美術館の一室のように心を落ち着かせ、アートと日常が融合した空間へとあなたを誘います。
この素敵な1K、専有面積25.8㎡の広さは、あなたの感性を豊かに育てるために設計されています。心地よい生活は、ただの物理的な空間を超え、生…ジェノヴィア麻布十番グリーンヴェール 602、あなたの日常が魅了される特別な場所がここにあります。南西の窓から差し込む穏やかな陽光。午前中の光に照らされた部屋は、まるで静謐な美術館の一室のように心を落ち着かせ、アートと日常が融合した空間へとあなたを誘います。
この素敵な1K、専有面積25.8㎡の広さは、あなたの感性を豊かに育てるために設計されています。心地よい生活は、ただの物理的な空間を超え、生活そのものが一つの作品となるのです。洋室7.9帖の柔らかな空間は、あなたの心のキャンバス。起きた瞬間にアラームではなく、優しい光の合図で一日が始まるのを感じることができます。カーテンを開けた瞬間、外からの新鮮な空気を吸い込み、心地よい風があなたの頬を撫で、身体が生き生きと目覚めることでしょう。
ジェノヴィア麻布十番グリーンヴェール 602は、まるであなたを迎え入れる老舗のカフェのようです。エレガンスとスタイリッシュさを兼ね備えたデザインは、日常の中で特別感を与えてくれます。オートロックや宅配ボックスなどの設備も充実しており、安心して暮らしながら、自身の時間を大切にすることができます。まさにこの物件は、日常の中に優雅さを織り交ぜ、あなたにとっての心地よい隠れ家となるでしょう。
周辺には、麻布十番の歴史ある街並みが広がり、文化やアートが育まれた場所としても知られています。散策するたびに、昔ながらの喫茶店や独特の店舗があなたを魅了し、五感を刺激することでしょう。目に映る豊かな風景、耳に響く街のざわめき、香り立つカフェのコーヒー、さらには食べ物の素晴らしい味わいが、あなたの心を豊かにしてくれます。また、近くには美術館も点在し、アートに触れる機会も多く、あなたのクリエイティビティが日々刺激されること請け合いです。
自転車で周辺を巡るも良し、東京メトロ南北線 麻布十番駅からのアクセスで、都市の中心へ素早く出かけるのも良し。あなたのライフスタイルに応じた自由な選択肢が広がるこの場所は、まるであなたの人生の舞台装置のように、いつでも新たなシーンを提供してくれることでしょう。
ジェノヴィア麻布十番グリーンヴェール 602は、ただの住まいではなく、あなたの人生を豊かに彩る舞台です。この物件での生活は、まるで映画のワンシーンのように記憶に残るはずです。あなたがこの特別な空間に足を踏み入れるその瞬間から、新たな物語が始まります。どうぞ、この特別な場所で、あなた自身のストーリーを色鮮やかに綴ることを心よりお勧めいたします。
この素敵な1K、専有面積25.8㎡の広さは、あなたの感性を豊かに育てるために設計されています。心地よい生活は、ただの物理的な空間を超え、生…ジェノヴィア麻布十番グリーンヴェール 602、あなたの日常が魅了される特別な場所がここにあります。南西の窓から差し込む穏やかな陽光。午前中の光に照らされた部屋は、まるで静謐な美術館の一室のように心を落ち着かせ、アートと日常が融合した空間へとあなたを誘います。
この素敵な1K、専有面積25.8㎡の広さは、あなたの感性を豊かに育てるために設計されています。心地よい生活は、ただの物理的な空間を超え、生活そのものが一つの作品となるのです。洋室7.9帖の柔らかな空間は、あなたの心のキャンバス。起きた瞬間にアラームではなく、優しい光の合図で一日が始まるのを感じることができます。カーテンを開けた瞬間、外からの新鮮な空気を吸い込み、心地よい風があなたの頬を撫で、身体が生き生きと目覚めることでしょう。
ジェノヴィア麻布十番グリーンヴェール 602は、まるであなたを迎え入れる老舗のカフェのようです。エレガンスとスタイリッシュさを兼ね備えたデザインは、日常の中で特別感を与えてくれます。オートロックや宅配ボックスなどの設備も充実しており、安心して暮らしながら、自身の時間を大切にすることができます。まさにこの物件は、日常の中に優雅さを織り交ぜ、あなたにとっての心地よい隠れ家となるでしょう。
周辺には、麻布十番の歴史ある街並みが広がり、文化やアートが育まれた場所としても知られています。散策するたびに、昔ながらの喫茶店や独特の店舗があなたを魅了し、五感を刺激することでしょう。目に映る豊かな風景、耳に響く街のざわめき、香り立つカフェのコーヒー、さらには食べ物の素晴らしい味わいが、あなたの心を豊かにしてくれます。また、近くには美術館も点在し、アートに触れる機会も多く、あなたのクリエイティビティが日々刺激されること請け合いです。
自転車で周辺を巡るも良し、東京メトロ南北線 麻布十番駅からのアクセスで、都市の中心へ素早く出かけるのも良し。あなたのライフスタイルに応じた自由な選択肢が広がるこの場所は、まるであなたの人生の舞台装置のように、いつでも新たなシーンを提供してくれることでしょう。
ジェノヴィア麻布十番グリーンヴェール 602は、ただの住まいではなく、あなたの人生を豊かに彩る舞台です。この物件での生活は、まるで映画のワンシーンのように記憶に残るはずです。あなたがこの特別な空間に足を踏み入れるその瞬間から、新たな物語が始まります。どうぞ、この特別な場所で、あなた自身のストーリーを色鮮やかに綴ることを心よりお勧めいたします。
写真
契約条件
| 賃料 | 予想金額:135,000〜155,000円程度 | 管理費 | 予想金額:13,000〜17,000円程度 |
| 礼金 | 非公開(アーカイブ) | 敷金 | 非公開(アーカイブ) |
| フリーレント | なし | 平米数 | 25.8㎡ |
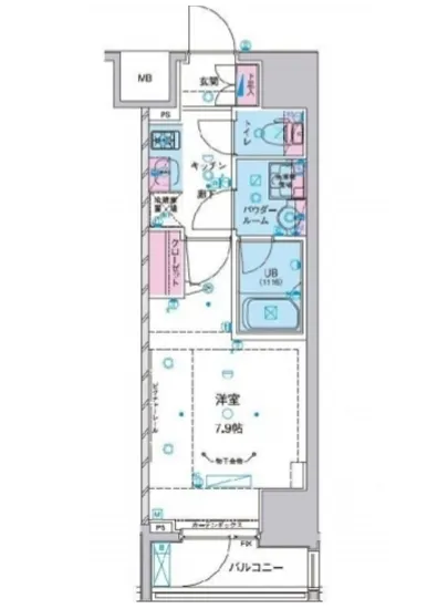
| 間取り | 1K | 大型収納 | なし |
| 契約期間 | 2年間 | 方角 | 南西 |
| 更新料 | 1ヶ月 | 契約形態 | 普通賃貸借契約 |
| 取引態様 | 媒介 | 内見状況 | 入居中 |
| 入居時期 | 入居中 | SOHO・事務所 | SOHO不可 |
| ペット | ペット飼育不可 | 間取り内訳 | 洋室7.9 |
| キャンペーン情報・備考 | 本情報は賃料改定交渉の資料作成、収益物件の利回り試算、周辺エリアや最寄り駅の坪単価分析、次回募集開始時期の予測などにご活用いただけます。 | ||
※「どの不動産に頼めばいいのか分からない」「信頼できる営業マンの話を聞きたい」「一番親切な会社と契約したい」とお悩みの方におすすめなのが「高級賃貸バイブル」です。
高級賃貸バイブルは業界10年以上の熟練スタッフ群がお客様ファーストで対応します。
下記ボタンから、まずは無料でご相談下さい。
※内覧をご希望の際には、どうぞ物件のエントランス前にてお待ち合わせくださいませ。ご内覧後は、同じ場所でお別れとさせていただきます。お客様のご都合に合わせたスムーズなご案内を心がけておりますので、ご質問等がございましたら何なりとお申し付けください。 物件概要
| 物件名 |
| 築年月 |
|
|---|---|---|---|
| 所在地 | |||
| 交通 | |||
| 総戸数 |
| 総階数 |
|
| 構造 |
| ||
地図
物件までの道のりは、「拡大地図を表示」をクリックしてナビ機能をご利用ください。
部屋設備















建物設備

TVモニターホン

エレベーター

オートロック

宅配ボックス

敷地内ゴミ置場

管理人

駐輪場
ジェノヴィア麻布十番グリーンヴェールの現在募集中のお部屋
- No rooms found for this property.





















