
| 賃料 | 予想金額:154,000〜174,000円程度 | 管理費 | 予想金額:13,000〜17,000円程度 |
| 礼金/敷金 | 非公開(アーカイブ) | 平米数 | 40.37㎡ |
| 初期費用概算(参考) | 目安:474,000〜574,000 円 | みなし賃料(月額・参考) | 176,500〜196,500 円 |
| 備考 | 本ページは過去募集のアーカイブです。表示の金額は周辺相場・過去募集を踏まえた参考レンジであり、実際の契約金額・条件ではありません。 | ||
※上記みなし賃料(月額)は仲介手数料割引・無料&キャッシュバックを加味した高級賃貸バイブル限定の金額です。一般的なみなし賃料とは異なります。
【建物ページ】レックス日本橋水天宮プレミアタワーの詳細・最新空室はこちら▶▶選ばれる理由
仲介手数料無料・キャンペーン情報(毎月15名様限定)
〇仲介手数料割引キャンペーン
レックス日本橋水天宮プレミアタワー 1302の口コミ・レビュー
レックス日本橋水天宮プレミアタワー 1302、ここはただの住まいではなく、時空を超えた空間が広がる特別な場所です。南東に向かって広がる窓からは、朝の光が柔らかく差し込み、あなたの日常を黄金色に染め上げます。ここに住むことはまるで映画の主役になるかのような体験。毎日が美しいシーンで彩られ、あなたの物語が始まるのです。
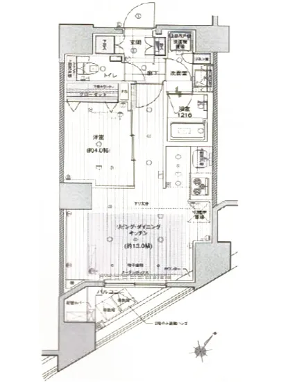
部屋に一歩踏み入れると、13帖のリビングダイニングキッチンがあなたを迎え入れます…レックス日本橋水天宮プレミアタワー 1302、ここはただの住まいではなく、時空を超えた空間が広がる特別な場所です。南東に向かって広がる窓からは、朝の光が柔らかく差し込み、あなたの日常を黄金色に染め上げます。ここに住むことはまるで映画の主役になるかのような体験。毎日が美しいシーンで彩られ、あなたの物語が始まるのです。
部屋に一歩踏み入れると、13帖のリビングダイニングキッチンがあなたを迎え入れます。広々とした空間は、多彩なライフスタイルに応えるためのキャンバス。家族や友人と共に、笑い声が絶えない食卓を囲む情景が目に浮かびます。香ばしい料理の香りが漂い、食材の持つ自然の甘さが、暖かな光に包まれたこの空間で一層引き立ちます。まるで、特別なディナーのために用意された舞台のようです。
続いて、4帖の洋室に足を運ぶと、静謐な安らぎの世界が広がります。ここは、あなたが夢に浸るための小さな聖域。夜には、柔らかな光に包まれて、心地よい眠りへと誘ってくれます。その瞬間、窓の外では都会の喧騒が静まり、星々がまるであなたのために輝いているかのように感じられることでしょう。
レックス日本橋水天宮プレミアタワー 1302は、ただの住まいではなく、生活そのものに豊かさと深みをプラスする場所です。あなたの大切な日常が、この高級賃貸物件によって劇的に変わるのです。24時間管理の安心感や、オートロックで守られたプライバシー、宅配ボックスがあることで、利便性は申し分ありません。まるで、あなたの生活をサポートする忠実な侍のように、しっかりとあなたを守ります。
周辺には、日本橋の歴史的な文化が息づいており、伝説の街並みとの調和がこの住まいに力強いバックグラウンドを与えています。水天宮前駅からわずか2分の距離という利便性は、都会の中心に位置しながらも、静謐な暮らしを楽しむための完璧な基盤を築いています。古き良き日本の伝統と、現代の利便性が融合したこの地で、あなたの新しい生活が待っています。
心地よい風が吹き抜け、四季折々の美しさを感じられる恵まれた立地。レックス日本橋水天宮プレミアタワー 1302が提供するのは、ただの居住空間ではなく、心と身体が音楽を奏でるような、感動に満ちた生活スタイルです。ここでの毎日が、あなたにとっての贅沢な瞬間となりますように。あなたの人生の新しい章が、この場所から始まることを願ってやみません。
部屋に一歩踏み入れると、13帖のリビングダイニングキッチンがあなたを迎え入れます…レックス日本橋水天宮プレミアタワー 1302、ここはただの住まいではなく、時空を超えた空間が広がる特別な場所です。南東に向かって広がる窓からは、朝の光が柔らかく差し込み、あなたの日常を黄金色に染め上げます。ここに住むことはまるで映画の主役になるかのような体験。毎日が美しいシーンで彩られ、あなたの物語が始まるのです。
部屋に一歩踏み入れると、13帖のリビングダイニングキッチンがあなたを迎え入れます。広々とした空間は、多彩なライフスタイルに応えるためのキャンバス。家族や友人と共に、笑い声が絶えない食卓を囲む情景が目に浮かびます。香ばしい料理の香りが漂い、食材の持つ自然の甘さが、暖かな光に包まれたこの空間で一層引き立ちます。まるで、特別なディナーのために用意された舞台のようです。
続いて、4帖の洋室に足を運ぶと、静謐な安らぎの世界が広がります。ここは、あなたが夢に浸るための小さな聖域。夜には、柔らかな光に包まれて、心地よい眠りへと誘ってくれます。その瞬間、窓の外では都会の喧騒が静まり、星々がまるであなたのために輝いているかのように感じられることでしょう。
レックス日本橋水天宮プレミアタワー 1302は、ただの住まいではなく、生活そのものに豊かさと深みをプラスする場所です。あなたの大切な日常が、この高級賃貸物件によって劇的に変わるのです。24時間管理の安心感や、オートロックで守られたプライバシー、宅配ボックスがあることで、利便性は申し分ありません。まるで、あなたの生活をサポートする忠実な侍のように、しっかりとあなたを守ります。
周辺には、日本橋の歴史的な文化が息づいており、伝説の街並みとの調和がこの住まいに力強いバックグラウンドを与えています。水天宮前駅からわずか2分の距離という利便性は、都会の中心に位置しながらも、静謐な暮らしを楽しむための完璧な基盤を築いています。古き良き日本の伝統と、現代の利便性が融合したこの地で、あなたの新しい生活が待っています。
心地よい風が吹き抜け、四季折々の美しさを感じられる恵まれた立地。レックス日本橋水天宮プレミアタワー 1302が提供するのは、ただの居住空間ではなく、心と身体が音楽を奏でるような、感動に満ちた生活スタイルです。ここでの毎日が、あなたにとっての贅沢な瞬間となりますように。あなたの人生の新しい章が、この場所から始まることを願ってやみません。
バイブルスコア
バイブルスコア: 19.2
高級な物件でない場合は割高な物件です。。
※バイブルスコア詳細はこちら
バイブルスコアとは独自のAI機械学習技術を利用した物件評価システムで、物件のおすすめ度を示します。最高得点は100点で、スコアが高いほど、よりおすすめの物件と評価されています。
写真
契約条件
| 賃料 | 予想金額:154,000〜174,000円程度 | 管理費 | 予想金額:13,000〜17,000円程度 |
| 礼金 | 非公開(アーカイブ) | 敷金 | 非公開(アーカイブ) |
| フリーレント | なし | 平米数 | 40.37㎡ |
| 間取り | 1LDK | 大型収納 | |
| 契約期間 |
| 方角 | 南東 |
| 更新料 | 契約形態 | 普通賃貸借契約 | |
| 取引態様 | 媒介 | 内見状況 | 入居中 |
| 入居時期 | 入居中 | SOHO・事務所 | |
| ペット | ペット可 | 間取り内訳 | 洋:4 LDK:13 |
| キャンペーン情報・備考 | 本情報は賃料改定交渉の資料作成、収益物件の利回り試算、周辺エリアや最寄り駅の坪単価分析、次回募集開始時期の予測などにご活用いただけます。 | ||
※「どの不動産に頼めばいいのか分からない」「信頼できる営業マンの話を聞きたい」「一番親切な会社と契約したい」とお悩みの方におすすめなのが「高級賃貸バイブル」です。
高級賃貸バイブルは業界10年以上の熟練スタッフ群がお客様ファーストで対応します。
下記ボタンから、まずは無料でご相談下さい。
※内覧をご希望の際には、どうぞ物件のエントランス前にてお待ち合わせくださいませ。ご内覧後は、同じ場所でお別れとさせていただきます。お客様のご都合に合わせたスムーズなご案内を心がけておりますので、ご質問等がございましたら何なりとお申し付けください。 物件概要
| 物件名 |
| 築年月 |
|
|---|---|---|---|
| 所在地 | |||
| 交通 | |||
| 総戸数 |
| 総階数 |
|
| 構造 |
| ||
地図
物件までの道のりは、「拡大地図を表示」をクリックしてナビ機能をご利用ください。
部屋設備

















建物設備

24時間管理

TVモニターホン

エレベーター

オートロック

宅配ボックス

敷地内ゴミ置場

管理人

駐輪場
レックス日本橋水天宮プレミアタワーの現在募集中のお部屋
- レックス日本橋水天宮プレミアタワー 14階 41.59㎡ - 間取り: 1LDK - 賃料: 18.8万円




















