
| 賃料 | 予想金額:149,000〜169,000円程度 | 管理費 | 予想金額:8,000〜12,000円程度 |
| 礼金/敷金 | 非公開(アーカイブ) | 平米数 | 40.08㎡ |
| 初期費用概算(参考) | 目安:459,500〜559,500 円 | みなし賃料(月額・参考) | 166,302〜186,302 円 |
| 備考 | 本ページは過去募集のアーカイブです。表示の金額は周辺相場・過去募集を踏まえた参考レンジであり、実際の契約金額・条件ではありません。 | ||
※上記みなし賃料(月額)は仲介手数料割引・無料&キャッシュバックを加味した高級賃貸バイブル限定の金額です。一般的なみなし賃料とは異なります。
【建物ページ】レックス日本橋水天宮プレミアタワーの詳細・最新空室はこちら▶▶選ばれる理由
仲介手数料無料・キャンペーン情報(毎月15名様限定)
〇仲介手数料割引キャンペーン
レックス日本橋水天宮プレミアタワー 9階 40.08㎡の口コミ・レビュー
レックス日本橋水天宮プレミアタワー 9階 40.08㎡、この特別な住まいは、ただの居所ではなく、人生の新たな章のスタート地点です。あなたがこの住まいに足を踏み入れる瞬間、心地よい陽射しが南東の窓から流れ込み、まるで朝のコーヒーの香りが漂うかのように、心を温めてくれます。ここは、東京の喧騒を背にし、静謐なひとときを楽しむための特別な場所。その空間に身を委ね、日常から非日常へと変わる瞬間を感じてくださ…レックス日本橋水天宮プレミアタワー 9階 40.08㎡、この特別な住まいは、ただの居所ではなく、人生の新たな章のスタート地点です。あなたがこの住まいに足を踏み入れる瞬間、心地よい陽射しが南東の窓から流れ込み、まるで朝のコーヒーの香りが漂うかのように、心を温めてくれます。ここは、東京の喧騒を背にし、静謐なひとときを楽しむための特別な場所。その空間に身を委ね、日常から非日常へと変わる瞬間を感じてください。
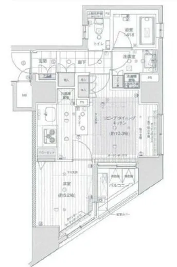
レックス日本橋水天宮プレミアタワーは、あなたに新しい生活の舞台を提供します。40.08㎡の広さは、心地よい開放感と安心感を与え、あなたのセンスを反映したインテリアを自由に配置する余地を残しています。LDK10.3帖は、料理の香りとともに家族や友人との温かな会話が交わされる場所となり、洋室5.2帖は、あなたの私だけの時間を静かに守る隠れ家としての役割を果たします。壁に寄りかかり、窓から見える街の灯りを眺めるたび、映画のワンシーンにいるかのような感覚を覚えます。
ここでは、24時間管理のもと、安心で快適な生活が送られます。オートロックが施された入り口は、まるで貴族の館のように、あなたのプライバシーを尊重します。そして、宅配ボックスも設置されており、忙しい日常の合間に、自分自身への小さな贈り物を受け取る喜びを感じることができるのです。
このレックス日本橋水天宮プレミアタワーに住むことは、歴史と文化が交錯する日本橋という街に身を置くことを意味します。周囲には、古き良き伝統を大切にしながらも、現代的なアートが息づく空間がたくさん広がっています。例えば、近くの水天宮が持つ神秘的な雰囲気に心を奪われ、そこに足を運ぶことで、日常の疲れを癒す儀式が始まるでしょう。週末には、地元の美味しい飲食店で、四季折々の食材を使った料理に舌鼓を打つ、そんな贅沢な時間も味わえます。
この住まいは、ただの物件ではありません。レックス日本橋水天宮プレミアタワーは、あなたの新たな生活の舞台であり、物語の主人公となるための、それにふさわしい場所です。未来のあなたの笑顔が、ここで育まれることでしょう。さあ、あなたもこの特別な空間の一部となり、心に残る瞬間を共に創り上げていきませんか。あなたをお待ちしています。
レックス日本橋水天宮プレミアタワーは、あなたに新しい生活の舞台を提供します。40.08㎡の広さは、心地よい開放感と安心感を与え、あなたのセンスを反映したインテリアを自由に配置する余地を残しています。LDK10.3帖は、料理の香りとともに家族や友人との温かな会話が交わされる場所となり、洋室5.2帖は、あなたの私だけの時間を静かに守る隠れ家としての役割を果たします。壁に寄りかかり、窓から見える街の灯りを眺めるたび、映画のワンシーンにいるかのような感覚を覚えます。
ここでは、24時間管理のもと、安心で快適な生活が送られます。オートロックが施された入り口は、まるで貴族の館のように、あなたのプライバシーを尊重します。そして、宅配ボックスも設置されており、忙しい日常の合間に、自分自身への小さな贈り物を受け取る喜びを感じることができるのです。
このレックス日本橋水天宮プレミアタワーに住むことは、歴史と文化が交錯する日本橋という街に身を置くことを意味します。周囲には、古き良き伝統を大切にしながらも、現代的なアートが息づく空間がたくさん広がっています。例えば、近くの水天宮が持つ神秘的な雰囲気に心を奪われ、そこに足を運ぶことで、日常の疲れを癒す儀式が始まるでしょう。週末には、地元の美味しい飲食店で、四季折々の食材を使った料理に舌鼓を打つ、そんな贅沢な時間も味わえます。
この住まいは、ただの物件ではありません。レックス日本橋水天宮プレミアタワーは、あなたの新たな生活の舞台であり、物語の主人公となるための、それにふさわしい場所です。未来のあなたの笑顔が、ここで育まれることでしょう。さあ、あなたもこの特別な空間の一部となり、心に残る瞬間を共に創り上げていきませんか。あなたをお待ちしています。
バイブルスコア
バイブルスコア: 43
条件のいい物件です、引っ越しが2か月以内の場合は仮申し込みを検討すべき物件です。
※バイブルスコア詳細はこちら
バイブルスコアとは独自のAI機械学習技術を利用した物件評価システムで、物件のおすすめ度を示します。最高得点は100点で、スコアが高いほど、よりおすすめの物件と評価されています。
写真
契約条件
| 賃料 | 予想金額:149,000〜169,000円程度 | 管理費 | 予想金額:8,000〜12,000円程度 |
| 礼金 | 非公開(アーカイブ) | 敷金 | 非公開(アーカイブ) |
| フリーレント | なし | 平米数 | 40.08㎡ |
| 間取り | 1LDK | 大型収納 | なし |
| 契約期間 | 2年 | 方角 | 南東 |
| 更新料 | 1ヶ月 | 契約形態 | 普通賃貸借契約 |
| 取引態様 | 媒介 | 内見状況 | 入居中 |
| 入居時期 | 入居中 | SOHO・事務所 | 不可 |
| ペット | 相談 | 間取り内訳 | LDK10.3帖 洋室5.2帖 |
| キャンペーン情報・備考 | 本情報は賃料改定交渉の資料作成、収益物件の利回り試算、周辺エリアや最寄り駅の坪単価分析、次回募集開始時期の予測などにご活用いただけます。 | ||
※「どの不動産に頼めばいいのか分からない」「信頼できる営業マンの話を聞きたい」「一番親切な会社と契約したい」とお悩みの方におすすめなのが「高級賃貸バイブル」です。
高級賃貸バイブルは業界10年以上の熟練スタッフ群がお客様ファーストで対応します。
下記ボタンから、まずは無料でご相談下さい。
※内覧をご希望の際には、どうぞ物件のエントランス前にてお待ち合わせくださいませ。ご内覧後は、同じ場所でお別れとさせていただきます。お客様のご都合に合わせたスムーズなご案内を心がけておりますので、ご質問等がございましたら何なりとお申し付けください。 物件概要
| 物件名 |
| 築年月 |
|
|---|---|---|---|
| 所在地 | |||
| 交通 | |||
| 総戸数 |
| 総階数 |
|
| 構造 |
| ||
地図
物件までの道のりは、「拡大地図を表示」をクリックしてナビ機能をご利用ください。
部屋設備











建物設備

24時間管理

TVモニターホン

エレベーター

オートロック

宅配ボックス

敷地内ゴミ置場

管理人

駐輪場
レックス日本橋水天宮プレミアタワーの現在募集中のお部屋
- レックス日本橋水天宮プレミアタワー 14階 41.59㎡ - 間取り: 1LDK - 賃料: 18.8万円




















