
| 賃料 | 予想金額:148,000〜168,000円程度 | 管理費 | 予想金額:10,000〜14,000円程度 |
| 礼金/敷金 | 非公開(アーカイブ) | 平米数 | 40.37㎡ |
| 初期費用概算(参考) | 目安:629,000〜729,000 円 | みなし賃料(月額・参考) | 170,854〜190,854 円 |
| 備考 | 本ページは過去募集のアーカイブです。表示の金額は周辺相場・過去募集を踏まえた参考レンジであり、実際の契約金額・条件ではありません。 | ||
※上記みなし賃料(月額)は仲介手数料割引・無料&キャッシュバックを加味した高級賃貸バイブル限定の金額です。一般的なみなし賃料とは異なります。
【建物ページ】レックス日本橋水天宮プレミアタワーの詳細・最新空室はこちら▶▶選ばれる理由
仲介手数料無料・キャンペーン情報(毎月15名様限定)
〇仲介手数料割引キャンペーン
レックス日本橋水天宮プレミアタワー 1402の口コミ・レビュー
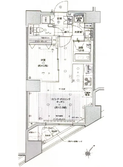
レックス日本橋水天宮プレミアタワー 1402は、まるで夢の中の一場面のように、あなたを暖かく迎え入れてくれる特別な場所です。東京の中心、日本橋箱崎町に佇むこの宝石は、南東の光が優雅に降り注ぐ贅沢な空間を誇ります。40.37㎡の専有面積は、心地よさと広がりを兼ね備え、1LDKの間取りは、独立した洋室(4帖)と、開放的なリビングダイニングキッチン(13帖)がゆったりと配置されています。ここに住むことで…レックス日本橋水天宮プレミアタワー 1402は、まるで夢の中の一場面のように、あなたを暖かく迎え入れてくれる特別な場所です。東京の中心、日本橋箱崎町に佇むこの宝石は、南東の光が優雅に降り注ぐ贅沢な空間を誇ります。40.37㎡の専有面積は、心地よさと広がりを兼ね備え、1LDKの間取りは、独立した洋室(4帖)と、開放的なリビングダイニングキッチン(13帖)がゆったりと配置されています。ここに住むことで、日常が非日常に変わる瞬間を楽しむことができるのです。
思わず深呼吸したくなるほど、清々しい空気が漂うこの空間には、静かで落ち着いた暮らしが約束されています。日差しが差し込むリビングでは、朝のコーヒーの香りが心をリフレッシュさせ、夜には柔らかな照明が家族の団らんを温かく包み込みます。窓から見える景色は、まるでアートのように日々変化を楽しませ、あなたの心に優しい刺激を与えてくれることでしょう。
レックス日本橋水天宮プレミアタワー 1402は、ただの住処ではありません。24時間管理されているこのタワーは、安心感を与え、セキュリティが確保されています。オートロックやTVモニターホンなど、最新の設備が整い、都会の喧騒から隔離された静かな避難所としての役割も果たします。また、宅配ボックスや駐輪場も完備しており、暮らしのスムーズさを支える要素がここには揃っています。
水天宮前駅からわずか徒歩2分という立地は、まるであなたのために用意された特権。周辺には歴史ある神社や文化的な施設が点在し、散策するだけでも心を豊かにしてくれます。日本橋の古き良き伝統を感じることができるこの場所で、アートや文学とひとつになって暮らすことができるのです。
想像してみてください。休日の午前、あなたは大きな窓のそばで、朝日を浴びながら本を手に取ります。ページをめくる音が静かな室内に響き、コーヒーの香ばしさが、まるで家の一部となって浸透していきます。夕暮れ時、リビングのソファに腰掛け、窓の外に広がる夕焼けを眺めながら、特別なディナーを楽しむ。そんな贅沢な時間が、このレックス日本橋水天宮プレミアタワー 1402では、手の届くところにあるのです。
このプレミアタワーでの生活は、まるで一流の映画のひとコマのように、感動と幸福感で満たされること請け合いです。新しい舞台で、新しい物語を描いてみてはいかがでしょうか。レックス日本橋水天宮プレミアタワー 1402は、その舞台を提供するために、あなたを待っています。
思わず深呼吸したくなるほど、清々しい空気が漂うこの空間には、静かで落ち着いた暮らしが約束されています。日差しが差し込むリビングでは、朝のコーヒーの香りが心をリフレッシュさせ、夜には柔らかな照明が家族の団らんを温かく包み込みます。窓から見える景色は、まるでアートのように日々変化を楽しませ、あなたの心に優しい刺激を与えてくれることでしょう。
レックス日本橋水天宮プレミアタワー 1402は、ただの住処ではありません。24時間管理されているこのタワーは、安心感を与え、セキュリティが確保されています。オートロックやTVモニターホンなど、最新の設備が整い、都会の喧騒から隔離された静かな避難所としての役割も果たします。また、宅配ボックスや駐輪場も完備しており、暮らしのスムーズさを支える要素がここには揃っています。
水天宮前駅からわずか徒歩2分という立地は、まるであなたのために用意された特権。周辺には歴史ある神社や文化的な施設が点在し、散策するだけでも心を豊かにしてくれます。日本橋の古き良き伝統を感じることができるこの場所で、アートや文学とひとつになって暮らすことができるのです。
想像してみてください。休日の午前、あなたは大きな窓のそばで、朝日を浴びながら本を手に取ります。ページをめくる音が静かな室内に響き、コーヒーの香ばしさが、まるで家の一部となって浸透していきます。夕暮れ時、リビングのソファに腰掛け、窓の外に広がる夕焼けを眺めながら、特別なディナーを楽しむ。そんな贅沢な時間が、このレックス日本橋水天宮プレミアタワー 1402では、手の届くところにあるのです。
このプレミアタワーでの生活は、まるで一流の映画のひとコマのように、感動と幸福感で満たされること請け合いです。新しい舞台で、新しい物語を描いてみてはいかがでしょうか。レックス日本橋水天宮プレミアタワー 1402は、その舞台を提供するために、あなたを待っています。
バイブルスコア
バイブルスコア: 77.9
かなり条件の良い物件です、即仮押さえをおすすめする物件です!
このお部屋は、現在ご入居中のため空室情報はございません。ただし、将来的に募集が開始される際、バイブルスコアにおいて非常に高い評価が期待されます。特にご興味をお持ちの方は、今のうちにブックマークやお気に入りに登録していただくと、募集開始のお知らせをすぐに受け取ることができます。是非ともご検討くださいませ。
※バイブルスコア詳細はこちら
バイブルスコアとは独自のAI機械学習技術を利用した物件評価システムで、物件のおすすめ度を示します。最高得点は100点で、スコアが高いほど、よりおすすめの物件と評価されています。
写真
契約条件
| 賃料 | 予想金額:148,000〜168,000円程度 | 管理費 | 予想金額:10,000〜14,000円程度 |
| 礼金 | 非公開(アーカイブ) | 敷金 | 非公開(アーカイブ) |
| フリーレント | なし | 平米数 | 40.37㎡ |
| 間取り | 1LDK | 大型収納 | |
| 契約期間 | 2年 | 方角 | 南東 |
| 更新料 | 1ヶ月 | 契約形態 | 普通賃貸借契約 |
| 取引態様 | 媒介 | 内見状況 | 入居中 |
| 入居時期 | 入居中 | SOHO・事務所 | |
| ペット | 間取り内訳 | 洋:4 LDK:13 | |
| キャンペーン情報・備考 | 本情報は賃料改定交渉の資料作成、収益物件の利回り試算、周辺エリアや最寄り駅の坪単価分析、次回募集開始時期の予測などにご活用いただけます。 | ||
※「どの不動産に頼めばいいのか分からない」「信頼できる営業マンの話を聞きたい」「一番親切な会社と契約したい」とお悩みの方におすすめなのが「高級賃貸バイブル」です。
高級賃貸バイブルは業界10年以上の熟練スタッフ群がお客様ファーストで対応します。
下記ボタンから、まずは無料でご相談下さい。
※内覧をご希望の際には、どうぞ物件のエントランス前にてお待ち合わせくださいませ。ご内覧後は、同じ場所でお別れとさせていただきます。お客様のご都合に合わせたスムーズなご案内を心がけておりますので、ご質問等がございましたら何なりとお申し付けください。 物件概要
| 物件名 |
| 築年月 |
|
|---|---|---|---|
| 所在地 | |||
| 交通 | |||
| 総戸数 |
| 総階数 |
|
| 構造 |
| ||
地図
物件までの道のりは、「拡大地図を表示」をクリックしてナビ機能をご利用ください。
部屋設備












建物設備

24時間管理

TVモニターホン

エレベーター

オートロック

宅配ボックス

敷地内ゴミ置場

管理人

駐輪場
レックス日本橋水天宮プレミアタワーの現在募集中のお部屋
- レックス日本橋水天宮プレミアタワー 14階 41.59㎡ - 間取り: 1LDK - 賃料: 18.8万円




















