
| 賃料 | 予想金額:430,000〜450,000円程度 | 管理費 | 予想金額:0〜2,000円程度 |
| 礼金/敷金 | 非公開(アーカイブ) | 平米数 | 94.64㎡ |
| 初期費用概算(参考) | 目安:2,461,500〜2,561,500 円 | みなし賃料(月額・参考) | 473,156〜493,156 円 |
| 備考 | 本ページは過去募集のアーカイブです。表示の金額は周辺相場・過去募集を踏まえた参考レンジであり、実際の契約金額・条件ではありません。 | ||
※上記みなし賃料(月額)は仲介手数料割引・無料&キャッシュバックを加味した高級賃貸バイブル限定の金額です。一般的なみなし賃料とは異なります。
【建物ページ】元麻布ガーデンの詳細・最新空室はこちら▶▶選ばれる理由
仲介手数料無料・キャンペーン情報(毎月15名様限定)
〇仲介手数料割引キャンペーン
元麻布ガーデン 303の口コミ・レビュー
元麻布ガーデン 303。この名前はただの物件名ではなく、あなたの新しい物語の出発点となる場所です。ここ、東京都港区元麻布の静謐な地に佇むこの洗練された住まいは、あなたを迎え入れる準備が整っています。303号室は、まるで育ちの良い貴族の子息のように、優雅さと威厳を併せ持ちながら、温かみのある居心地よさを感じさせてくれます。94.64㎡の広さは、居住する喜びを実感させ、あなたの生活に新しいリズムを与え…元麻布ガーデン 303。この名前はただの物件名ではなく、あなたの新しい物語の出発点となる場所です。ここ、東京都港区元麻布の静謐な地に佇むこの洗練された住まいは、あなたを迎え入れる準備が整っています。303号室は、まるで育ちの良い貴族の子息のように、優雅さと威厳を併せ持ちながら、温かみのある居心地よさを感じさせてくれます。94.64㎡の広さは、居住する喜びを実感させ、あなたの生活に新しいリズムを与えてくれるはずです。
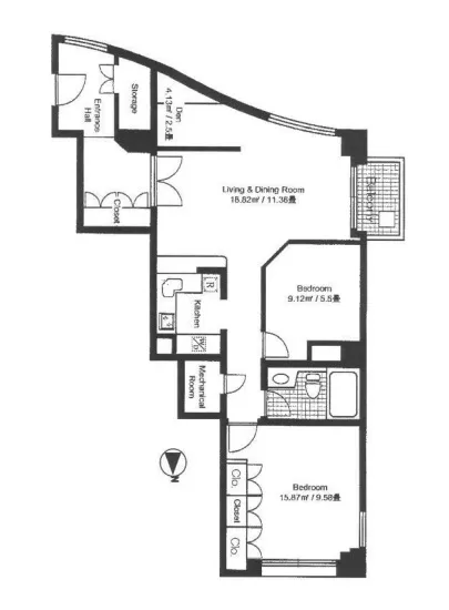
このお部屋に足を踏み入れた瞬間、目に飛び込んでくるのは、光が柔らかく差し込むリビングダイニング(LD11.36帖)です。西と南からの光が、まるであなたに向けて微笑んでいるかのように、心地よい温もりを部屋中に振りまきます。静かに耳を澄ませると、外から聞こえるのは、都会の喧騒を忘れさせるかのような鳥のさえずり。これが、あなたの日常のBGMとなることでしょう。
このLDの広さは、家族や友人との心温まるひとときを築くための舞台でもあります。日曜日の朝、まだ眠気が残る中、コーヒーの香りが立ち込めるキッチンからは、パンを焼く音が響きます。そんな何気ない瞬間が、実はかけがえのない時間へと変わっていくのです。
特に注目すべきは、洋室9.58帖の空間です。ここはまるで心の隠れ家。好きな本を手に取って、静かにページをめくると、まるであなた自身がその物語の中に入り込んでいくような感覚に包まれます。陽の光が柔らかく差し込むことで、その空間はより一層の深みと温もりを与えてくれるでしょう。そして隣の洋室5.5帖は、ゲストのための特別な空間。思い出に残る会話が交わされるその瞬間、あなたの周りには笑顔があふれることでしょう。
また、DEN2.5帖は創造力をかき立てる場所です。アートや音楽に触れ合いながら、自分だけの世界を築くことができるのです。ここで過ごす時間は、まるで芸術家がインスピレーションを得る瞬間のように、あなたに新しい発見をもたらしてくれます。
さらには、元麻布ガーデン 303は、周辺の歴史や文化の香りも感じることができます。麻布十番駅から徒歩5分という便利さも魅力ですが、その道すがらに感じる旧き良き日本の面影や、洗練されたカフェやギャラリーの存在は、あなたのライフスタイルをより豊かにしてくれるでしょう。
この物件は、まさにあなたの人生を彩るための舞台なのです。元麻布ガーデン 303での生活は、ただの居住空間を超え、豊かな感情や思い出を育む場所として、あなたの心に深く根付くことでしょう。ここで過ごす一瞬一瞬が、まるで映画のワンシーンのように美しく、永遠の記憶としてあなたの中に刻まれるのです。さあ、元麻布ガーデン 303という新たな人生の航海へと、今、船出をしましょう。
このお部屋に足を踏み入れた瞬間、目に飛び込んでくるのは、光が柔らかく差し込むリビングダイニング(LD11.36帖)です。西と南からの光が、まるであなたに向けて微笑んでいるかのように、心地よい温もりを部屋中に振りまきます。静かに耳を澄ませると、外から聞こえるのは、都会の喧騒を忘れさせるかのような鳥のさえずり。これが、あなたの日常のBGMとなることでしょう。
このLDの広さは、家族や友人との心温まるひとときを築くための舞台でもあります。日曜日の朝、まだ眠気が残る中、コーヒーの香りが立ち込めるキッチンからは、パンを焼く音が響きます。そんな何気ない瞬間が、実はかけがえのない時間へと変わっていくのです。
特に注目すべきは、洋室9.58帖の空間です。ここはまるで心の隠れ家。好きな本を手に取って、静かにページをめくると、まるであなた自身がその物語の中に入り込んでいくような感覚に包まれます。陽の光が柔らかく差し込むことで、その空間はより一層の深みと温もりを与えてくれるでしょう。そして隣の洋室5.5帖は、ゲストのための特別な空間。思い出に残る会話が交わされるその瞬間、あなたの周りには笑顔があふれることでしょう。
また、DEN2.5帖は創造力をかき立てる場所です。アートや音楽に触れ合いながら、自分だけの世界を築くことができるのです。ここで過ごす時間は、まるで芸術家がインスピレーションを得る瞬間のように、あなたに新しい発見をもたらしてくれます。
さらには、元麻布ガーデン 303は、周辺の歴史や文化の香りも感じることができます。麻布十番駅から徒歩5分という便利さも魅力ですが、その道すがらに感じる旧き良き日本の面影や、洗練されたカフェやギャラリーの存在は、あなたのライフスタイルをより豊かにしてくれるでしょう。
この物件は、まさにあなたの人生を彩るための舞台なのです。元麻布ガーデン 303での生活は、ただの居住空間を超え、豊かな感情や思い出を育む場所として、あなたの心に深く根付くことでしょう。ここで過ごす一瞬一瞬が、まるで映画のワンシーンのように美しく、永遠の記憶としてあなたの中に刻まれるのです。さあ、元麻布ガーデン 303という新たな人生の航海へと、今、船出をしましょう。
バイブルスコア
バイブルスコア: 37.3
平均的なスコアです。
※バイブルスコア詳細はこちら
バイブルスコアとは独自のAI機械学習技術を利用した物件評価システムで、物件のおすすめ度を示します。最高得点は100点で、スコアが高いほど、よりおすすめの物件と評価されています。
写真
契約条件
| 賃料 | 予想金額:430,000〜450,000円程度 | 管理費 | 予想金額:0〜2,000円程度 |
| 礼金 | 非公開(アーカイブ) | 敷金 | 非公開(アーカイブ) |
| フリーレント | なし | 平米数 | 94.64㎡ |
| 間取り | 2LDK | 大型収納 | SIC |
| 契約期間 |
| 方角 | 西 南 |
| 更新料 | 契約形態 | 普通賃貸借契約 | |
| 取引態様 | 媒介 | 内見状況 | 入居中 |
| 入居時期 | 入居中 | SOHO・事務所 | |
| ペット | 間取り内訳 | LD11.36 / 洋9.58 / 洋5.5 / DEN2.5 | |
| キャンペーン情報・備考 | 本情報は賃料改定交渉の資料作成、収益物件の利回り試算、周辺エリアや最寄り駅の坪単価分析、次回募集開始時期の予測などにご活用いただけます。 | ||
※「どの不動産に頼めばいいのか分からない」「信頼できる営業マンの話を聞きたい」「一番親切な会社と契約したい」とお悩みの方におすすめなのが「高級賃貸バイブル」です。
高級賃貸バイブルは業界10年以上の熟練スタッフ群がお客様ファーストで対応します。
下記ボタンから、まずは無料でご相談下さい。
※内覧をご希望の際には、どうぞ物件のエントランス前にてお待ち合わせくださいませ。ご内覧後は、同じ場所でお別れとさせていただきます。お客様のご都合に合わせたスムーズなご案内を心がけておりますので、ご質問等がございましたら何なりとお申し付けください。 物件概要
| 物件名 |
| 築年月 |
|
|---|---|---|---|
| 所在地 | |||
| 交通 | |||
| 総戸数 | 総階数 |
| |
| 構造 |
| ||
地図
物件までの道のりは、「拡大地図を表示」をクリックしてナビ機能をご利用ください。
部屋設備













建物設備

エレベーター

オートロック

敷地内ゴミ置場

駐車場機械式

駐輪場
元麻布ガーデンの現在募集中のお部屋
- No rooms found for this property.

























