
| 賃料 | 予想金額:139,000〜159,000円程度 | 管理費 | 予想金額:13,000〜17,000円程度 |
| 礼金/敷金 | 非公開(アーカイブ) | 平米数 | 32.16㎡ |
| 初期費用概算(参考) | 目安:199,720〜299,720 円 | みなし賃料(月額・参考) | 156,098〜176,098 円 |
| 備考 | 本ページは過去募集のアーカイブです。表示の金額は周辺相場・過去募集を踏まえた参考レンジであり、実際の契約金額・条件ではありません。 | ||
※上記みなし賃料(月額)は仲介手数料割引・無料&キャッシュバックを加味した高級賃貸バイブル限定の金額です。一般的なみなし賃料とは異なります。
【建物ページ】パークアクシス三番町の詳細・最新空室はこちら▶▶選ばれる理由
仲介手数料無料・キャンペーン情報(毎月15名様限定)
〇引っ越しお祝い金181780円プレゼント(キャッシュバック)
〇仲介手数料無料キャンペーン
パークアクシス三番町 603の口コミ・レビュー
パークアクシス三番町 603。この名は、ただの住まいを超え、あなたの人生に新たなページを刻む舞台となることを約束いたします。静寂の中に存在するこの場所は、まるで悠久の時を感じさせる古都の一角に佇むかのようです。603号室という特別な番号には、心の奥底から湧き上がる期待と興奮が込められています。
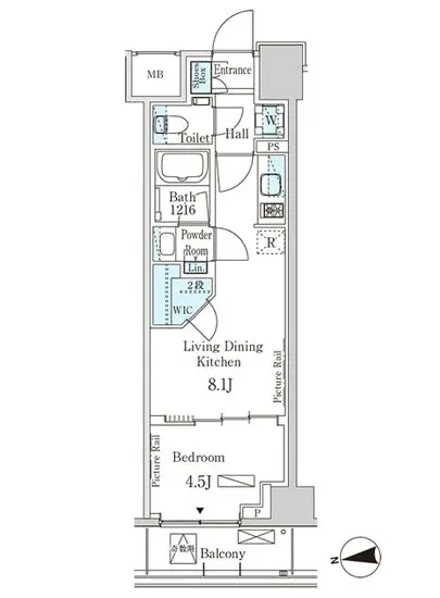
このお部屋は、全体で32.16㎡のコンパクトな空間に、4.5帖の洋室と8.1帖のLDKを巧みに配した、…パークアクシス三番町 603。この名は、ただの住まいを超え、あなたの人生に新たなページを刻む舞台となることを約束いたします。静寂の中に存在するこの場所は、まるで悠久の時を感じさせる古都の一角に佇むかのようです。603号室という特別な番号には、心の奥底から湧き上がる期待と興奮が込められています。
このお部屋は、全体で32.16㎡のコンパクトな空間に、4.5帖の洋室と8.1帖のLDKを巧みに配した、洗練された1LDKの間取りを誇ります。入った瞬間、気持ちの良い陽光が西側の窓から差し込み、心地よい風が部屋を包み込みます。優雅なひとときは、この空間の中で静かに息を潜めてお待ちしております。まるで新たな冒険の幕開けを告げる鐘の音が響くように、あなたの生活がここから始まります。
想像してみてください。朝、バルコニーの扉を開けると、優しい日差しが肌を撫で、爽やかな風が香ばしいコーヒーの香りと融合し、五感を目覚めさせます。パークアクシス三番町 603のLDKは、家族や友人との大切な時間を過ごすための完璧な舞台です。料理をした後の満ち足りた気持ち、心を通わせる会話が、壁に囲まれた空間を優しく包み込み、まるで映画のワンシーンを見ているかのように、心の中に色鮮やかな情景を描き出します。
夜が訪れると、パークアクシス三番町 603の窓からは星空が広がり、穏やかな夜の音が耳に心地よく響きます。外の世界が静まりかえり、あなたの内面的な安らぎが満たされていく様子は、まるで月明かりに照らされた静かな湖のようです。その瞬間、あなたは自らの人生の主役であり、贅沢な物語の語り手となるのです。
周辺には、歴史ある美術館や文化施設が点在しており、心豊かなアートと文化に触れることができます。若き日の詩人たちが創造力を掻き立てたこの地で、あなたも新たなインスピレーションを得ることができるでしょう。パークアクシス三番町 603から徒歩6分の半蔵門駅は、あなたの生活をより豊かにするアクセスの良さも誇ります。近隣には、歩行者天国の街並みやカフェ、ショップが並び、日々の生活を色鮮やかに彩ります。
この場所が、あなたにとっての「憩いの場」となり、毎日が映画のワンシーンになることを、パークアクシス三番町 603は願ってやみません。実際にその扉を開け、新たなストーリーを始めてみませんか。ここには、あなたの心に寄り添う日々が待っています。
このお部屋は、全体で32.16㎡のコンパクトな空間に、4.5帖の洋室と8.1帖のLDKを巧みに配した、…パークアクシス三番町 603。この名は、ただの住まいを超え、あなたの人生に新たなページを刻む舞台となることを約束いたします。静寂の中に存在するこの場所は、まるで悠久の時を感じさせる古都の一角に佇むかのようです。603号室という特別な番号には、心の奥底から湧き上がる期待と興奮が込められています。
このお部屋は、全体で32.16㎡のコンパクトな空間に、4.5帖の洋室と8.1帖のLDKを巧みに配した、洗練された1LDKの間取りを誇ります。入った瞬間、気持ちの良い陽光が西側の窓から差し込み、心地よい風が部屋を包み込みます。優雅なひとときは、この空間の中で静かに息を潜めてお待ちしております。まるで新たな冒険の幕開けを告げる鐘の音が響くように、あなたの生活がここから始まります。
想像してみてください。朝、バルコニーの扉を開けると、優しい日差しが肌を撫で、爽やかな風が香ばしいコーヒーの香りと融合し、五感を目覚めさせます。パークアクシス三番町 603のLDKは、家族や友人との大切な時間を過ごすための完璧な舞台です。料理をした後の満ち足りた気持ち、心を通わせる会話が、壁に囲まれた空間を優しく包み込み、まるで映画のワンシーンを見ているかのように、心の中に色鮮やかな情景を描き出します。
夜が訪れると、パークアクシス三番町 603の窓からは星空が広がり、穏やかな夜の音が耳に心地よく響きます。外の世界が静まりかえり、あなたの内面的な安らぎが満たされていく様子は、まるで月明かりに照らされた静かな湖のようです。その瞬間、あなたは自らの人生の主役であり、贅沢な物語の語り手となるのです。
周辺には、歴史ある美術館や文化施設が点在しており、心豊かなアートと文化に触れることができます。若き日の詩人たちが創造力を掻き立てたこの地で、あなたも新たなインスピレーションを得ることができるでしょう。パークアクシス三番町 603から徒歩6分の半蔵門駅は、あなたの生活をより豊かにするアクセスの良さも誇ります。近隣には、歩行者天国の街並みやカフェ、ショップが並び、日々の生活を色鮮やかに彩ります。
この場所が、あなたにとっての「憩いの場」となり、毎日が映画のワンシーンになることを、パークアクシス三番町 603は願ってやみません。実際にその扉を開け、新たなストーリーを始めてみませんか。ここには、あなたの心に寄り添う日々が待っています。
バイブルスコア
バイブルスコア: 48.0
条件のいい物件です、引っ越しが2か月以内の場合は仮申し込みを検討すべき物件です。
※バイブルスコア詳細はこちら
バイブルスコアとは独自のAI機械学習技術を利用した物件評価システムで、物件のおすすめ度を示します。最高得点は100点で、スコアが高いほど、よりおすすめの物件と評価されています。
写真
契約条件
| 賃料 | 予想金額:139,000〜159,000円程度 | 管理費 | 予想金額:13,000〜17,000円程度 |
| 礼金 | 非公開(アーカイブ) | 敷金 | 非公開(アーカイブ) |
| フリーレント | なし | 平米数 | 32.16㎡ |
| 間取り | 1LDK | 大型収納 | WIC |
| 契約期間 | 方角 | 西 | |
| 更新料 | 契約形態 | 定期借家契約 | |
| 取引態様 | 媒介 | 内見状況 | 入居中 |
| 入居時期 | 入居中 | SOHO・事務所 | |
| ペット | ペット可 | 間取り内訳 | 洋:4.5 LDK:8.1 |
| キャンペーン情報・備考 | 本情報は賃料改定交渉の資料作成、収益物件の利回り試算、周辺エリアや最寄り駅の坪単価分析、次回募集開始時期の予測などにご活用いただけます。 | ||
※「どの不動産に頼めばいいのか分からない」「信頼できる営業マンの話を聞きたい」「一番親切な会社と契約したい」とお悩みの方におすすめなのが「高級賃貸バイブル」です。
高級賃貸バイブルは業界10年以上の熟練スタッフ群がお客様ファーストで対応します。
下記ボタンから、まずは無料でご相談下さい。
※内覧をご希望の際には、どうぞ物件のエントランス前にてお待ち合わせくださいませ。ご内覧後は、同じ場所でお別れとさせていただきます。お客様のご都合に合わせたスムーズなご案内を心がけておりますので、ご質問等がございましたら何なりとお申し付けください。 物件概要
| 物件名 |
| 築年月 |
|
|---|---|---|---|
| 所在地 | |||
| 交通 | |||
| 総戸数 |
| 総階数 |
|
| 構造 |
| ||
地図
物件までの道のりは、「拡大地図を表示」をクリックしてナビ機能をご利用ください。
部屋設備















建物設備

TVモニターホン

エレベーター

オートロック

バイク置場

宅配ボックス

敷地内ゴミ置場

管理人

駐輪場
パークアクシス三番町の現在募集中のお部屋
- パークアクシス三番町 502 - 間取り: 1DK - 賃料: 19.3万円





















