
| 賃料 | 予想金額:211,000〜231,000円程度 | 管理費 | 予想金額:0〜2,000円程度 |
| 礼金/敷金 | 非公開(アーカイブ) | 平米数 | 57.31㎡ |
| 初期費用概算(参考) | 目安:815,000〜915,000 円 | みなし賃料(月額・参考) | 229,021〜249,021 円 |
| 備考 | 本ページは過去募集のアーカイブです。表示の金額は周辺相場・過去募集を踏まえた参考レンジであり、実際の契約金額・条件ではありません。 | ||
※上記みなし賃料(月額)は仲介手数料割引・無料&キャッシュバックを加味した高級賃貸バイブル限定の金額です。一般的なみなし賃料とは異なります。
【建物ページ】ベイサイド竹芝の詳細・最新空室はこちら▶▶選ばれる理由
仲介手数料無料・キャンペーン情報(毎月15名様限定)
〇フリーレント1か月キャンペーン
ベイサイド竹芝 1206の口コミ・レビュー
ベイサイド竹芝 1206という名の物件は、あなたの前に優雅なステージが広がっています。ここは東京という大都市の喧騒から一歩離れ、海のそよ風を感じながら、洗練された生活を送るための完璧な舞台です。南西を向いたこの住まいは、昼間は明るい日差しが降り注ぎ、夜には煌びやかな東京湾の夜景が広がる、まるで夢のような空間と言えるでしょう。
この物件を構成するのは、洋室7.2帖、LD13.8帖、そしてK3.0帖…ベイサイド竹芝 1206という名の物件は、あなたの前に優雅なステージが広がっています。ここは東京という大都市の喧騒から一歩離れ、海のそよ風を感じながら、洗練された生活を送るための完璧な舞台です。南西を向いたこの住まいは、昼間は明るい日差しが降り注ぎ、夜には煌びやかな東京湾の夜景が広がる、まるで夢のような空間と言えるでしょう。
この物件を構成するのは、洋室7.2帖、LD13.8帖、そしてK3.0帖というバランスの取れた間取りです。あなたがここに足を踏み入れると、まず感じるのはその開放感。広々としたリビングダイニングは、あなたに思わず笑みをこぼさせる、居心地の良い空間に包まれています。柔らかな光が注ぎ込み、心がほぐれるような温もりを感じさせるこの場所は、家族や友人との素敵な時間を育むための、まさに理想的な舞台です。
ベイサイド竹芝 1206では、窓を開けると海の香りが運ばれてきます。潮風が頬を優しく撫で、あなたの心に安らぎをもたらすのです。ここでの朝は、海を眺めながらゆったりとした時間を堪能することができ、心の底から「今日も素敵な一日が始まる」と感じていただけることでしょう。あなたは朝食をテーブルに並べ、光が洒落るリビングで、贅沢なひとときを過ごすのです。
そして、そうした日常の中には、季節の移ろいを感じる瞬間もたくさん。秋には紅葉する木々が海の向こうに彩を添え、冬には雪化粧をした街並みが一層の美しさを加えます。これらの景色は、まるで映画のワンシーンのように、あなたの心を打つことでしょう。
さらに、ベイサイド竹芝 1206の便利さも魅力のひとつです。24時間管理された安全な環境の中、オートロックやテレビモニターホンにより、安心して暮らすことができます。また、バイク置場や駐輪場も完備されているため、アクティブなライフスタイルを送る方にも対応できるのが嬉しい点です。
周辺には、文化や芸術の香りが漂うスポットも豊富です。竹芝公園での散策や、アートを楽しむためのギャラリー巡りは、あなたの日常に豊かな彩りを加えるでしょう。東京都心にありながら、自然との調和を大切にしたこの地で、あなた自身の物語を紡いでいくことができるのです。
ベイサイド竹芝 1206は、単なる住まいではなく、あなたの人生の新しいチャプターを迎えるための、特別な場所です。この場所で、特別な瞬間や素敵な出会いを重ねていくことでしょう。あなたの人生に溢れる美しい音色と、深い感動を刻みつける舞台が、ここには確かに存在しています。
この物件を構成するのは、洋室7.2帖、LD13.8帖、そしてK3.0帖…ベイサイド竹芝 1206という名の物件は、あなたの前に優雅なステージが広がっています。ここは東京という大都市の喧騒から一歩離れ、海のそよ風を感じながら、洗練された生活を送るための完璧な舞台です。南西を向いたこの住まいは、昼間は明るい日差しが降り注ぎ、夜には煌びやかな東京湾の夜景が広がる、まるで夢のような空間と言えるでしょう。
この物件を構成するのは、洋室7.2帖、LD13.8帖、そしてK3.0帖というバランスの取れた間取りです。あなたがここに足を踏み入れると、まず感じるのはその開放感。広々としたリビングダイニングは、あなたに思わず笑みをこぼさせる、居心地の良い空間に包まれています。柔らかな光が注ぎ込み、心がほぐれるような温もりを感じさせるこの場所は、家族や友人との素敵な時間を育むための、まさに理想的な舞台です。
ベイサイド竹芝 1206では、窓を開けると海の香りが運ばれてきます。潮風が頬を優しく撫で、あなたの心に安らぎをもたらすのです。ここでの朝は、海を眺めながらゆったりとした時間を堪能することができ、心の底から「今日も素敵な一日が始まる」と感じていただけることでしょう。あなたは朝食をテーブルに並べ、光が洒落るリビングで、贅沢なひとときを過ごすのです。
そして、そうした日常の中には、季節の移ろいを感じる瞬間もたくさん。秋には紅葉する木々が海の向こうに彩を添え、冬には雪化粧をした街並みが一層の美しさを加えます。これらの景色は、まるで映画のワンシーンのように、あなたの心を打つことでしょう。
さらに、ベイサイド竹芝 1206の便利さも魅力のひとつです。24時間管理された安全な環境の中、オートロックやテレビモニターホンにより、安心して暮らすことができます。また、バイク置場や駐輪場も完備されているため、アクティブなライフスタイルを送る方にも対応できるのが嬉しい点です。
周辺には、文化や芸術の香りが漂うスポットも豊富です。竹芝公園での散策や、アートを楽しむためのギャラリー巡りは、あなたの日常に豊かな彩りを加えるでしょう。東京都心にありながら、自然との調和を大切にしたこの地で、あなた自身の物語を紡いでいくことができるのです。
ベイサイド竹芝 1206は、単なる住まいではなく、あなたの人生の新しいチャプターを迎えるための、特別な場所です。この場所で、特別な瞬間や素敵な出会いを重ねていくことでしょう。あなたの人生に溢れる美しい音色と、深い感動を刻みつける舞台が、ここには確かに存在しています。
バイブルスコア
バイブルスコア: 39.7
平均的なスコアです。
※バイブルスコア詳細はこちら
バイブルスコアとは独自のAI機械学習技術を利用した物件評価システムで、物件のおすすめ度を示します。最高得点は100点で、スコアが高いほど、よりおすすめの物件と評価されています。
写真
契約条件
| 賃料 | 予想金額:211,000〜231,000円程度 | 管理費 | 予想金額:0〜2,000円程度 |
| 礼金 | 非公開(アーカイブ) | 敷金 | 非公開(アーカイブ) |
| フリーレント | 1ヶ月 | 平米数 | 57.31㎡ |
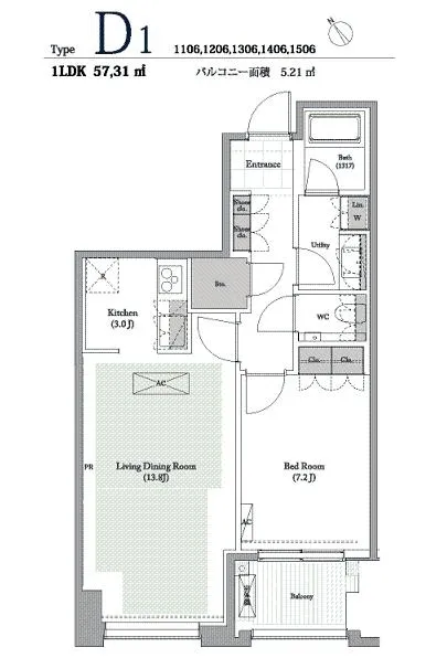
| 間取り | 1LDK | 大型収納 | |
| 契約期間 |
| 方角 | 南西 |
| 更新料 | 契約形態 | 普通賃貸借契約 | |
| 取引態様 | 媒介 | 内見状況 | 入居中 |
| 入居時期 | 入居中 | SOHO・事務所 | 事務所(SOHO)可 |
| ペット | 間取り内訳 | 洋室7.2帖 LD13.8帖 K3.0帖 | |
| キャンペーン情報・備考 | 本情報は賃料改定交渉の資料作成、収益物件の利回り試算、周辺エリアや最寄り駅の坪単価分析、次回募集開始時期の予測などにご活用いただけます。 | ||
※「どの不動産に頼めばいいのか分からない」「信頼できる営業マンの話を聞きたい」「一番親切な会社と契約したい」とお悩みの方におすすめなのが「高級賃貸バイブル」です。
高級賃貸バイブルは業界10年以上の熟練スタッフ群がお客様ファーストで対応します。
下記ボタンから、まずは無料でご相談下さい。
※内覧をご希望の際には、どうぞ物件のエントランス前にてお待ち合わせくださいませ。ご内覧後は、同じ場所でお別れとさせていただきます。お客様のご都合に合わせたスムーズなご案内を心がけておりますので、ご質問等がございましたら何なりとお申し付けください。 物件概要
| 物件名 |
| 築年月 |
|
|---|---|---|---|
| 所在地 | |||
| 交通 | |||
| 総戸数 |
| 総階数 |
|
| 構造 |
| ||
地図
物件までの道のりは、「拡大地図を表示」をクリックしてナビ機能をご利用ください。
部屋設備

















建物設備

24時間管理

TVモニターホン

エレベーター

オートロック

バイク置場

宅配ボックス

敷地内ゴミ置場

駐車場機械式

駐輪場
ベイサイド竹芝の現在募集中のお部屋
- No rooms found for this property.






























