
| 賃料 | 予想金額:233,000〜253,000円程度 | 管理費 | 予想金額:0〜2,000円程度 |
| 礼金/敷金 | 非公開(アーカイブ) | 平米数 | 57.31㎡ |
| 初期費用概算(参考) | 目安:1,323,000〜1,423,000 円 | みなし賃料(月額・参考) | 256,542〜276,542 円 |
| 備考 | 本ページは過去募集のアーカイブです。表示の金額は周辺相場・過去募集を踏まえた参考レンジであり、実際の契約金額・条件ではありません。 | ||
※上記みなし賃料(月額)は仲介手数料割引・無料&キャッシュバックを加味した高級賃貸バイブル限定の金額です。一般的なみなし賃料とは異なります。
【建物ページ】ベイサイド竹芝の詳細・最新空室はこちら▶▶選ばれる理由
仲介手数料無料・キャンペーン情報(毎月15名様限定)
〇仲介手数料無料キャンペーン
ベイサイド竹芝 1406の口コミ・レビュー
ベイサイド竹芝 1406。この名前は、まるで海のさざ波がささやくように、心の奥に響く響きを持っています。東京都港区海岸1-14-17に佇むこの物件は、まるで貴族のように優雅に、南西に向かって広がる海を見つめています。毎朝、カーテンを開くと、優しい日差しが部屋を照らし、青い海と空のコントラストが、ひと日の始まりを祝福してくれるかのようです。
あなたがこの洗練された空間に足を踏み入れると、そこには息…ベイサイド竹芝 1406。この名前は、まるで海のさざ波がささやくように、心の奥に響く響きを持っています。東京都港区海岸1-14-17に佇むこの物件は、まるで貴族のように優雅に、南西に向かって広がる海を見つめています。毎朝、カーテンを開くと、優しい日差しが部屋を照らし、青い海と空のコントラストが、ひと日の始まりを祝福してくれるかのようです。
あなたがこの洗練された空間に足を踏み入れると、そこには息を呑むような美しさが待っています。LDK16.8帖の広々としたリビングは、まるで映画のセットのように、日常を特別な物語に変える舞台となります。大きな窓から差し込む光は、料理をする手元を優しく包み込み、また友人たちとワインを楽しむひとときに、温かな雰囲気を添えてくれることでしょう。お料理の香ばしい香りが立ち込め、キッチンからは幸せを運ぶ音が響いてきます。
そして、洋室7.2帖は、あなたの理想の隠れ家。そこには、穏やかな時の流れが漂い、心を静めるための極上の空間が広がっています。柔らかな布団に身を委ね、優しい風が窓の外から吹き込むと、まるで海の彼方からの囁きが耳に届くかのようです。薄暗い午後に静かに読書を楽しむ姿が目に浮かび、まるで文学の主人公になったような気分に浸れます。
このベイサイド竹芝 1406には、24時間管理という安心感があり、まるで親友がいつもそばにいるかのように、寄り添ってくれます。オートロックやTVモニターホンは、あなたの大切なプライバシーを守り、静かな夜を約束してくれるでしょう。エレベーターを降りると、そこには美しいデザインが施された空間が広がり、まるでアートギャラリーのように、心を癒してくれます。
この物件はただの賃貸ではなく、生活そのものがアートであると語りかけてくるかのようです。竹芝駅から徒歩1分の距離は、まるでその場所があなたの周りに広がる美術館や博物館への案内役を務めているかのよう。周辺の歴史や文化が交錯し、あなたの生活を豊かに彩ります。海に面した景色を眺めながら、シャンパンをグラスに注ぐ瞬間が、まさに映画のワンシーンのように、あなたの日常を特別なものにしてくれることでしょう。
ベイサイド竹芝 1406は、ただ住むための場所ではなく、心の拠り所であり、あなたが主役の物語を紡ぐための舞台です。心躍る景色、響く音、香る料理、優しい風、一つ一つの瞬間を大切にしながら、日々の生活を楽しんでいただきたいと思います。この場所が、あなたにとって特別な意味を持つようになることを、心から願っております。
あなたがこの洗練された空間に足を踏み入れると、そこには息…ベイサイド竹芝 1406。この名前は、まるで海のさざ波がささやくように、心の奥に響く響きを持っています。東京都港区海岸1-14-17に佇むこの物件は、まるで貴族のように優雅に、南西に向かって広がる海を見つめています。毎朝、カーテンを開くと、優しい日差しが部屋を照らし、青い海と空のコントラストが、ひと日の始まりを祝福してくれるかのようです。
あなたがこの洗練された空間に足を踏み入れると、そこには息を呑むような美しさが待っています。LDK16.8帖の広々としたリビングは、まるで映画のセットのように、日常を特別な物語に変える舞台となります。大きな窓から差し込む光は、料理をする手元を優しく包み込み、また友人たちとワインを楽しむひとときに、温かな雰囲気を添えてくれることでしょう。お料理の香ばしい香りが立ち込め、キッチンからは幸せを運ぶ音が響いてきます。
そして、洋室7.2帖は、あなたの理想の隠れ家。そこには、穏やかな時の流れが漂い、心を静めるための極上の空間が広がっています。柔らかな布団に身を委ね、優しい風が窓の外から吹き込むと、まるで海の彼方からの囁きが耳に届くかのようです。薄暗い午後に静かに読書を楽しむ姿が目に浮かび、まるで文学の主人公になったような気分に浸れます。
このベイサイド竹芝 1406には、24時間管理という安心感があり、まるで親友がいつもそばにいるかのように、寄り添ってくれます。オートロックやTVモニターホンは、あなたの大切なプライバシーを守り、静かな夜を約束してくれるでしょう。エレベーターを降りると、そこには美しいデザインが施された空間が広がり、まるでアートギャラリーのように、心を癒してくれます。
この物件はただの賃貸ではなく、生活そのものがアートであると語りかけてくるかのようです。竹芝駅から徒歩1分の距離は、まるでその場所があなたの周りに広がる美術館や博物館への案内役を務めているかのよう。周辺の歴史や文化が交錯し、あなたの生活を豊かに彩ります。海に面した景色を眺めながら、シャンパンをグラスに注ぐ瞬間が、まさに映画のワンシーンのように、あなたの日常を特別なものにしてくれることでしょう。
ベイサイド竹芝 1406は、ただ住むための場所ではなく、心の拠り所であり、あなたが主役の物語を紡ぐための舞台です。心躍る景色、響く音、香る料理、優しい風、一つ一つの瞬間を大切にしながら、日々の生活を楽しんでいただきたいと思います。この場所が、あなたにとって特別な意味を持つようになることを、心から願っております。
バイブルスコア
バイブルスコア: 43.8
条件のいい物件です、引っ越しが2か月以内の場合は仮申し込みを検討すべき物件です。
※バイブルスコア詳細はこちら
バイブルスコアとは独自のAI機械学習技術を利用した物件評価システムで、物件のおすすめ度を示します。最高得点は100点で、スコアが高いほど、よりおすすめの物件と評価されています。
写真
契約条件
| 賃料 | 予想金額:233,000〜253,000円程度 | 管理費 | 予想金額:0〜2,000円程度 |
| 礼金 | 非公開(アーカイブ) | 敷金 | 非公開(アーカイブ) |
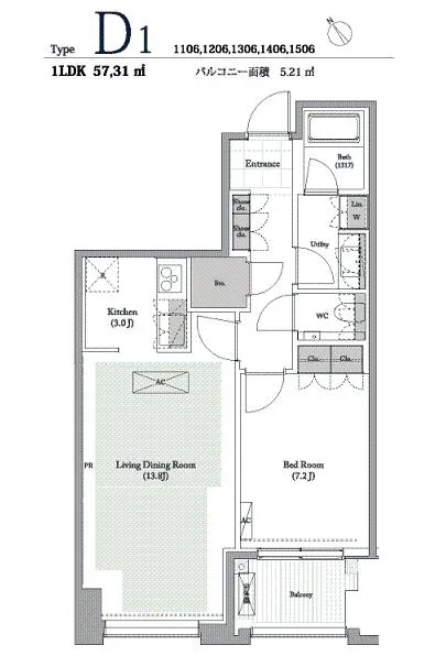
| フリーレント | なし | 平米数 | 57.31㎡ |
| 間取り | 1LDK | 大型収納 | なし |
| 契約期間 | 2年 | 方角 | 南西 |
| 更新料 | 1ヶ月 | 契約形態 | 普通賃貸借契約 |
| 取引態様 | 媒介 | 内見状況 | 入居中 |
| 入居時期 | 入居中 | SOHO・事務所 | 可 敷金1ヵ月積み増し |
| ペット | 不可 | 間取り内訳 | LDK16.8帖 洋室7.2帖 |
| キャンペーン情報・備考 | 本情報は賃料改定交渉の資料作成、収益物件の利回り試算、周辺エリアや最寄り駅の坪単価分析、次回募集開始時期の予測などにご活用いただけます。 | ||
※「どの不動産に頼めばいいのか分からない」「信頼できる営業マンの話を聞きたい」「一番親切な会社と契約したい」とお悩みの方におすすめなのが「高級賃貸バイブル」です。
高級賃貸バイブルは業界10年以上の熟練スタッフ群がお客様ファーストで対応します。
下記ボタンから、まずは無料でご相談下さい。
※内覧をご希望の際には、どうぞ物件のエントランス前にてお待ち合わせくださいませ。ご内覧後は、同じ場所でお別れとさせていただきます。お客様のご都合に合わせたスムーズなご案内を心がけておりますので、ご質問等がございましたら何なりとお申し付けください。 物件概要
| 物件名 |
| 築年月 |
|
|---|---|---|---|
| 所在地 | |||
| 交通 | |||
| 総戸数 |
| 総階数 |
|
| 構造 |
| ||
地図
物件までの道のりは、「拡大地図を表示」をクリックしてナビ機能をご利用ください。
部屋設備












建物設備

24時間管理

TVモニターホン

エレベーター

オートロック

バイク置場

宅配ボックス

敷地内ゴミ置場

駐車場機械式

駐輪場
ベイサイド竹芝の現在募集中のお部屋
- No rooms found for this property.






























