
| 賃料 | 予想金額:217,000〜237,000円程度 | 管理費 | 予想金額:0〜2,000円程度 |
| 礼金/敷金 | 非公開(アーカイブ) | 平米数 | 55.17㎡ |
| 初期費用概算(参考) | 目安:1,290,000〜1,390,000 円 | みなし賃料(月額・参考) | 240,188〜260,188 円 |
| 備考 | 本ページは過去募集のアーカイブです。表示の金額は周辺相場・過去募集を踏まえた参考レンジであり、実際の契約金額・条件ではありません。 | ||
※上記みなし賃料(月額)は仲介手数料割引・無料&キャッシュバックを加味した高級賃貸バイブル限定の金額です。一般的なみなし賃料とは異なります。
【建物ページ】ベイサイド竹芝の詳細・最新空室はこちら▶▶選ばれる理由
仲介手数料無料・キャンペーン情報(毎月15名様限定)
〇仲介手数料割引キャンペーン
ベイサイド竹芝 1208の口コミ・レビュー
ベイサイド竹芝 1208は、まるで海の向こうからの贈り物が詰まった宝箱のような物件です。東京都港区海岸にそびえ立つこの高級賃貸のドアを開ければ、心と体が解き放たれるような感覚に包まれることでしょう。北西を向いたその窓からは、穏やかな夕日が海に溶け込む瞬間を毎日目撃することができ、日常がまるで映画の一場面のように輝きを増していきます。
この素晴らしい空間は、充実した設備に支えられています。24時間…ベイサイド竹芝 1208は、まるで海の向こうからの贈り物が詰まった宝箱のような物件です。東京都港区海岸にそびえ立つこの高級賃貸のドアを開ければ、心と体が解き放たれるような感覚に包まれることでしょう。北西を向いたその窓からは、穏やかな夕日が海に溶け込む瞬間を毎日目撃することができ、日常がまるで映画の一場面のように輝きを増していきます。
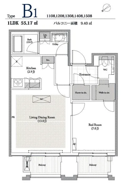
この素晴らしい空間は、充実した設備に支えられています。24時間管理される安心感は、まるであなたを守る見えない盾のように常にそこにあります。エレベーターで上がるたび、心躍る期待感が高まり、ドアを開けた瞬間に広がるのは、洋室7.0帖の空間と心地よいLD13.0帖、そして温かみのあるK2.9帖が織りなす調和の取れた世界です。
その空間に足を踏み入れると、自然光が差し込む窓の向こう側から波の音がかすかに聞こえ、心地よい風がカーテンを優しく揺らします。リビングに流れる香ばしいコーヒーの香り、キッチンで調理される美味しい料理の匂いが交じり合う中、「ここは私の家」と感じさせてくれるのです。
住まう人々を優雅に包み込むこのベイサイド竹芝 1208は、ただの住まいではありません。近隣には歴史的な文化と芸術が息づき、散策を楽しむことで日常がより豊かになります。ゆりかもめ竹芝駅からのアクセスも良好なので、都会の喧騒から逃れつつも、洗練されたライフスタイルを維持することが可能です。
バイク置場や宅配ボックス、駐輪場などの設備も完備され、まるであなたのライフスタイルに寄り添うように設計されています。オートロック機能に守られたこの場所で、心からリラックスした瞬間を享受しながら、天井高の開放感と共に、毎日の生活をより美しく彩ってみてはいかがでしょうか。
心に響く音楽のように、静かに心地よく流れる時の中で、ベイサイド竹芝 1208での生活は、まさに至福のひとときです。全ての感覚を使って、あなたの日常をより豊かにするこの空間で、新たな物語を紡いでみませんか?ここには、あなたを迎え入れるための、温かい心と魅力が溢れています。これからの生活が、まるで美しい映画のエンディングを迎えるかのように、特別な瞬間で満ち溢れることを、心から願っています。
この素晴らしい空間は、充実した設備に支えられています。24時間…ベイサイド竹芝 1208は、まるで海の向こうからの贈り物が詰まった宝箱のような物件です。東京都港区海岸にそびえ立つこの高級賃貸のドアを開ければ、心と体が解き放たれるような感覚に包まれることでしょう。北西を向いたその窓からは、穏やかな夕日が海に溶け込む瞬間を毎日目撃することができ、日常がまるで映画の一場面のように輝きを増していきます。
この素晴らしい空間は、充実した設備に支えられています。24時間管理される安心感は、まるであなたを守る見えない盾のように常にそこにあります。エレベーターで上がるたび、心躍る期待感が高まり、ドアを開けた瞬間に広がるのは、洋室7.0帖の空間と心地よいLD13.0帖、そして温かみのあるK2.9帖が織りなす調和の取れた世界です。
その空間に足を踏み入れると、自然光が差し込む窓の向こう側から波の音がかすかに聞こえ、心地よい風がカーテンを優しく揺らします。リビングに流れる香ばしいコーヒーの香り、キッチンで調理される美味しい料理の匂いが交じり合う中、「ここは私の家」と感じさせてくれるのです。
住まう人々を優雅に包み込むこのベイサイド竹芝 1208は、ただの住まいではありません。近隣には歴史的な文化と芸術が息づき、散策を楽しむことで日常がより豊かになります。ゆりかもめ竹芝駅からのアクセスも良好なので、都会の喧騒から逃れつつも、洗練されたライフスタイルを維持することが可能です。
バイク置場や宅配ボックス、駐輪場などの設備も完備され、まるであなたのライフスタイルに寄り添うように設計されています。オートロック機能に守られたこの場所で、心からリラックスした瞬間を享受しながら、天井高の開放感と共に、毎日の生活をより美しく彩ってみてはいかがでしょうか。
心に響く音楽のように、静かに心地よく流れる時の中で、ベイサイド竹芝 1208での生活は、まさに至福のひとときです。全ての感覚を使って、あなたの日常をより豊かにするこの空間で、新たな物語を紡いでみませんか?ここには、あなたを迎え入れるための、温かい心と魅力が溢れています。これからの生活が、まるで美しい映画のエンディングを迎えるかのように、特別な瞬間で満ち溢れることを、心から願っています。
バイブルスコア
バイブルスコア: 29.3
平均的なスコアです。
※バイブルスコア詳細はこちら
バイブルスコアとは独自のAI機械学習技術を利用した物件評価システムで、物件のおすすめ度を示します。最高得点は100点で、スコアが高いほど、よりおすすめの物件と評価されています。
写真
契約条件
| 賃料 | 予想金額:217,000〜237,000円程度 | 管理費 | 予想金額:0〜2,000円程度 |
| 礼金 | 非公開(アーカイブ) | 敷金 | 非公開(アーカイブ) |
| フリーレント | なし | 平米数 | 55.17㎡ |
| 間取り | 1LDK | 大型収納 | |
| 契約期間 |
| 方角 | 北西 |
| 更新料 | 契約形態 | 普通賃貸借契約 | |
| 取引態様 | 媒介 | 内見状況 | 入居中 |
| 入居時期 | 入居中 | SOHO・事務所 | 事務所(SOHO)可 |
| ペット | 間取り内訳 | 洋室7.0帖 LD13.0帖 K2.9帖 | |
| キャンペーン情報・備考 | 本情報は賃料改定交渉の資料作成、収益物件の利回り試算、周辺エリアや最寄り駅の坪単価分析、次回募集開始時期の予測などにご活用いただけます。 | ||
※「どの不動産に頼めばいいのか分からない」「信頼できる営業マンの話を聞きたい」「一番親切な会社と契約したい」とお悩みの方におすすめなのが「高級賃貸バイブル」です。
高級賃貸バイブルは業界10年以上の熟練スタッフ群がお客様ファーストで対応します。
下記ボタンから、まずは無料でご相談下さい。
※内覧をご希望の際には、どうぞ物件のエントランス前にてお待ち合わせくださいませ。ご内覧後は、同じ場所でお別れとさせていただきます。お客様のご都合に合わせたスムーズなご案内を心がけておりますので、ご質問等がございましたら何なりとお申し付けください。 物件概要
| 物件名 |
| 築年月 |
|
|---|---|---|---|
| 所在地 | |||
| 交通 | |||
| 総戸数 |
| 総階数 |
|
| 構造 |
| ||
地図
物件までの道のりは、「拡大地図を表示」をクリックしてナビ機能をご利用ください。
部屋設備


















建物設備

24時間管理

TVモニターホン

エレベーター

オートロック

バイク置場

宅配ボックス

敷地内ゴミ置場

駐車場機械式

駐輪場
ベイサイド竹芝の現在募集中のお部屋
- No rooms found for this property.






























