
| 賃料 | 予想金額:638,000〜658,000円程度 | 管理費 | 予想金額:10,000〜14,000円程度 |
| 礼金/敷金 | 非公開(アーカイブ) | 平米数 | 88.61㎡ |
| 初期費用概算(参考) | 目安:1,290,700〜1,390,700 円 | みなし賃料(月額・参考) | 664,431〜684,431 円 |
| 備考 | 本ページは過去募集のアーカイブです。表示の金額は周辺相場・過去募集を踏まえた参考レンジであり、実際の契約金額・条件ではありません。 | ||
※上記みなし賃料(月額)は仲介手数料割引・無料&キャッシュバックを加味した高級賃貸バイブル限定の金額です。一般的なみなし賃料とは異なります。
【建物ページ】プライムメゾン三田綱町の詳細・最新空室はこちら▶▶選ばれる理由
仲介手数料無料・キャンペーン情報(毎月15名様限定)
〇引っ越しお祝い金388800円プレゼント(キャッシュバック)
プライムメゾン三田綱町 4階 88.61㎡の口コミ・レビュー
プライムメゾン三田綱町 4階 88.61㎡は、まるで都会の喧騒から逃れるために生まれた、特別な空間です。この高級賃貸物件は、まるで美しいシンフォニーが響く中で、静かに暮らしを紡ぐように、あなたの生活に寄り添います。穏やかな南向きの窓からは、心地良い光が優しく差し込み、日の出と共に新たな希望を運んできます。プライムメゾン三田綱町が奏でるこの光景は、まるで映画のワンシーンのように、あなたを魅了すること…プライムメゾン三田綱町 4階 88.61㎡は、まるで都会の喧騒から逃れるために生まれた、特別な空間です。この高級賃貸物件は、まるで美しいシンフォニーが響く中で、静かに暮らしを紡ぐように、あなたの生活に寄り添います。穏やかな南向きの窓からは、心地良い光が優しく差し込み、日の出と共に新たな希望を運んできます。プライムメゾン三田綱町が奏でるこの光景は、まるで映画のワンシーンのように、あなたを魅了することでしょう。
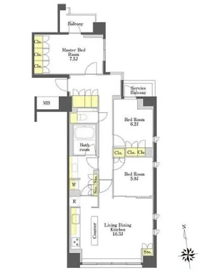
絵画のように美しいレイアウトを持つ間取りは、LDKが16.3帖、そしてそれぞれ独立した3つの寝室が7.5帖、6.2帖、5帖と完璧に配置されています。そこには、家族の笑い声や友人との語らいが響き渡ることでしょう。特に、LDKは贅沢な空間であり、料理をしながら窓の外に広がる景色を眺めることができます。その瞬間、料理の香ばしい香りが漂い、まるでフランスのビストロで食事をしているかのような高揚感を味わえるでしょう。
また、プライムメゾン三田綱町は、クラシックとモダンの融合を楽しめるデザイナーズ物件です。ここに住むことは、ただの住居以上の体験です。エレガントなオートロックシステムによってプライバシーが守られ、24時間管理される環境は、安心感を提供します。あなたの大切な瞬間を守るために、この住まいはひときわ重要な役割を果たします。
周辺の文化や歴史もこの物件の魅力を引き立てます。三田の地は、古き良き日本の文化と現代の洗練されたライフスタイルが交わる場所。東京メトロ南北線の麻布十番駅から徒歩6分という立地は、魅力的な街並みを散策するのに最適です。歴史ある神社や美術館、静かな公園など、さまざまな魅力があなたを待っています。五感を刺激するこの街で、アートの香りを感じ、歴史の重みを噛み締めながら、特別な毎日をお過ごしいただけます。
プライムメゾン三田綱町は、単なる住まいではなく、心の安らぎと日々の喜びを提供する場所です。この空間の中で、家族や友人との大切な時間を過ごし、共に笑い合い、心温まる思い出を刻んでいくことができるのです。新たな生活が始まる瞬間を、ここプライムメゾン三田綱町 4階 88.61㎡で迎え入れてみませんか。あなたの心に寄り添う、この特別な場所での暮らしが、人生の素晴らしい物語の一部となることでしょう。
絵画のように美しいレイアウトを持つ間取りは、LDKが16.3帖、そしてそれぞれ独立した3つの寝室が7.5帖、6.2帖、5帖と完璧に配置されています。そこには、家族の笑い声や友人との語らいが響き渡ることでしょう。特に、LDKは贅沢な空間であり、料理をしながら窓の外に広がる景色を眺めることができます。その瞬間、料理の香ばしい香りが漂い、まるでフランスのビストロで食事をしているかのような高揚感を味わえるでしょう。
また、プライムメゾン三田綱町は、クラシックとモダンの融合を楽しめるデザイナーズ物件です。ここに住むことは、ただの住居以上の体験です。エレガントなオートロックシステムによってプライバシーが守られ、24時間管理される環境は、安心感を提供します。あなたの大切な瞬間を守るために、この住まいはひときわ重要な役割を果たします。
周辺の文化や歴史もこの物件の魅力を引き立てます。三田の地は、古き良き日本の文化と現代の洗練されたライフスタイルが交わる場所。東京メトロ南北線の麻布十番駅から徒歩6分という立地は、魅力的な街並みを散策するのに最適です。歴史ある神社や美術館、静かな公園など、さまざまな魅力があなたを待っています。五感を刺激するこの街で、アートの香りを感じ、歴史の重みを噛み締めながら、特別な毎日をお過ごしいただけます。
プライムメゾン三田綱町は、単なる住まいではなく、心の安らぎと日々の喜びを提供する場所です。この空間の中で、家族や友人との大切な時間を過ごし、共に笑い合い、心温まる思い出を刻んでいくことができるのです。新たな生活が始まる瞬間を、ここプライムメゾン三田綱町 4階 88.61㎡で迎え入れてみませんか。あなたの心に寄り添う、この特別な場所での暮らしが、人生の素晴らしい物語の一部となることでしょう。
バイブルスコア
バイブルスコア: 73.5
かなり条件の良い物件です、即仮押さえをおすすめする物件です!
このお部屋は、現在ご入居中のため空室情報はございません。ただし、将来的に募集が開始される際、バイブルスコアにおいて非常に高い評価が期待されます。特にご興味をお持ちの方は、今のうちにブックマークやお気に入りに登録していただくと、募集開始のお知らせをすぐに受け取ることができます。是非ともご検討くださいませ。
※バイブルスコア詳細はこちら
バイブルスコアとは独自のAI機械学習技術を利用した物件評価システムで、物件のおすすめ度を示します。最高得点は100点で、スコアが高いほど、よりおすすめの物件と評価されています。
写真
契約条件
| 賃料 | 予想金額:638,000〜658,000円程度 | 管理費 | 予想金額:10,000〜14,000円程度 |
| 礼金 | 非公開(アーカイブ) | 敷金 | 非公開(アーカイブ) |
| フリーレント | なし | 平米数 | 88.61㎡ |
| 間取り | 3LDK | 大型収納 | |
| 契約期間 |
| 方角 | 南 |
| 更新料 | 契約形態 | 普通賃貸借契約 | |
| 取引態様 | 媒介 | 内見状況 | 入居中 |
| 入居時期 | 入居中 | SOHO・事務所 | |
| ペット | ペット可 | 間取り内訳 | LDK=16.3J / BR=7.5J , 6.2J , 5J |
| キャンペーン情報・備考 | 本情報は賃料改定交渉の資料作成、収益物件の利回り試算、周辺エリアや最寄り駅の坪単価分析、次回募集開始時期の予測などにご活用いただけます。 | ||
※「どの不動産に頼めばいいのか分からない」「信頼できる営業マンの話を聞きたい」「一番親切な会社と契約したい」とお悩みの方におすすめなのが「高級賃貸バイブル」です。
高級賃貸バイブルは業界10年以上の熟練スタッフ群がお客様ファーストで対応します。
下記ボタンから、まずは無料でご相談下さい。
※内覧をご希望の際には、どうぞ物件のエントランス前にてお待ち合わせくださいませ。ご内覧後は、同じ場所でお別れとさせていただきます。お客様のご都合に合わせたスムーズなご案内を心がけておりますので、ご質問等がございましたら何なりとお申し付けください。 物件概要
| 物件名 |
| 築年月 |
|
|---|---|---|---|
| 所在地 | |||
| 交通 | |||
| 総戸数 |
| 総階数 |
|
| 構造 |
| ||
地図
物件までの道のりは、「拡大地図を表示」をクリックしてナビ機能をご利用ください。
部屋設備














建物設備

24時間管理

TVモニターホン

エレベーター

オートロック

バイク置場

宅配ボックス

敷地内ゴミ置場

管理人

駐車場機械式

駐輪場
プライムメゾン三田綱町の現在募集中のお部屋
- No rooms found for this property.




