
| 賃料 | 予想金額:728,000〜748,000円程度 | 管理費 | 予想金額:10,000〜14,000円程度 |
| 礼金/敷金 | 非公開(アーカイブ) | 平米数 | 96.01㎡ |
| 初期費用概算(参考) | 目安:1,904,500〜2,004,500 円 | みなし賃料(月額・参考) | 765,344〜785,344 円 |
| 備考 | 本ページは過去募集のアーカイブです。表示の金額は周辺相場・過去募集を踏まえた参考レンジであり、実際の契約金額・条件ではありません。 | ||
※上記みなし賃料(月額)は仲介手数料割引・無料&キャッシュバックを加味した高級賃貸バイブル限定の金額です。一般的なみなし賃料とは異なります。
【建物ページ】プライムメゾン三田綱町の詳細・最新空室はこちら▶▶選ばれる理由
仲介手数料無料・キャンペーン情報(毎月15名様限定)
〇仲介手数料割引キャンペーン
プライムメゾン三田綱町 5階 96.01㎡の口コミ・レビュー
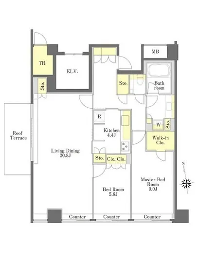
プライムメゾン三田綱町 5階 96.01㎡は、まるで都会の喧騒から離れた聖域のように、あなたを暖かく迎え入れます。その扉を開けると、広大なリビングダイニング(LD)は、20.8帖の広さに、太陽の光が優しく降り注ぎ、南側の窓からは穏やかな風が吹き込みます。おしゃれなダイニングテーブルに座って、友人たちとの楽しい談笑が始まる様子を、映画の一シーンのように想像してみてください。自分自身が主人公となり、心…プライムメゾン三田綱町 5階 96.01㎡は、まるで都会の喧騒から離れた聖域のように、あなたを暖かく迎え入れます。その扉を開けると、広大なリビングダイニング(LD)は、20.8帖の広さに、太陽の光が優しく降り注ぎ、南側の窓からは穏やかな風が吹き込みます。おしゃれなダイニングテーブルに座って、友人たちとの楽しい談笑が始まる様子を、映画の一シーンのように想像してみてください。自分自身が主人公となり、心地良いひとときを演出するこの空間が、あなたを魅了してやまないことでしょう。
このプライムメゾン三田綱町には、洗練されたデザインが施されたキッチン(K=4.4帖)が備わっており、料理の楽しさを引き立てます。新鮮な食材の香りが漂い、セラミックのカウンターに手を触れると、その冷たさが心地よい刺激となります。温かな光に包まれたこの空間で、料理をすることはまるで絵画を描くような感覚です。大切な人々と囲む食卓は、一皿一皿が愛の証です。
そして、プライムメゾン三田綱町の魅力は、リビングから続くリラックスルーム、9帖と5.6帖の2つの寝室(BR)です。それぞれが個性的なコーナーを演出しており、静寂に包まれたこの空間は、夜空の星々に見守られるように、心の安らぎを与えてくれます。窓から見える都会の景色は、日々の喧騒を忘れさせ、心に新たなインスピレーションを与えてくれるでしょう。
このプライムメゾン三田綱町では、24時間管理が行われるため、安心して生活を送ることができます。オートロックやTVモニターホンで守られた空間はまさに、あなた自身の隠れ家。友人を招くときには、そのセキュリティが大切な人々を守り、心地よいひとときを提供してくれます。
周辺には、麻布十番駅から徒歩6分の距離に、歴史的な街並みや個性的なカフェ、アートギャラリーが点在しています。散策することで、五感が刺激され、毎日が新しい発見で満たされるでしょう。地元の人々の温かさや、街の活気が融合したこの地域は、プライムメゾン三田綱町の住人にさらなる喜びをもたらしてくれます。
この物件はただの居住空間ではなく、あなたの人生を彩る舞台です。プライムメゾン三田綱町 5階 96.01㎡は、日常が美しさに満ちたストーリーに変わる場所であり、あなたの新たな生活がそこから始まるのです。人々の記憶に残るような特別な瞬間を、この場所で過ごすことができるのです。さあ、この贅沢な空間で、あなた自身の物語を紡いでみませんか。
このプライムメゾン三田綱町には、洗練されたデザインが施されたキッチン(K=4.4帖)が備わっており、料理の楽しさを引き立てます。新鮮な食材の香りが漂い、セラミックのカウンターに手を触れると、その冷たさが心地よい刺激となります。温かな光に包まれたこの空間で、料理をすることはまるで絵画を描くような感覚です。大切な人々と囲む食卓は、一皿一皿が愛の証です。
そして、プライムメゾン三田綱町の魅力は、リビングから続くリラックスルーム、9帖と5.6帖の2つの寝室(BR)です。それぞれが個性的なコーナーを演出しており、静寂に包まれたこの空間は、夜空の星々に見守られるように、心の安らぎを与えてくれます。窓から見える都会の景色は、日々の喧騒を忘れさせ、心に新たなインスピレーションを与えてくれるでしょう。
このプライムメゾン三田綱町では、24時間管理が行われるため、安心して生活を送ることができます。オートロックやTVモニターホンで守られた空間はまさに、あなた自身の隠れ家。友人を招くときには、そのセキュリティが大切な人々を守り、心地よいひとときを提供してくれます。
周辺には、麻布十番駅から徒歩6分の距離に、歴史的な街並みや個性的なカフェ、アートギャラリーが点在しています。散策することで、五感が刺激され、毎日が新しい発見で満たされるでしょう。地元の人々の温かさや、街の活気が融合したこの地域は、プライムメゾン三田綱町の住人にさらなる喜びをもたらしてくれます。
この物件はただの居住空間ではなく、あなたの人生を彩る舞台です。プライムメゾン三田綱町 5階 96.01㎡は、日常が美しさに満ちたストーリーに変わる場所であり、あなたの新たな生活がそこから始まるのです。人々の記憶に残るような特別な瞬間を、この場所で過ごすことができるのです。さあ、この贅沢な空間で、あなた自身の物語を紡いでみませんか。
バイブルスコア
バイブルスコア: 20.4
平均的なスコアです。
※バイブルスコア詳細はこちら
バイブルスコアとは独自のAI機械学習技術を利用した物件評価システムで、物件のおすすめ度を示します。最高得点は100点で、スコアが高いほど、よりおすすめの物件と評価されています。
写真
契約条件
| 賃料 | 予想金額:728,000〜748,000円程度 | 管理費 | 予想金額:10,000〜14,000円程度 |
| 礼金 | 非公開(アーカイブ) | 敷金 | 非公開(アーカイブ) |
| フリーレント | なし | 平米数 | 96.01㎡ |
| 間取り | 2LDK | 大型収納 | WIC+Sto+TR |
| 契約期間 |
| 方角 | 南 |
| 更新料 | 契約形態 | 普通賃貸借契約 | |
| 取引態様 | 媒介 | 内見状況 | 入居中 |
| 入居時期 | 入居中 | SOHO・事務所 | |
| ペット | ペット可 | 間取り内訳 | LD=20.8 / K=4.4J / BR=9J , 5.6J |
| キャンペーン情報・備考 | 本情報は賃料改定交渉の資料作成、収益物件の利回り試算、周辺エリアや最寄り駅の坪単価分析、次回募集開始時期の予測などにご活用いただけます。 | ||
※「どの不動産に頼めばいいのか分からない」「信頼できる営業マンの話を聞きたい」「一番親切な会社と契約したい」とお悩みの方におすすめなのが「高級賃貸バイブル」です。
高級賃貸バイブルは業界10年以上の熟練スタッフ群がお客様ファーストで対応します。
下記ボタンから、まずは無料でご相談下さい。
※内覧をご希望の際には、どうぞ物件のエントランス前にてお待ち合わせくださいませ。ご内覧後は、同じ場所でお別れとさせていただきます。お客様のご都合に合わせたスムーズなご案内を心がけておりますので、ご質問等がございましたら何なりとお申し付けください。 物件概要
| 物件名 |
| 築年月 |
|
|---|---|---|---|
| 所在地 | |||
| 交通 | |||
| 総戸数 |
| 総階数 |
|
| 構造 |
| ||
地図
物件までの道のりは、「拡大地図を表示」をクリックしてナビ機能をご利用ください。
部屋設備


















建物設備

24時間管理

TVモニターホン

エレベーター

オートロック

バイク置場

宅配ボックス

敷地内ゴミ置場

管理人

駐車場機械式

駐輪場
プライムメゾン三田綱町の現在募集中のお部屋
- No rooms found for this property.




