
| 賃料 | 予想金額:129,000〜149,000円程度 | 管理費 | 予想金額:8,000〜12,000円程度 |
| 礼金/敷金 | 非公開(アーカイブ) | 平米数 | 34.95㎡ |
| 初期費用概算(参考) | 目安:543,000〜643,000 円 | みなし賃料(月額・参考) | 148,458〜168,458 円 |
| 備考 | 本ページは過去募集のアーカイブです。表示の金額は周辺相場・過去募集を踏まえた参考レンジであり、実際の契約金額・条件ではありません。 | ||
※上記みなし賃料(月額)は仲介手数料割引・無料&キャッシュバックを加味した高級賃貸バイブル限定の金額です。一般的なみなし賃料とは異なります。
【建物ページ】デュオ・スカーラ麹町の詳細・最新空室はこちら▶▶選ばれる理由
仲介手数料無料・キャンペーン情報(毎月15名様限定)
〇仲介手数料割引キャンペーン
デュオ・スカーラ麹町 702の口コミ・レビュー
デュオ・スカーラ麹町 702は、まさに現代のオアシス。東京都千代田区麹町2-6-4という名門の地に、優雅に佇むこの物件は、あなたに洗練されたライフスタイルを授けるために生まれてきました。702という階数は、まるで空に近づくためのエレベーションの象徴。専有面積34.95㎡、その広さはまるで詩の一節のように、心に響く美しさを持っています。
南東を向いた窓から差し込む朝日が、この住処に生命を与え、起き…デュオ・スカーラ麹町 702は、まさに現代のオアシス。東京都千代田区麹町2-6-4という名門の地に、優雅に佇むこの物件は、あなたに洗練されたライフスタイルを授けるために生まれてきました。702という階数は、まるで空に近づくためのエレベーションの象徴。専有面積34.95㎡、その広さはまるで詩の一節のように、心に響く美しさを持っています。
南東を向いた窓から差し込む朝日が、この住処に生命を与え、起きぬけのコーヒーの香りを運んできます。コーヒーの芳香とともに、窓を開けると、隣の公園から聞こえてくる自然のささやきが、まるであなたを起こすために用意された音楽のようです。その瞬間、あなたはまるで素晴らしい映画の主人公になったかのように感じることでしょう。
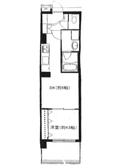
デュオ・スカーラ麹町 702の心臓部とも言えるのは、ゆったりとした洋室4.5帖と心温まるダイニングキッチン6帖。この空間は、夕暮れの光に包まれて、柔らかく温もりを感じさせます。ここに立つことで、あなたは家族や友人との大切な時間を紡ぐことができ、笑い声が響き渡るでしょう。あなたの大切な人を招待し、一緒に料理を楽しむ時間は、まるで美味しい料理が織りなすメロディーのように、幸せが音を立てます。
この物件には、最新の設備が整っています。TVモニターホンを通じて訪問者を確認し、安心して暮らすことができる環境が整っています。エレベーターやオートロックが完備されているため、あなたの生活は静かで安全なものとなるのです。バイク置場や宅配ボックス、さらには駐車場も完備され、あなたのライフスタイルをさらに格上げしてくれます。
周辺には、歴史的な街並みが広がり、文化と芸術が息づいています。麹町駅からは徒歩3分という近さで、都心の利便性を享受しながらも、この地に流れる優雅さを感じることができるのです。歴史的な建物を歩きながら、あなたもまた、この街の一部となり、流れる時間に身を委ねることでしょう。
デュオ・スカーラ麹町 702は、ただの住まいではない。それは、心と体を豊かにするための舞台です。ここに住むことで、あなたの日常が、より美しく、より深い物語へと昇華されることをお約束します。この特別な空間で、あなた自身のストーリーを紡いでみませんか?あなたの新しい生活が、まるで映画のワンシーンのように色鮮やかに広がっていくことを、心から願っています。
南東を向いた窓から差し込む朝日が、この住処に生命を与え、起き…デュオ・スカーラ麹町 702は、まさに現代のオアシス。東京都千代田区麹町2-6-4という名門の地に、優雅に佇むこの物件は、あなたに洗練されたライフスタイルを授けるために生まれてきました。702という階数は、まるで空に近づくためのエレベーションの象徴。専有面積34.95㎡、その広さはまるで詩の一節のように、心に響く美しさを持っています。
南東を向いた窓から差し込む朝日が、この住処に生命を与え、起きぬけのコーヒーの香りを運んできます。コーヒーの芳香とともに、窓を開けると、隣の公園から聞こえてくる自然のささやきが、まるであなたを起こすために用意された音楽のようです。その瞬間、あなたはまるで素晴らしい映画の主人公になったかのように感じることでしょう。
デュオ・スカーラ麹町 702の心臓部とも言えるのは、ゆったりとした洋室4.5帖と心温まるダイニングキッチン6帖。この空間は、夕暮れの光に包まれて、柔らかく温もりを感じさせます。ここに立つことで、あなたは家族や友人との大切な時間を紡ぐことができ、笑い声が響き渡るでしょう。あなたの大切な人を招待し、一緒に料理を楽しむ時間は、まるで美味しい料理が織りなすメロディーのように、幸せが音を立てます。
この物件には、最新の設備が整っています。TVモニターホンを通じて訪問者を確認し、安心して暮らすことができる環境が整っています。エレベーターやオートロックが完備されているため、あなたの生活は静かで安全なものとなるのです。バイク置場や宅配ボックス、さらには駐車場も完備され、あなたのライフスタイルをさらに格上げしてくれます。
周辺には、歴史的な街並みが広がり、文化と芸術が息づいています。麹町駅からは徒歩3分という近さで、都心の利便性を享受しながらも、この地に流れる優雅さを感じることができるのです。歴史的な建物を歩きながら、あなたもまた、この街の一部となり、流れる時間に身を委ねることでしょう。
デュオ・スカーラ麹町 702は、ただの住まいではない。それは、心と体を豊かにするための舞台です。ここに住むことで、あなたの日常が、より美しく、より深い物語へと昇華されることをお約束します。この特別な空間で、あなた自身のストーリーを紡いでみませんか?あなたの新しい生活が、まるで映画のワンシーンのように色鮮やかに広がっていくことを、心から願っています。
バイブルスコア
バイブルスコア: 24.6
平均的なスコアです。
※バイブルスコア詳細はこちら
バイブルスコアとは独自のAI機械学習技術を利用した物件評価システムで、物件のおすすめ度を示します。最高得点は100点で、スコアが高いほど、よりおすすめの物件と評価されています。
写真
現在写真が登録されていません契約条件
| 賃料 | 予想金額:129,000〜149,000円程度 | 管理費 | 予想金額:8,000〜12,000円程度 |
| 礼金 | 非公開(アーカイブ) | 敷金 | 非公開(アーカイブ) |
| フリーレント | なし | 平米数 | 34.95㎡ |
| 間取り | 1DK | 大型収納 | |
| 契約期間 |
| 方角 | 南東 |
| 更新料 | 契約形態 | 普通賃貸借契約 | |
| 取引態様 | 媒介 | 内見状況 | 入居中 |
| 入居時期 | 入居中 | SOHO・事務所 | 事務所(SOHO)可 |
| ペット | ペット可 | 間取り内訳 | 洋:4.5 DK:6 |
| キャンペーン情報・備考 | 本情報は賃料改定交渉の資料作成、収益物件の利回り試算、周辺エリアや最寄り駅の坪単価分析、次回募集開始時期の予測などにご活用いただけます。 | ||
※「どの不動産に頼めばいいのか分からない」「信頼できる営業マンの話を聞きたい」「一番親切な会社と契約したい」とお悩みの方におすすめなのが「高級賃貸バイブル」です。
高級賃貸バイブルは業界10年以上の熟練スタッフ群がお客様ファーストで対応します。
下記ボタンから、まずは無料でご相談下さい。
※内覧をご希望の際には、どうぞ物件のエントランス前にてお待ち合わせくださいませ。ご内覧後は、同じ場所でお別れとさせていただきます。お客様のご都合に合わせたスムーズなご案内を心がけておりますので、ご質問等がございましたら何なりとお申し付けください。 物件概要
| 物件名 |
| 築年月 |
|
|---|---|---|---|
| 所在地 | |||
| 交通 | |||
| 総戸数 |
| 総階数 |
|
| 構造 |
| ||
地図
物件までの道のりは、「拡大地図を表示」をクリックしてナビ機能をご利用ください。
部屋設備

















建物設備

TVモニターホン

エレベーター

オートロック

バイク置場

宅配ボックス

敷地内ゴミ置場

管理人

駐車場平置き

駐車場機械式

駐輪場
デュオ・スカーラ麹町の現在募集中のお部屋
- デュオ・スカーラ麹町 2階 36.62㎡ - 間取り: 1DK+WIC - 賃料: 15.8万円
- デュオ・スカーラ麹町 7階 46.62㎡ - 間取り: 1LDK - 賃料: 18万円
