
| 賃料 | 予想金額:200,000〜220,000円程度 | 管理費 | 予想金額:10,000〜14,000円程度 |
| 礼金/敷金 | 非公開(アーカイブ) | 平米数 | 55.65㎡ |
| 初期費用概算(参考) | 目安:899,500〜999,500 円 | みなし賃料(月額・参考) | 227,406〜247,406 円 |
| 備考 | 本ページは過去募集のアーカイブです。表示の金額は周辺相場・過去募集を踏まえた参考レンジであり、実際の契約金額・条件ではありません。 | ||
※上記みなし賃料(月額)は仲介手数料割引・無料&キャッシュバックを加味した高級賃貸バイブル限定の金額です。一般的なみなし賃料とは異なります。
【建物ページ】ユニゾンタワーの詳細・最新空室はこちら▶▶選ばれる理由
仲介手数料無料・キャンペーン情報(毎月15名様限定)
〇仲介手数料割引キャンペーン
ユニゾンタワー 1504の口コミ・レビュー
ユニゾンタワー 1504、その名はまるで新しい物語の幕開けを告げるσ。東京都中野区東中野5-1-1に佇むこの邸宅は、まるであなたを待ちわびていたかのように、高貴な姿を披露しています。南向きの窓越しに差し込む陽光は、朝の新鮮な空気とともに、あなたの毎日を優雅に彩ってくれることでしょう。この物件は、ただの住まいではなく、生活という名のアートを奏でるための舞台なのです。
家は居心地の良さを提供し、様々…ユニゾンタワー 1504、その名はまるで新しい物語の幕開けを告げるσ。東京都中野区東中野5-1-1に佇むこの邸宅は、まるであなたを待ちわびていたかのように、高貴な姿を披露しています。南向きの窓越しに差し込む陽光は、朝の新鮮な空気とともに、あなたの毎日を優雅に彩ってくれることでしょう。この物件は、ただの住まいではなく、生活という名のアートを奏でるための舞台なのです。
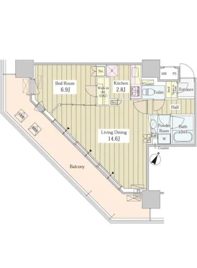
家は居心地の良さを提供し、様々な感情を解き放つ場所です。ユニゾンタワー 1504に足を踏み入れた瞬間、心地よい温もりに包まれます。14.6帖のリビングダイニングは、まるで広大な空間が自らの存在をアピールするかのように、あなたを迎え入れてくれます。絵画のような家具を配置し、友人たちと語らうひとときには、嗅覚を刺激するコーヒーの香りが漂い、聴覚には笑い声が満ち溢れることでしょう。
そして、キッチンは2.8帖の小さな舞台。ここでは、あなたが味わう料理が新しいレシピの冒険を導き、家族や友人との絆を深める魔法の場所となります。調理する音、スパイスの香ばしい香り、そして完成した料理を囲む温かい感触は、まるで映画のクライマックスシーンのようです。
6.9帖のベッドルームは、心を解放し、癒しの空間を提供します。穏やかな夜風が窓を通り抜け、月明かりが床を照らす中、深い眠りに導いてくれるでしょう。目覚めた時には、新たな一日への期待感が胸を満たし、また新しい物語が始まります。
ユニゾンタワー 1504の魅力は、単なる美しさだけではありません。24時間管理の安心感、オートロックのセキュリティ、デザイナーズ空間のエレガンスが、あなたの日常を特別なものに変えるのです。フロントサービスやラウンジは、まるでご自分がセレブリティであるかのように、優雅な時間を贈ります。
周囲には文化と歴史が息づく街、東中野があります。ここでは、老舗のレストランや地元のアートギャラリーが、日々の生活を豊かに彩ります。毎日の散歩ですら、まるで異文化の旅へと誘われるように感じるでしょう。
ユニゾンタワー 1504は、ただの住まいではなく、生活をデザインするためのキャンバスです。あなたはこのキャンバスに、思い出という色を加え、心の中に引き起こされる情熱を注いでください。この場所で、あなたの人生という名の物語が展開されるのです。その一瞬一瞬を、ぜひあなた自身の手で描き上げてください。
家は居心地の良さを提供し、様々…ユニゾンタワー 1504、その名はまるで新しい物語の幕開けを告げるσ。東京都中野区東中野5-1-1に佇むこの邸宅は、まるであなたを待ちわびていたかのように、高貴な姿を披露しています。南向きの窓越しに差し込む陽光は、朝の新鮮な空気とともに、あなたの毎日を優雅に彩ってくれることでしょう。この物件は、ただの住まいではなく、生活という名のアートを奏でるための舞台なのです。
家は居心地の良さを提供し、様々な感情を解き放つ場所です。ユニゾンタワー 1504に足を踏み入れた瞬間、心地よい温もりに包まれます。14.6帖のリビングダイニングは、まるで広大な空間が自らの存在をアピールするかのように、あなたを迎え入れてくれます。絵画のような家具を配置し、友人たちと語らうひとときには、嗅覚を刺激するコーヒーの香りが漂い、聴覚には笑い声が満ち溢れることでしょう。
そして、キッチンは2.8帖の小さな舞台。ここでは、あなたが味わう料理が新しいレシピの冒険を導き、家族や友人との絆を深める魔法の場所となります。調理する音、スパイスの香ばしい香り、そして完成した料理を囲む温かい感触は、まるで映画のクライマックスシーンのようです。
6.9帖のベッドルームは、心を解放し、癒しの空間を提供します。穏やかな夜風が窓を通り抜け、月明かりが床を照らす中、深い眠りに導いてくれるでしょう。目覚めた時には、新たな一日への期待感が胸を満たし、また新しい物語が始まります。
ユニゾンタワー 1504の魅力は、単なる美しさだけではありません。24時間管理の安心感、オートロックのセキュリティ、デザイナーズ空間のエレガンスが、あなたの日常を特別なものに変えるのです。フロントサービスやラウンジは、まるでご自分がセレブリティであるかのように、優雅な時間を贈ります。
周囲には文化と歴史が息づく街、東中野があります。ここでは、老舗のレストランや地元のアートギャラリーが、日々の生活を豊かに彩ります。毎日の散歩ですら、まるで異文化の旅へと誘われるように感じるでしょう。
ユニゾンタワー 1504は、ただの住まいではなく、生活をデザインするためのキャンバスです。あなたはこのキャンバスに、思い出という色を加え、心の中に引き起こされる情熱を注いでください。この場所で、あなたの人生という名の物語が展開されるのです。その一瞬一瞬を、ぜひあなた自身の手で描き上げてください。
バイブルスコア
バイブルスコア: 40.1
条件のいい物件です、引っ越しが2か月以内の場合は仮申し込みを検討すべき物件です。
※バイブルスコア詳細はこちら
バイブルスコアとは独自のAI機械学習技術を利用した物件評価システムで、物件のおすすめ度を示します。最高得点は100点で、スコアが高いほど、よりおすすめの物件と評価されています。
写真
契約条件
| 賃料 | 予想金額:200,000〜220,000円程度 | 管理費 | 予想金額:10,000〜14,000円程度 |
| 礼金 | 非公開(アーカイブ) | 敷金 | 非公開(アーカイブ) |
| フリーレント | なし | 平米数 | 55.65㎡ |
| 間取り | 1LDK | 大型収納 | WIC+SIC |
| 契約期間 |
| 方角 | 南 |
| 更新料 | 契約形態 | 普通賃貸借契約 | |
| 取引態様 | 媒介 | 内見状況 | 入居中 |
| 入居時期 | 入居中 | SOHO・事務所 | |
| ペット | 間取り内訳 | LD=14.6J / K=2.8J / BR=6.9J | |
| キャンペーン情報・備考 | 本情報は賃料改定交渉の資料作成、収益物件の利回り試算、周辺エリアや最寄り駅の坪単価分析、次回募集開始時期の予測などにご活用いただけます。 | ||
※「どの不動産に頼めばいいのか分からない」「信頼できる営業マンの話を聞きたい」「一番親切な会社と契約したい」とお悩みの方におすすめなのが「高級賃貸バイブル」です。
高級賃貸バイブルは業界10年以上の熟練スタッフ群がお客様ファーストで対応します。
下記ボタンから、まずは無料でご相談下さい。
※内覧をご希望の際には、どうぞ物件のエントランス前にてお待ち合わせくださいませ。ご内覧後は、同じ場所でお別れとさせていただきます。お客様のご都合に合わせたスムーズなご案内を心がけておりますので、ご質問等がございましたら何なりとお申し付けください。 物件概要
| 物件名 |
| 築年月 |
|
|---|---|---|---|
| 所在地 | |||
| 交通 | |||
| 総戸数 |
| 総階数 |
|
| 構造 |
| ||
地図
物件までの道のりは、「拡大地図を表示」をクリックしてナビ機能をご利用ください。
部屋設備


















建物設備

24時間管理

TVモニターホン

エレベーター

オートロック

バイク置場

フロントサービス

ラウンジ

宅配ボックス

敷地内ゴミ置場

管理人

駐車場平置き

駐車場機械式

駐輪場
ユニゾンタワーの現在募集中のお部屋
- ユニゾンタワー 1401 - 間取り: 1LDK+SIC - 賃料: 23.3万円
- ユニゾンタワー 1809 - 間取り: 1LDK+WIC+SIC - 賃料: 22.3万円
- ユニゾンタワー 509 - 間取り: 1LDK+WIC+SIC - 賃料: 21.4万円
- ユニゾンタワー 1501 - 間取り: 1LDK - 賃料: 23万円
- ユニゾンタワー 3007 - 間取り: 2LDK - 賃料: 32.4万円
- ユニゾンタワー 1309 - 間取り: 1LDK+WIC+SIC - 賃料: 26.7万円
- ユニゾンタワー 803 - 間取り: 1DK - 賃料: 17.9万円
- ユニゾンタワー 501 - 間取り: 1LDK - 賃料: 22.6万円
- ユニゾンタワー 710 - 間取り: 1R - 賃料: 15.5万円
- ユニゾンタワー 1308 - 間取り: 1LDK+SIC - 賃料: 18.9万円
- ユニゾンタワー 2407 - 間取り: 1LDK+WIC+SIC - 賃料: 27.2万円























