
| 賃料 | 予想金額:295,000〜315,000円程度 | 管理費 | 予想金額:13,000〜17,000円程度 |
| 礼金/敷金 | 非公開(アーカイブ) | 平米数 | 79.85㎡ |
| 初期費用概算(参考) | 目安:1,008,000〜1,108,000 円 | みなし賃料(月額・参考) | 325,688〜345,688 円 |
| 備考 | 本ページは過去募集のアーカイブです。表示の金額は周辺相場・過去募集を踏まえた参考レンジであり、実際の契約金額・条件ではありません。 | ||
※上記みなし賃料(月額)は仲介手数料割引・無料&キャッシュバックを加味した高級賃貸バイブル限定の金額です。一般的なみなし賃料とは異なります。
【建物ページ】ユニゾンタワーの詳細・最新空室はこちら▶▶選ばれる理由
仲介手数料無料・キャンペーン情報(毎月15名様限定)
〇仲介手数料無料キャンペーン
ユニゾンタワー 3003の口コミ・レビュー
ユニゾンタワー 3003。この名を耳にした瞬間、あなたの心に何かが響き渡るのを感じませんか?東京都中野区東中野5-1-1に佇むこの素晴らしき高級賃貸物件は、まさに都市のオアシス。本物件は、南東に広がる眺望を楽しみながら、日々の生活に彩りを添える特別な空間です。79.85㎡の広さを誇るユニゾンタワー 3003に一歩足を踏み入れれば、その瞬間からあなたの物語が始まります。
心地よい光が差し込むリビン…ユニゾンタワー 3003。この名を耳にした瞬間、あなたの心に何かが響き渡るのを感じませんか?東京都中野区東中野5-1-1に佇むこの素晴らしき高級賃貸物件は、まさに都市のオアシス。本物件は、南東に広がる眺望を楽しみながら、日々の生活に彩りを添える特別な空間です。79.85㎡の広さを誇るユニゾンタワー 3003に一歩足を踏み入れれば、その瞬間からあなたの物語が始まります。
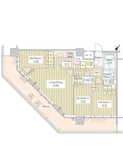
心地よい光が差し込むリビングダイニングは、13.8帖のゆったりとしたスペースを持ち、あなたの想像力を掻き立てます。新鮮な空気が流れ込むこの場所で、朝のコーヒーを淹れる音、窓を開けると聞こえてくる街の喧騒、そして日の出の光景が心に染み渡ります。キッチンは3.7帖の広さを持ち、料理を通して季節の移ろいを感じることができる場所。新鮮な食材の香りが漂い、手触りの良い調理器具たちがあなたを強力にサポートします。
このユニゾンタワー 3003は、家族との結びつきを深めるための空間でもあります。6.5帖、5.9帖、5.5帖の個室は、個々のプライバシーを守りつつも、温かいコミュニケーションを生む舞台です。あなたの大切な人たちと共に過ごす時間は、まるで映画の一場面のように思い出深いものとなるでしょう。時には、部屋での静かな読書や、家族でのディスカッションが新たな発見をもたらし、心の豊かさを育むのです。
この物件の魅力は設備にも表れています。オートロックや24時間管理など、安心で快適な生活を支える仕組みが整っています。ラウンジや宅配ボックス、駐車場など、生活の利便性がもたらす余裕は、心の豊かさにもつながります。日々の忙しさの中で、ゆったりとした時間を楽しむための贅沢な場所なのです。
ユニゾンタワー 3003は、ただの住まいではなく、歴史や文化と深く結びついた空間。東京都中野区の中心地に所在し、周囲には多くの美術館や静かな公園、アートな街並みが広がっています。休日には、ふらりと近くのギャラリーを訪れることができ、刺激的なアートと出会うことで、生活にさらなる彩りを加えることができるでしょう。
ユニゾンタワー 3003では、毎日の生活が特別なものへと変化します。あなたの心を満たし、五感を刺激する生活がここに待っています。美しい朝日を浴びながらの目覚め、居心地の良い空間での家族との笑い声、そして夜には街の灯りを眺めながら、心を静める時間。ここはあなたの人生の舞台となり、記憶に残る一幕が繰り広げられることでしょう。あなたの新たな物語が、ユニゾンタワー 3003から始まります。
心地よい光が差し込むリビン…ユニゾンタワー 3003。この名を耳にした瞬間、あなたの心に何かが響き渡るのを感じませんか?東京都中野区東中野5-1-1に佇むこの素晴らしき高級賃貸物件は、まさに都市のオアシス。本物件は、南東に広がる眺望を楽しみながら、日々の生活に彩りを添える特別な空間です。79.85㎡の広さを誇るユニゾンタワー 3003に一歩足を踏み入れれば、その瞬間からあなたの物語が始まります。
心地よい光が差し込むリビングダイニングは、13.8帖のゆったりとしたスペースを持ち、あなたの想像力を掻き立てます。新鮮な空気が流れ込むこの場所で、朝のコーヒーを淹れる音、窓を開けると聞こえてくる街の喧騒、そして日の出の光景が心に染み渡ります。キッチンは3.7帖の広さを持ち、料理を通して季節の移ろいを感じることができる場所。新鮮な食材の香りが漂い、手触りの良い調理器具たちがあなたを強力にサポートします。
このユニゾンタワー 3003は、家族との結びつきを深めるための空間でもあります。6.5帖、5.9帖、5.5帖の個室は、個々のプライバシーを守りつつも、温かいコミュニケーションを生む舞台です。あなたの大切な人たちと共に過ごす時間は、まるで映画の一場面のように思い出深いものとなるでしょう。時には、部屋での静かな読書や、家族でのディスカッションが新たな発見をもたらし、心の豊かさを育むのです。
この物件の魅力は設備にも表れています。オートロックや24時間管理など、安心で快適な生活を支える仕組みが整っています。ラウンジや宅配ボックス、駐車場など、生活の利便性がもたらす余裕は、心の豊かさにもつながります。日々の忙しさの中で、ゆったりとした時間を楽しむための贅沢な場所なのです。
ユニゾンタワー 3003は、ただの住まいではなく、歴史や文化と深く結びついた空間。東京都中野区の中心地に所在し、周囲には多くの美術館や静かな公園、アートな街並みが広がっています。休日には、ふらりと近くのギャラリーを訪れることができ、刺激的なアートと出会うことで、生活にさらなる彩りを加えることができるでしょう。
ユニゾンタワー 3003では、毎日の生活が特別なものへと変化します。あなたの心を満たし、五感を刺激する生活がここに待っています。美しい朝日を浴びながらの目覚め、居心地の良い空間での家族との笑い声、そして夜には街の灯りを眺めながら、心を静める時間。ここはあなたの人生の舞台となり、記憶に残る一幕が繰り広げられることでしょう。あなたの新たな物語が、ユニゾンタワー 3003から始まります。
写真
契約条件
| 賃料 | 予想金額:295,000〜315,000円程度 | 管理費 | 予想金額:13,000〜17,000円程度 |
| 礼金 | 非公開(アーカイブ) | 敷金 | 非公開(アーカイブ) |
| フリーレント | なし | 平米数 | 79.85㎡ |
| 間取り | 2LDK | 大型収納 | SIC |
| 契約期間 |
| 方角 | 南東 |
| 更新料 | 契約形態 | 普通賃貸借契約 | |
| 取引態様 | 媒介 | 内見状況 | 入居中 |
| 入居時期 | 入居中 | SOHO・事務所 | |
| ペット | 間取り内訳 | LD=13.8J / K=3.7J / BR=6.5J / BR=5.9J / BR=5.5J | |
| キャンペーン情報・備考 | 本情報は賃料改定交渉の資料作成、収益物件の利回り試算、周辺エリアや最寄り駅の坪単価分析、次回募集開始時期の予測などにご活用いただけます。 | ||
※「どの不動産に頼めばいいのか分からない」「信頼できる営業マンの話を聞きたい」「一番親切な会社と契約したい」とお悩みの方におすすめなのが「高級賃貸バイブル」です。
高級賃貸バイブルは業界10年以上の熟練スタッフ群がお客様ファーストで対応します。
下記ボタンから、まずは無料でご相談下さい。
※内覧をご希望の際には、どうぞ物件のエントランス前にてお待ち合わせくださいませ。ご内覧後は、同じ場所でお別れとさせていただきます。お客様のご都合に合わせたスムーズなご案内を心がけておりますので、ご質問等がございましたら何なりとお申し付けください。 物件概要
| 物件名 |
| 築年月 |
|
|---|---|---|---|
| 所在地 | |||
| 交通 | |||
| 総戸数 |
| 総階数 |
|
| 構造 |
| ||
地図
物件までの道のりは、「拡大地図を表示」をクリックしてナビ機能をご利用ください。
部屋設備

















建物設備

24時間管理

TVモニターホン

エレベーター

オートロック

バイク置場

フロントサービス

ラウンジ

宅配ボックス

敷地内ゴミ置場

管理人

駐車場平置き

駐車場機械式

駐輪場
ユニゾンタワーの現在募集中のお部屋
- ユニゾンタワー 1401 - 間取り: 1LDK+SIC - 賃料: 23.3万円
- ユニゾンタワー 1809 - 間取り: 1LDK+WIC+SIC - 賃料: 22.3万円
- ユニゾンタワー 509 - 間取り: 1LDK+WIC+SIC - 賃料: 21.4万円
- ユニゾンタワー 1501 - 間取り: 1LDK - 賃料: 23万円
- ユニゾンタワー 3007 - 間取り: 2LDK - 賃料: 32.4万円
- ユニゾンタワー 1309 - 間取り: 1LDK+WIC+SIC - 賃料: 26.7万円
- ユニゾンタワー 803 - 間取り: 1DK - 賃料: 17.9万円
- ユニゾンタワー 501 - 間取り: 1LDK - 賃料: 22.6万円
- ユニゾンタワー 710 - 間取り: 1R - 賃料: 15.5万円
- ユニゾンタワー 1308 - 間取り: 1LDK+SIC - 賃料: 18.9万円
- ユニゾンタワー 2407 - 間取り: 1LDK+WIC+SIC - 賃料: 27.2万円























